Информационная система
«Ёшкин Кот»

Скачать базу одним архивом
Скачать обновления
История создания базы
Карта сайта

Скачать Типовой проект 262-21-37 Альбом I. Часть 1. Архитектурные и технологические чертежи

Дата актуализации: 10.08.2017

Типовой проект 262-21-37

Альбом I. Часть 1. Архитектурные и технологические чертежи

Обозначение: Типовой проект 262-21-37
Обозначение англ: 262-21-37
Статус:не определен законодательством
Название рус.:Альбом I. Часть 1. Архитектурные и технологические чертежи
Дата добавления в базу:01.09.2013
Дата актуализации:05.05.2017
Дата введения:06.04.1982
Оглавление:Общие данные
План первого этажа между осями 1 - 5
План первого этажа между осями 5 - 10
План первого этажа между осями 10 - 14
План второго этажа между осями 1 - 5
План второго этажа между осями 5 - 10
План второго этажа между осями 10 - 14
План 3, 4, 5, 6 этажей между осями 1 - 5
План 3, 4, 5, 6 этажей между осями 5 - 10
План 3, 4, 5, 6 этажей между осями 10 - 14
План технического этажа
План кровли между осями 1 - 5
План кровли между осями 5 - 10
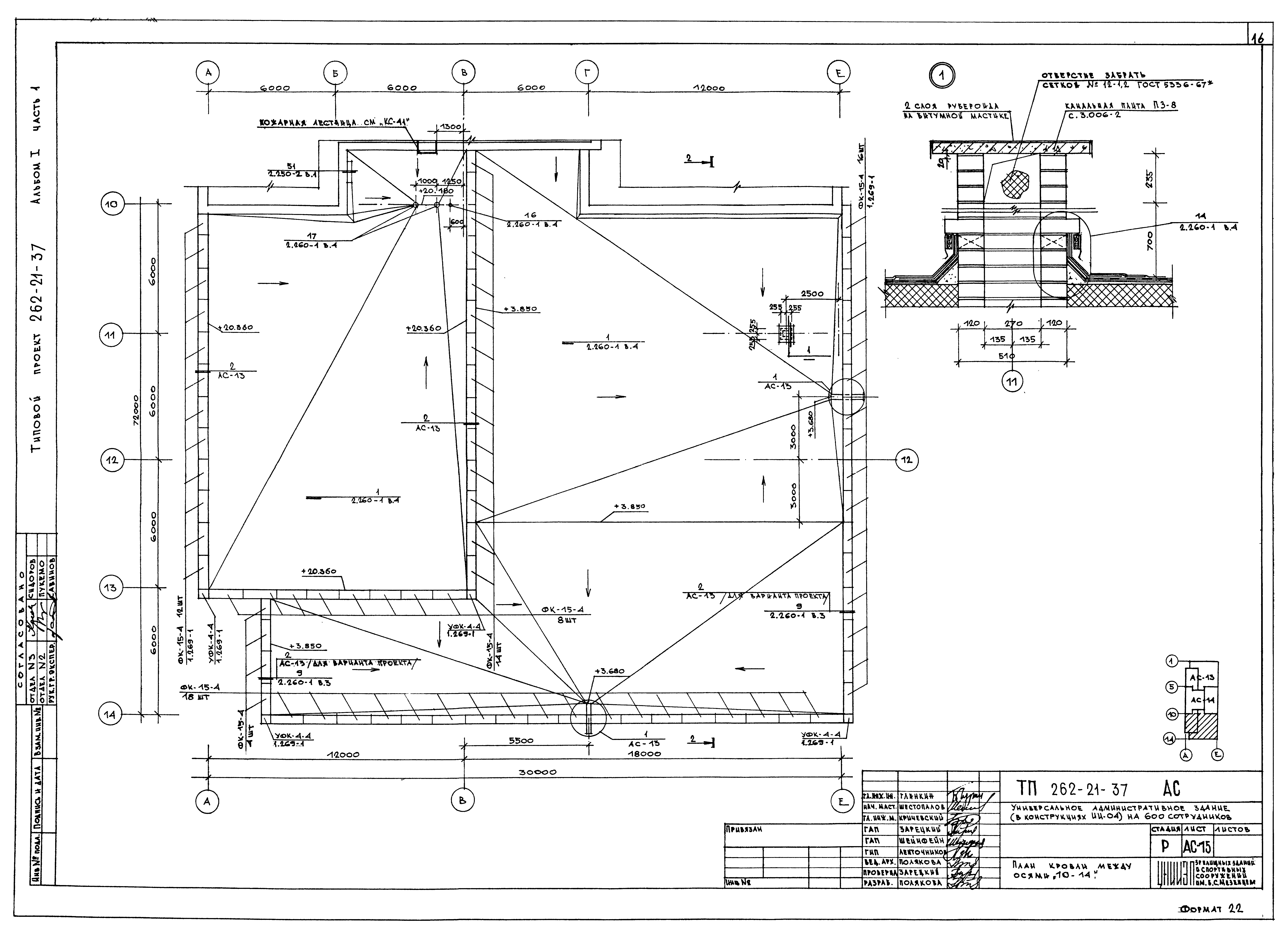
План кровли между осями 10 - 14
Разрез 1-1
Разрез 2-2
Фасады 1 - 14 и А - Е
Фасады 14 - 11 и Е - А
Монтажные схемы подвесных потолков
Детали подвесных потолков. Спецификации
Декоративная перегородка в раздаточной. Деревянные конструкции мест конференц-зала
Эстрада конференц-зала
Индивидуальные столярные изделия: двери "ДА" и "ДН"
Индивидуальные столярные изделия: оконный блок ИОС-18Е, дверной блок ИД121-13; столярная перегородка СП-2; декоративная вставка
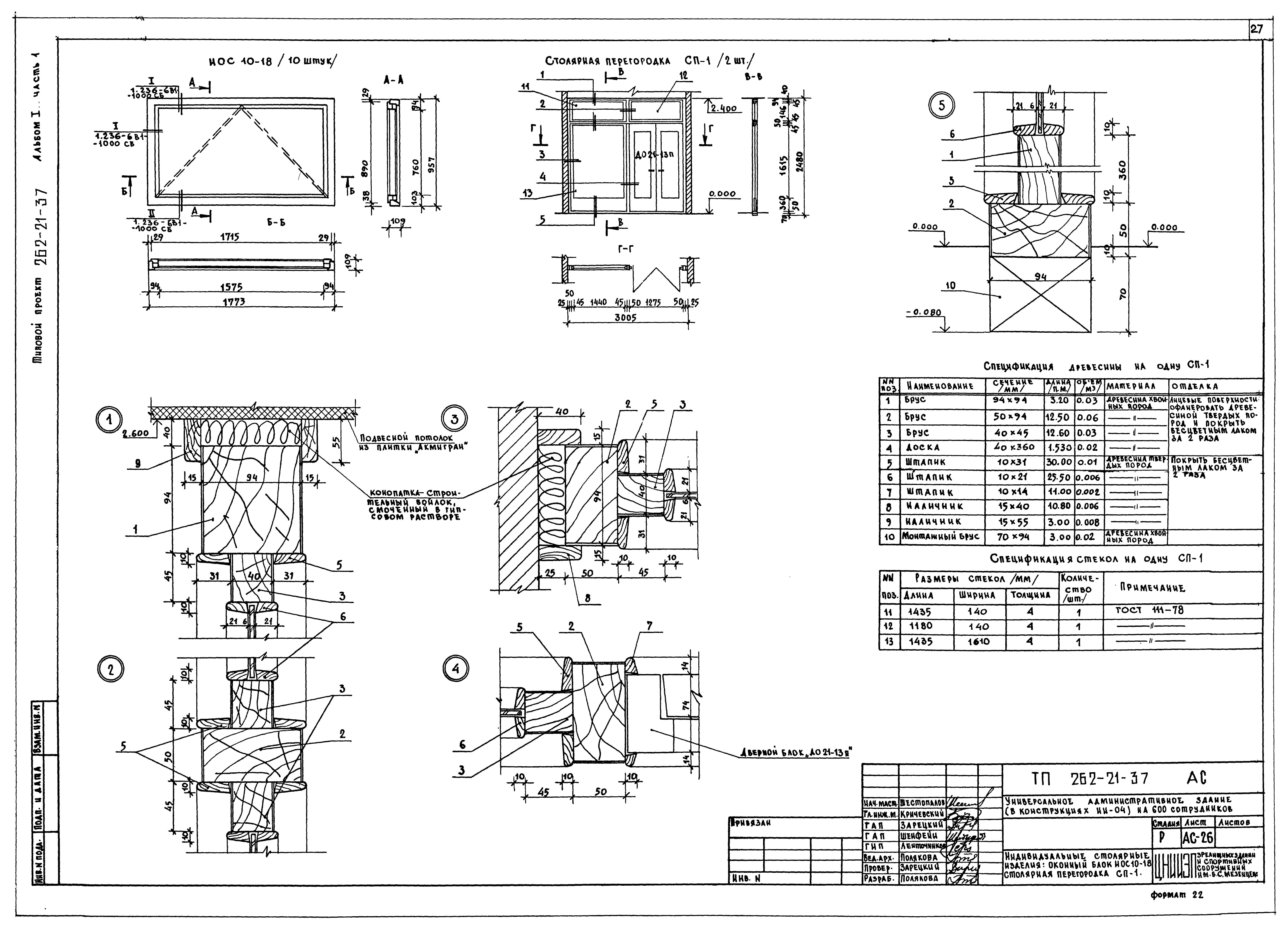
Индивидуальные столярные изделия: оконный блок ИОС10-18; столярная перегородка СП-1
Спецификация столярных изделий
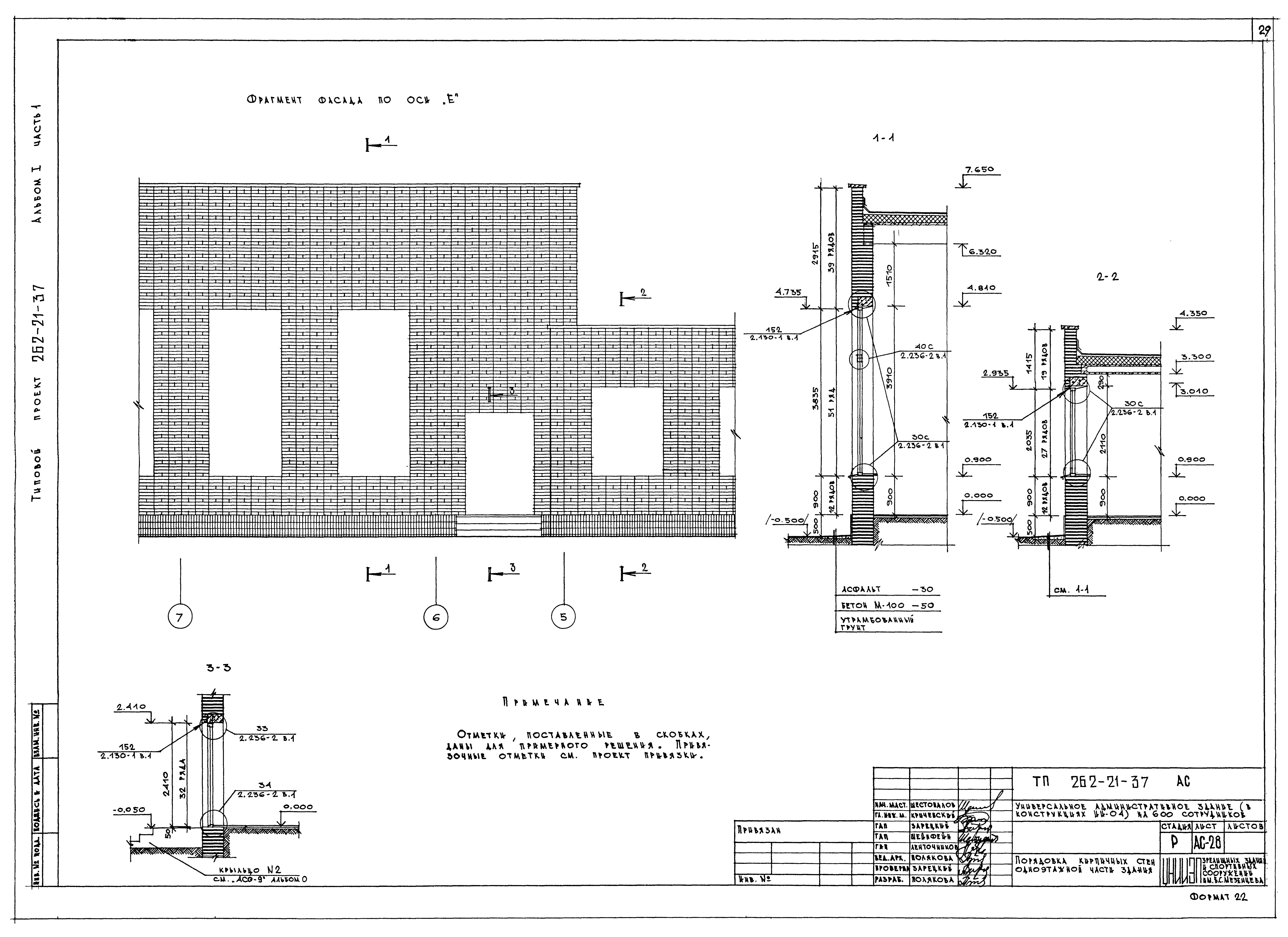
Порядовка кирпичных стен одноэтажной части здания
Воздухозаборная шахта №1 и выбросная шахта №1
Развертки стен конференц-зала
Ведомость отделки помещений
Детали планов
Варианты планировочных схем помещений основного назначения
Расстановка оборудования и мебели в помещениях основного и вспомогательного назначения. Спецификация
Копировально-множительные службы, медпункт, ремонтные мастерские. План расположения технологического оборудования и мебель
Копировально-множительные службы, медпункт, ремонтные мастерские. Спецификация технологического оборудования и мебели
Столовая на 120 посадочных мест на отм. 0.00
Столовая на 120 посадочных мест. Спецификация технологического оборудования
Столовая на 120 посадочных мест. Монтажный план
Разработан: ЦНИИЭП зрелищных зданий и спортивных сооружений Госгражданстроя
Утверждён:21.02.1980 Госгражданстрой (Gosgrazhdanstroy 64)
Расположен в:Техническая документация Строительство Справочные документы Типовые строительные конструкции, изделия и узлы Общероссийский строительный каталог Общественные здания в городах и поселках городского типа Зрелищные и культурно-просветительские учреждения. Здания для органов управления и общественных организаций Здания для органов управления и общественных организаций Здания для органов управления Защитные сооружения гражданской обороны Типовые проекты защитных сооружений гражданской обороны для жилищно-гражданского строительства Для строительства в городах и поселках городского типа Встроенные помещения, приспосабливаемые под противорадиационные укрытия в общественных зданиях Противорадиационные укрытия в административных зданиях и в зданиях проектных организаций
Типовой проект 262-21-37Типовой проект 262-21-37Типовой проект 262-21-37Типовой проект 262-21-37Типовой проект 262-21-37Типовой проект 262-21-37Типовой проект 262-21-37Типовой проект 262-21-37Типовой проект 262-21-37Типовой проект 262-21-37Типовой проект 262-21-37Типовой проект 262-21-37Типовой проект 262-21-37Типовой проект 262-21-37Типовой проект 262-21-37Типовой проект 262-21-37Типовой проект 262-21-37Типовой проект 262-21-37Типовой проект 262-21-37Типовой проект 262-21-37Типовой проект 262-21-37Типовой проект 262-21-37Типовой проект 262-21-37Типовой проект 262-21-37Типовой проект 262-21-37Типовой проект 262-21-37Типовой проект 262-21-37Типовой проект 262-21-37Типовой проект 262-21-37Типовой проект 262-21-37Типовой проект 262-21-37Типовой проект 262-21-37Типовой проект 262-21-37Типовой проект 262-21-37Типовой проект 262-21-37Типовой проект 262-21-37Типовой проект 262-21-37Типовой проект 262-21-37Типовой проект 262-21-37Типовой проект 262-21-37Типовой проект 262-21-37Типовой проект 262-21-37Типовой проект 262-21-37

© 2013 Ёшкин Кот :-) Карта сайта