Скачать Серия КЭ-01-09 Выпуск VI. Сборные железобетонные колонны одноэтажных производственных зданий с бескрановыми пролетами при шаге колонн 6 м. Рабочие чертежиДата актуализации: 10.08.2017 Серия КЭ-01-09
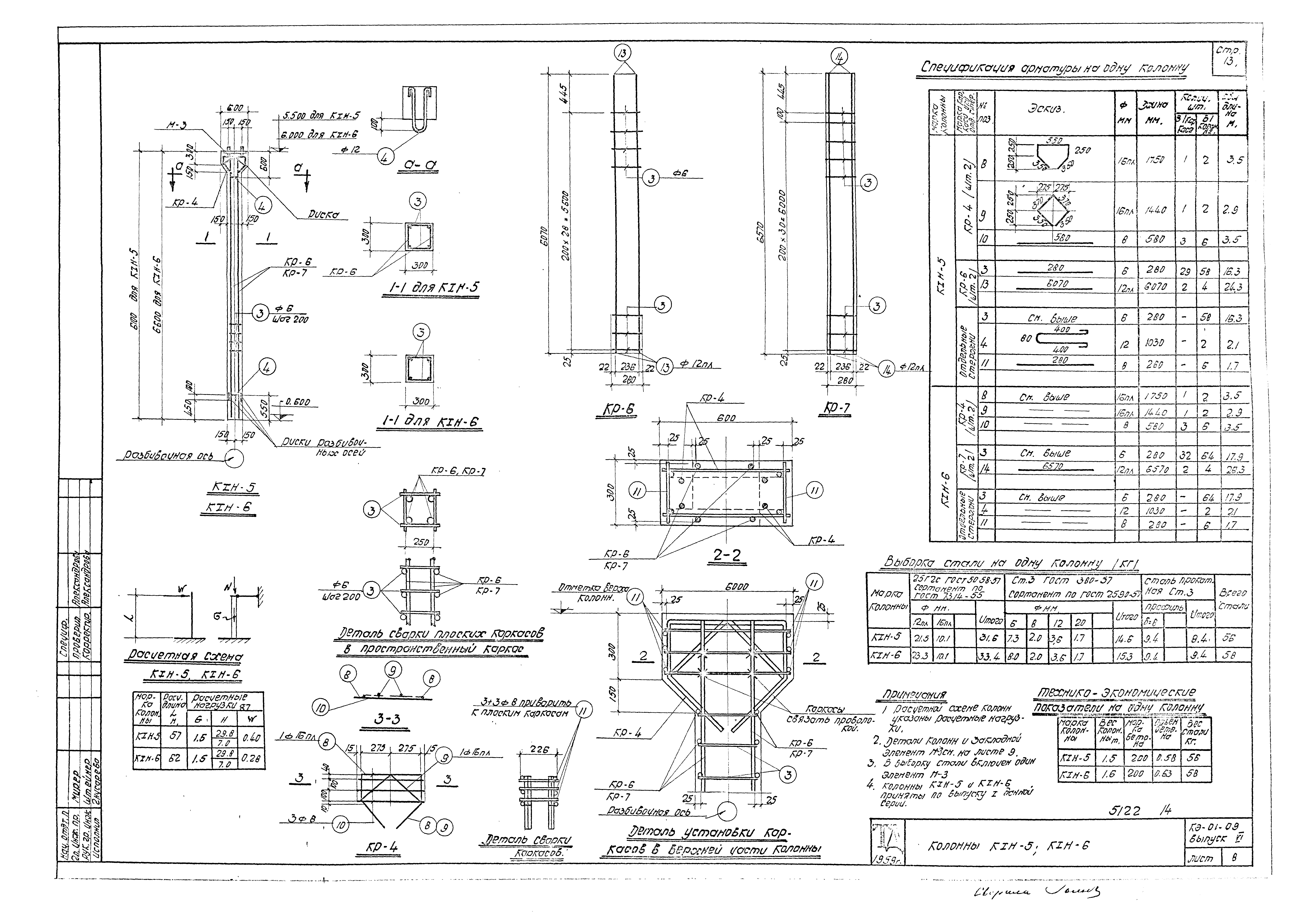
Выпуск VI. Сборные железобетонные колонны одноэтажных производственных зданий с бескрановыми пролетами при шаге колонн 6 м. Рабочие чертежи| Обозначение: | Серия КЭ-01-09 | | Обозначение англ: | Series КЭ-01-09 | | Статус: | действует | | Название рус.: | Выпуск VI. Сборные железобетонные колонны одноэтажных производственных зданий с бескрановыми пролетами при шаге колонн 6 м. Рабочие чертежи | | Дата добавления в базу: | 01.09.2013 | | Дата актуализации: | 05.05.2017 | | Оглавление: | Пояснительная записка Колонны Детали и закладные элементы для колонн Нагрузки на фундаменты | | Разработан: | Промстройпроект
| | Утверждён: | 07.03.1958 Госстрой СССР (Государственный комитет Совета Министров СССР по делам строительства) (USSR Gosstroy 82)
| | Расположен в: |
|
               
|