| ||||||||||||||||||||||||
Скачать Серия КЭ-01-09 Выпуск III. Сборные железобетонные колонны одноэтажных производственных зданий с крановыми пролетами при шаге колонн 6 м. Рабочие чертежиДата актуализации: 10.08.2017
|
| Обозначение: | Серия КЭ-01-09 |
| Обозначение англ: | Series КЭ-01-09 |
| Статус: | не действует |
| Название рус.: | Выпуск III. Сборные железобетонные колонны одноэтажных производственных зданий с крановыми пролетами при шаге колонн 6 м. Рабочие чертежи |
| Дата добавления в базу: | 01.09.2013 |
| Дата актуализации: | 05.05.2017 |
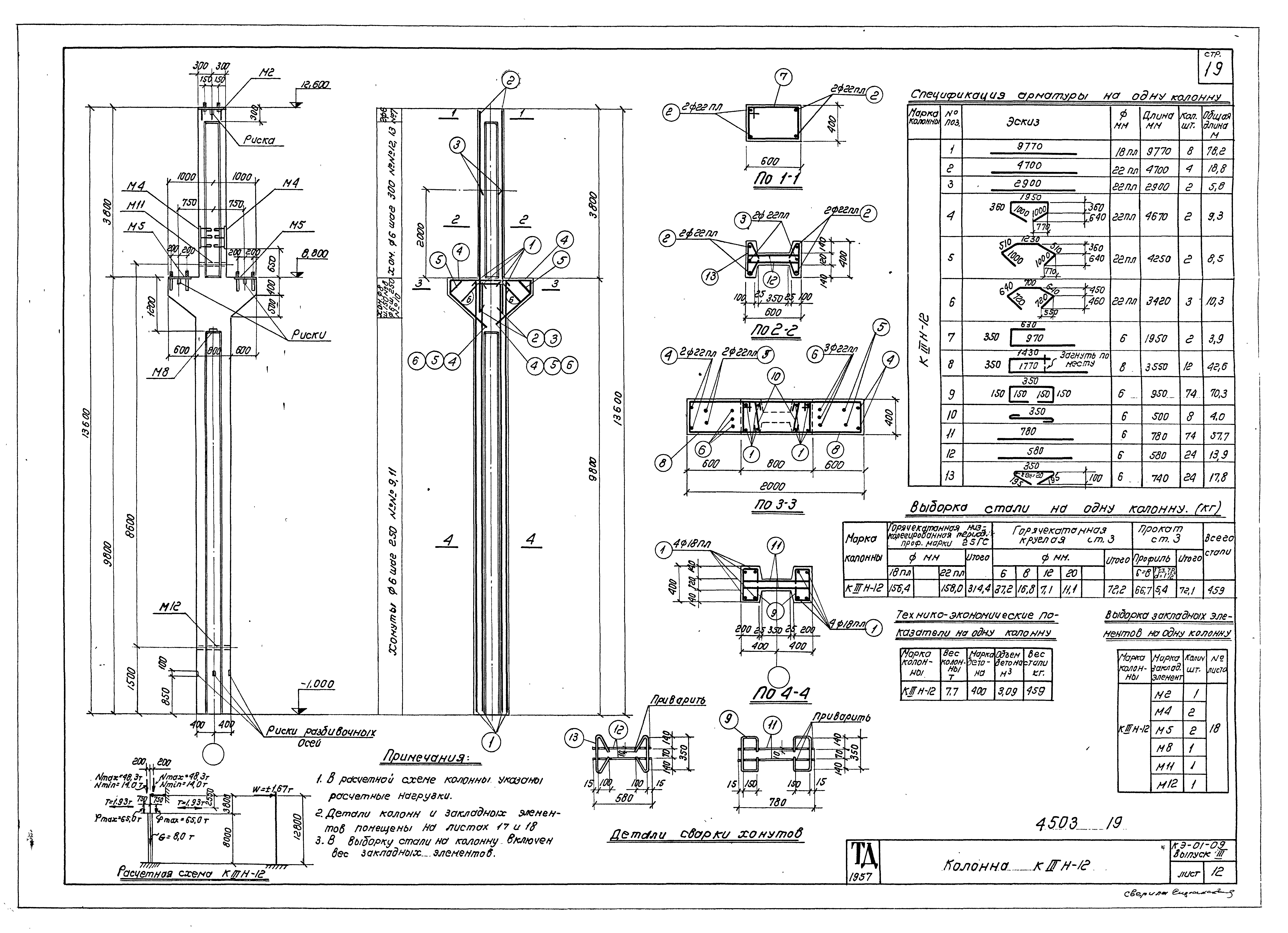
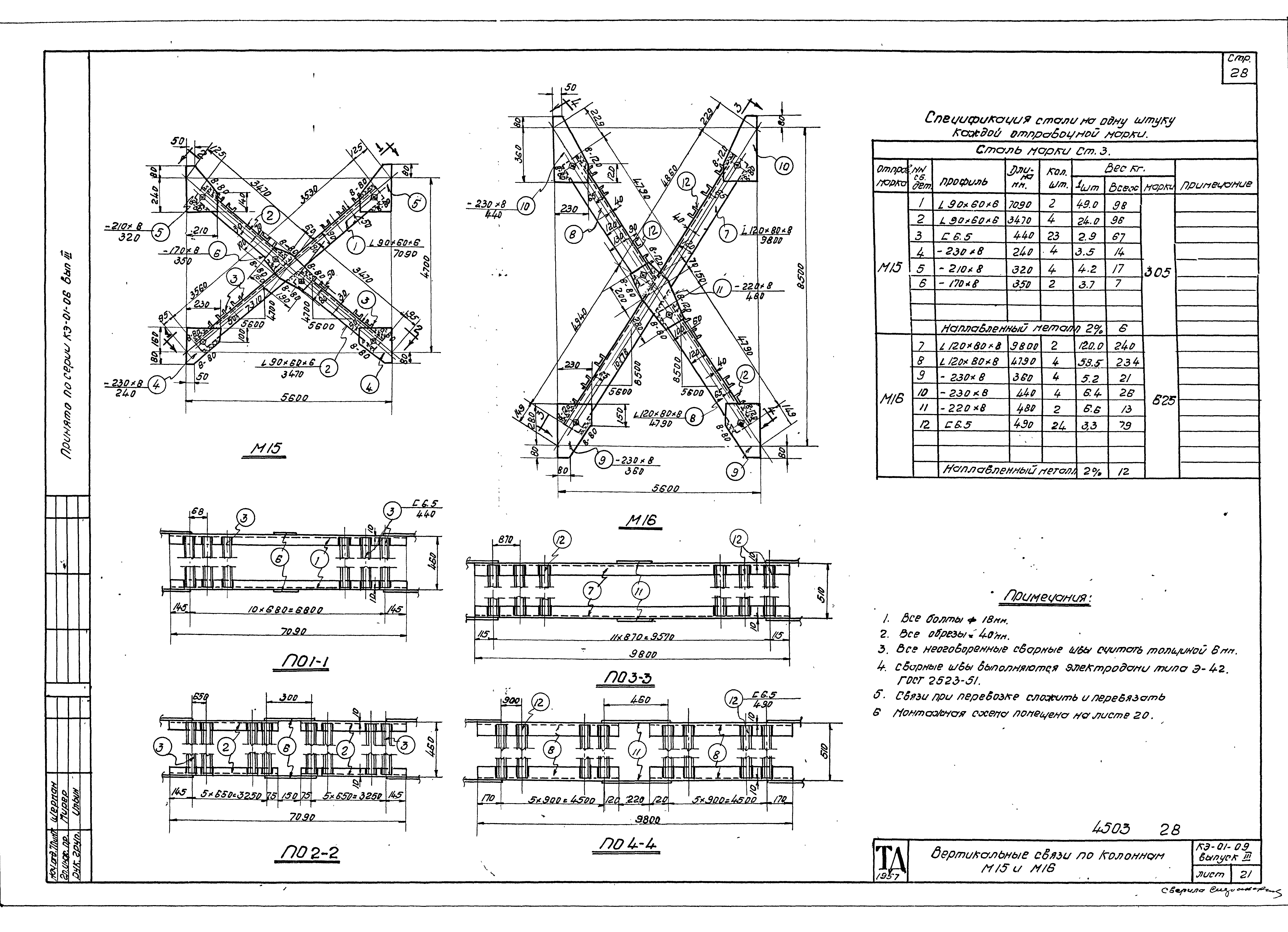
| Оглавление: | Пояснительная записка Колонны Детали колонн Закладные элементы Ключ к вертикальным связям по колоннам. Примерный схематический план цеха с размещением вертикальных связей Вертикальные связи по колоннам Ключ к железобетонным конструкциям Нагрузки на фундаменты |
| Разработан: | Промстройпроект |
| Утверждён: | 07.03.1958 Госстрой СССР (Государственный комитет Совета Министров СССР по делам строительства) (USSR Gosstroy 82) |
| Расположен в: |































