Информационная система
«Ёшкин Кот»

Скачать базу одним архивом
Скачать обновления
История создания базы
Карта сайта

Скачать Типовой проект 407-3-318м Альбом III. Электротехнические и санитарно-технические чертежи

Дата актуализации: 10.08.2017

Типовой проект 407-3-318м

Альбом III. Электротехнические и санитарно-технические чертежи

Обозначение: Типовой проект 407-3-318м
Обозначение англ: 407-3-318м
Статус:не действует
Название рус.:Альбом III. Электротехнические и санитарно-технические чертежи
Дата добавления в базу:01.10.2014
Дата актуализации:05.05.2017
Дата введения:01.01.1988
Оглавление:Содержание альбома
Пояснительная записка
Электротехническая часть
   Общие данные
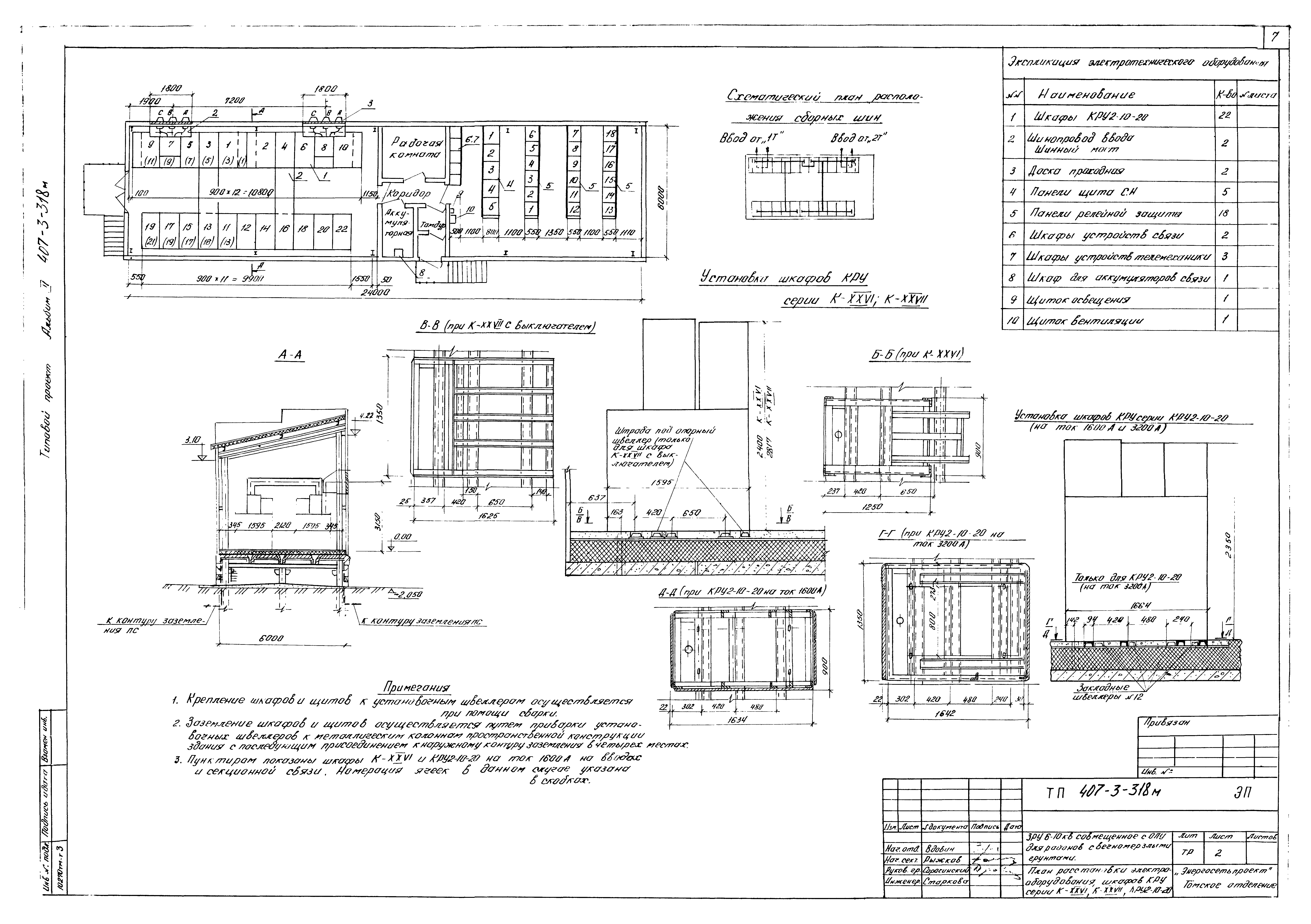
   План расстановки электрооборудования, шкафов КРУ серии К-XXVI; К-XXVII, КРУ2-10-20
   Шинные мосты и вводы 6 - 10 кВ со шкафами К-XXVI; К-XXVII, КРУ2-10-20
   Шинные вводы 6 - 10 кВ для ЗРУ со шкафами К-XXVII. Общий вид. Спецификация. Детали
   Шинный ввод 6 - 10 кВ для ЗРУ со шкафами КРУ2-10-20. Общий вид. Спецификация. Детали
   Шинный ввод 6 - 10 кВ для ЗРУ со шкафами К-XXVI. Общий вид. Спецификация. Детали
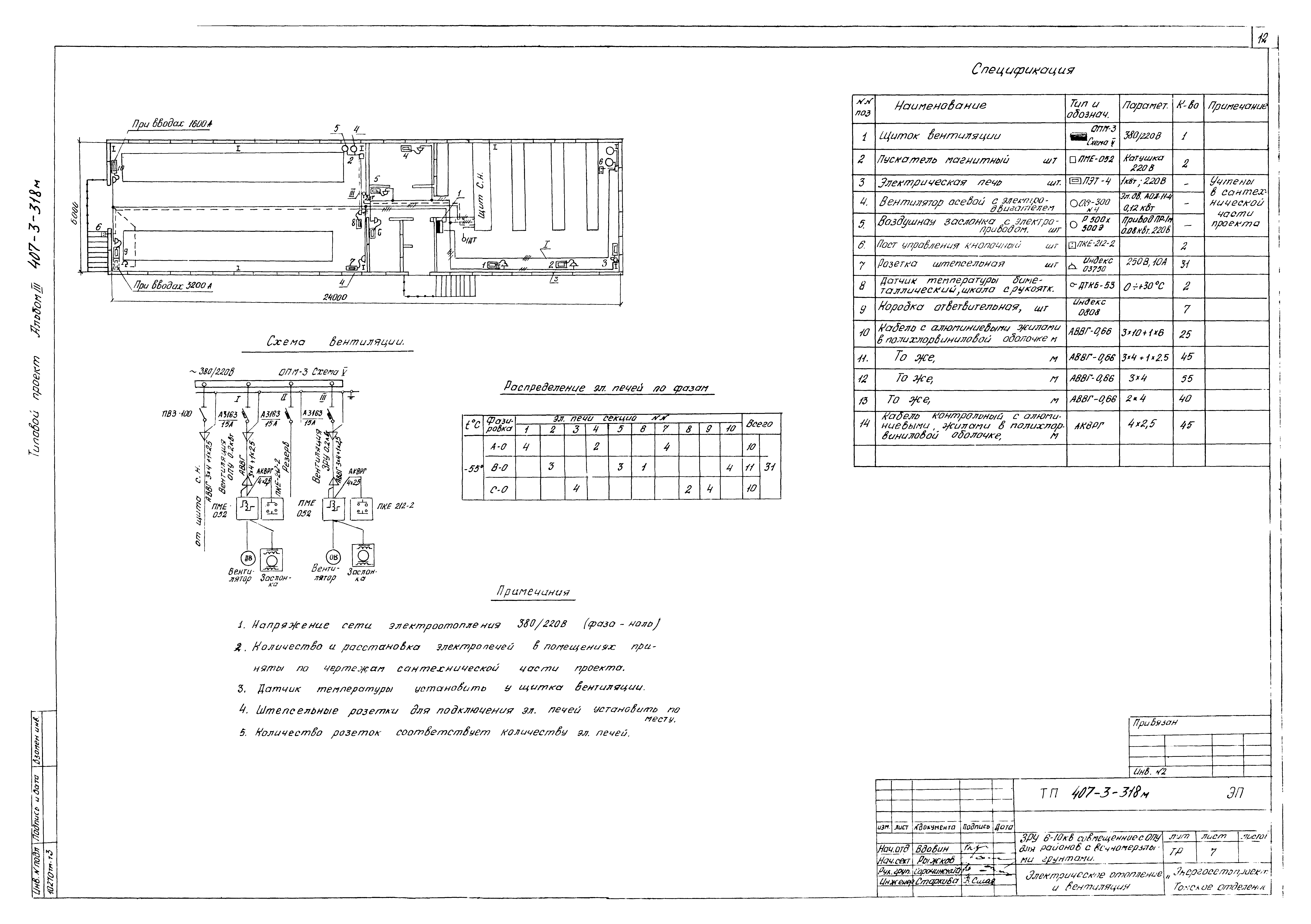
   Электрическое отопление и вентиляция
   Освещение. План и схема
   Проходные доски для изоляторов ИП-10/1000-750У1, 1250У1, ИП, ИПУ-10/1600, 2000, 3150-1250У1
   Проходная доска для изоляторов ИП, ИПУ-10/1600, 2000, 3150-1250У1, ИП-10/1000-750У1, 1250У1. Детали
   План размещений металлоконструкций для кабелей. Разрезы
   Шкаф для установки аккумуляторов связи
Отопление и вентиляция
   Общие данные
   План, разрез 1-1, схема ВЕ1. Спецификация
   Вентиляция. Установки В1, В2. Планы, разрезы, спецификация
   Установка электрических печей типа ПЭТ-4
Разработан: Томское отделение Энергосетьпроекта
Утверждён:04.08.1980 Минэнерго СССР (USSR Minenergo 50)
Расположен в:Техническая документация Строительство Справочные документы Типовые строительные конструкции, изделия и узлы Общероссийский строительный каталог Промышленные предприятия, здания и сооружения Предприятия, здания и сооружения промышленности и электроэнергетики Электроэнергетика Устройства и подстанции распределительные
Типовой проект 407-3-318мТиповой проект 407-3-318мТиповой проект 407-3-318мТиповой проект 407-3-318мТиповой проект 407-3-318мТиповой проект 407-3-318мТиповой проект 407-3-318мТиповой проект 407-3-318мТиповой проект 407-3-318мТиповой проект 407-3-318мТиповой проект 407-3-318мТиповой проект 407-3-318мТиповой проект 407-3-318мТиповой проект 407-3-318мТиповой проект 407-3-318мТиповой проект 407-3-318мТиповой проект 407-3-318мТиповой проект 407-3-318мТиповой проект 407-3-318мТиповой проект 407-3-318мТиповой проект 407-3-318мТиповой проект 407-3-318м

© 2013 Ёшкин Кот :-) Карта сайта