Информационная система
«Ёшкин Кот»

Скачать базу одним архивом
Скачать обновления
История создания базы
Карта сайта

Скачать Типовой проект 402-22-72.12.88 Альбом I. Пояснительная записка. Чертежи

Дата актуализации: 10.08.2017

Типовой проект 402-22-72.12.88

Альбом I. Пояснительная записка. Чертежи

Обозначение: Типовой проект 402-22-72.12.88
Обозначение англ: 402-22-72.12.88
Статус:не определен законодательством
Название рус.:Альбом I. Пояснительная записка. Чертежи
Дата добавления в базу:01.09.2013
Дата актуализации:05.05.2017
Дата введения:01.03.1988
Оглавление:Пояснительная записка
Чертежи основного комплекта марки ТХ
   Общие данные. План вводов инженерных сетей
   План на отм. 0.000
   Схема гидравлическая принципиальная. Высотная схема движения воды
Чертежи основного комплекта марки АТХ
   Общие данные
   Схема автоматизации очистки стоков
   Схема автоматизации электроотопления
   Схема автоматизации приточной установки П1 (вариант с электроотоплением)
   Схема автоматизации приточной установки П1 (вариант с водяным отоплением)
   Схема электрическая принципиальная управления насосами доочистки сточных вод
   Схема электрическая принципиальная управления насосами промывной воды
   Схема электрическая принципиальная управления электропечами
   Схема соединений внешних проводок
   Схема соединений внешних проводок. Вариант с электроотоплением
   Схема соединений внешних проводок. Вариант с водяным отоплением
   План расположения. Вид I-I. Вариант с электроотоплением
   План расположения. Вид I-I. Вариант с водяным отоплением
Чертежи основного комплекта марки ЭО
   Общие данные. План на отм. 0.000
Чертежи основного комплекта марки ЭМ
   Общие данные
   Схема электрическая принципиальная. Вариант с электроотоплением
   Схема электрическая подключения
   Схема электрическая принципиальная. Вариант с водяным отоплением
   План на отм. 0.000. Вариант с электроотоплением
   План на отм. 0.000. Вариант с водяным отоплением
   Кабельно-трубный журнал. Вариант с электроотоплением
   Кабельно-трубный журнал. Вариант с водяным отоплением
Чертежи основного комплекта марки АС
   Общие данные
   План на отм. 0.000. Разрез I-I. Фасад 1 - 2; 2 - 1; А - Д; Д - А
   Схема расположения блоков, комплектов монтажных частей. Вид 1-1, 2-2
   Схема расположения фундаментов. Схема нагрузок. Сечение 1-1, 2-2
Чертежи основного комплекта марки ОВ
   Общие данные
   Планы на отм. 0.000. Схема системы отопления. Узел управления
   План на отм. 0.000. Схема систем П1, В1. Разрез 1-1…3-3
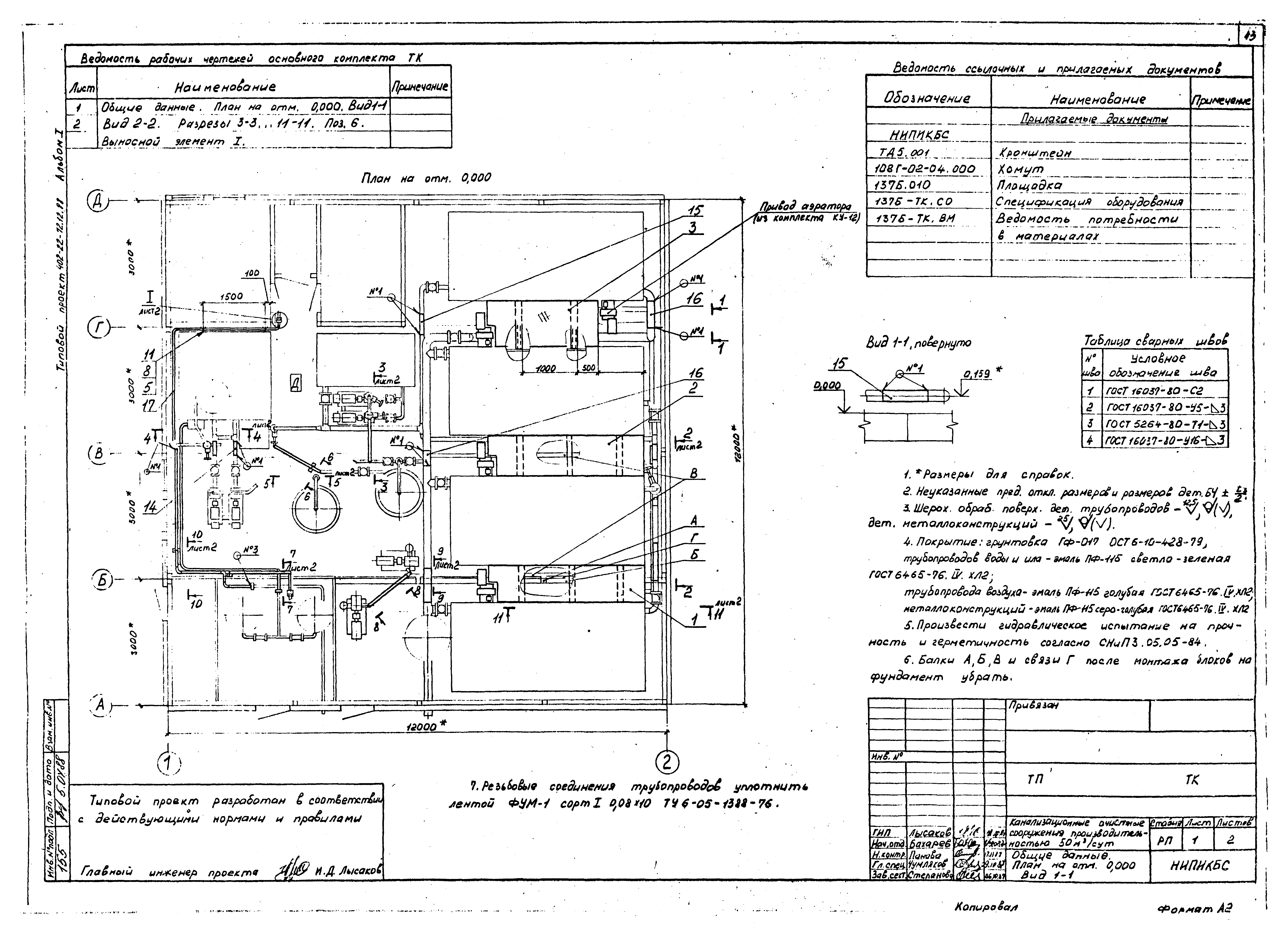
Чертежи основного комплекта марки ТК
   Общие данные. План на отм. 0.000. Вид 1-1
   Вид 2-2. Разрезы 3-3…11-11. Поз. 6. Выносной элемент 1
Чертежи основного комплекта марки ВК
   Общие данные. План на отм. 0.000. Схемы систем В0, К1
Разработан: НИПИ КБС Миннефтегазстроя
Утверждён:09.02.1988 Миннефтегазстрой СССР (45)
Расположен в:Техническая документация Строительство Справочные документы Типовые строительные конструкции, изделия и узлы Общероссийский строительный каталог Промышленные предприятия, здания и сооружения Предприятия, здания и сооружения промышленности и электроэнергетики Промышленность нефтяная и газовая Промышленность газовая Сооружения комплектно-блочные вспомогательного назначения для компрессорных станций магистральных газопроводов
Заменяет собой:
  • Типовой проект 402-22-34.83
Типовой проект 402-22-72.12.88Типовой проект 402-22-72.12.88Типовой проект 402-22-72.12.88Типовой проект 402-22-72.12.88Типовой проект 402-22-72.12.88Типовой проект 402-22-72.12.88Типовой проект 402-22-72.12.88Типовой проект 402-22-72.12.88Типовой проект 402-22-72.12.88Типовой проект 402-22-72.12.88Типовой проект 402-22-72.12.88Типовой проект 402-22-72.12.88Типовой проект 402-22-72.12.88Типовой проект 402-22-72.12.88Типовой проект 402-22-72.12.88Типовой проект 402-22-72.12.88Типовой проект 402-22-72.12.88Типовой проект 402-22-72.12.88Типовой проект 402-22-72.12.88Типовой проект 402-22-72.12.88Типовой проект 402-22-72.12.88Типовой проект 402-22-72.12.88Типовой проект 402-22-72.12.88Типовой проект 402-22-72.12.88Типовой проект 402-22-72.12.88Типовой проект 402-22-72.12.88Типовой проект 402-22-72.12.88Типовой проект 402-22-72.12.88Типовой проект 402-22-72.12.88Типовой проект 402-22-72.12.88Типовой проект 402-22-72.12.88Типовой проект 402-22-72.12.88Типовой проект 402-22-72.12.88Типовой проект 402-22-72.12.88Типовой проект 402-22-72.12.88Типовой проект 402-22-72.12.88Типовой проект 402-22-72.12.88Типовой проект 402-22-72.12.88Типовой проект 402-22-72.12.88Типовой проект 402-22-72.12.88Типовой проект 402-22-72.12.88Типовой проект 402-22-72.12.88Типовой проект 402-22-72.12.88Типовой проект 402-22-72.12.88Типовой проект 402-22-72.12.88Типовой проект 402-22-72.12.88

© 2013 Ёшкин Кот :-) Карта сайта