| ||||||||||||||||||||||||||
Скачать Серия ОФ-01-14 Выпуск 15. Рабочие чертежи фундамента под молот паровоздушный штамповочный модели М211 с весом падающих частей 1000 кгДата актуализации: 10.08.2017
|
| Обозначение: | Серия ОФ-01-14 |
| Обозначение англ: | Series ОФ-01-14 |
| Статус: | не действует |
| Название рус.: | Выпуск 15. Рабочие чертежи фундамента под молот паровоздушный штамповочный модели М211 с весом падающих частей 1000 кг |
| Дата добавления в базу: | 01.09.2013 |
| Дата актуализации: | 05.05.2017 |
| Дата введения: | 01.10.1989 |
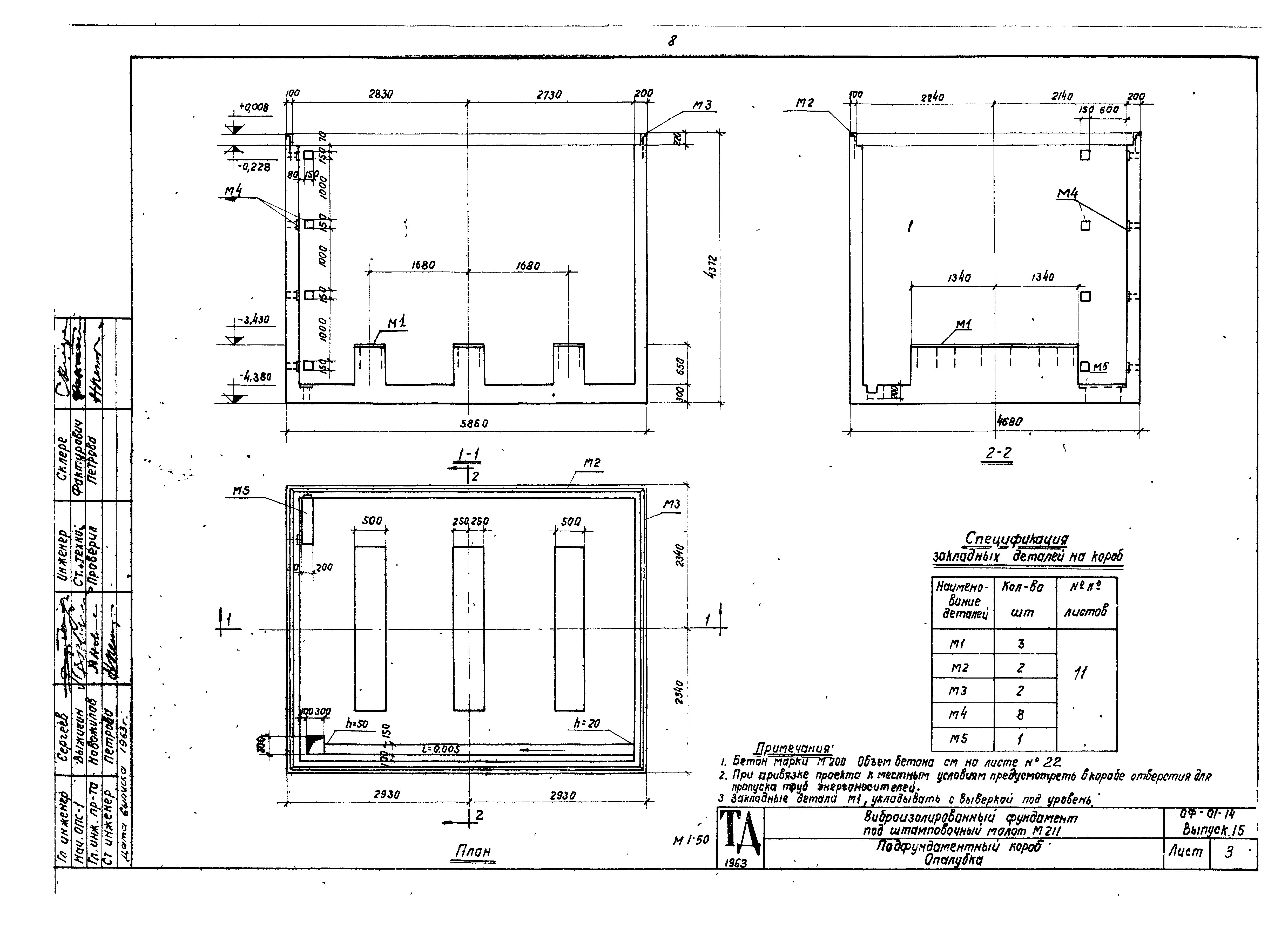
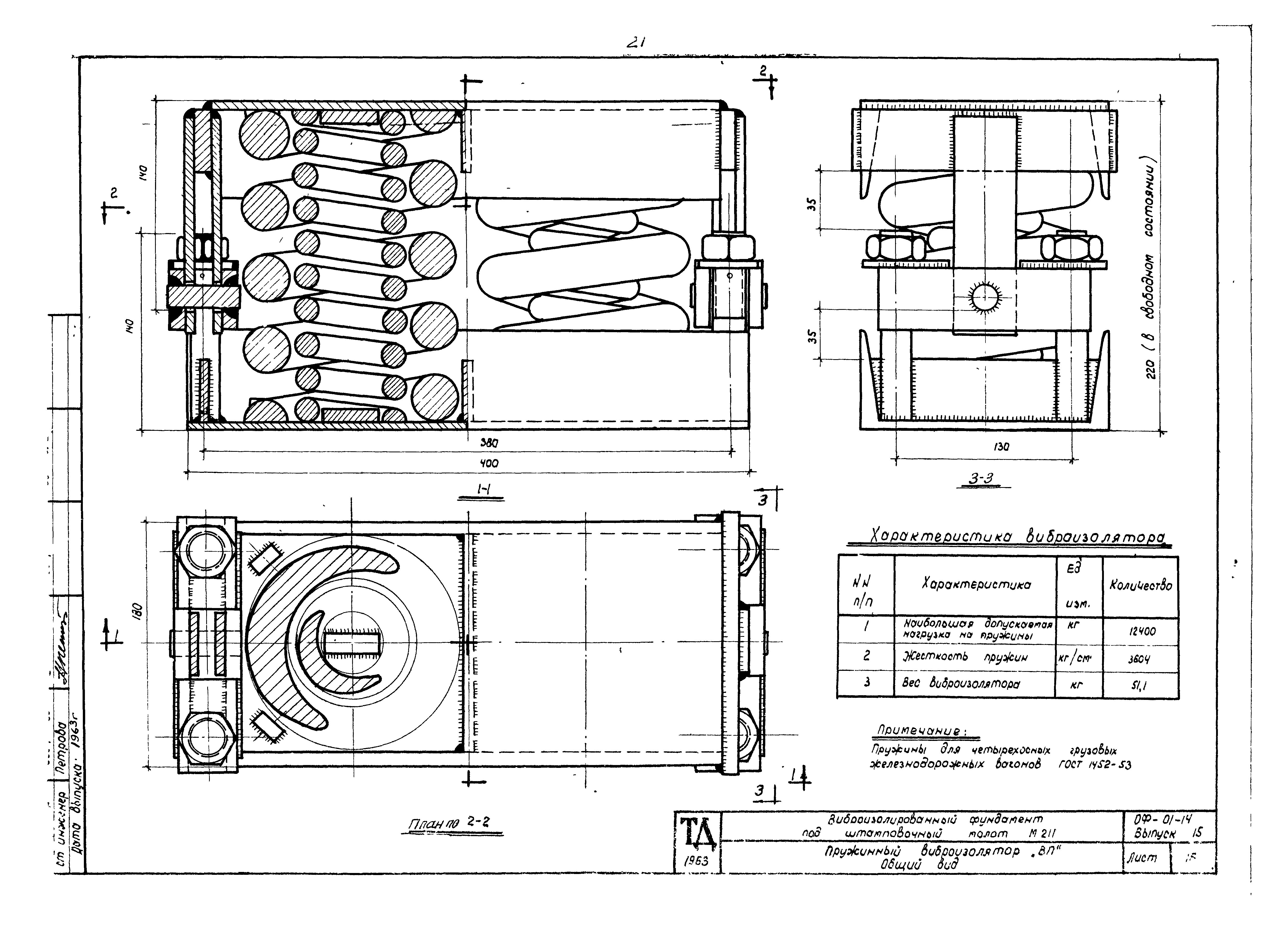
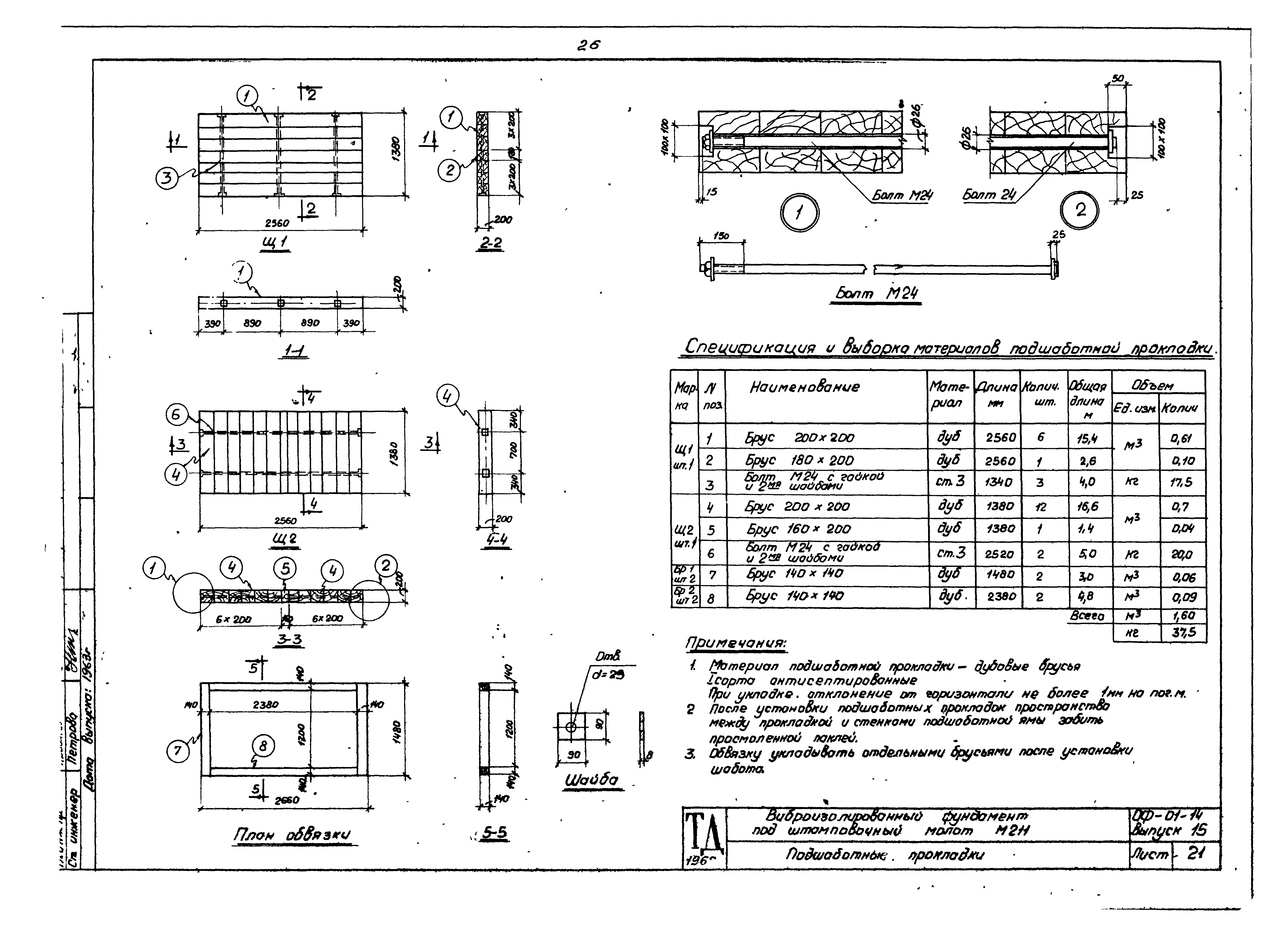
| Оглавление: | Пояснительная записка I. Общая часть II. Расчет и армирование III. Указание по производству работ Общий вид фундамента. План и разрезы Общий вид фундамента. Узлы Подфундаментный короб. Опалубка Подфундаментный короб. Армирование Фундаментный блок. Опалубка Фундаментный блок. Армирование Спецификация арматуры на подфундаментный короб Спецификация арматуры на фундаментный блок Эскизы арматурных изделий на подфундаментный короб Эскизы арматурных изделий на фундаментный блок Закладные детали короба и блока. Лестница Л1 Перекрытие подфундаментного короба. Монтажная схема Перекрытие подфундаментного короба. Плиты и узлы Перекрытие подфундаментного короба. Спецификация стали Пружинный виброизолятор "ВП". Общий вид Пружинный виброизолятор. Верхняя крышка Пружинный виброизолятор. Нижняя крышка Пружинный виброизолятор. Внешняя и внутренняя пружины Резиновый виброизолятор "ВР" Подшаботные прокладки Расход материалов и выборка стали |
| Разработан: | Гипротис ЦНИИСК АСиА СССР ВНИИметмаш |
| Утверждён: | 01.10.1963 Госстрой СССР (Государственный комитет Совета Министров СССР по делам строительства) (USSR Gosstroy ) |
| Расположен в: |




























