Информационная система
«Ёшкин Кот»

Скачать базу одним архивом
Скачать обновления
История создания базы
Карта сайта

Скачать Типовой проект 111-125-2 Часть 9. Раздел 9-2. Узлы и детали. Монтажные узлы и детали

Дата актуализации: 10.08.2017

Типовой проект 111-125-2

Часть 9. Раздел 9-2. Узлы и детали. Монтажные узлы и детали

Обозначение: Типовой проект 111-125-2
Обозначение англ: 111-125-2
Статус:действует
Название рус.:Часть 9. Раздел 9-2. Узлы и детали. Монтажные узлы и детали
Дата добавления в базу:01.09.2013
Дата актуализации:05.05.2017
Оглавление:Содержание
Указания по заделке стыков
Детали заделки стыков наружных стеновых панелей
Узлы сопряжения наружных и внутренних стен
Узлы сопряжения наружных и внутренних стен западающих лоджий
Фрагменты приставных лоджий. Узлы сопряжения наружных и внутренних стен
Фрагменты западающих лоджий. Узлы сопряжения наружных и внутренних стен
Узлы сопряжения фризовых панелей
Сопряжения фризовых стеновых панелей. Детали опирания панелей перекрытия на внутренние стены
Узлы сопряжения внутренних стеновых панелей
Узлы крепления панелей перекрытий
Узлы крепления гипсобетонных перегородок
Узлы крепления керамзитобетонных перегородок
Узлы крепления балконной плиты и гипсобетонных перегородок. Детали пропуска стояков через перекрытие
Монтажный план совмещенных и раздельных санузлов
Узлы крепления железобетонных перегородок санузлов
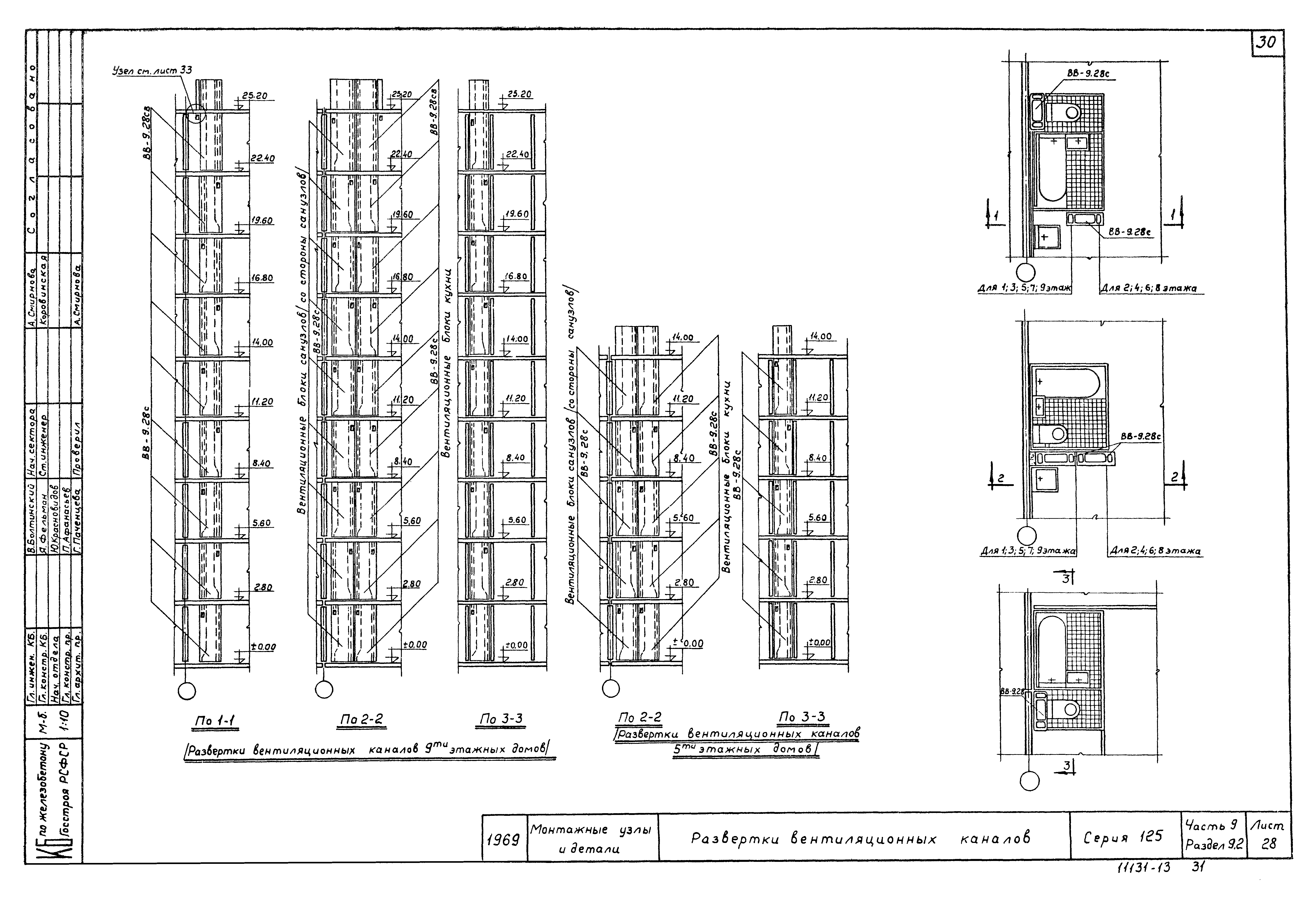
Развертки вентиляционных каналов
Узлы лестниц
Узлы лестниц (вариант марша и площадки по серии 467А)
Узлы крепления ограждений лестниц
Узлы крепления ограждений лестниц (вариант марша и площадки по серии 467А)
Узлы крепления пожарных лестниц в лоджиях. Детали пожарного перехода. Деталь заделки штраб наружных стен. Деталь вентиляции кухни 9-го этажа
Схема мусоропровода. Спецификация
Мусорокамера. Приемный бункер (5-ти этажного дома)
Мусорокамера. Приемный бункер (9-ти этажного дома)
Планы и разрезы по машинному помещению
Разрезы по машинному помещению
Узлы и детали крыши
Узел крепления ВС пожарного перехода КН-52.14. Узел крепления ВС приставной лоджии к перекрытию. Узел крепления лифтовой шахты к перекрытию. Деталь заделки рулонного ковра в приставной лоджии
Ограждение балконов. Узлы
Разработан: КБ по железобетону Госстроя РСФСР
Утверждён:28.08.1970 КБ по железобетону Госстроя РСФСР (69)
Расположен в:Техническая документация Строительство Справочные документы Типовые строительные конструкции, изделия и узлы Общероссийский строительный каталог Жилые здания для строительства в сельской местности Жилые дома панельные Серия 125
Типовой проект 111-125-2Типовой проект 111-125-2Типовой проект 111-125-2Типовой проект 111-125-2Типовой проект 111-125-2Типовой проект 111-125-2Типовой проект 111-125-2Типовой проект 111-125-2Типовой проект 111-125-2Типовой проект 111-125-2Типовой проект 111-125-2Типовой проект 111-125-2Типовой проект 111-125-2Типовой проект 111-125-2Типовой проект 111-125-2Типовой проект 111-125-2Типовой проект 111-125-2Типовой проект 111-125-2Типовой проект 111-125-2Типовой проект 111-125-2Типовой проект 111-125-2Типовой проект 111-125-2Типовой проект 111-125-2Типовой проект 111-125-2Типовой проект 111-125-2Типовой проект 111-125-2Типовой проект 111-125-2Типовой проект 111-125-2Типовой проект 111-125-2Типовой проект 111-125-2Типовой проект 111-125-2Типовой проект 111-125-2Типовой проект 111-125-2Типовой проект 111-125-2Типовой проект 111-125-2Типовой проект 111-125-2Типовой проект 111-125-2Типовой проект 111-125-2Типовой проект 111-125-2Типовой проект 111-125-2Типовой проект 111-125-2Типовой проект 111-125-2Типовой проект 111-125-2Типовой проект 111-125-2Типовой проект 111-125-2Типовой проект 111-125-2Типовой проект 111-125-2Типовой проект 111-125-2

© 2013 Ёшкин Кот :-) Карта сайта