Информационная система
«Ёшкин Кот»

Скачать базу одним архивом
Скачать обновления
История создания базы
Карта сайта

Скачать Типовой проект 111-125-2 Часть 9. Раздел 9-1. Узлы и детали. Типовые секции. Архитектурные решения. Детали

Дата актуализации: 10.08.2017

Типовой проект 111-125-2

Часть 9. Раздел 9-1. Узлы и детали. Типовые секции. Архитектурные решения. Детали

Обозначение: Типовой проект 111-125-2
Обозначение англ: 111-125-2
Статус:действует
Название рус.:Часть 9. Раздел 9-1. Узлы и детали. Типовые секции. Архитектурные решения. Детали
Дата добавления в базу:01.09.2013
Дата актуализации:05.05.2017
Оглавление:Содержание
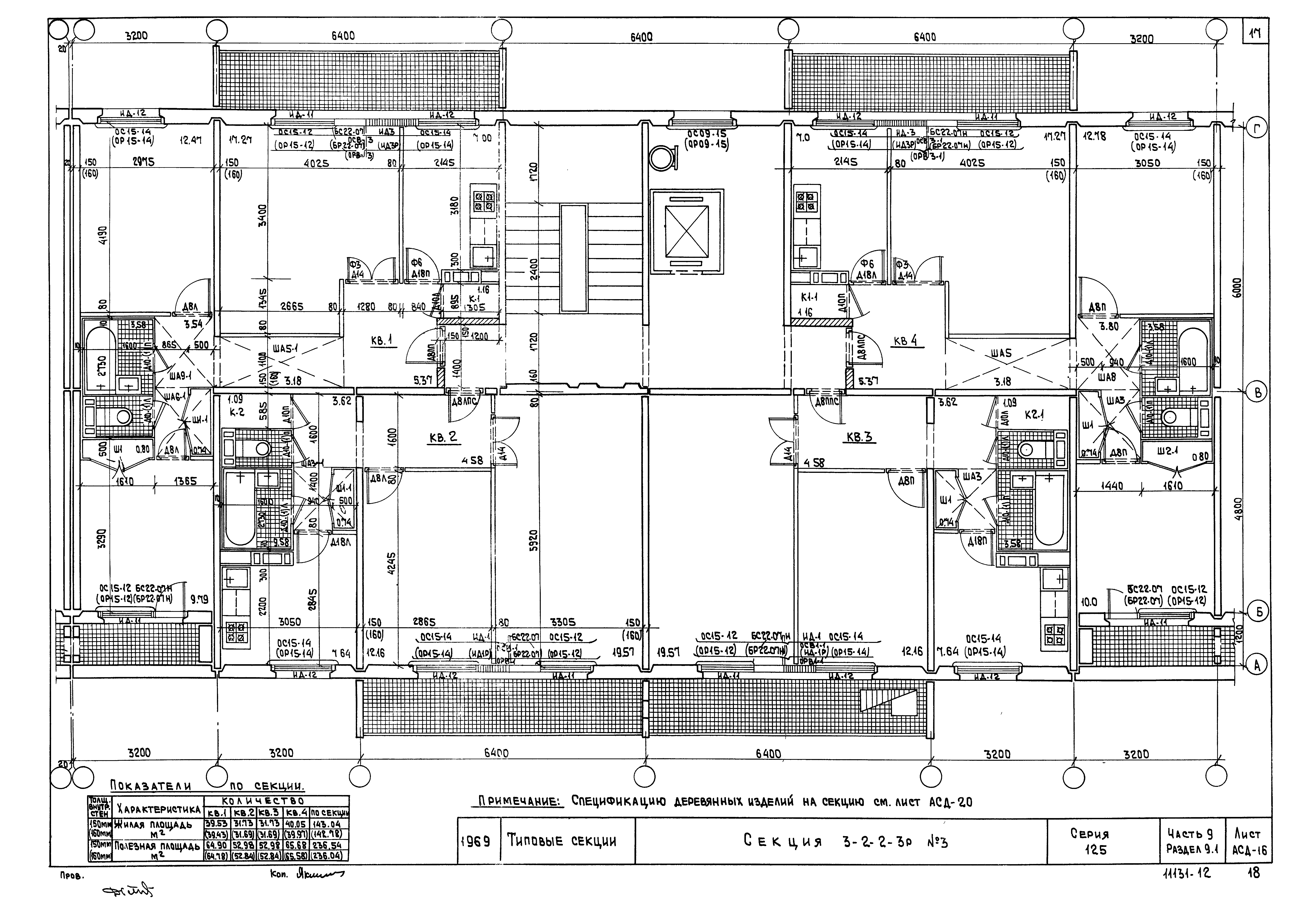
Секции
Спецификация деревянных изделий на секции
Секции
Спецификация деревянных изделий на секции
Установка оконных блоков и оконных вставок со спаренными переплетами в наружных стенах толщиной 250, 300 мм (вертикальный разрез)
Установка оконных блоков и оконных вставок с раздельными переплетами в наружных стенах толщиной 350, 400 мм (вертикальный разрез)
Узлы установки оконных и балконных блоков со спаренными и раздельными переплетами в наружных стенах толщиной 250 - 400 мм (разрез по горизонтали и вертикали)
Установка столярных блоков во внутренних стенах и перегородках
Вход Тамбур входа 5-ти этажного дома
Пожарный переход 5-ти этажного дома. Узлы
Вход Тамбур входа 9-ти этажного дома
Пожарный переход 9-ти этажного дома. Узлы
Детали полов
Приставная лоджия
Западающая лоджия
Размещение кухонного оборудования
Размещение оборудования в санузле и ванной
Узлы крепления слива западающей лоджии и межквартирной перегородки приставной лоджии
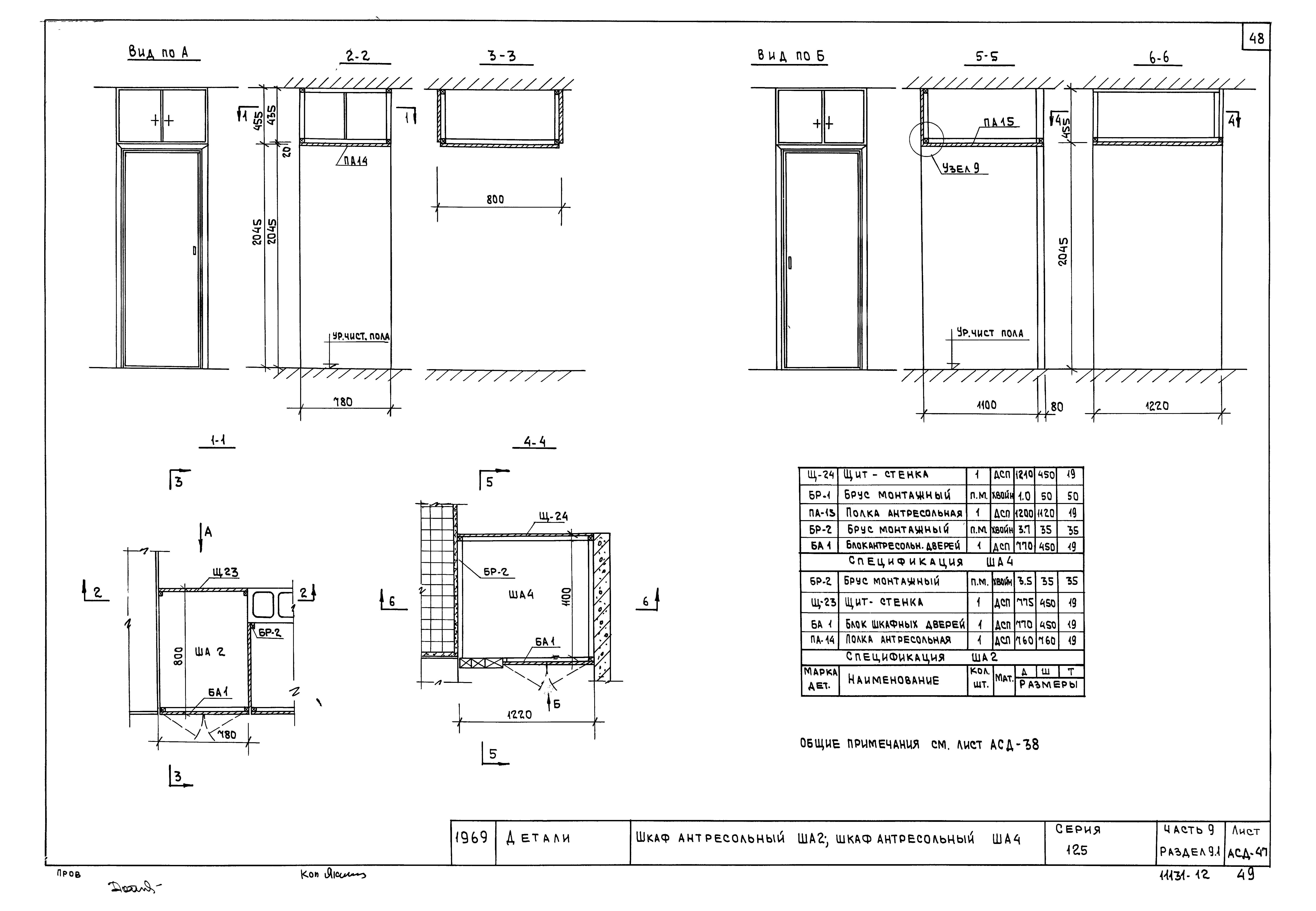
Встроенные шкафы, шкафы антресольные
Кладовые
Встроенные шкафы, антресоли и кладовые. Узлы с 1 по 24
Разработан: КБ по железобетону Госстроя РСФСР
Утверждён:28.08.1970 КБ по железобетону Госстроя РСФСР (69)
Расположен в:Техническая документация Строительство Справочные документы Типовые строительные конструкции, изделия и узлы Общероссийский строительный каталог Жилые здания для строительства в сельской местности Жилые дома панельные Серия 125
Типовой проект 111-125-2Типовой проект 111-125-2Типовой проект 111-125-2Типовой проект 111-125-2Типовой проект 111-125-2Типовой проект 111-125-2Типовой проект 111-125-2Типовой проект 111-125-2Типовой проект 111-125-2Типовой проект 111-125-2Типовой проект 111-125-2Типовой проект 111-125-2Типовой проект 111-125-2Типовой проект 111-125-2Типовой проект 111-125-2Типовой проект 111-125-2Типовой проект 111-125-2Типовой проект 111-125-2Типовой проект 111-125-2Типовой проект 111-125-2Типовой проект 111-125-2Типовой проект 111-125-2Типовой проект 111-125-2Типовой проект 111-125-2Типовой проект 111-125-2Типовой проект 111-125-2Типовой проект 111-125-2Типовой проект 111-125-2Типовой проект 111-125-2Типовой проект 111-125-2Типовой проект 111-125-2Типовой проект 111-125-2Типовой проект 111-125-2Типовой проект 111-125-2Типовой проект 111-125-2Типовой проект 111-125-2Типовой проект 111-125-2Типовой проект 111-125-2Типовой проект 111-125-2Типовой проект 111-125-2Типовой проект 111-125-2Типовой проект 111-125-2Типовой проект 111-125-2Типовой проект 111-125-2Типовой проект 111-125-2Типовой проект 111-125-2Типовой проект 111-125-2Типовой проект 111-125-2Типовой проект 111-125-2Типовой проект 111-125-2Типовой проект 111-125-2Типовой проект 111-125-2Типовой проект 111-125-2

© 2013 Ёшкин Кот :-) Карта сайта