Информационная система
«Ёшкин Кот»

Скачать базу одним архивом
Скачать обновления
История создания базы
Карта сайта

Скачать Типовой проект 111-125-2 Часть 0.1. Раздел 0.1-1. Архитектурно-строительные чертежи ниже отм. 0.00. Здание с ленточными фундаментами

Дата актуализации: 10.08.2017

Типовой проект 111-125-2

Часть 0.1. Раздел 0.1-1. Архитектурно-строительные чертежи ниже отм. 0.00. Здание с ленточными фундаментами

Обозначение: Типовой проект 111-125-2
Обозначение англ: 111-125-2
Статус:действует
Название рус.:Часть 0.1. Раздел 0.1-1. Архитектурно-строительные чертежи ниже отм. 0.00. Здание с ленточными фундаментами
Дата добавления в базу:01.09.2013
Дата актуализации:05.05.2017
Оглавление:Содержание альбома
Пояснительная записка
План ленточных фундаментов в осях 1 - 15
План ленточных фундаментов в осях 15 - 32
План ленточных фундаментов в осях 32 - 46
Монтажный план фундаментных и цокольных панелей в осях 1 - 32
Монтажный план фундаментных и цокольных панелей в осях 32 - 46
План технического подполья в осях 1 - 32
План технического подполья в осях 32 - 46
Сечения фундаментов 1-1 - 6-6
Сечения фундаментов 7-7 - 12-12
Сечения фундаментов 13-13 - 18-18
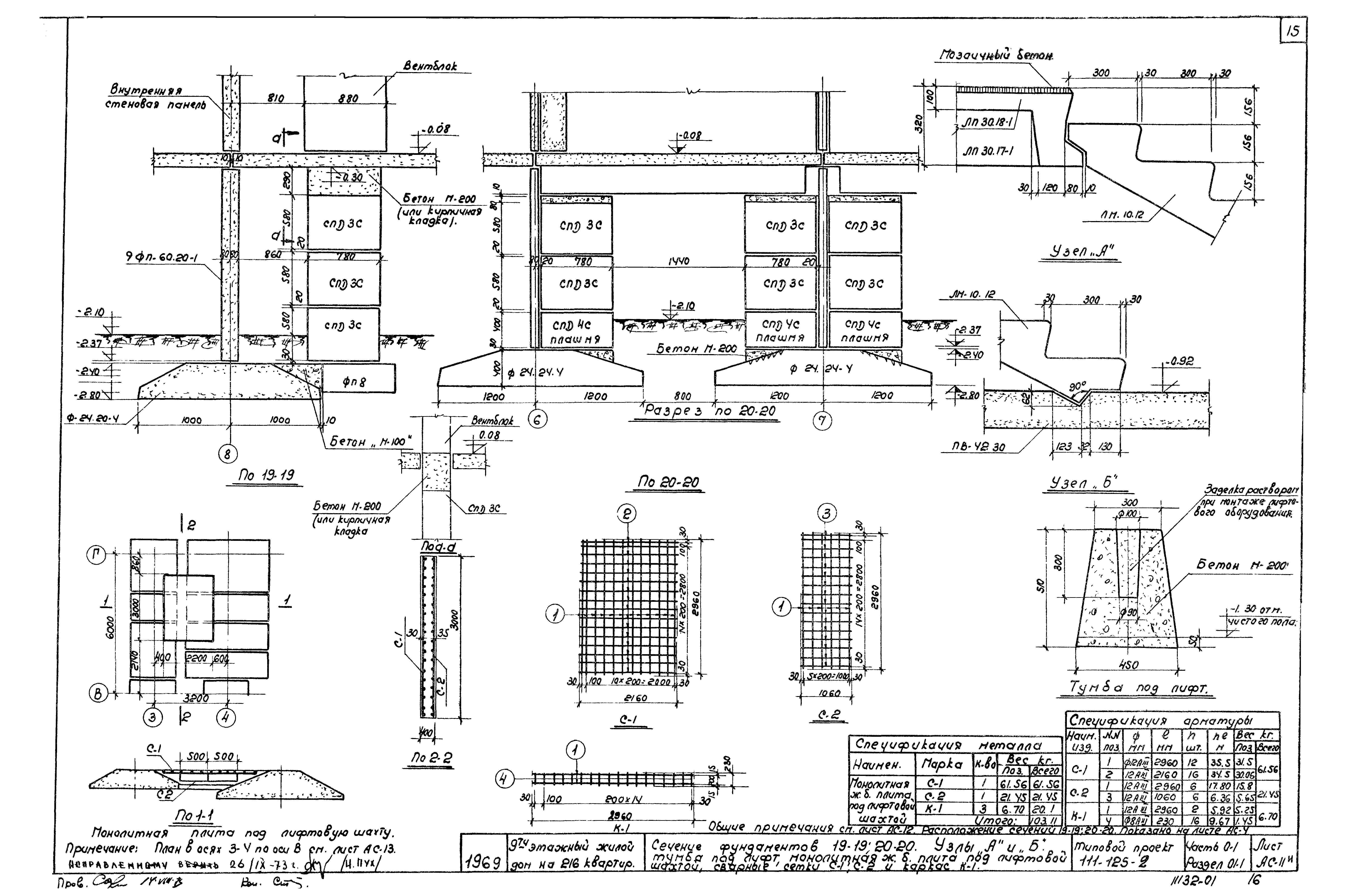
Сечения фундаментов 19-19, 20-20. Узлы "А" и "Б". Тумба под лифт, монолитная ж/б плита под лифтовой шахтой. Сварные сетки С-1, С-2 и каркас К-1
Разрезы I-I, II-II, III-III, IV-IV
Планы и разрезы по лестничной клетке
Разрезы по лестничной клетке
Планы и разрезы по пожарному переходу
Монтажные узлы 1а, 1б, 2а, 2б, 3а, 3б, 4а, 4б
Монтажные узлы 5а, 5б, 6а, 6б, 7а, 7б, 8а, 8б, 9а, 9б
Монтажные узлы 10а, 10б, 11а, 11б, 12а, 12б
Спецификация сборных элементов ниже отм. 0.00
План перекрытия над техническим подпольем при ширине панелей 2390 мм в осях 1 - 32
План перекрытия над техническим подпольем при ширине панелей 2390 мм в осях 32 - 46
Спецификация металлических и деревянных изделий. Спецификация сборных элементов ниже отм. 0.00
Разработан: КБ по железобетону Госстроя РСФСР
Утверждён:28.08.1970 КБ по железобетону Госстроя РСФСР (69)
Расположен в:Техническая документация Строительство Справочные документы Типовые строительные конструкции, изделия и узлы Общероссийский строительный каталог Жилые здания для строительства в сельской местности Жилые дома панельные Серия 125
Типовой проект 111-125-2Типовой проект 111-125-2Типовой проект 111-125-2Типовой проект 111-125-2Типовой проект 111-125-2Типовой проект 111-125-2Типовой проект 111-125-2Типовой проект 111-125-2Типовой проект 111-125-2Типовой проект 111-125-2Типовой проект 111-125-2Типовой проект 111-125-2Типовой проект 111-125-2Типовой проект 111-125-2Типовой проект 111-125-2Типовой проект 111-125-2Типовой проект 111-125-2Типовой проект 111-125-2Типовой проект 111-125-2Типовой проект 111-125-2Типовой проект 111-125-2Типовой проект 111-125-2Типовой проект 111-125-2Типовой проект 111-125-2Типовой проект 111-125-2Типовой проект 111-125-2Типовой проект 111-125-2

© 2013 Ёшкин Кот :-) Карта сайта