Информационная система
«Ёшкин Кот»

Скачать базу одним архивом
Скачать обновления
История создания базы
Карта сайта

Скачать Типовой проект Серия 86 Часть 10. Раздел 10.3-1. Изделия заводского изготовления. Деревянные изделия

Дата актуализации: 10.08.2017

Типовой проект Серия 86

Часть 10. Раздел 10.3-1. Изделия заводского изготовления. Деревянные изделия

Обозначение: Типовой проект Серия 86
Обозначение англ: Серия 86
Статус:не действует
Название рус.:Часть 10. Раздел 10.3-1. Изделия заводского изготовления. Деревянные изделия
Дата добавления в базу:01.09.2013
Дата актуализации:05.05.2017
Оглавление:Дверь входная в мусорокамеру ДВМ9-2/3
Щит сантехнический Ид-1, экран для приборов отопления ИД-2
Подстолье под мойку ВШ-27
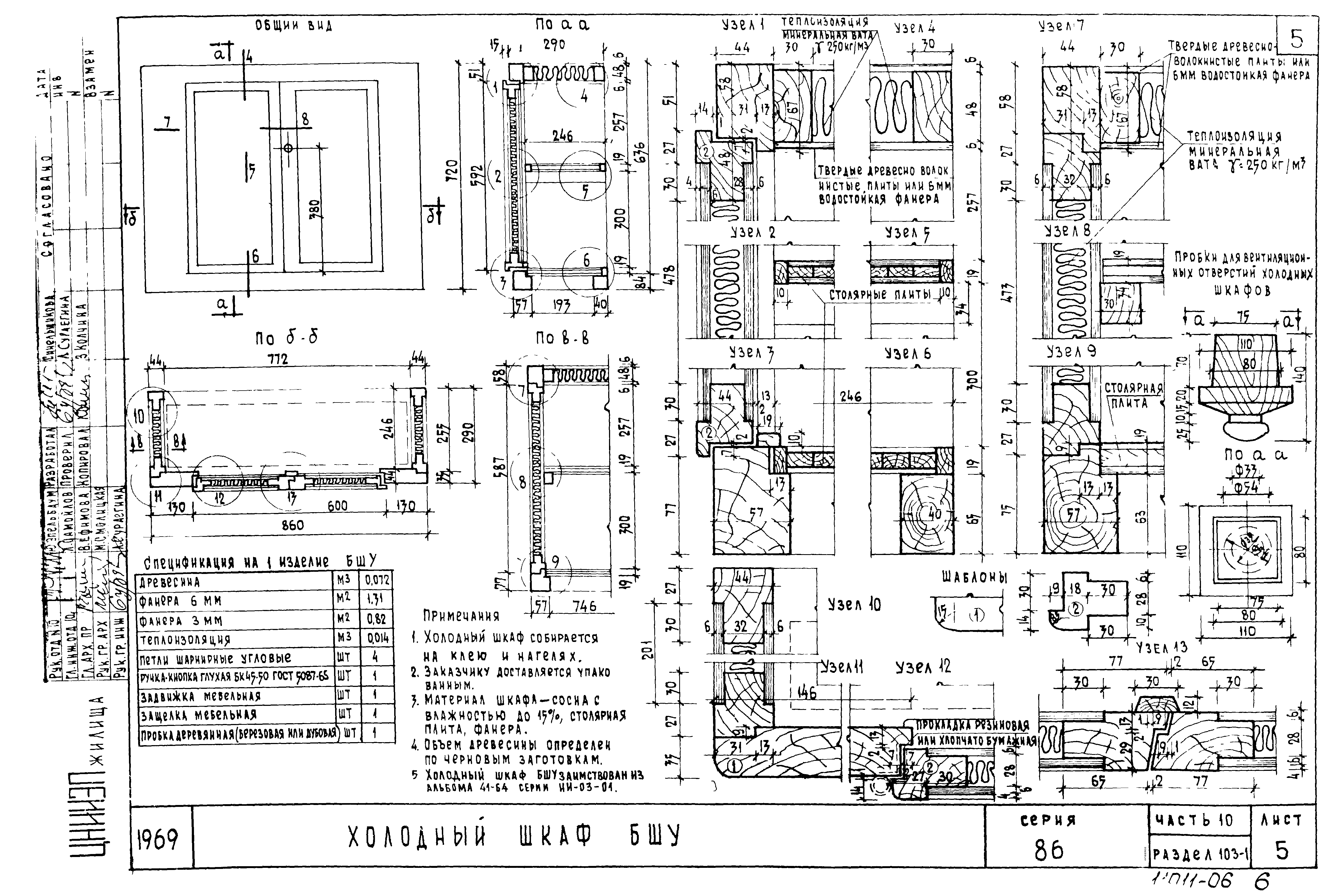
Холодный шкаф БШУ
Оконный блок (подвальный) ОБП2, абонентный почтовый ящик АШ
Блок дверец БДК, фрамужный блок Ф8
Фрамуги Ф-1, Ф-2, Ф-3 и перегородки тамбура ИД-6
Щит импоста ИД-4, щит сантехнический ИД-5. Карнизная доска ИД-3. Дверь ДВВ9-2/8
Двери ИДС-7, ИДС-7а
Разработан: ЦНИИЭП жилища
Утверждён:01.01.1969 ЦНИИЭП жилища (TsNIIEPzhilishcha )
Расположен в:Техническая документация Строительство Справочные документы Типовые строительные конструкции, изделия и узлы Общероссийский строительный каталог Жилые здания для строительства в городах и поселках городского типа Обычные условия Жилые дома со стенами из местных материалов Серия 86
Типовой проект Серия 86Типовой проект Серия 86Типовой проект Серия 86Типовой проект Серия 86Типовой проект Серия 86Типовой проект Серия 86Типовой проект Серия 86Типовой проект Серия 86Типовой проект Серия 86Типовой проект Серия 86Типовой проект Серия 86

© 2013 Ёшкин Кот :-) Карта сайта