Скачать Типовой проект 125-04 Часть 2. Раздел 2-1. Часть 3. Часть 4. Отопление и вентиляция выше отм. 0.00. Вариант с параметрами теплоносителя 105 - 70 градусов Цельсия. Водоснабжение, канализация и водостоки выше отм. 0.00. ГазоснабжениеДата актуализации: 10.08.2017 Типовой проект 125-04
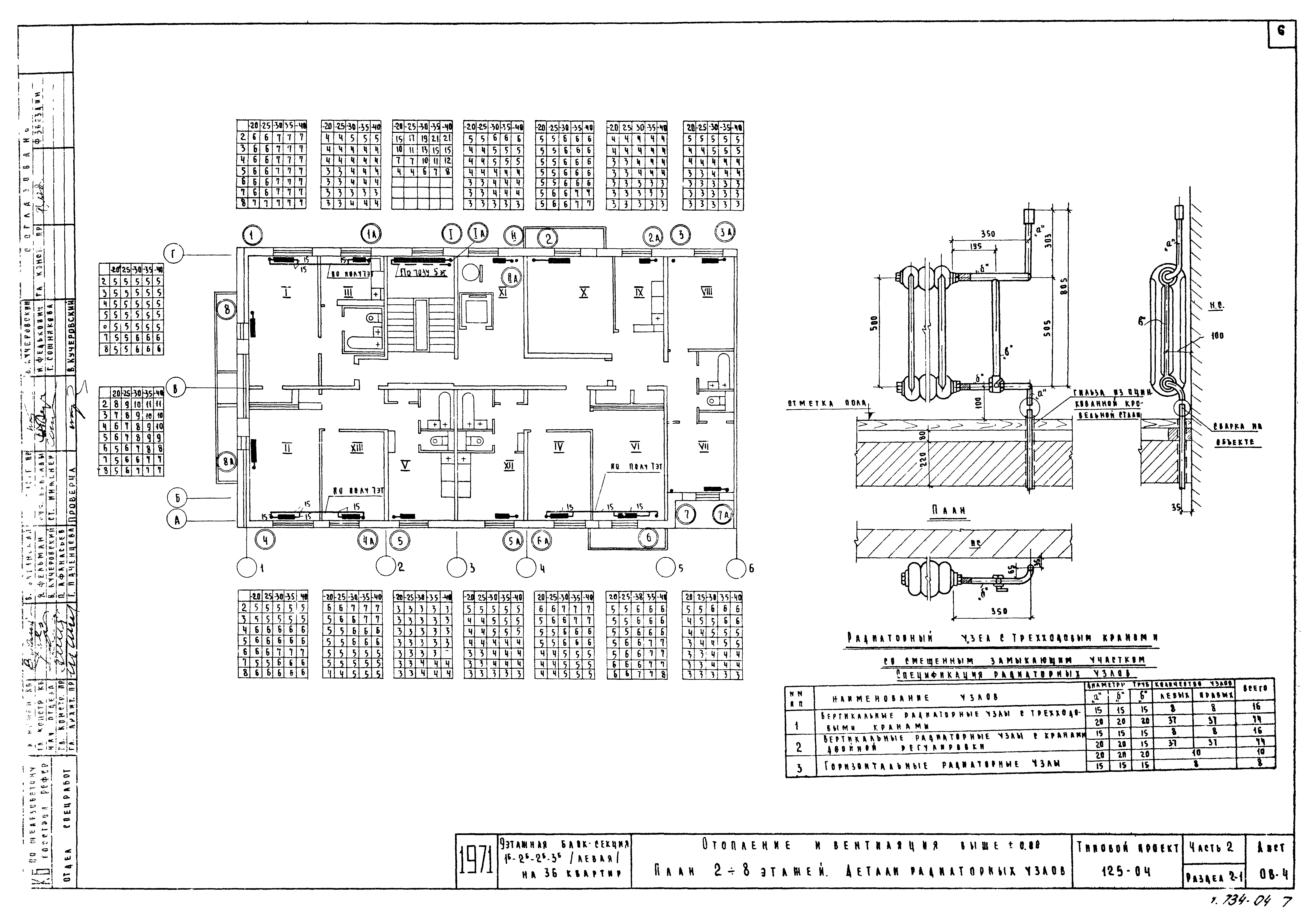
Часть 2. Раздел 2-1. Часть 3. Часть 4. Отопление и вентиляция выше отм. 0.00. Вариант с параметрами теплоносителя 105 - 70 градусов Цельсия. Водоснабжение, канализация и водостоки выше отм. 0.00. ГазоснабжениеОбозначение: | Типовой проект 125-04 | Обозначение англ: | 125-04 | Статус: | действует | Название рус.: | Часть 2. Раздел 2-1. Часть 3. Часть 4. Отопление и вентиляция выше отм. 0.00. Вариант с параметрами теплоносителя 105 - 70 градусов Цельсия. Водоснабжение, канализация и водостоки выше отм. 0.00. Газоснабжение | Дата добавления в базу: | 01.09.2013 | Дата актуализации: | 05.05.2017 | Оглавление: | Содержание альбома Часть 2. Раздел 2-1. Отопление и вентиляция выше отм. 0.00 Заглавный лист Таблица теплопотерь по отдельным помещениям. Основные данные проекта Планы отопления 1 и 9 этажей. Детали радиаторных узлов Планы отопления 2 - 8 этажей. Детали радиаторных узлов Схемы стояков отопления Фрагменты планов вентиляции Схемы вентиляции Часть 3. Водоснабжение, канализация и водостоки выше отм. 0.00 Заглавный лист Планы Схемы стояков Монтажный чертеж разобщенного санитарного узла. Правое исполнение Монтажный чертеж разобщенного санитарного узла. Левое исполнение Монтажный чертеж совмещенного санитарного узла. Левое исполнение Установка полотенцесушителя. Соединение корпуса ванны с трубопроводом. Расположение кухонных стояков Часть 4. Газоснабжение Общие сведения, указания по привязке и монтажу, спецификация План 1-го этажа. Схема газового ввода и стояков | Разработан: | КБ по железобетону Госстроя РСФСР
| Утверждён: | 30.12.1969 Госкомитет по гражданскому строительству и архитектуре при Госстрое СССР (National Committee on Nonindustrial Construction and Architecture, USSR Gosstroy 278)
| Расположен в: |
|
                  
|