Информационная система
«Ёшкин Кот»

Скачать базу одним архивом
Скачать обновления
История создания базы
Карта сайта

Скачать Типовой проект 125-03/1.2 УС.6. Устройства связи

Дата актуализации: 10.08.2017

Типовой проект 125-03/1.2

УС.6. Устройства связи

Обозначение: Типовой проект 125-03/1.2
Обозначение англ: 125-03/1.2
Статус:не определен законодательством
Название рус.:УС.6. Устройства связи
Дата добавления в базу:01.09.2013
Дата актуализации:05.05.2017
Дата введения:01.09.1983
Оглавление:Общие данные
Спецификация
Схема расположения сетей. Фрагмент плана 1-го этажа. Вариант пожарного прохода
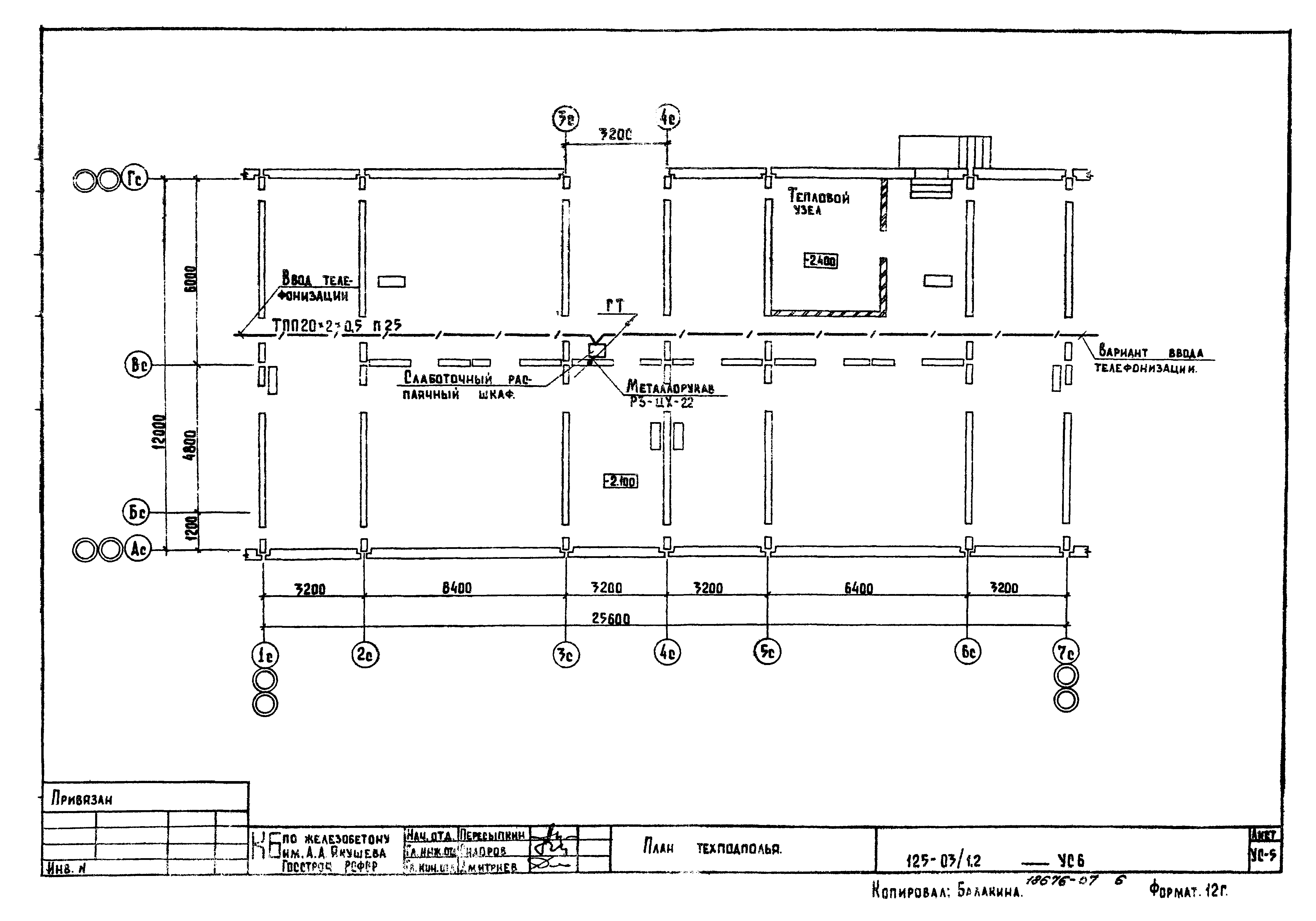
План техподполья
План типового этажа
План кровли. Чертеж узла
Разработан: КБ по железобетону им. А.А. Якушева
Утверждён: Госстрой РСФСР (Russian Federation Gosstroy )
Расположен в:Техническая документация Строительство Справочные документы Типовые строительные конструкции, изделия и узлы Общероссийский строительный каталог Жилые здания для строительства в городах и поселках городского типа Обычные условия Жилые дома панельные Серия 125
Типовой проект 125-03/1.2Типовой проект 125-03/1.2Типовой проект 125-03/1.2Типовой проект 125-03/1.2Типовой проект 125-03/1.2Типовой проект 125-03/1.2Типовой проект 125-03/1.2Типовой проект 125-03/1.2Типовой проект 125-03/1.2

© 2013 Ёшкин Кот :-) Карта сайта