| ||||||||||||||||||||||||||
Скачать Типовые материалы для проектирования 407-03-533.89 Альбом 1. Планы ОРУ, ячейки, узлыДата актуализации: 10.08.2017
|
| Обозначение: | Типовые материалы для проектирования 407-03-533.89 |
| Обозначение англ: | 407-03-533.89 |
| Статус: | cправочные материалы, мп, тпр |
| Название рус.: | Альбом 1. Планы ОРУ, ячейки, узлы |
| Дата добавления в базу: | 01.09.2013 |
| Дата актуализации: | 05.05.2017 |
| Дата введения: | 13.09.1989 |
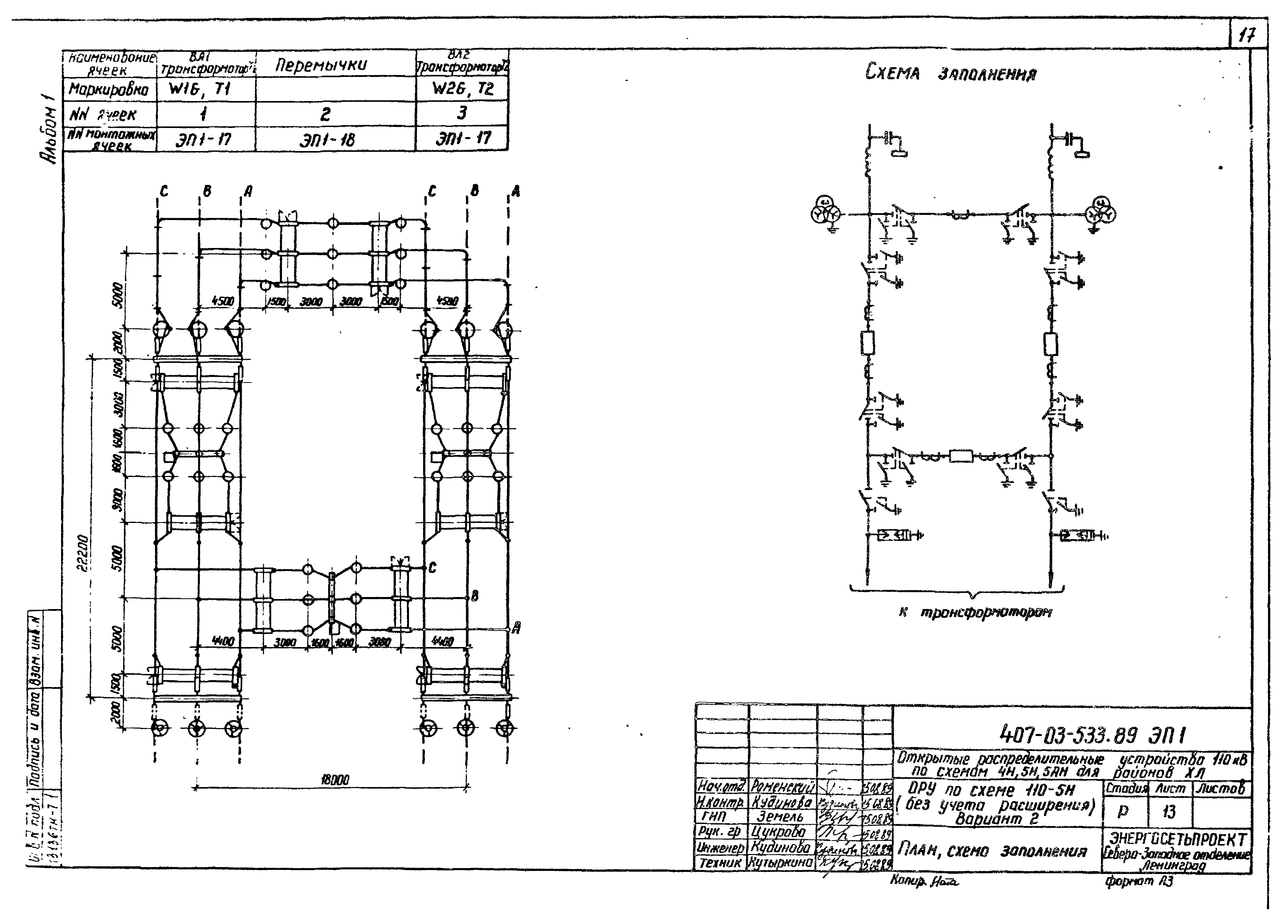
| Оглавление: | Пояснительная записка ОРУ по схеме 110-4Н (без учета расширения). План, схема заполнения ОРУ по схеме 110-4Н (без учета расширения). Спецификация оборудования и материалов ОРУ по схеме 110-4Н (без учета расширения). Ячейка трансформатора Т1 (Т2) ОРУ по схеме 110-4Н (без учета расширения). Перемычка ОРУ по схеме 110-5Н (без учета расширения). Вариант 1. План, схема заполнения ОРУ по схеме 110-5Н (без учета расширения). Вариант 1. Спецификация оборудования и материалов ОРУ по схеме 110-5Н (без учета расширения). Вариант 1. Ячейка ВЛ-трансформатор Т1 (Т2) ОРУ по схеме 110-5Н (без учета расширения). Вариант 1. Перемычки ОРУ по схеме 110-5Н (без учета расширения). Вариант 2. План, схема заполнения ОРУ по схеме 110-5Н (без учета расширения). Вариант 2. Спецификация оборудования и материалов ОРУ по схеме 110-5Н (без учета расширения). Вариант 2. Ячейка ВЛ-трансформатор Т1 (Т2) ОРУ по схеме 110-5Н (без учета расширения). Вариант 2. Перемычки ОРУ по схеме 110-5АН (без учета расширения). Вариант 1. План, схема заполнения ОРУ по схеме 110-5АН (без учета расширения). Вариант 1. Спецификация оборудования и материалов ОРУ по схеме 110-5АН (без учета расширения). Вариант 1. Ячейка ВЛ-трансформатор Т1 (Т2) ОРУ по схеме 110-5АН (без учета расширения). Вариант 1. Перемычки ОРУ по схеме 110-5АН (без учета расширения). Вариант 2. План, схема заполнения ОРУ по схеме 110-5АН (без учета расширения). Вариант 2. Спецификация оборудования и материалов ОРУ по схеме 110-5АН (без учета расширения). Вариант 2. Ячейка ВЛ-трансформатор Т1 (Т2) ОРУ по схеме 110-5АН (без учета расширения). Вариант 2. Перемычки ОРУ по схеме 110-4Н (с учетом расширения). План, схема заполнения ОРУ по схеме 110-4Н (с учетом расширения). Спецификация оборудования и материалов ОРУ по схеме 110-4Н (с учетом расширения). Ячейка трансформатора Т1 ОРУ по схеме 110-4Н (с учетом расширения). Ячейка трансформатора Т2 ОРУ по схеме 110-4Н (с учетом расширения). Ячейка ВЛ1 и шинные аппараты ОРУ по схеме 110-4Н (с учетом расширения). Ячейка ВЛ2 ОРУ по схеме 110-4Н (с учетом расширения). Перемычка и шинные аппараты ОРУ по схеме 110-5Н (с учетом расширения). План, схема заполнения ОРУ по схеме 110-5Н (с учетом расширения). Спецификация оборудования и материалов ОРУ по схеме 110-5Н (с учетом расширения). Ячейка ВЛ-трансформатор Т1 ОРУ по схеме 110-5Н (с учетом расширения). Ячейка ВЛ-трансформатор Т2 ОРУ по схеме 110-5Н (с учетом расширения). Перемычка ОРУ по схеме 110-5АН (с учетом расширения). План, схема заполнения ОРУ по схеме 110-5АН (с учетом расширения). Спецификация оборудования и материалов ОРУ по схеме 110-5АН (с учетом расширения). Ячейка трансформатора Т1 ОРУ по схеме 110-5АН (с учетом расширения). Ячейка трансформатора Т2 ОРУ по схеме 110-5АН (с учетом расширения). Ячейка ВЛ1 ОРУ по схеме 110-5АН (с учетом расширения). Ячейка ВЛ2 ОРУ по схеме 110-5АН (с учетом расширения). Перемычка ОРУ по схеме 110-4Н (с учетом расширения). Сборные шины ОРУ по схеме 110-5Н (с учетом расширения). Сборные шины ОРУ по схеме 110-5АН (с учетом расширения). Сборные шины Узлы присоединения проводов к выводам аппаратов |
| Разработан: | Северо-западное отделение института Энергосетьпроект |
| Утверждён: | 13.09.1989 Минэнерго СССР (USSR Minenergo 34) |
| Расположен в: |






























































