Скачать Типовой проект 903-1-251.87 Альбом I. Пояснительная записка. Тепломеханическое оборудование. Силовое электрооборудование и электроосвещение. Автоматизация и КИП. Архитектурно-строительные решения. Отопление и вентиляция. Водопровод и канализацияДата актуализации: 10.08.2017 Типовой проект 903-1-251.87
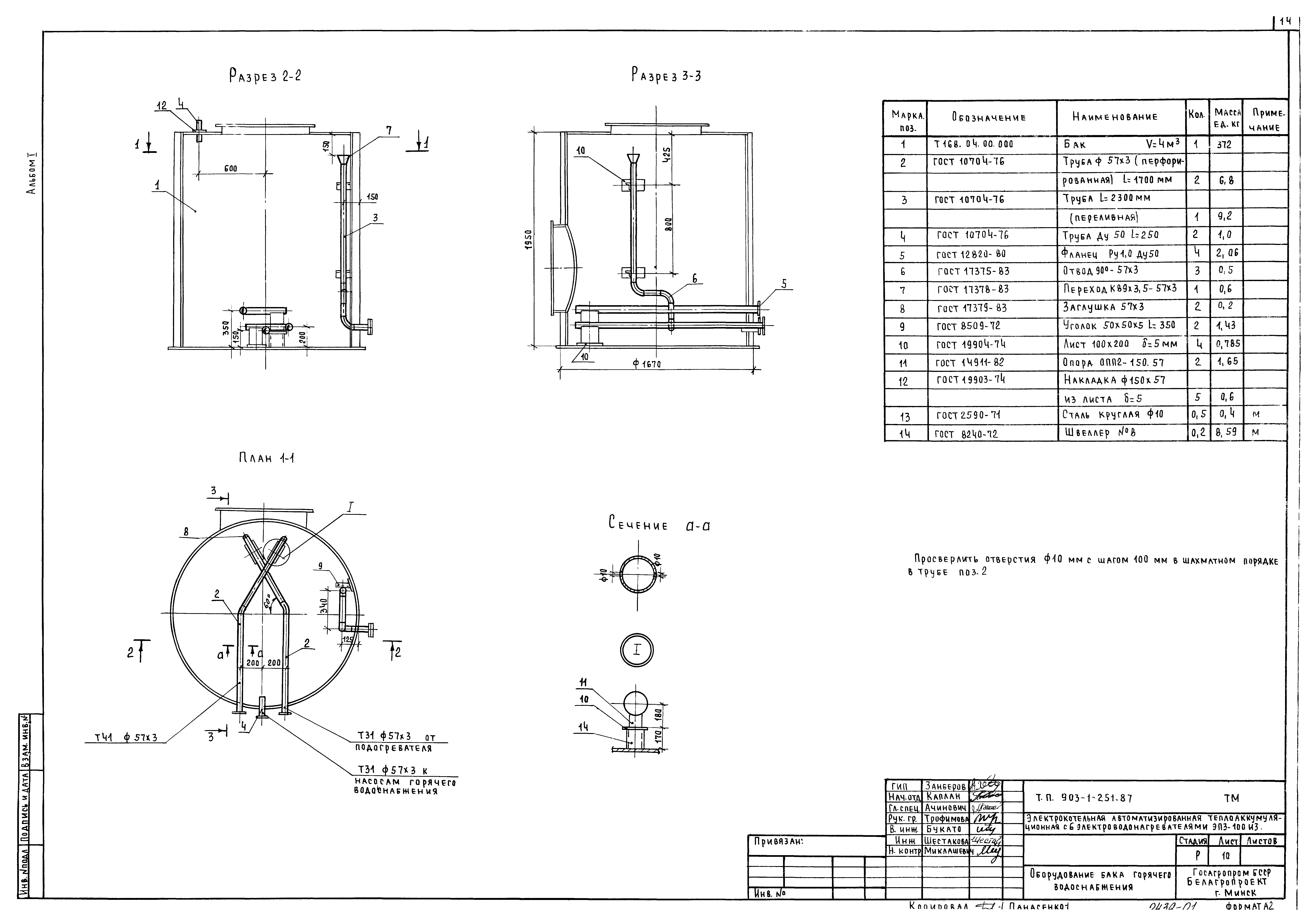
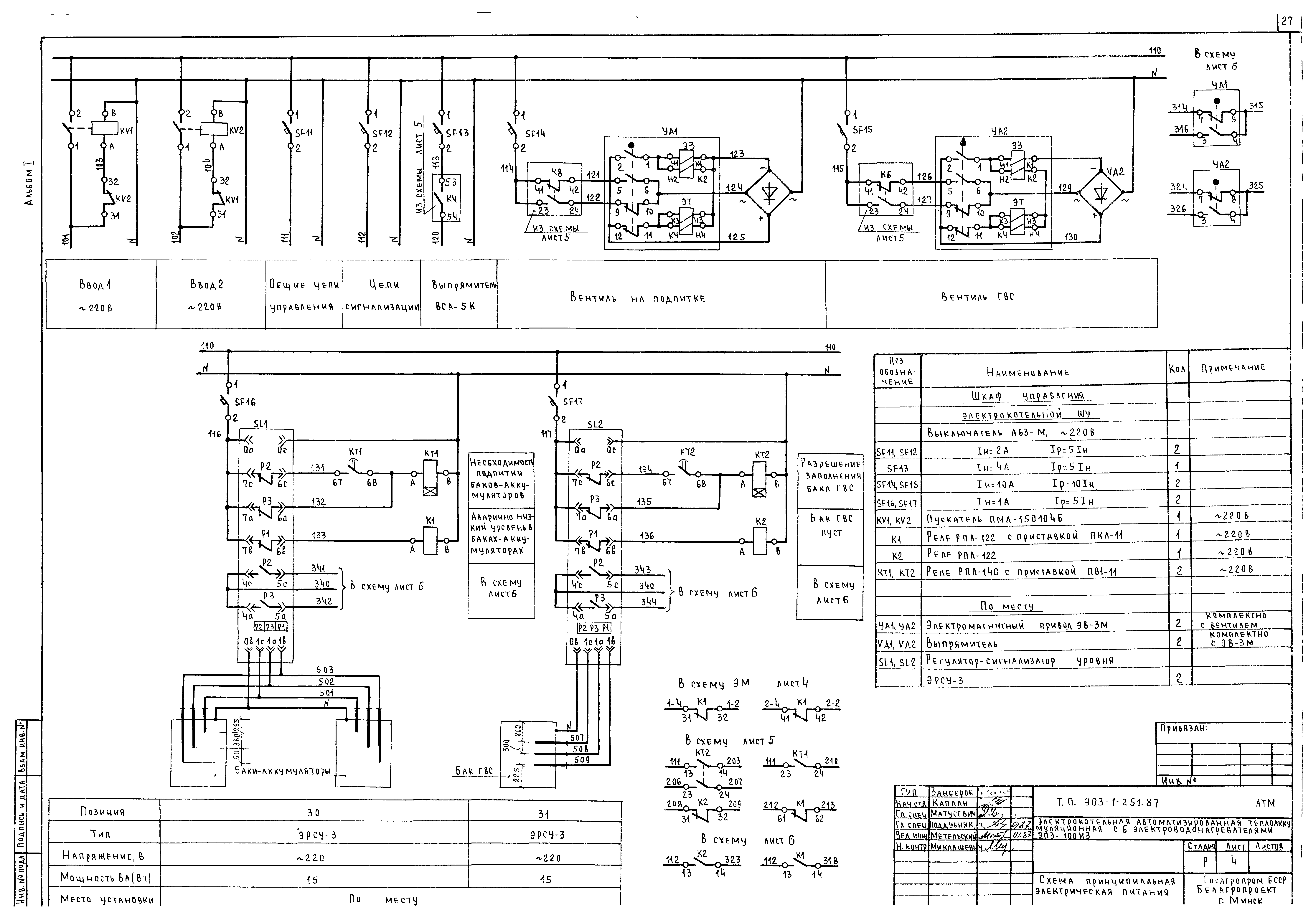
Альбом I. Пояснительная записка. Тепломеханическое оборудование. Силовое электрооборудование и электроосвещение. Автоматизация и КИП. Архитектурно-строительные решения. Отопление и вентиляция. Водопровод и канализацияОбозначение: | Типовой проект 903-1-251.87 | Обозначение англ: | 903-1-251.87 | Статус: | не определен законодательством | Название рус.: | Альбом I. Пояснительная записка. Тепломеханическое оборудование. Силовое электрооборудование и электроосвещение. Автоматизация и КИП. Архитектурно-строительные решения. Отопление и вентиляция. Водопровод и канализация | Дата добавления в базу: | 01.09.2013 | Дата актуализации: | 05.05.2017 | Дата введения: | 30.11.1987 | Оглавление: | Пояснительная записка Чертежи основного комплекта марки ТМ Общие данные Компоновка оборудования. План Компоновка оборудования. Разрезы 1-1, 2-2, 3-3 Тепловая схема Трубопроводы. План - вид сверху. Сечения а-а, б-б, в-в Трубопроводы. Разрезы 1-1, 2-2, 3-3, 4-4 Спецификация трубопроводов Оборудование аккумуляторного бака Оборудование бака горячего водоснабжения Установка шайбового дозатора Установка дозировочной шайбы Чертежи основного комплекта марки ЭМ Общие данные Питающая и распределительная сеть 380 В. Схема однолинейная Схема электрическая принципиальная управления ЭП3-100ИЗ Приводы 1…6. Схема принципиальная электрическая управления Схема подключения шкафа управления Схема подключения ящика управления Силовое электрооборудование. Электроосвещение. План расположения Чертежи основного комплекта марки АТМ Общие данные Схема функциональная Схема принципиальная электрическая питания Схема принципиальная электрическая управления Схема принципиальная электрическая сигнализации Схема соединений внешних проводок План расположения Чертежи основного комплекта марки АС Общие данные План на отм. 0.000. Разрез. Фасады Вариант с кирпичными стенами. План на отм. 0.000. Разрез. Фасады Схема расположения элементов фундаментов Схемы расположения колонн, балок, плит покрытия Схемы расположения элементов стеновых панелей Схемы расположения элементов перегородки. Узлы 1…8 Схема расположения фундаментов под оборудование Схема расположения опор под трубопроводы и основания под баки. Сечения 1-1, 2-2 Сечения 3-3…5-5 Схема расположения балок и элементов ограждения площадки Схема расположения труб Схемы блокировки электрокотельной с трансформаторной подстанцией Чертежи основного комплекта марки ОВ Общие данные. План на отм. 0.000. Схема систем отопления Чертежи основного комплекта марки ВК Общие данные План на отм. 0.000. Схемы систем В1, К3 | Разработан: | Белагропроект
| Утверждён: | 30.11.1987 Белагропроект (162)
| Издан: | ЦИТП Госстроя СССР (CITP, Gosstroy (USSR) 1988 г. )
| Расположен в: |
|
                                                
|