Скачать Типовой проект 294-3-36.85 Альбом II. Санитарно-техническая и электротехническая части, связь и сигнализация, автоматизация сантехустройствДата актуализации: 10.08.2017 Типовой проект 294-3-36.85
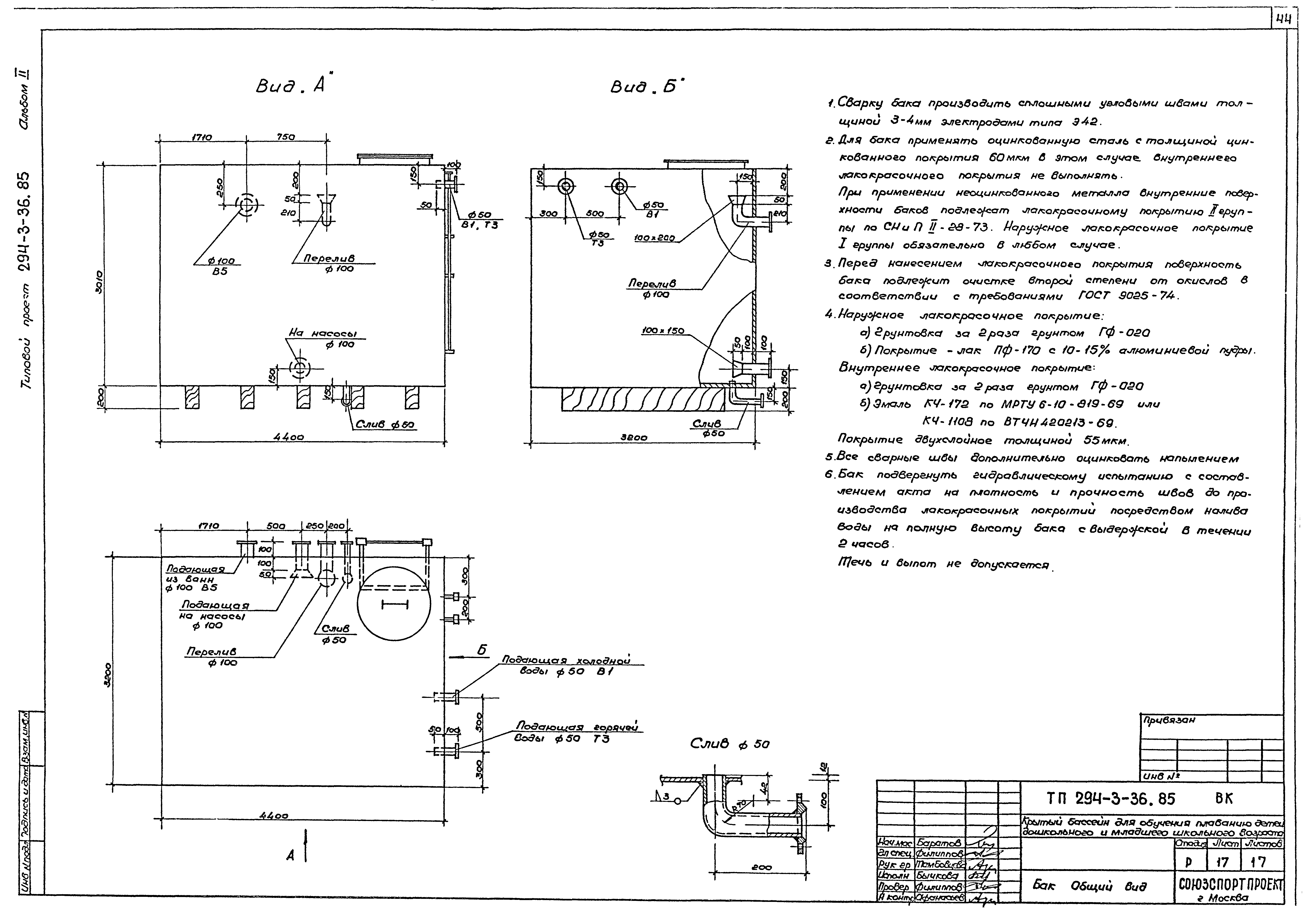
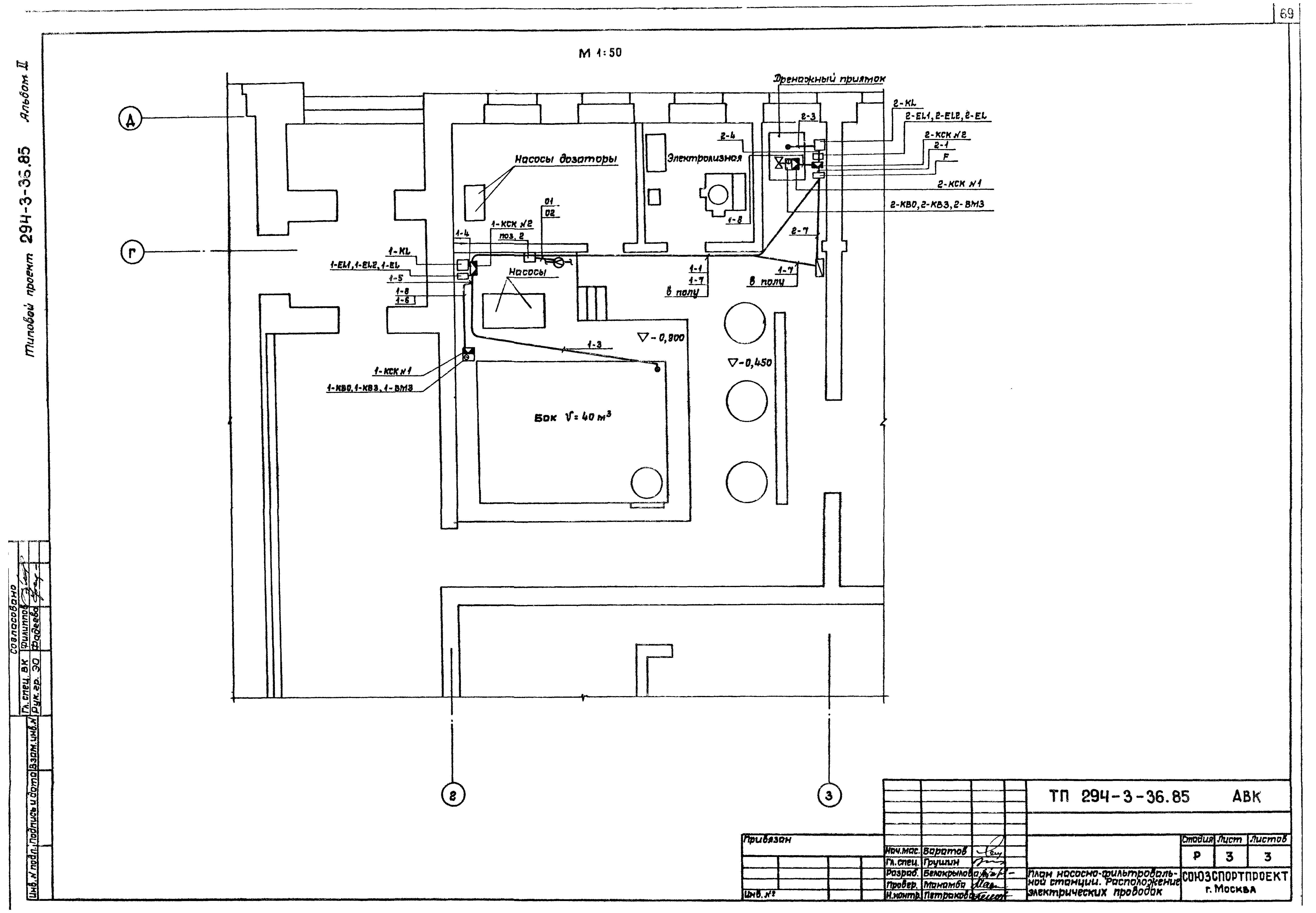
Альбом II. Санитарно-техническая и электротехническая части, связь и сигнализация, автоматизация сантехустройствОбозначение: | Типовой проект 294-3-36.85 | Обозначение англ: | 294-3-36.85 | Статус: | не определен законодательством | Название рус.: | Альбом II. Санитарно-техническая и электротехническая части, связь и сигнализация, автоматизация сантехустройств | Дата добавления в базу: | 01.09.2013 | Дата актуализации: | 05.05.2017 | Дата введения: | 03.10.1985 | Оглавление: | Чертежи основного комплекта марки ОВ Общие данные План 1-го этажа на отм. 0.000 План 2-го этажа на отм. 3.300 Схема отопления Схема обогрева обходных дорожек Установка систем П1, П2, П3, У1. План. Разрез 1-1 Установка систем П1, П2, П3, У1. Спецификация Установка систем В1, В2, В3, В4, В5. Разрезы 1-1, 2-2 Схема теплоснабжения калориферов Схема обвязки калориферов Схемы систем вентиляции П1, П2, П3, У1 Схемы систем вентиляции В1, В2, В4, ВЕ1, ВЕ2, ВЕ3. Спецификация установок В3, В4, В5, ВЕ1, ВЕ2, ВЕ3 Схемы систем вентиляции В3, В5. Спецификация установок В1, В2 Воздуховод из асбестоцементных листов. Общий вид и узлы. Технические требования Чертежи основного комплекта марки ТС Общие данные Принципиальная схема. Характеристика оборудования План на отм. 0.000. Разрез 1-1, 2-2 Аксонометрическая схема Вариант проекта. Принципиальная схема. Характеристика оборудования Вариант проекта. План на отм. 0.000. Разрез 1-1 Вариант проекта. Разрез 2-2, 3-3 Вариант проекта. Аксонометрическая схема Чертежи основного комплекта марки ВК Общие данные План на отм. 0.000 систем В1, Т3 План на отм. 3.300 систем В1, Т3 План на отм. 0.000 систем К1, К2 План на отм. 3.300 систем К1, К2 Схема систем В1, В3 Схема систем К1, К3 Схема системы К2 План на отм. - 0.460 и 0.900 в осях 2 - 3 и Г - Е с расстановкой оборудования Установка систем В4, В5 и К3 Разрезы 1-1; 2-2; 3-3 Схема установки систем В4, В5 и К3 Бак. Общий вид Чертежи основного комплекта марки АОВ Общие данные Приточные системы П1, П2. Вытяжные системы В1, ВЕ1, ВЕ2. Схемы автоматизации функциональные Приточная система П3. Вытяжные системы В3 - В5, ВЕ3. Воздушная завеса У1. Схемы автоматизации функциональные Приточная система П1 (П2, П3). Вытяжная система В1 (В2, В3, В4, В5). Принципиальная электрическая схема управления Приточная система П1 (П2). Принципиальная электрическая схема регулирования Приточная система П3. Принципиальная электрическая схема регулирования Принципиальная электрическая схема сигнализации Принципиальная электрическая схема управления выбросными заслонками ВЕ1 - ВЕ3 Воздушная завеса У1. Принципиальная электрическая схема. Схема соединений щита У1 Принципиальная электрическая схема. Управление электродвигателем Щит П3. Щит диспетчера. Схема соединений Щит П1 (П2). Схема соединений План венткамер и кровли. Расположение электрических проводок План 1-го этажа. Расположение электрических проводок Чертежи основного комплекта марки АТС Схема автоматизации функциональная Принципиальная электрическая схема регулирования отопления Принципиальная электрическая схема регулирования горячего водоснабжения Принципиальная электрическая схема управления насосами обогрева обходных дорожек Принципиальная электрическая схема питания Схема соединений План теплового пункта. Расположение электрических проводок Чертежи основного комплекта марки АВК Принципиальные электрические схемы управления задвижкой и контроля уровней в баке и дренажном приямке Схема соединений бака и дренажного приямка План насосно-фильтровальной станции. Расположение электрических проводок Чертежи основного комплекта марки ЭМ Общие данные. Силовое электрооборудование Вводно-распределительное устройство. Схема принципиальная однолинейная Силовое электрооборудование. Планы венткамер и теплового пункта Силовое электрооборудование насосно-фильтровальной станции. Принципиальная схема установки "Поток" Шкафы управления 1ШУ - 10ШУ. Схема принципиальная однолинейная Магистральные сети. План 1 этажа Магистральные сети. План 2 этажа. План кровли. Электроосвещение Электроосвещение. План 1-го этажа на отм. 0.000 Электроосвещение. План 2-го этажа на отм. 3.300 Задание заводу изготовителю. Вводно-распределительное устройство. Заказная схема Задание заводу изготовителю. Вводно-распределительное устройство. Заказная спецификация Чертежи основного комплекта марки СС Общие данные План расположения сетей связи. 1 этаж План расположения сетей связи. 2 этаж Чертежи основного комплекта марки ОПС Общие данные План расположения сети охранно-пожарной сигнализации 1 этаж отм. 0.000 План расположения сети охранно-пожарной сигнализации 2 этаж отм. 3.300 | Разработан: | Союзспортпроект Спорткомитета СССР
| Утверждён: | 28.11.1983 Госгражданстрой (Gosgrazhdanstroy 360)
| Расположен в: |
|
                                                                                          
|