Информационная система
«Ёшкин Кот»

Скачать базу одним архивом
Скачать обновления
История создания базы
Карта сайта

Скачать Типовой проект 284-4-107.85 Альбом II. Отопление и вентиляция. Водопровод и канализация. Электроснабжение и силовое электрооборудование. Автоматизация устройств инженерного оборудования. Связь и сигнализация

Дата актуализации: 10.08.2017

Типовой проект 284-4-107.85

Альбом II. Отопление и вентиляция. Водопровод и канализация. Электроснабжение и силовое электрооборудование. Автоматизация устройств инженерного оборудования. Связь и сигнализация

Обозначение: Типовой проект 284-4-107.85
Обозначение англ: 284-4-107.85
Статус:не определен законодательством
Название рус.:Альбом II. Отопление и вентиляция. Водопровод и канализация. Электроснабжение и силовое электрооборудование. Автоматизация устройств инженерного оборудования. Связь и сигнализация
Дата добавления в базу:01.09.2013
Дата актуализации:05.05.2017
Дата введения:13.02.1985
Оглавление:Чертежи основного комплекта марки ОВ
   Общие данные
   Планы на отм. - 2.900 и 6.600
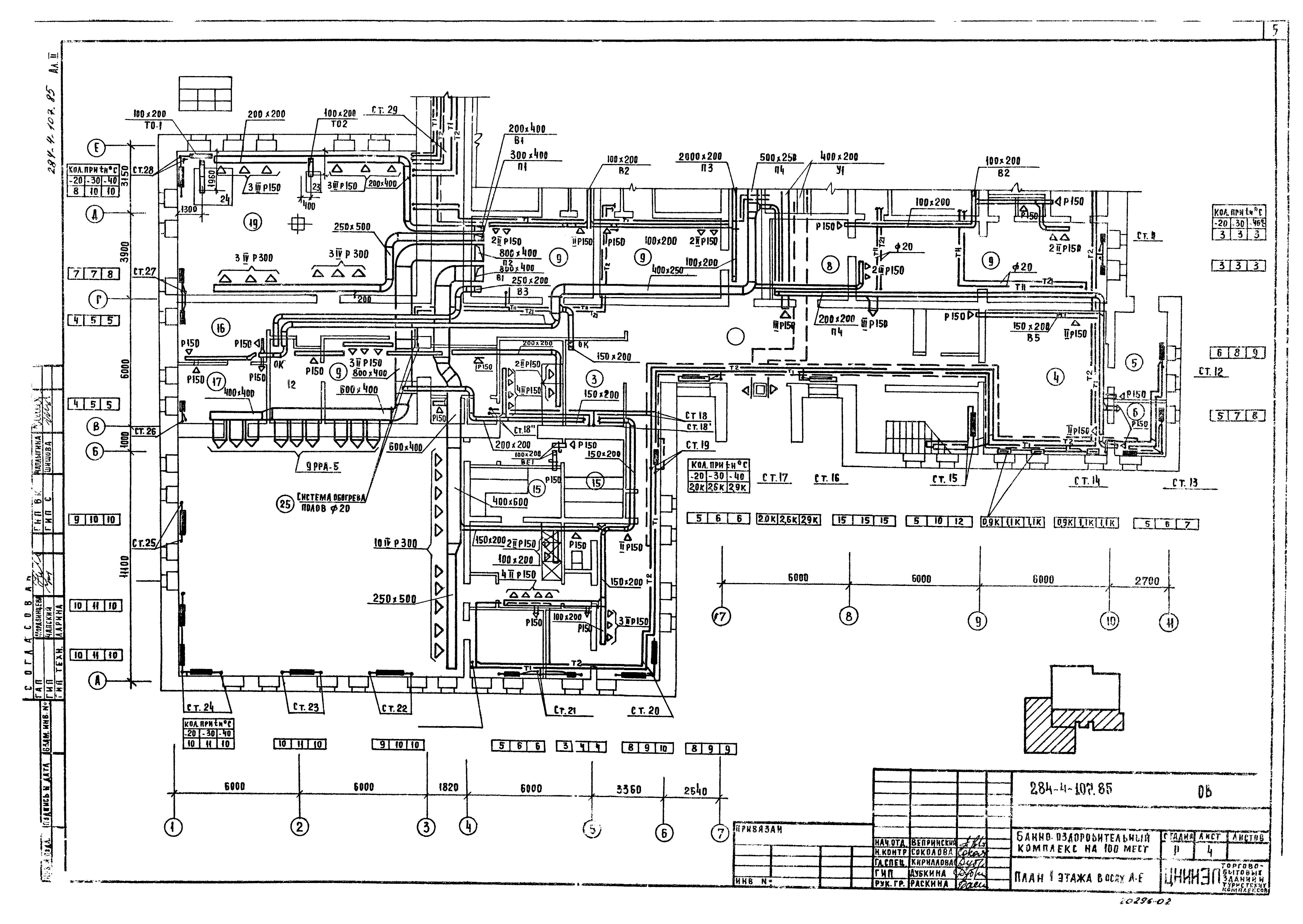
   План 1 этажа в осях А - Д
   План 1 этажа в осях Д - Л
   План 2 этажа в осях Б - Ж
   План 2 этажа в осях Ж - Л
   Фрагменты планов 1 этажа с обогревом полов. Экспликация помещений
   Схема системы отопления
   Схема системы обогрева полов
   Схема системы теплоснабжения. Узел управления
   Схемы систем П1 - П4
   Схемы систем В1 - В6; ВЕ1 - ВЕ10
   Установка систем П1, П2, В1, В3
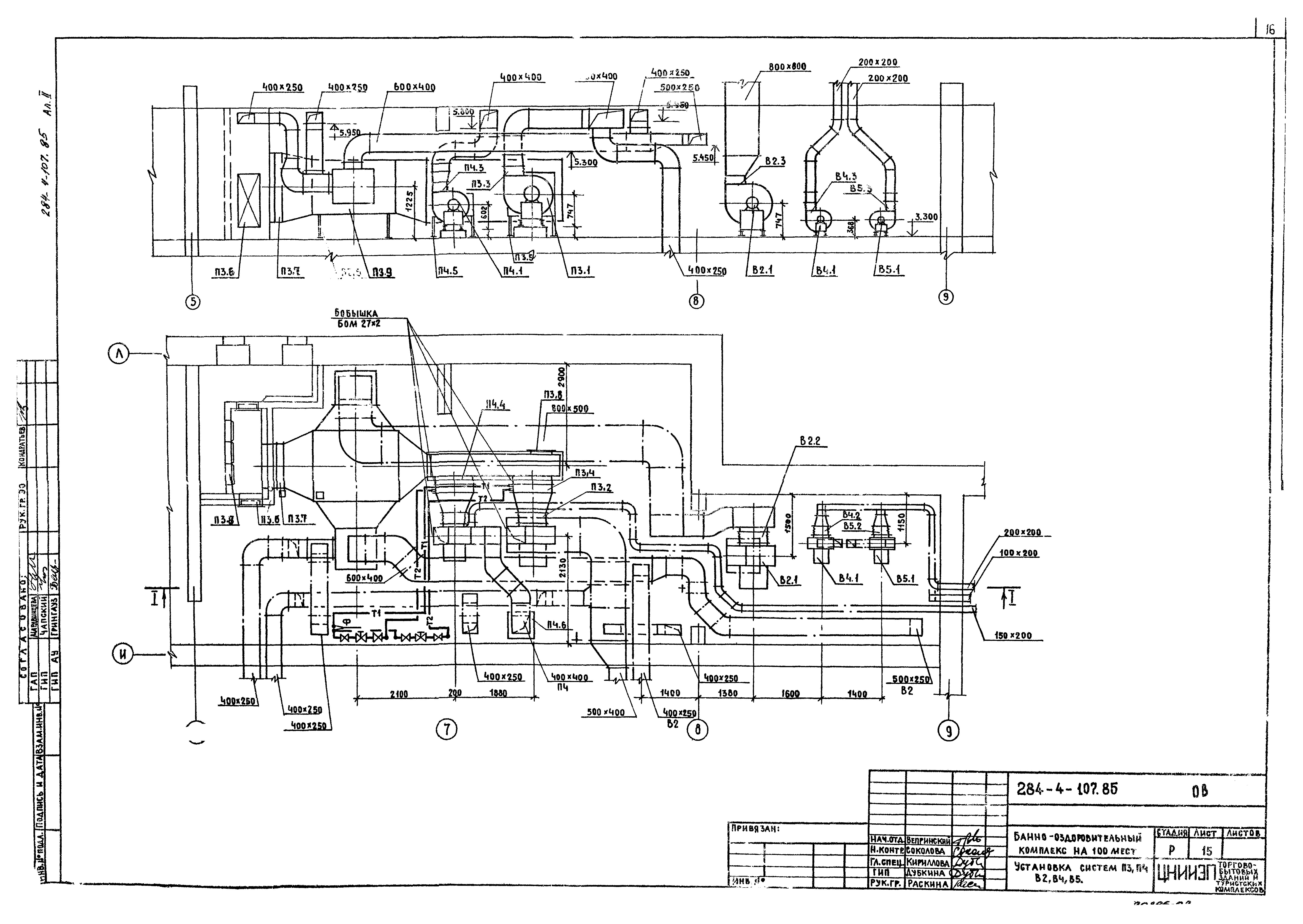
   Установка систем П3, П4, В2, В4, В5, В6
   Спецификация установок систем П1 - П4, У1
   Спецификация установок систем В1 - В6. Установка системы У1
   Установка водоподогревателей для бассейна и обогрева полов
Чертежи основного комплекта марки ОВН
   Ведомость чертежей
   Соединительные патрубки к теплоутилизатору ТКТ-10М
   Тепловая изоляция трубопроводов
   Лючок с заглушкой
Чертежи основного комплекта марки ВК
   Общие данные
   Водопровод. План 1 этажа в осях А - Е
   Водопровод. План 1 этажа в осях Д - Л
   Водопровод. План 2 этажа
   Водопровод. Схема В1, Т3
   Водопровод. Схема В4, Т3
   Насосно-фильтровальная станция. План в осях 14, В - Е
   Схема технологического водоснабжения
   Схема обвязки бассейна. Детали
   Хлораторная. План. Разрезы
   Схема обвязки хлораторов. Детали
   Канализация. План 1 этажа в осях А - Е
   Канализация. План 1 этажа в осях Д - Л
   Канализация. План 2 этажа
   Канализация. Схемы систем К3
   Канализация. Схемы систем К1, К2
Чертежи основного комплекта марки ЭОМ
   Общие данные
   Схема питающих сетей. Схема автоматического отключения вентиляции при пожаре
   План осветительных сетей. План силовых и питающих сетей на отм. - 3.300
   План осветительных сетей 1 этажа в осях А - Е; 1 - 11
   План осветительных сетей 1 этажа в осях Г - Л; 3 - 10
   План осветительных сетей 2 этажа
   План осветительных сетей. План силовых и питающих сетей на отм. 6.600
   План силовых и питающих сетей 1 этажа в осях А - Е; 1 - 11
   План силовых и питающих сетей 1 этажа в осях Г - Л; 3 - 10
   План силовых и питающих сетей 2 этажа
   Расчетная схема ЩС1; ЩС2
   Расчетная схема ЩС3; ЩС4
   Расчетная схема ЩС5; ЩС6
   Расчетная схема ЩС7; ЩС8
   Опросный лист
Чертежи основного комплекта марки АУ
   Общие данные
   Приточные системы П1 - П4. Схема функциональная
   Приточные системы П1 - П4. Схема электрическая принципиальная
   Приточные системы П1 - П4. Схема соединений внешних проводок
   Завеса У1. Схема функциональная, электрическая принципиальная, соединений внешних проводок
   Баки холодной и горячей воды. Схемы функциональная, электрическая, принципиальная
   Баки холодной и горячей воды. Схема соединений внешних проводок
   Приточные системы П1, П2. завеса У1. План расположения
   Приточные системы П3, П4. Баки горячей и холодной воды. План расположения
   Задвижка на водостоке. Схемы функциональная и электрическая принципиальная
   Задвижка на водостоке. Схема соединений внешних проводок
Чертежи основного комплекта марки СС
   Общие данные
   Связь и сигнализация. Схемы
   Связь и сигнализация. План 1 этажа в осях А - Е
   Связь и сигнализация. План 1 этажа в осях Д - Л
   Связь и сигнализация. План 2 этажа в осях Б - И
   Охранно-пожарная сигнализация. Схема. Схемы блокировки дверей
   Охранно-пожарная сигнализация. План 2 этажа в осях А - Е
   Охранно-пожарная сигнализация. План 1 этажа в осях Д - Л
   Охранно-пожарная сигнализация. План 2 этажа в осях Б - Ж
   Охранно-пожарная сигнализация. План 2 этажа в осях Ж - Л
   Охранно-пожарная сигнализация. План на отм. 6.600. Экспликация помещений
   Узлы скрытой проводки
Разработан: ЦНИИЭП торгово-бытовых зданий и туристских комплексов
Утверждён:14.01.1983 Госгражданстрой (Gosgrazhdanstroy 24)
Расположен в:Техническая документация Строительство Справочные документы Типовые строительные конструкции, изделия и узлы Общероссийский строительный каталог Общественные здания в городах и поселках городского типа Предприятия бытового обслуживания населения и коммунального хозяйства Бани, бани-прачечные с предприятиями бытового обслуживания, душевые, банно-оздоровительные комплексы
Типовой проект 284-4-107.85Типовой проект 284-4-107.85Типовой проект 284-4-107.85Типовой проект 284-4-107.85Типовой проект 284-4-107.85Типовой проект 284-4-107.85Типовой проект 284-4-107.85Типовой проект 284-4-107.85Типовой проект 284-4-107.85Типовой проект 284-4-107.85Типовой проект 284-4-107.85Типовой проект 284-4-107.85Типовой проект 284-4-107.85Типовой проект 284-4-107.85Типовой проект 284-4-107.85Типовой проект 284-4-107.85Типовой проект 284-4-107.85Типовой проект 284-4-107.85Типовой проект 284-4-107.85Типовой проект 284-4-107.85Типовой проект 284-4-107.85Типовой проект 284-4-107.85Типовой проект 284-4-107.85Типовой проект 284-4-107.85Типовой проект 284-4-107.85Типовой проект 284-4-107.85Типовой проект 284-4-107.85Типовой проект 284-4-107.85Типовой проект 284-4-107.85Типовой проект 284-4-107.85Типовой проект 284-4-107.85Типовой проект 284-4-107.85Типовой проект 284-4-107.85Типовой проект 284-4-107.85Типовой проект 284-4-107.85Типовой проект 284-4-107.85Типовой проект 284-4-107.85Типовой проект 284-4-107.85Типовой проект 284-4-107.85Типовой проект 284-4-107.85Типовой проект 284-4-107.85Типовой проект 284-4-107.85Типовой проект 284-4-107.85Типовой проект 284-4-107.85Типовой проект 284-4-107.85Типовой проект 284-4-107.85Типовой проект 284-4-107.85Типовой проект 284-4-107.85Типовой проект 284-4-107.85Типовой проект 284-4-107.85Типовой проект 284-4-107.85Типовой проект 284-4-107.85Типовой проект 284-4-107.85Типовой проект 284-4-107.85Типовой проект 284-4-107.85Типовой проект 284-4-107.85Типовой проект 284-4-107.85Типовой проект 284-4-107.85Типовой проект 284-4-107.85Типовой проект 284-4-107.85Типовой проект 284-4-107.85Типовой проект 284-4-107.85Типовой проект 284-4-107.85Типовой проект 284-4-107.85Типовой проект 284-4-107.85Типовой проект 284-4-107.85Типовой проект 284-4-107.85Типовой проект 284-4-107.85Типовой проект 284-4-107.85Типовой проект 284-4-107.85Типовой проект 284-4-107.85Типовой проект 284-4-107.85Типовой проект 284-4-107.85Типовой проект 284-4-107.85Типовой проект 284-4-107.85Типовой проект 284-4-107.85Типовой проект 284-4-107.85Типовой проект 284-4-107.85Типовой проект 284-4-107.85

© 2013 Ёшкин Кот :-) Карта сайта