Информационная система
«Ёшкин Кот»

Скачать базу одним архивом
Скачать обновления
История создания базы
Карта сайта

Скачать Типовой проект 284-4-107.85 Альбом I. Архитектурно-строительные решения. Технология. Витражи

Дата актуализации: 10.08.2017

Типовой проект 284-4-107.85

Альбом I. Архитектурно-строительные решения. Технология. Витражи

Обозначение: Типовой проект 284-4-107.85
Обозначение англ: 284-4-107.85
Статус:не определен законодательством
Название рус.:Альбом I. Архитектурно-строительные решения. Технология. Витражи
Дата добавления в базу:01.09.2013
Дата актуализации:05.05.2017
Дата введения:13.02.1985
Оглавление:Чертежи основного комплекта марки АС1
   Общие данные
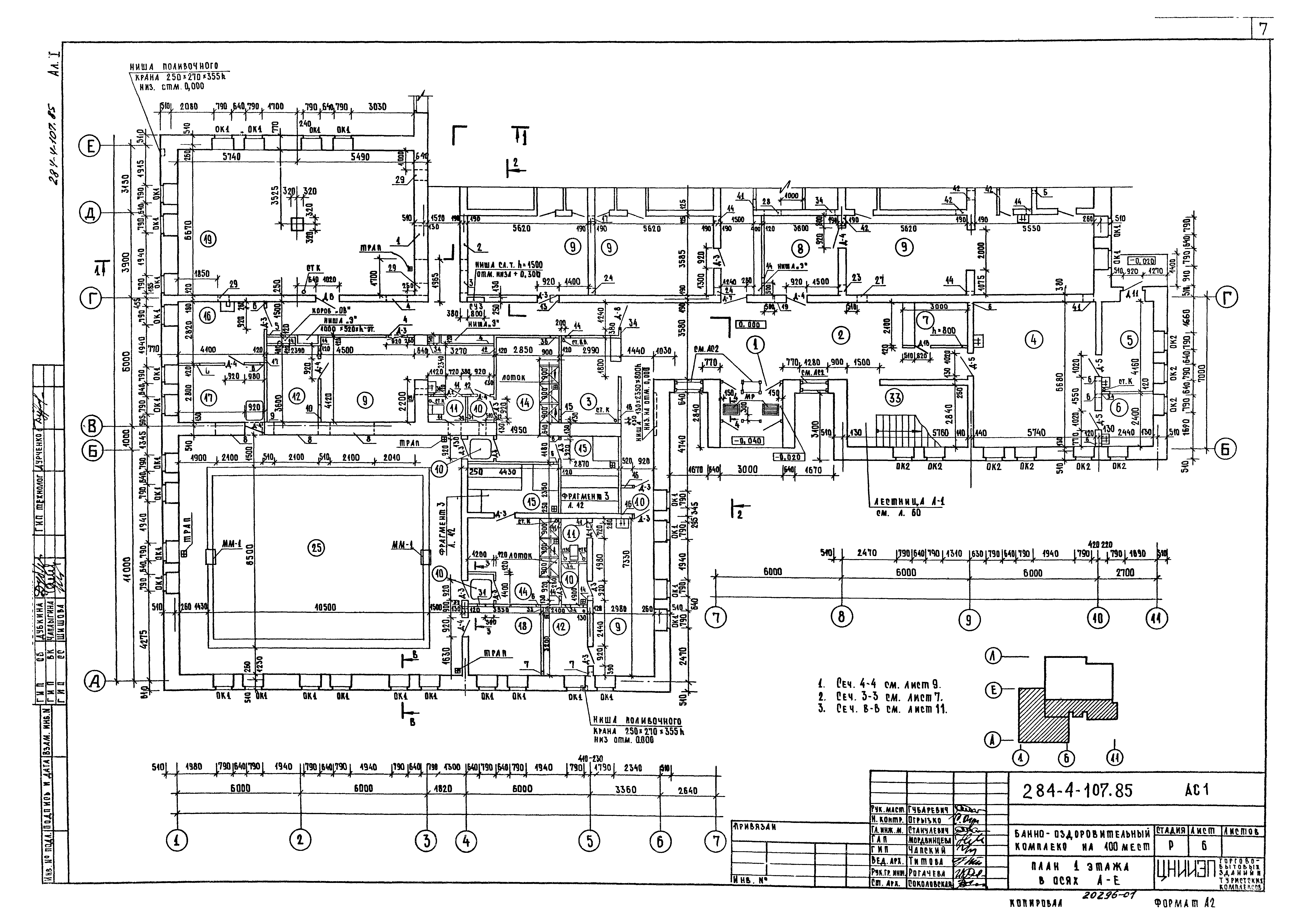
   План 1 этажа в осях А - Е
   План 1 этажа в осях Д - Л
   План 2 этажа в осях Б - Ж
   План 2 этажа в осях Ж - Л
   План на отм. 6.600. План подвесного потолка. Спецификация элементов подвесного потолка
   План подвала
   Фрагменты планов 1 - 5
   Узлы и спецификация к фрагментам планов
   План крыши. Узлы, спецификация
   Спецификация элементов планов. Экспликация отверстий
   Разрез 1-1
   Разрез 2-2
   Фасады 1- 11; Л - А
   Фасады 11 - 1; А - Л
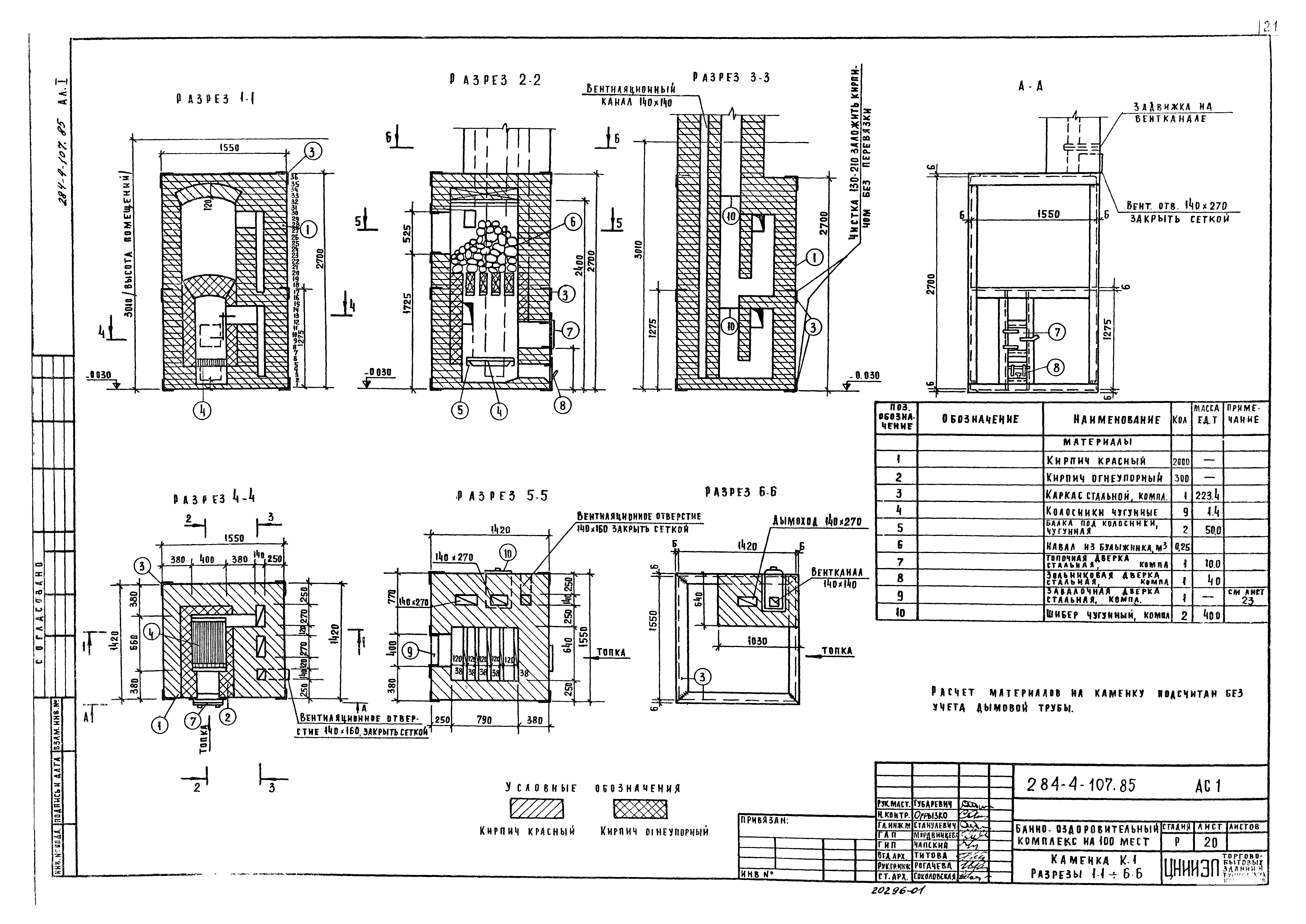
   Каменка К-1, разрезы 1-1 - 6-6
   Каменка К-1, планы порядовок
   Каменка К-1, детали каркаса каменки
   Каменка К-1, каркас
   Схема расчетных нагрузок на фундаменты
   Схема расположения элементов фундаментов в осях А - Е
   Схема расположения элементов фундаментов в осях Д - Л
   Фундаменты. Развертка стен и сечения 1-1 - 3-3, 10-10 - 15-15
   Фундаменты. Развертка стен и сечения 4-4 - 9-9; 16-16; 17-17
   Фундаменты. Сечения 18-18 - 27-27
   Фундаменты. Сечения 37-37
   Сечения по подпольным каналам
   Фундаменты под оборудование
   Схема расположения закладных деталей для крепления витражей
   Сечения и узлы к схемам расположения закладных деталей для крепления витражей
   Схема нагрузок на перекрытия
   Спецификация к схемам расположения элементов перекрытий
   Схема расположения элементов перекрытий над 1 этажом в осях А - Е
   Схема расположения элементов перекрытий над 1 этажом в осях Д - Л
   Схема расположения элементов перекрытий над 2 этажом в осях Б - Ж
   Схема расположения элементов перекрытий над 2 этажом в осях Ж - Л
   Схема расположения элементов покрытия и перекрытия над подвалом
   Узлы и сечения к схемам расположения элементов перекрытия
   Бассейн. Опалубочный чертеж. Узлы I - V
   Бассейн. Армирование днища
   Бассейн. Армирование стен бассейна
   Бассейн. Узлы установки закладных деталей
   Спецификация монолитных участков микробассейнов
   Микробассейны 1, 1а, УМ-4, УМ-4-1. Опалубка
   Микробассейны УМ-5. Опалубка
   Микробассейн 1. Армирование
   Микробассейны УМ-4, УМ-4-1. Армирование
   Микробассейн УМ-5. Армирование
   Сводная спецификация элементов монолитных участков
   Монолитные участки УМ1, УМ2. Сечения 1-1 - 7-7
   Монолитный участок УМ3. Сечения 8-8 - 17-17
   Сечения 18-18 - 20-20
   Схемы расположения элементов лестниц Л1, Л2
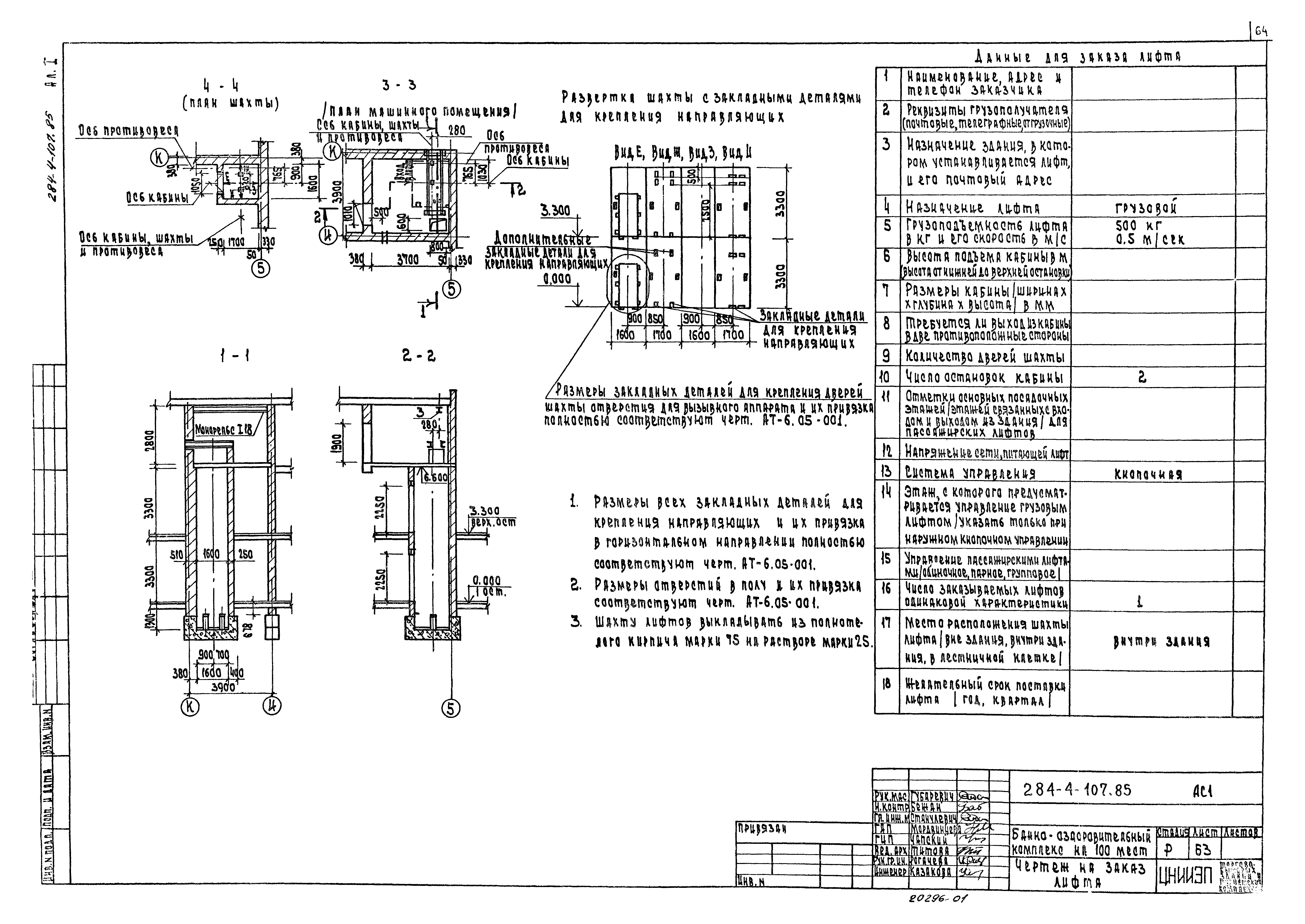
   Лифт. Схема расположения элементов машинного помещения
   Развертка стен грузопассажирского лифта Q = 500
   Чертеж на заказ лифта
   Схема расположения элементов перемычек 1-го этажа в осях 3 - 10; Д - Л
   Схема расположения элементов перемычек 1-го этажа в осях 3 - 11; Б - Ж
   Схема расположения элементов перемычек 2-го этажа в осях 3 - 11; Ж - К
   Схема расположения элементов перемычек 2-го этажа в осях 3 - 11; Б - Ж
   Схема расположения элементов перемычек чердака и подвала
   Ведомость перемычек
   Спецификация к схемам расположения элементов перемычек
   Сводная спецификация элементов перемычек
   Схемы расположения перегородок кабин душевых
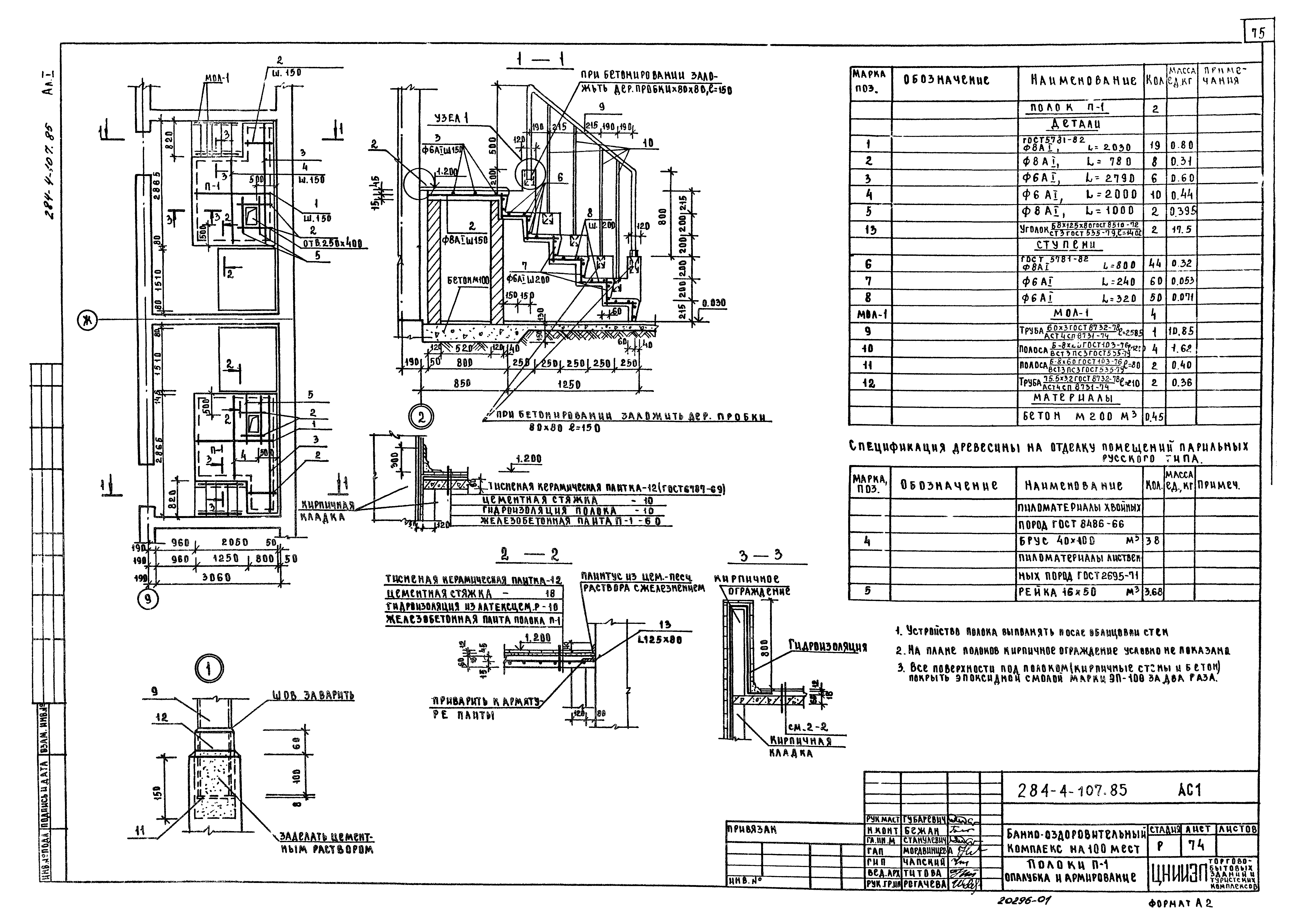
   Полоки П-1. Опалубка. Армирование
   Конструкция звена асбестоцементного воздуховода
Чертежи основного комплекта марки ТХМ
   Общие данные
   План 1 этажа в осях 1 - 11; А - Е
   План 1 этажа в осях 3 - 10; Д - Л
   План 2 этажа в осях 3 - 11; Б - Ж
   План 2 этажа в осях 3 - 10; Ж - Л
Чертежи основного комплекта марки АС2
   Общие данные
   Спецификация элементов витражей
   Схема расположения элементов витражей и тамбура
   Монтажные узлы 1, 2, 3, 4, 5, 6, 7
Разработан: ЦНИИЭП торгово-бытовых зданий и туристских комплексов
Утверждён:14.01.1983 Госгражданстрой (Gosgrazhdanstroy 24)
Расположен в:Техническая документация Строительство Справочные документы Типовые строительные конструкции, изделия и узлы Общероссийский строительный каталог Общественные здания в городах и поселках городского типа Предприятия бытового обслуживания населения и коммунального хозяйства Бани, бани-прачечные с предприятиями бытового обслуживания, душевые, банно-оздоровительные комплексы
Типовой проект 284-4-107.85Типовой проект 284-4-107.85Типовой проект 284-4-107.85Типовой проект 284-4-107.85Типовой проект 284-4-107.85Типовой проект 284-4-107.85Типовой проект 284-4-107.85Типовой проект 284-4-107.85Типовой проект 284-4-107.85Типовой проект 284-4-107.85Типовой проект 284-4-107.85Типовой проект 284-4-107.85Типовой проект 284-4-107.85Типовой проект 284-4-107.85Типовой проект 284-4-107.85Типовой проект 284-4-107.85Типовой проект 284-4-107.85Типовой проект 284-4-107.85Типовой проект 284-4-107.85Типовой проект 284-4-107.85Типовой проект 284-4-107.85Типовой проект 284-4-107.85Типовой проект 284-4-107.85Типовой проект 284-4-107.85Типовой проект 284-4-107.85Типовой проект 284-4-107.85Типовой проект 284-4-107.85Типовой проект 284-4-107.85Типовой проект 284-4-107.85Типовой проект 284-4-107.85Типовой проект 284-4-107.85Типовой проект 284-4-107.85Типовой проект 284-4-107.85Типовой проект 284-4-107.85Типовой проект 284-4-107.85Типовой проект 284-4-107.85Типовой проект 284-4-107.85Типовой проект 284-4-107.85Типовой проект 284-4-107.85Типовой проект 284-4-107.85Типовой проект 284-4-107.85Типовой проект 284-4-107.85Типовой проект 284-4-107.85Типовой проект 284-4-107.85Типовой проект 284-4-107.85Типовой проект 284-4-107.85Типовой проект 284-4-107.85Типовой проект 284-4-107.85Типовой проект 284-4-107.85Типовой проект 284-4-107.85Типовой проект 284-4-107.85Типовой проект 284-4-107.85Типовой проект 284-4-107.85Типовой проект 284-4-107.85Типовой проект 284-4-107.85Типовой проект 284-4-107.85Типовой проект 284-4-107.85Типовой проект 284-4-107.85Типовой проект 284-4-107.85Типовой проект 284-4-107.85Типовой проект 284-4-107.85Типовой проект 284-4-107.85Типовой проект 284-4-107.85Типовой проект 284-4-107.85Типовой проект 284-4-107.85Типовой проект 284-4-107.85Типовой проект 284-4-107.85Типовой проект 284-4-107.85Типовой проект 284-4-107.85Типовой проект 284-4-107.85Типовой проект 284-4-107.85Типовой проект 284-4-107.85Типовой проект 284-4-107.85Типовой проект 284-4-107.85Типовой проект 284-4-107.85Типовой проект 284-4-107.85Типовой проект 284-4-107.85Типовой проект 284-4-107.85Типовой проект 284-4-107.85Типовой проект 284-4-107.85Типовой проект 284-4-107.85Типовой проект 284-4-107.85Типовой проект 284-4-107.85Типовой проект 284-4-107.85Типовой проект 284-4-107.85Типовой проект 284-4-107.85Типовой проект 284-4-107.85

© 2013 Ёшкин Кот :-) Карта сайта