Скачать Типовой проект 271-13-120.86 Альбом I. Архитектурно-строительные решения. Технология, механизация. ВитражиДата актуализации: 10.08.2017 Типовой проект 271-13-120.86
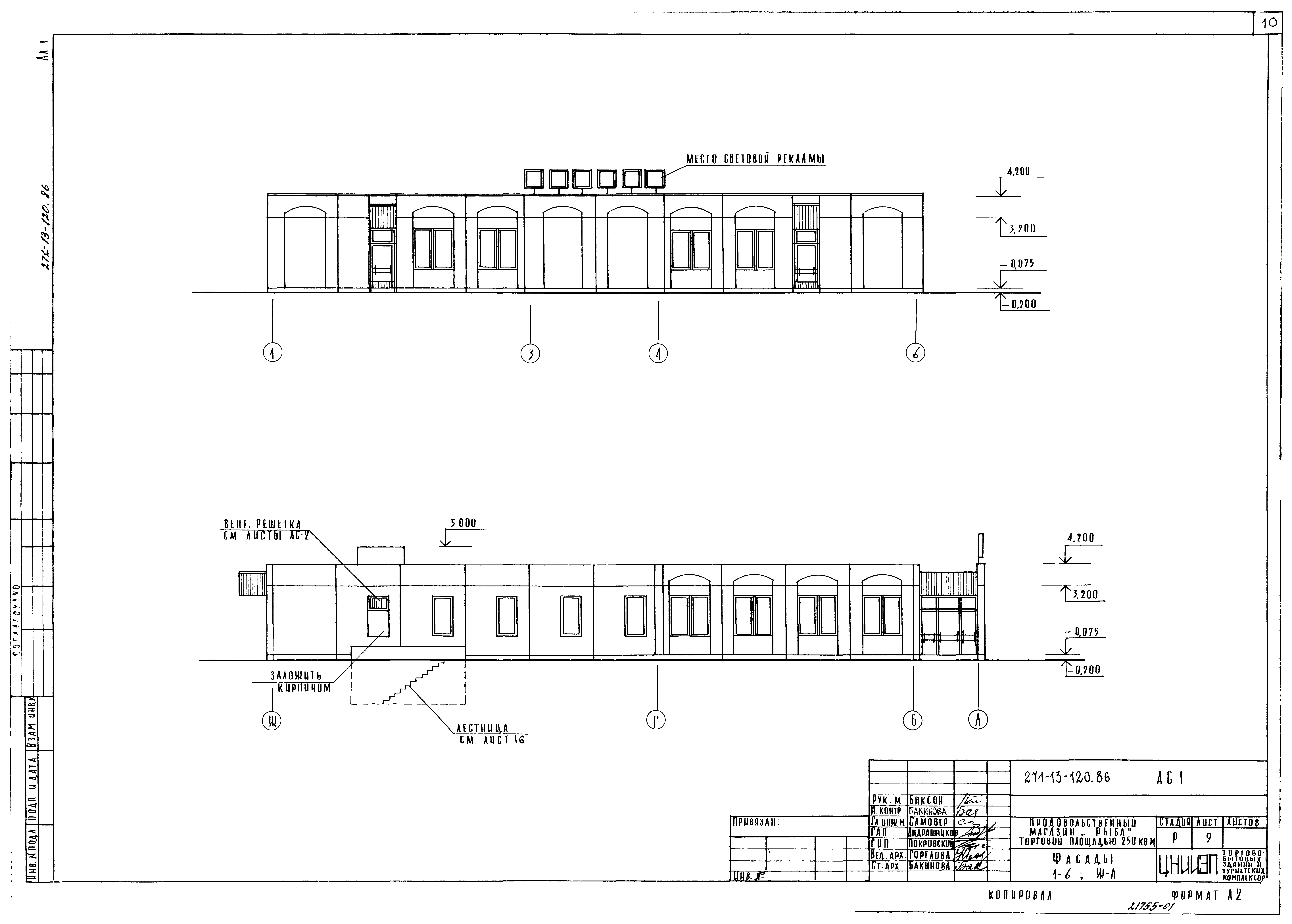
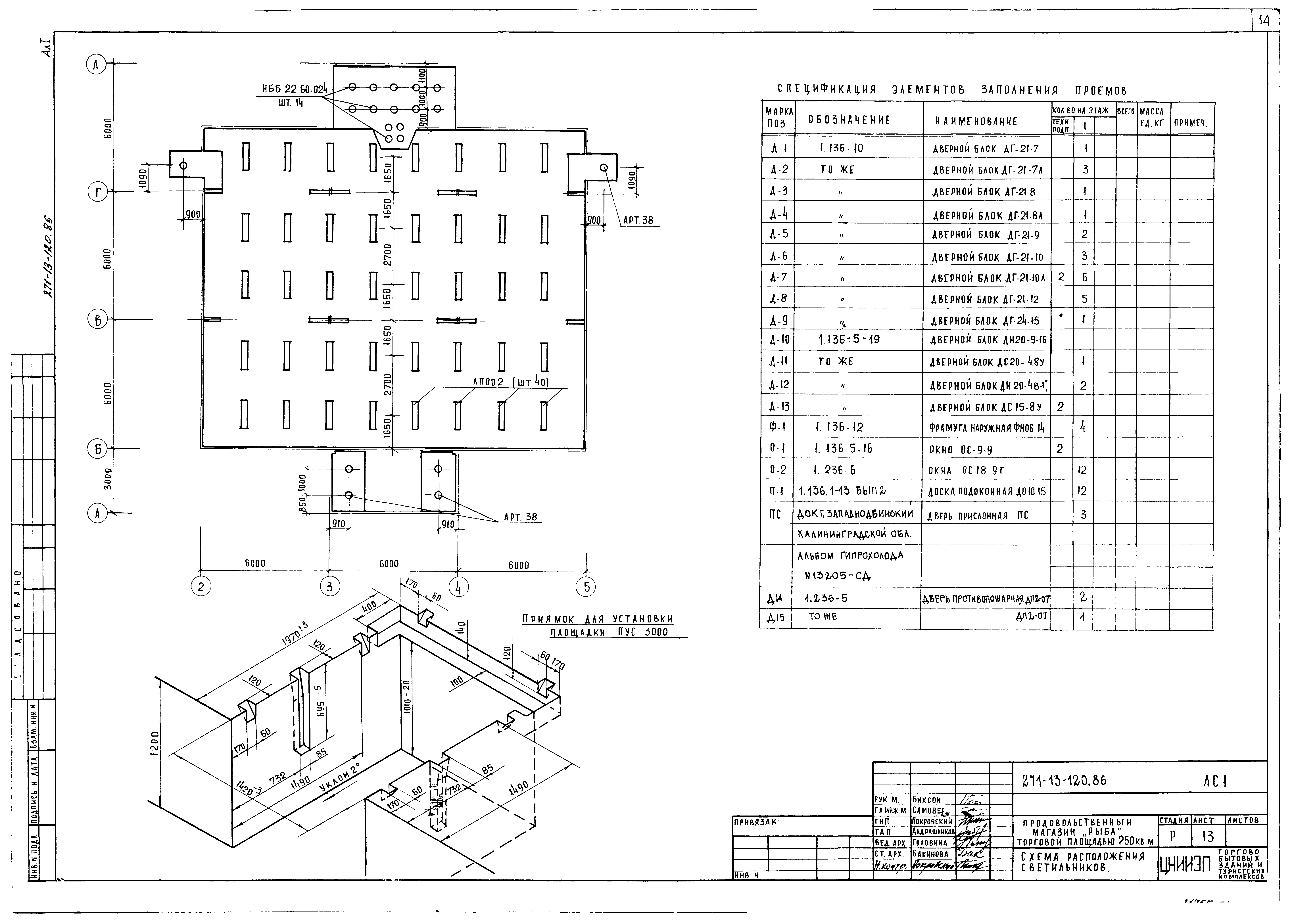
Альбом I. Архитектурно-строительные решения. Технология, механизация. ВитражиОбозначение: | Типовой проект 271-13-120.86 | Обозначение англ: | 271-13-120.86 | Статус: | не определен законодательством | Название рус.: | Альбом I. Архитектурно-строительные решения. Технология, механизация. Витражи | Дата добавления в базу: | 01.09.2013 | Дата актуализации: | 05.05.2017 | Дата введения: | 28.10.1986 | Оглавление: | Чертежи основного комплекта марки АС1 Общие данные План техподполья в осях 1 - 6; А - Ж План 1 этажа Фрагменты плана 1 - 7 Фрагменты плана 8, 9 (охлаждаемые камеры) Фасады 1 - 6; Ж - А Фасады А - Ж; 6 - 1 Разрез 1-1. Узлы гипсокартонных перегородок План крыши План расположения светильников Схема нагрузок на элементы фундаментов Схема расположения элементов фундаментов Монтажная схема лестницы 1. Сечения 5-5 - 11-11 Схема расположения элементов наружных и внутренних стен Спецификация к схемам расположения однослойных стеновых панелей Спецификация к схемам расположения трехслойных стеновых панелей Схема нагрузок на элементы перекрытия. Схема расположения элементов перекрытия на отм. 0.000 Схема расположения элементов покрытия Монтажная схема расположения закладных деталей для крепления витражей. Спецификация перемычек Фундамент монолитный ФХМ-1 Фундамент монолитный ФХМ-7 Кронштейн КР-1, закладная деталь ЗД3, анкер (А1, А2), рамка Р1, Р2 Крепление двери охлаждаемой камеры Бассейны-аквариумы для продажи и хранения живой рыбы, развертка стены в осях 2 - 5 Чертежи основного комплекта марки ТХМ Общие данные План 1 этажа Площадка уравнительная стационарная ПУС-3000. Установочный чертеж Чертежи основного комплекта марки АС2 Общие данные Спецификация материалов к схемам оконных блоков, тамбуров, перегородки Оконные блоки в осях Г - Б по оси 2; в осях 2 - 5 по оси Б; в осях Б - Г по оси 5. Узлы 11, 13 Тамбур в осях 3 - 4 по оси Б; тамбур у оси 2; тамбур у оси 5 Остекленная перегородка в осях 2 - 5. Узлы 12, 17, 19, 20, 21 Узлы 1, 2, 3, 4, 6, 8, 9, 10 Узлы 5, 7, 14, 15, 16, 18 | Разработан: | ЦНИИЭП торгово-бытовых зданий и туристских комплексов
| Утверждён: | 13.07.1984 Госгражданстрой (Gosgrazhdanstroy 195)
| Расположен в: |
|
                                     
|