Информационная система
«Ёшкин Кот»

Скачать базу одним архивом
Скачать обновления
История создания базы
Карта сайта

Скачать Типовой проект 409-23-63.88 Альбом IV. Часть 2. Электроснабжение. Электроосвещение. Связь. Электросиловое оборудование и управление

Дата актуализации: 10.08.2017

Типовой проект 409-23-63.88

Альбом IV. Часть 2. Электроснабжение. Электроосвещение. Связь. Электросиловое оборудование и управление

Обозначение: Типовой проект 409-23-63.88
Обозначение англ: 409-23-63.88
Статус:не определен законодательством
Название рус.:Альбом IV. Часть 2. Электроснабжение. Электроосвещение. Связь. Электросиловое оборудование и управление
Дата добавления в базу:01.09.2013
Дата актуализации:05.05.2017
Дата введения:20.04.1987
Оглавление:Электросиловое оборудование и управление ЭМ
   Вариант II
      Конвейеры №№1, 4…10. Схема электрическая подключений
      Конвейеры №№2, 3, 11. Классификатор. Схема электрическая подключений
      Грохоты №№1…4. Аспирационные системы №№1…4, 1ПЦ, 2ПЦ. Схема электрическая подключений
      Дробилка №4 КМД-1750. Схема электрическая подключений
      Насосы №1…4. Схема электрическая подключений
      Насосы №5, 8. Схема электрическая подключений
      Насосы №6, 7. Вентиль. Задвижка. Схема электрическая подключений
      Щит открытый 1Щ, панель 1. Схема электрическая подключений
      Щит открытый 1Щ, панель 2. Схема электрическая подключений
      Щит открытый 1Щ, панель 3. Схема электрическая подключений
      Щит открытый 1Щ, панель 4. Схема электрическая подключений
      Щит открытый 1Щ, панель 5. Схема электрическая подключений
      Щит открытый 1Щ, панель 6. Схема электрическая подключений
      Щит открытый 1Щ, панель 7. Схема электрическая подключений
      Щит открытый 1Щ, панель 8. Схема электрическая подключений
      Щит открытый 1Щ, панель 9. Схема электрическая подключений
      Щит открытый 1Щ, панель 10. Схема электрическая подключений
      Щит открытый 1Щ, панель 11. Схема электрическая подключений
      Щит диспетчера ЩД. Схема электрическая подключений
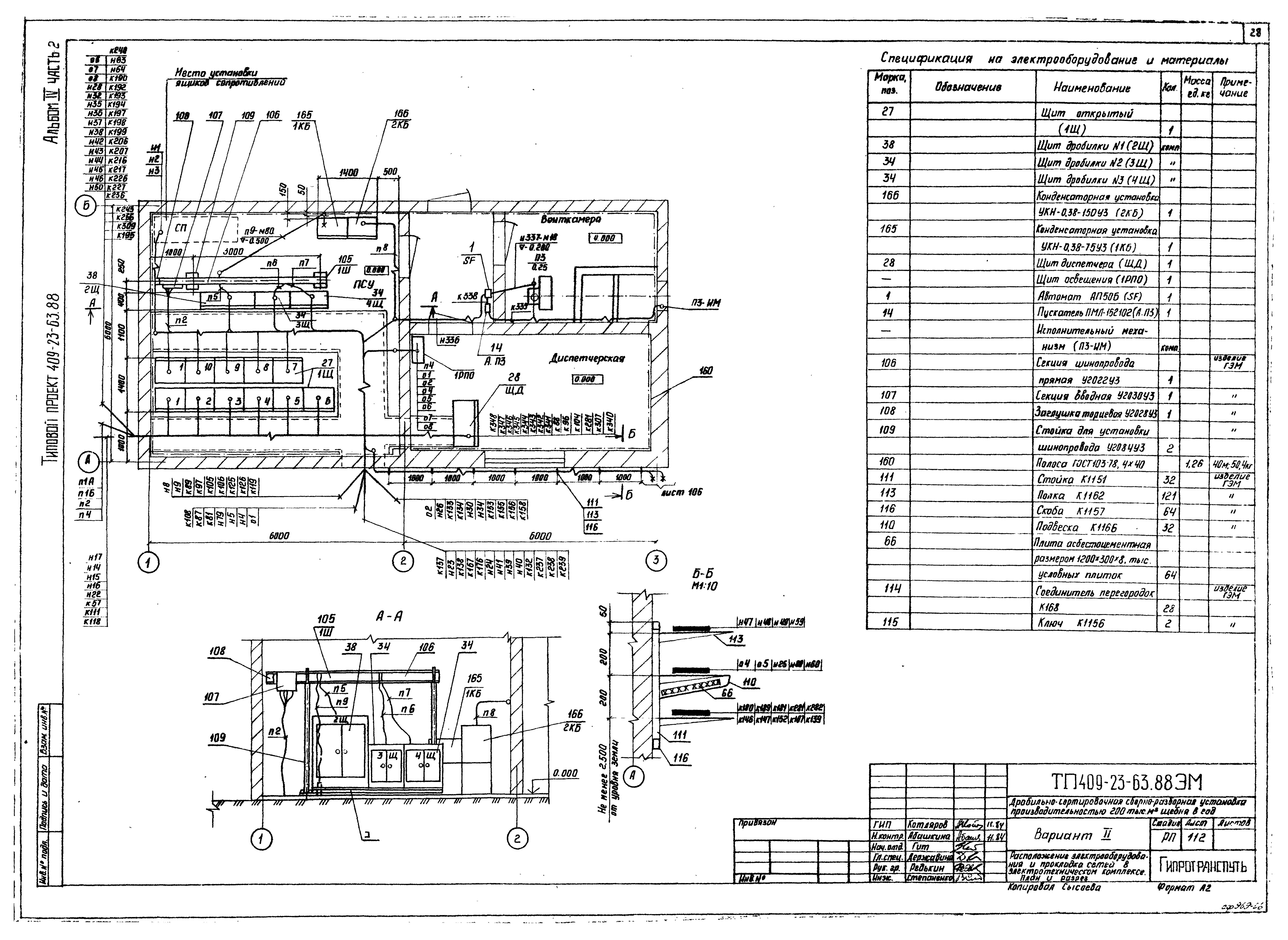
      Расположение электрооборудования и прокладка сетей. План
      Расположение электрооборудования и прокладка сетей. Разрезы А-А, Б-Б
      Расположение электрооборудования и прокладка сетей. Разрезы В-В, Г-Г
      Спецификация на изделия и материалы к листам 106…110
      Расположение электрооборудования и прокладка сетей в электротехническом комплексе. План и разрез
      Кабельный журнал
      Трубо-заготовительная ведомость
   Вариант I, II
      Дробилка щековая Д1 (СМД-110). Схема электрическая принципиальная
      Дробилка щековая Д2 (Д3) СМД-109. Схема электрическая принципиальная
      Конвейер №1. Схема электрическая принципиальная
      Конвейер №2. Схема электрическая принципиальная
      Конвейер №3. Схема электрическая принципиальная
      Звукоизолирующая кабина. Схема электрическая принципиальная
      Дробилка №1. Схема электрическая подключений
      Дробилка №2, №3. Схема электрическая подключений
      Пульт пластинчатого питателя 1П. Ящики 1Я, 2Я. Схема электрическая подключений
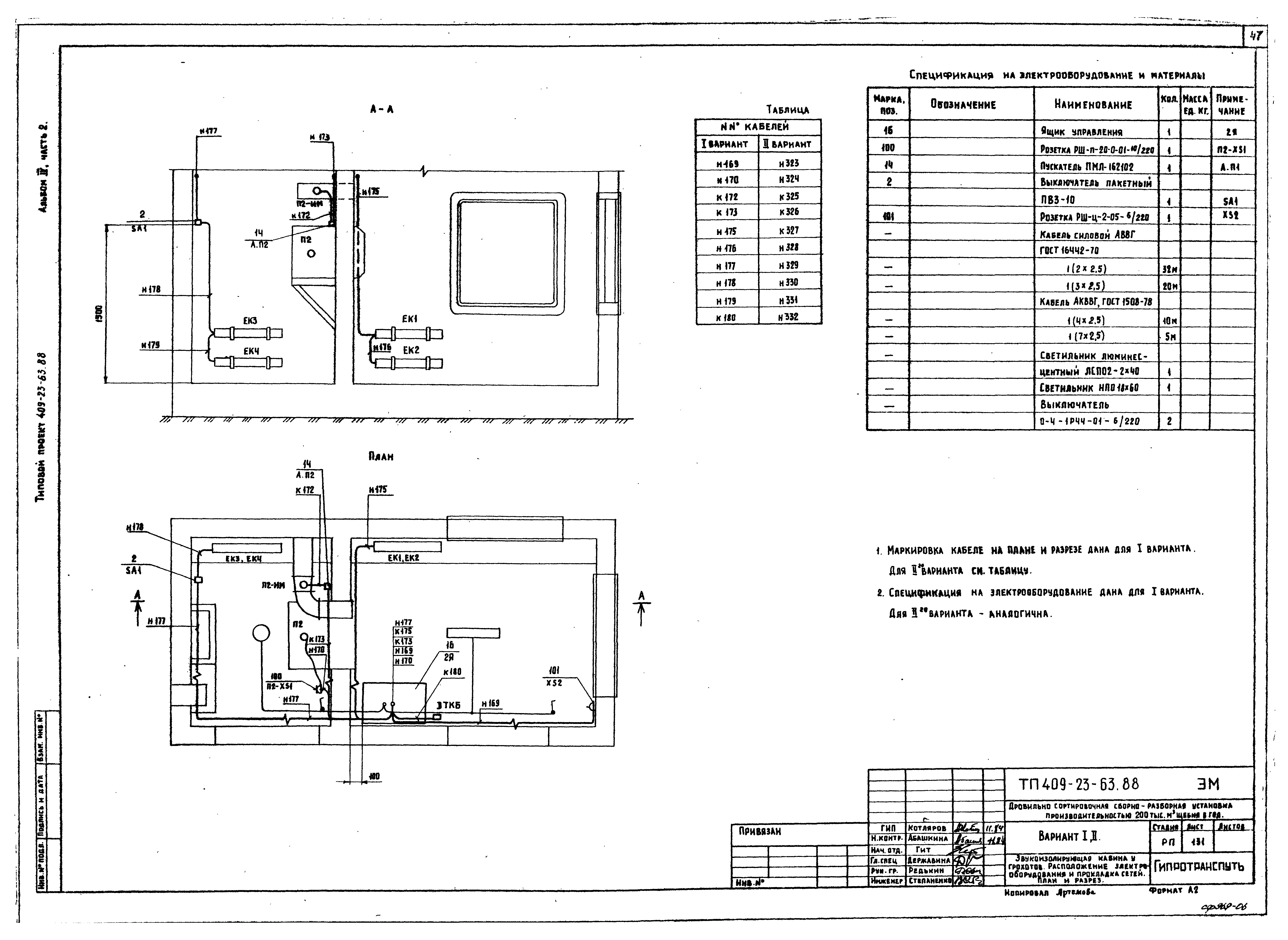
      Звукоизолирующая кабина у питателя. Расположение электрооборудования и прокладка сетей. План и разрез
      Звукоизолирующая кабина у грохотов. Расположение электрооборудования и прокладка сетей. План и разрез
   Прилагаемые документы
      Ящик К655 с силовыми зажимами
      Напольная установка ящика К655 с наборными зажимами
      Напольная и настенная установка постов управления ПКУ15
      Установка сирены СС-1, светильника НСП11 и светофора СС-2 на стойке
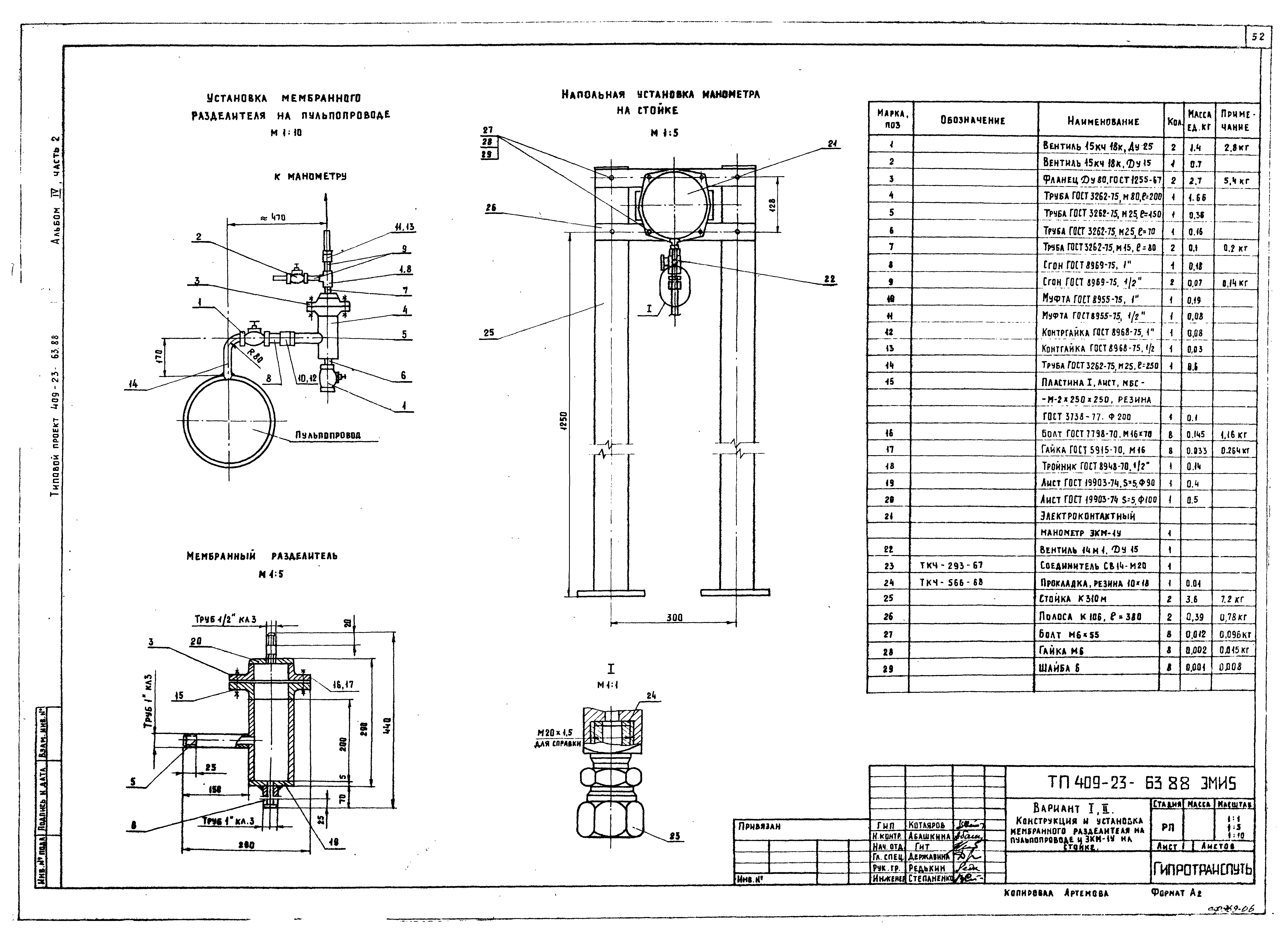
      Конструкция и установка мембранного разделителя на пультопроводе и ЭКМ-1У на стойке
      Ведомость изделий мастерских электромонтажных заготовок
Разработан: Гипротранспуть
Утверждён:20.04.1987 Министерство путей сообщения СССР (USSR Ministry of Railroads 2273у)
Издан: Госстрой СССР (1989 г. )
Расположен в:Техническая документация Строительство Справочные документы Типовые строительные конструкции, изделия и узлы Общероссийский строительный каталог Промышленные предприятия, здания и сооружения Предприятия, здания и сооружения промышленности и электроэнергетики Строительная индустрия и промышленность строительных материалов Производство строительных материалов и изделий Производство тяжелых заполнителей
Типовой проект 409-23-63.88Типовой проект 409-23-63.88Типовой проект 409-23-63.88Типовой проект 409-23-63.88Типовой проект 409-23-63.88Типовой проект 409-23-63.88Типовой проект 409-23-63.88Типовой проект 409-23-63.88Типовой проект 409-23-63.88Типовой проект 409-23-63.88Типовой проект 409-23-63.88Типовой проект 409-23-63.88Типовой проект 409-23-63.88Типовой проект 409-23-63.88Типовой проект 409-23-63.88Типовой проект 409-23-63.88Типовой проект 409-23-63.88Типовой проект 409-23-63.88Типовой проект 409-23-63.88Типовой проект 409-23-63.88Типовой проект 409-23-63.88Типовой проект 409-23-63.88Типовой проект 409-23-63.88Типовой проект 409-23-63.88Типовой проект 409-23-63.88Типовой проект 409-23-63.88Типовой проект 409-23-63.88Типовой проект 409-23-63.88Типовой проект 409-23-63.88Типовой проект 409-23-63.88Типовой проект 409-23-63.88Типовой проект 409-23-63.88Типовой проект 409-23-63.88Типовой проект 409-23-63.88Типовой проект 409-23-63.88Типовой проект 409-23-63.88Типовой проект 409-23-63.88Типовой проект 409-23-63.88Типовой проект 409-23-63.88Типовой проект 409-23-63.88Типовой проект 409-23-63.88Типовой проект 409-23-63.88Типовой проект 409-23-63.88Типовой проект 409-23-63.88Типовой проект 409-23-63.88Типовой проект 409-23-63.88Типовой проект 409-23-63.88Типовой проект 409-23-63.88Типовой проект 409-23-63.88Типовой проект 409-23-63.88Типовой проект 409-23-63.88Типовой проект 409-23-63.88Типовой проект 409-23-63.88Типовой проект 409-23-63.88

© 2013 Ёшкин Кот :-) Карта сайта