Информационная система
«Ёшкин Кот»

Скачать базу одним архивом
Скачать обновления
История создания базы
Карта сайта

Скачать Типовой проект 409-23-63.88 Альбом I. Общая пояснительная записка. Технология производства

Дата актуализации: 10.08.2017

Типовой проект 409-23-63.88

Альбом I. Общая пояснительная записка. Технология производства

Обозначение: Типовой проект 409-23-63.88
Обозначение англ: 409-23-63.88
Статус:не определен законодательством
Название рус.:Альбом I. Общая пояснительная записка. Технология производства
Дата добавления в базу:01.09.2013
Дата актуализации:05.05.2017
Дата введения:20.04.1987
Оглавление:Пояснительная записка
Схема генерального плана. Вариант I
Схема генерального плана. Вариант II
Общие данные
Вариант I
   Схема цепи аппаратов
   Качественно-количественная схема
   Схема сооружений. План
   Схема сооружений. Разрезы А-А, Б-Б
   Схема сооружений. Разрезы В-В, Г-Г
   Схема сооружений. Разрезы Д-Д, Е-Е
   Узел установки грохота СМД-121 №1
   Узел установки грохота СМД-121 №1. Виды А, Б
   Узел установки грохота СМД-121 №2
   Узел установки грохота СМД-121 №2. Виды А, Б
   Конвейер 5, В = 650. Общий вид
   Конвейер 7, В = 650. Общий вид
Вариант II
   Схема цепи аппаратов
   Качественно-количественная и водно-шламовая схема
   Показатели качественно-количественной и водно-шламовой схемы
   Схема сооружений. План
   Схема сооружений. Разрезы А-А, Б-Б
   Схема сооружений. Разрезы В-В, Г-Г
   Схема сооружений. Разрезы Д-Д, Е-Е
   Схема сооружений. Разрезы Ж-Ж, И-И
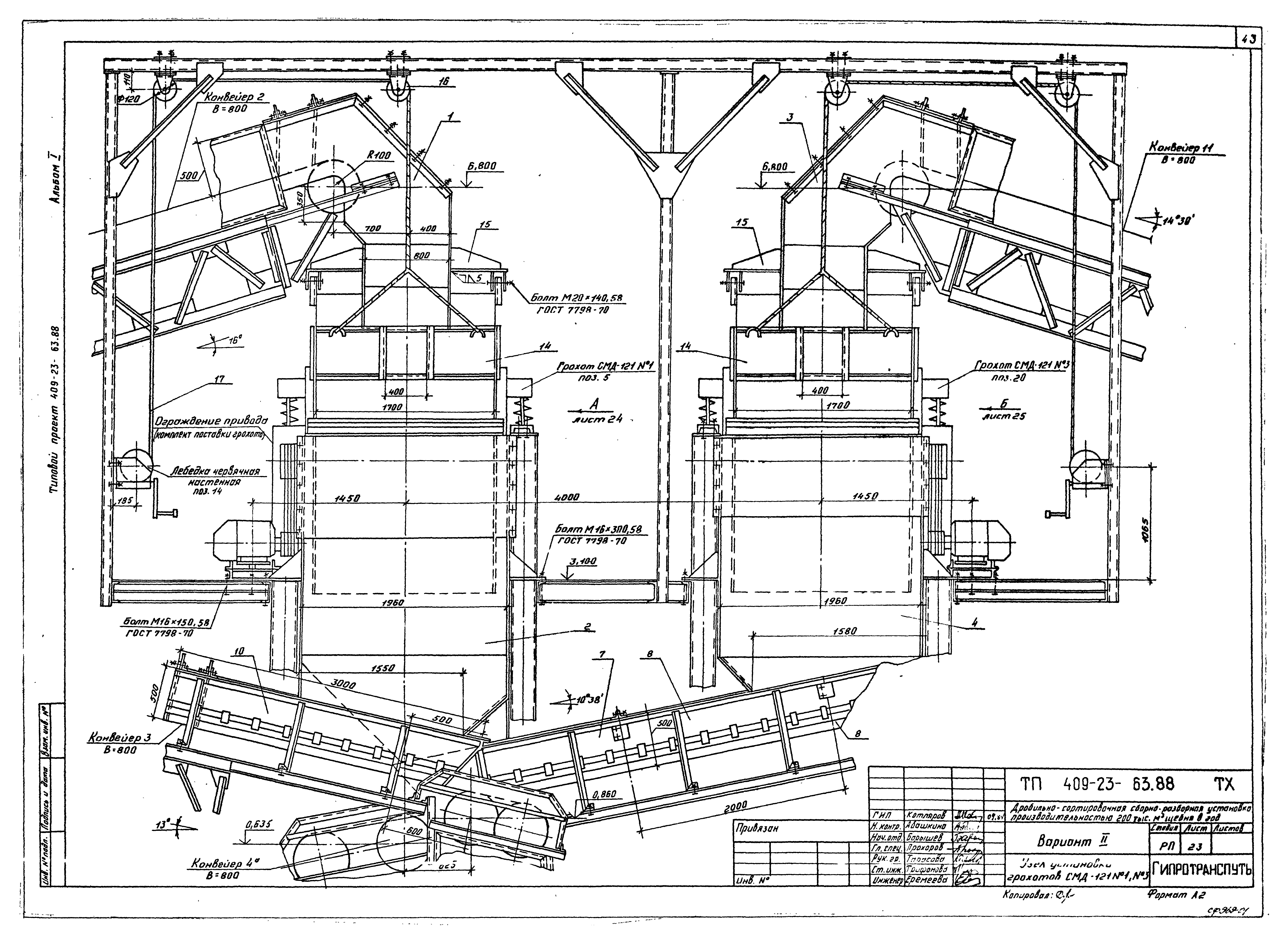
   Узел установки грохотов СМД-121 №1, №3
   Узел установки грохотов СМД-121 №1, №3. Вид А
   Узел установки грохотов СМД-121 №1, №3. Вид Б
   Узел установки грохотов СМД-121 №1, №3. Виды В, Г
   Узел загрузки дробилки КМД-1750гр
   Узел загрузки дробилки КМД-1750гр. Разрез А-А
   Узел перегрузки с конвейера 10 на конвейер 5а
   Узел установки грохотов СМД-121 №2, №4. Загрузка грохотов
   Узел установки грохотов СМД-121 №2, №4. Разгрузка грохотов
   Узел установки грохотов СМД-121 №2, №4. Виды А, Б
   Узел установки грохотов СМД-121 №2, №4. Виды В, Г
   Узел установки классификатора
   Конвейер 4а, В = 800. Общий вид
   Конвейер 5а, В = 650. Общий вид
   Конвейер 7а, В = 650. Общий вид
   Конвейер 8 (9), В = 650. Общий вид
   Конвейер 10, В = 650. Общий вид
   Конвейер 10, В = 650. Узлы
   Конвейер 10, В = 650. Общий вид
Вариант I, II
   Узел установки питателя 1-15-60
   Узел установки питателя 1-15-60. Вид А
   Узел установки дробилки СМД-110
   Узел установки дробилки СМД-110. Вид Б
   Узел установки дробилок СМД-109
   Узел установки дробилок СМД-109. Вид А
   Узел перегрузки с конвейера 1 на конвейер 2
   Установка затвора бункера отсевов
   Конвейер 1, В = 800. Общий вид
   Конвейер 1, В = 800. Узлы
   Конвейер 2, В = 800. Общий вид
   Конвейер 2, В = 800. Узлы
   Конвейер 3, В = 800. Общий вид
   Конвейер 4 (6), В = 650. Общий вид
   Конвейер 4 (6), В = 650. Узлы
   Масляный бак пылевого затвора. Общий вид
   Звукоизолирующая кабина. Общий вид
Разработан: Гипротранспуть
Утверждён:20.04.1987 Министерство путей сообщения СССР (USSR Ministry of Railroads 2273у)
Издан: Госстрой СССР (1989 г. )
Расположен в:Техническая документация Строительство Справочные документы Типовые строительные конструкции, изделия и узлы Общероссийский строительный каталог Промышленные предприятия, здания и сооружения Предприятия, здания и сооружения промышленности и электроэнергетики Строительная индустрия и промышленность строительных материалов Производство строительных материалов и изделий Производство тяжелых заполнителей
Типовой проект 409-23-63.88Типовой проект 409-23-63.88Типовой проект 409-23-63.88Типовой проект 409-23-63.88Типовой проект 409-23-63.88Типовой проект 409-23-63.88Типовой проект 409-23-63.88Типовой проект 409-23-63.88Типовой проект 409-23-63.88Типовой проект 409-23-63.88Типовой проект 409-23-63.88Типовой проект 409-23-63.88Типовой проект 409-23-63.88Типовой проект 409-23-63.88Типовой проект 409-23-63.88Типовой проект 409-23-63.88Типовой проект 409-23-63.88Типовой проект 409-23-63.88Типовой проект 409-23-63.88Типовой проект 409-23-63.88Типовой проект 409-23-63.88Типовой проект 409-23-63.88Типовой проект 409-23-63.88Типовой проект 409-23-63.88Типовой проект 409-23-63.88Типовой проект 409-23-63.88Типовой проект 409-23-63.88Типовой проект 409-23-63.88Типовой проект 409-23-63.88Типовой проект 409-23-63.88Типовой проект 409-23-63.88Типовой проект 409-23-63.88Типовой проект 409-23-63.88Типовой проект 409-23-63.88Типовой проект 409-23-63.88Типовой проект 409-23-63.88Типовой проект 409-23-63.88Типовой проект 409-23-63.88Типовой проект 409-23-63.88Типовой проект 409-23-63.88Типовой проект 409-23-63.88Типовой проект 409-23-63.88Типовой проект 409-23-63.88Типовой проект 409-23-63.88Типовой проект 409-23-63.88Типовой проект 409-23-63.88Типовой проект 409-23-63.88Типовой проект 409-23-63.88Типовой проект 409-23-63.88Типовой проект 409-23-63.88Типовой проект 409-23-63.88Типовой проект 409-23-63.88Типовой проект 409-23-63.88Типовой проект 409-23-63.88Типовой проект 409-23-63.88Типовой проект 409-23-63.88Типовой проект 409-23-63.88Типовой проект 409-23-63.88Типовой проект 409-23-63.88Типовой проект 409-23-63.88Типовой проект 409-23-63.88Типовой проект 409-23-63.88Типовой проект 409-23-63.88Типовой проект 409-23-63.88Типовой проект 409-23-63.88Типовой проект 409-23-63.88Типовой проект 409-23-63.88Типовой проект 409-23-63.88Типовой проект 409-23-63.88Типовой проект 409-23-63.88Типовой проект 409-23-63.88Типовой проект 409-23-63.88Типовой проект 409-23-63.88Типовой проект 409-23-63.88Типовой проект 409-23-63.88Типовой проект 409-23-63.88Типовой проект 409-23-63.88Типовой проект 409-23-63.88Типовой проект 409-23-63.88Типовой проект 409-23-63.88Типовой проект 409-23-63.88Типовой проект 409-23-63.88

© 2013 Ёшкин Кот :-) Карта сайта