Информационная система
«Ёшкин Кот»

Скачать базу одним архивом
Скачать обновления
История создания базы
Карта сайта

Скачать Типовой проект 294-8-12.85 Альбом II. Санитарно-технические чертежи

Дата актуализации: 10.08.2017

Типовой проект 294-8-12.85

Альбом II. Санитарно-технические чертежи

Обозначение: Типовой проект 294-8-12.85
Обозначение англ: 294-8-12.85
Статус:действует
Название рус.:Альбом II. Санитарно-технические чертежи
Дата добавления в базу:01.09.2013
Дата актуализации:05.05.2017
Дата введения:03.01.1985
Оглавление:Чертежи основного комплекта марки ОВ
   Общие данные
   План на отм. 0.000 между осями 1 - 3 и Г - К. План на отм. 3.300 между осями 1 - 3 и Г - К
   План на отм. 0.000 между осями 3 - 9 и Г - Л
   План на отм. 0.000 между осями 2 - 9 и Д - Д
   План на отм. 0.000 между осями 9 - 11 и Б - К. План на отм. 3.300 между осями 9 - 11 и Б - К
   План на отм. 3.300 между осями 2 - 9 и Д - К
   План на отм. 3.300 между осями 2 - 9 и А - Д
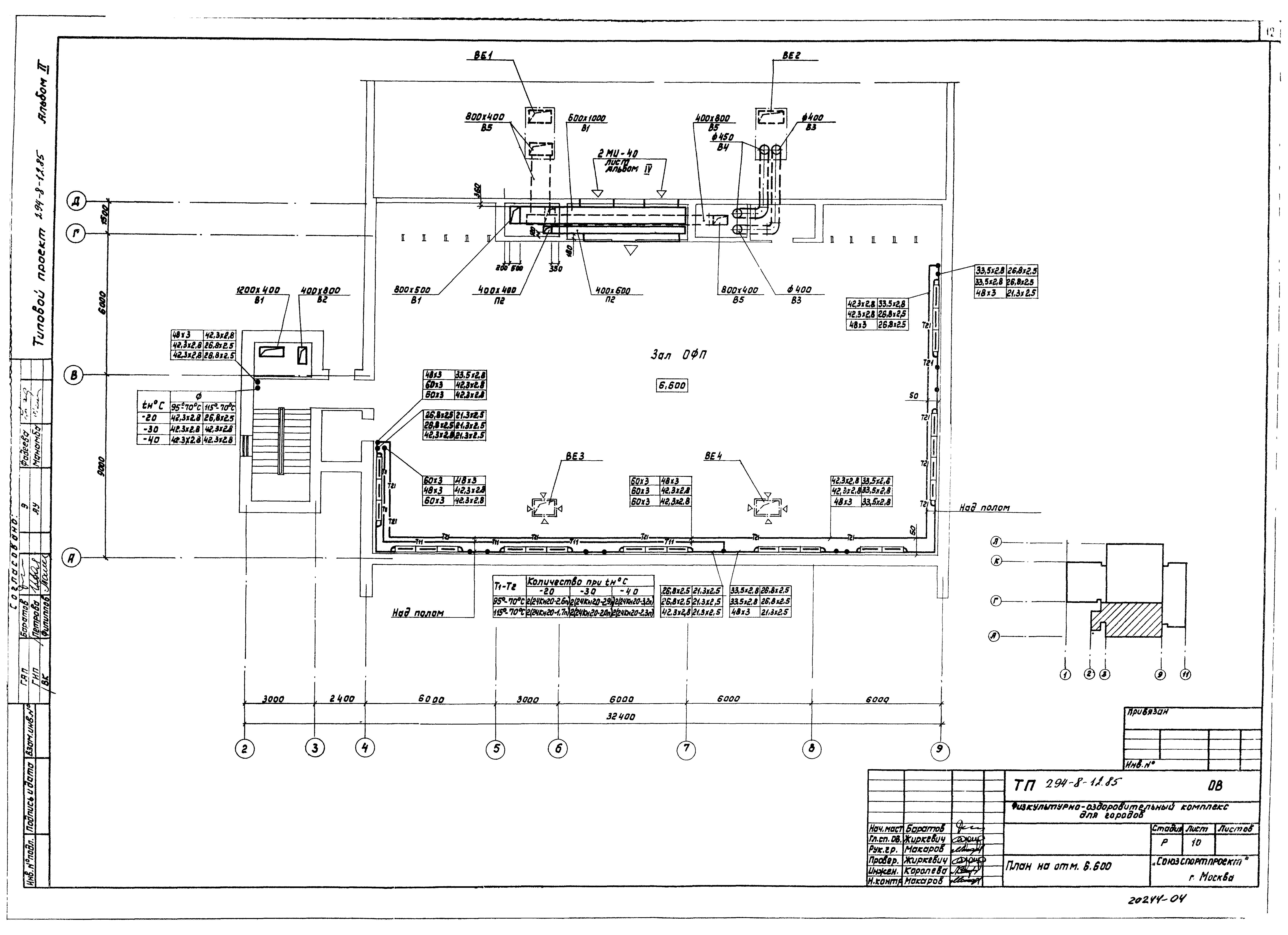
   План на отм. 6.600
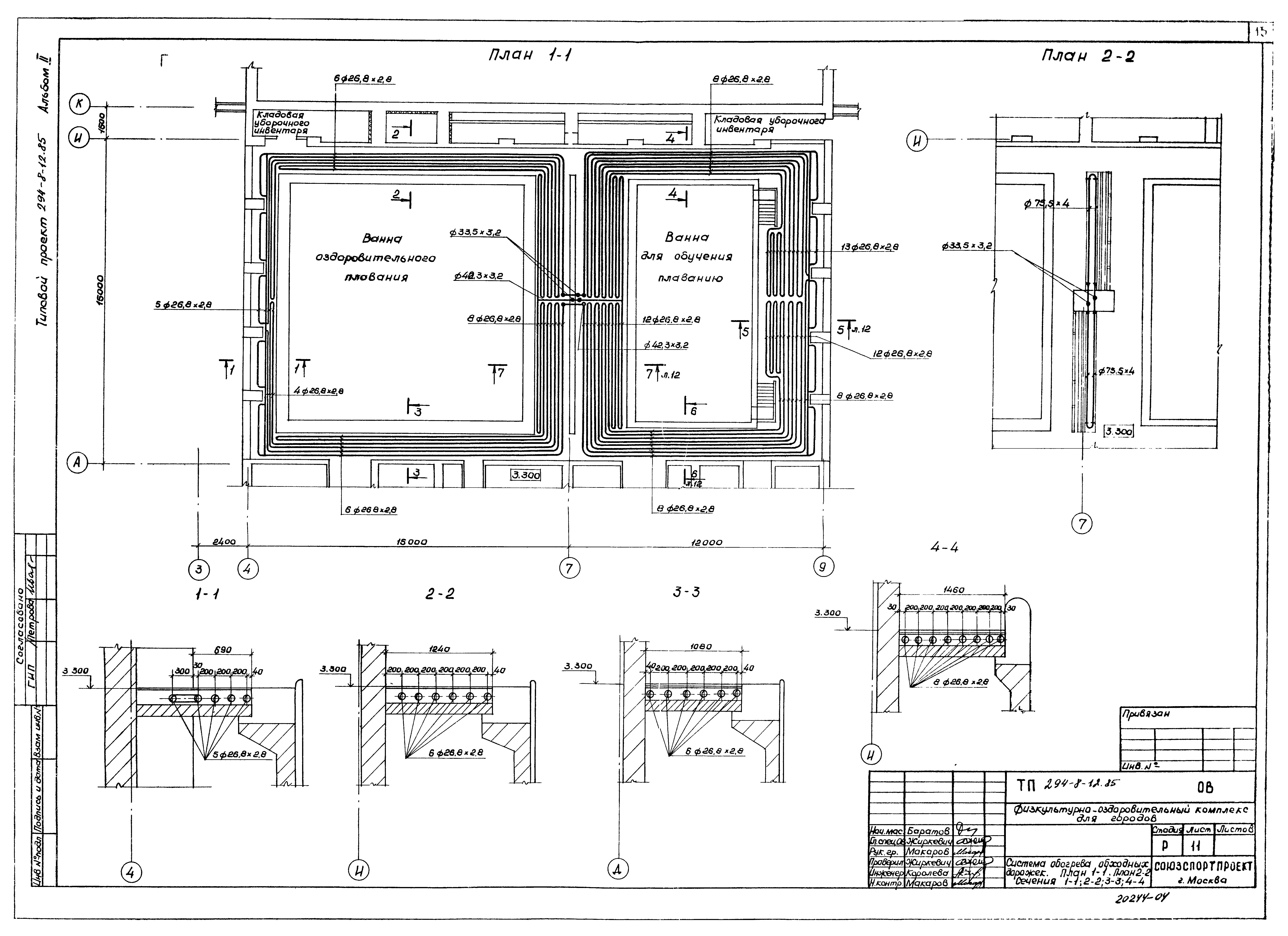
   Система обогрева обходных дорожек. План 1-1, план 2-2. Сечения 1-1, 2-2, 3-3, 4-4
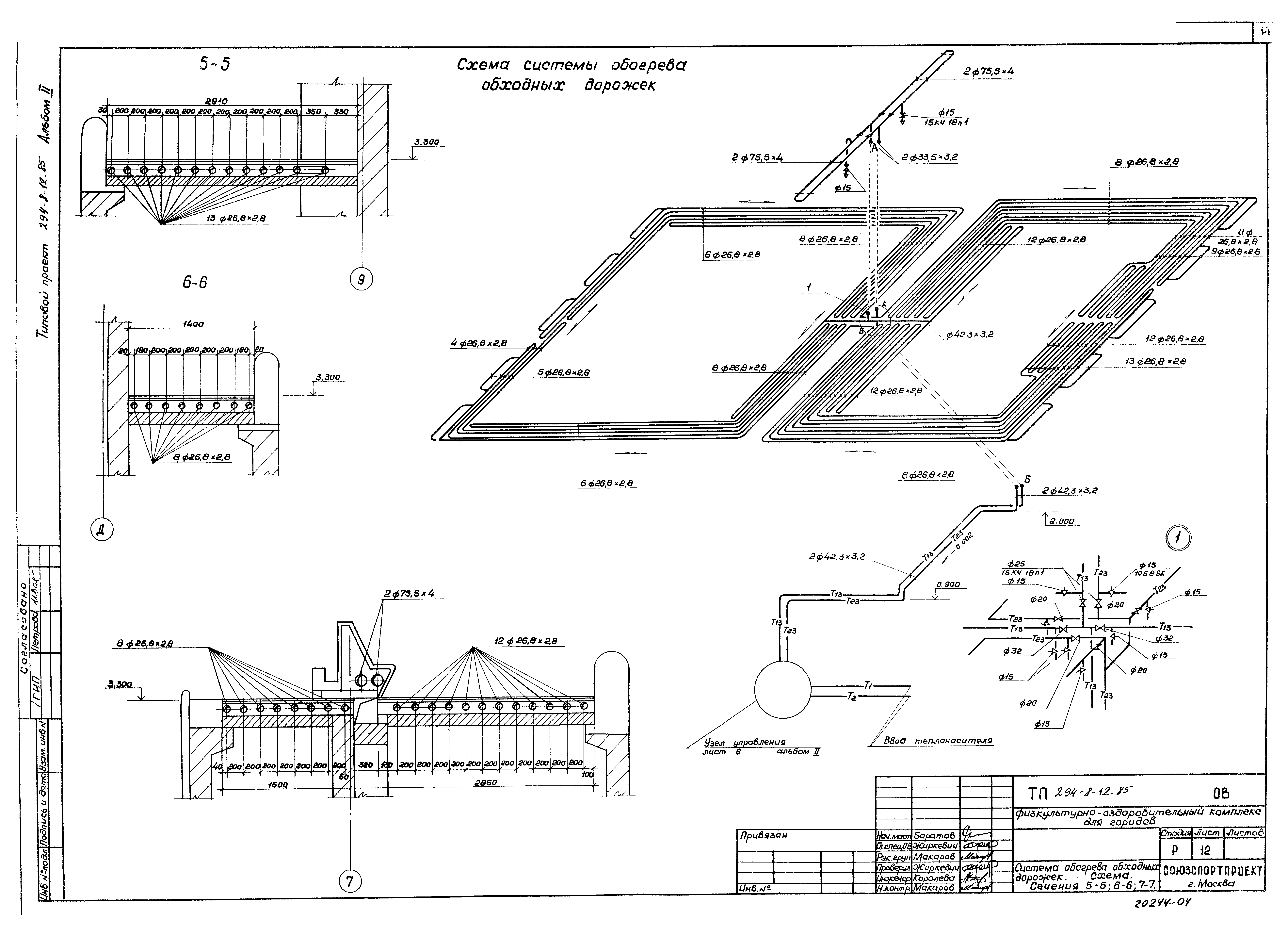
   Система обогрева обходных дорожек. Схема. Сечения 5-5, 6-6, 7-7
   Схемы систем отопления №1 и №2
   Схемы систем отопления №4
   Схемы систем отопления №1 и №4
   Схема системы теплоснабжения установок
   Схемы систем вентиляции В1, В2, В4, У1
   Схемы систем вентиляции П1, В3, ВЕ1, ВЕ2, ВЕ3, ВЕ4, ВЕ5, ВЕ6
   Схемы систем вентиляции В5
   Схемы систем вентиляции П2
   Установки систем В1, В2
   Установки систем В3, В4, В5. План. Разрезы
   Установки систем П1, П2, У1. План, разрезы 1-1, 2-2, 3-3
   Установки систем П1, П2, У1. Разрезы 4-4, 5-5, 6-6, 7-7, 8-8
   Установки систем П1, П2, У1, В3, В4, В5. Спецификация
Чертежи основного комплекта марки ОВН
   Содержание
   Воздуховод из асбестоцементных листов. Общий вид и узлы
   Воздуховод из асбестоцементных листов. Технические требования
Чертежи основного комплекта марки ТС
   Общие данные
   Принципиальная схема характеристики оборудования
   План на отм. - 1.650
   Разрезы 1-1, 2-2, 3-3
   Аксонометрические схемы трубопроводов
   Вариант проекта. Принципиальная схема. Характеристика оборудования
   Вариант проекта. План на отм. - 1.650
   Вариант проекта. Разрезы 4-4, 5-5, 6-6
   Вариант проекта. Аксонометрические схемы трубопроводов
Чертежи основного комплекта марки ВК
   Общие данные
   Планы на отм. 0.000 и 3.300 с системами водопровода В1 и Т3 в осях 1 - 3, Г - К
   План на отм. 0.000 с системами В1 и Т3, В4 в осях 3 - 9; Г - Л
   Планы на отм. 0.000 и 3.300 с системами В1, Т3 в осях 9 - 11; К - Б
   Планы на отм. 0.000 с системами водопровода В1, В4, Т3 в осях 2 - 9; А -Д
   План на отм. 3.300; 6.600 с системами В1, В4, Т3, ВК1 в осях 2 - 9; А -Д; 4 - 9; Г - Д
   Планы на отм. 0.000 и 3.300 в осях 1 - 3; Г - К с системами канализации К1, К2
   План на отм. 0.000 в осях 2 - 9; А - Д с системами канализации К1 и К3
   План на отм. 0.000 с системами канализации К1 и К3 в осях 3 - 9; Г - Л
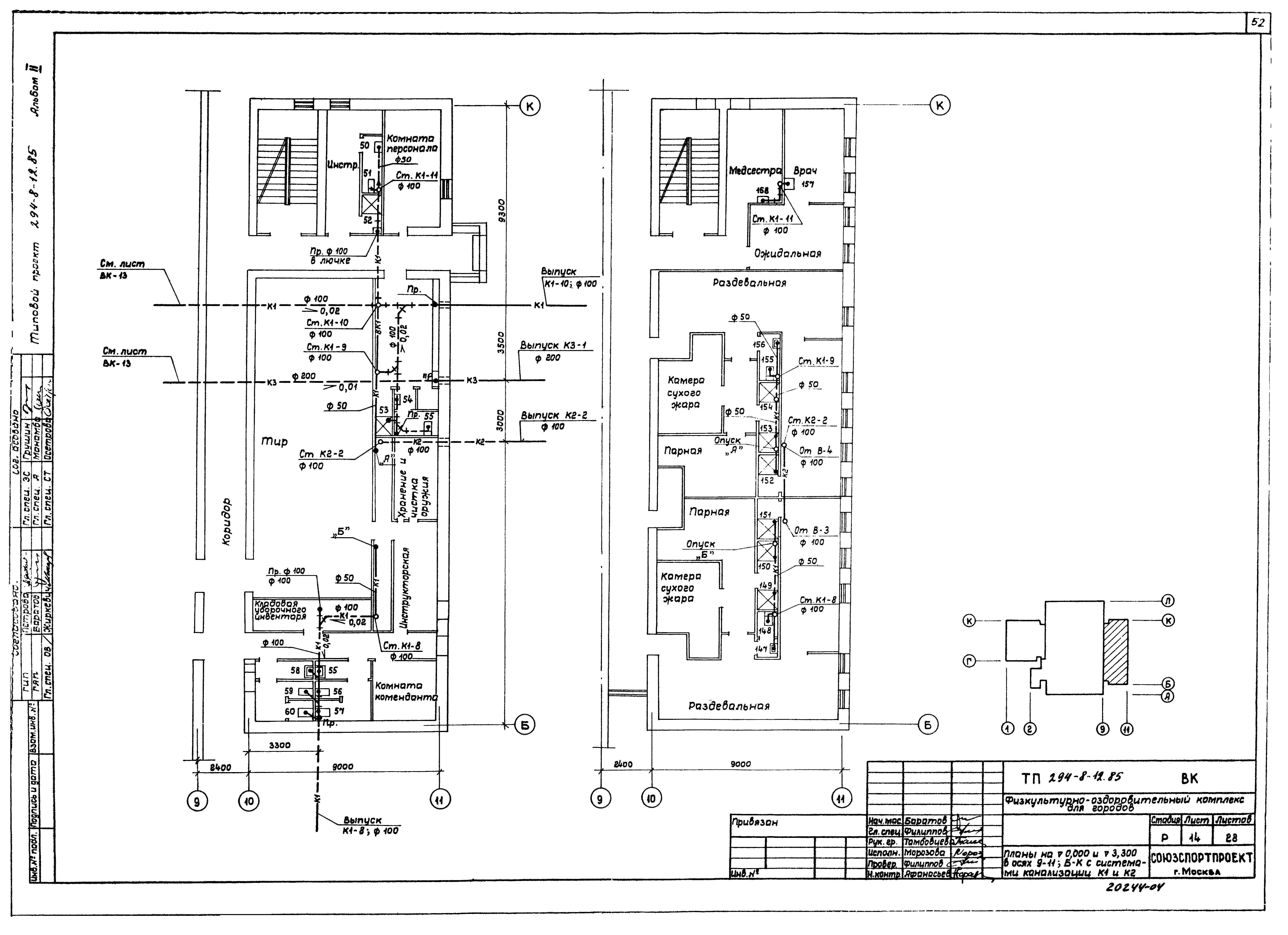
   Планы на отм. 0.000 и 3.300 в осях 9 - 11; Б - К с системами канализации К1 и К2
   План на отм. 3.300 в осях 2 - 9; А - Д с системами канализации К1, ВК1
   План на отм. 3.300 с ваннами, системами канализации К1, В51, В52 в осях 3 - 9; К - Д
   План кровли с воронками и стояками по канализации
   Схема систем В1, Т3
   Схема канализации К1, К3
   Схемы К2. Установка водосточной воронки "ВР-9"
   План на отм. 0.000 и - 0.150 в осях 6 - 9. Расстановка оборудования в насосно-фильтровальной станции
   План на отм. 0.000 и - 0.150 в осях 6 - 9 с разводкой сетей в насосно-фильтровальной В4, В5, В1, К3
   Схема установок В4, В5, В51, К3
   Установка систем В1, В4, В5, В51, К3. Разрезы
   Схема систем В41, В42
   Бак. Общий вид
   Узел ввода реагентов. Спецификация
   Установочный чертеж пожарного крана Ф50 во встроенном навесном шкафе
   Лист-вкладыш на замену чугунных труб канализации на пластмассовые
Разработан: Союзспортпроект Спорткомитета СССР
Утверждён:11.08.1983 Госгражданстрой (Gosgrazhdanstroy 234)
Расположен в:Техническая документация Строительство Справочные документы Типовые строительные конструкции, изделия и узлы Общероссийский строительный каталог Общественные здания в городах и поселках городского типа Физкультурно-оздоровительные и спортивные здания и сооружения Физкультурно-оздоровительные и спортивные комплексы
Типовой проект 294-8-12.85Типовой проект 294-8-12.85Типовой проект 294-8-12.85Типовой проект 294-8-12.85Типовой проект 294-8-12.85Типовой проект 294-8-12.85Типовой проект 294-8-12.85Типовой проект 294-8-12.85Типовой проект 294-8-12.85Типовой проект 294-8-12.85Типовой проект 294-8-12.85Типовой проект 294-8-12.85Типовой проект 294-8-12.85Типовой проект 294-8-12.85Типовой проект 294-8-12.85Типовой проект 294-8-12.85Типовой проект 294-8-12.85Типовой проект 294-8-12.85Типовой проект 294-8-12.85Типовой проект 294-8-12.85Типовой проект 294-8-12.85Типовой проект 294-8-12.85Типовой проект 294-8-12.85Типовой проект 294-8-12.85Типовой проект 294-8-12.85Типовой проект 294-8-12.85Типовой проект 294-8-12.85Типовой проект 294-8-12.85Типовой проект 294-8-12.85Типовой проект 294-8-12.85Типовой проект 294-8-12.85Типовой проект 294-8-12.85Типовой проект 294-8-12.85Типовой проект 294-8-12.85Типовой проект 294-8-12.85Типовой проект 294-8-12.85Типовой проект 294-8-12.85Типовой проект 294-8-12.85Типовой проект 294-8-12.85Типовой проект 294-8-12.85Типовой проект 294-8-12.85Типовой проект 294-8-12.85Типовой проект 294-8-12.85Типовой проект 294-8-12.85Типовой проект 294-8-12.85Типовой проект 294-8-12.85Типовой проект 294-8-12.85Типовой проект 294-8-12.85Типовой проект 294-8-12.85Типовой проект 294-8-12.85Типовой проект 294-8-12.85Типовой проект 294-8-12.85Типовой проект 294-8-12.85Типовой проект 294-8-12.85Типовой проект 294-8-12.85Типовой проект 294-8-12.85Типовой проект 294-8-12.85Типовой проект 294-8-12.85Типовой проект 294-8-12.85Типовой проект 294-8-12.85Типовой проект 294-8-12.85Типовой проект 294-8-12.85Типовой проект 294-8-12.85Типовой проект 294-8-12.85Типовой проект 294-8-12.85Типовой проект 294-8-12.85Типовой проект 294-8-12.85Типовой проект 294-8-12.85

© 2013 Ёшкин Кот :-) Карта сайта