Скачать Типовой проект 291-8-23с.88 Альбом II. Часть II. Конструкции металлические. Конструкции алюминиевые. Конструкции перегородок и подвесных потолков. Конструкции алюминиевых перегородокДата актуализации: 10.08.2017 Типовой проект 291-8-23с.88
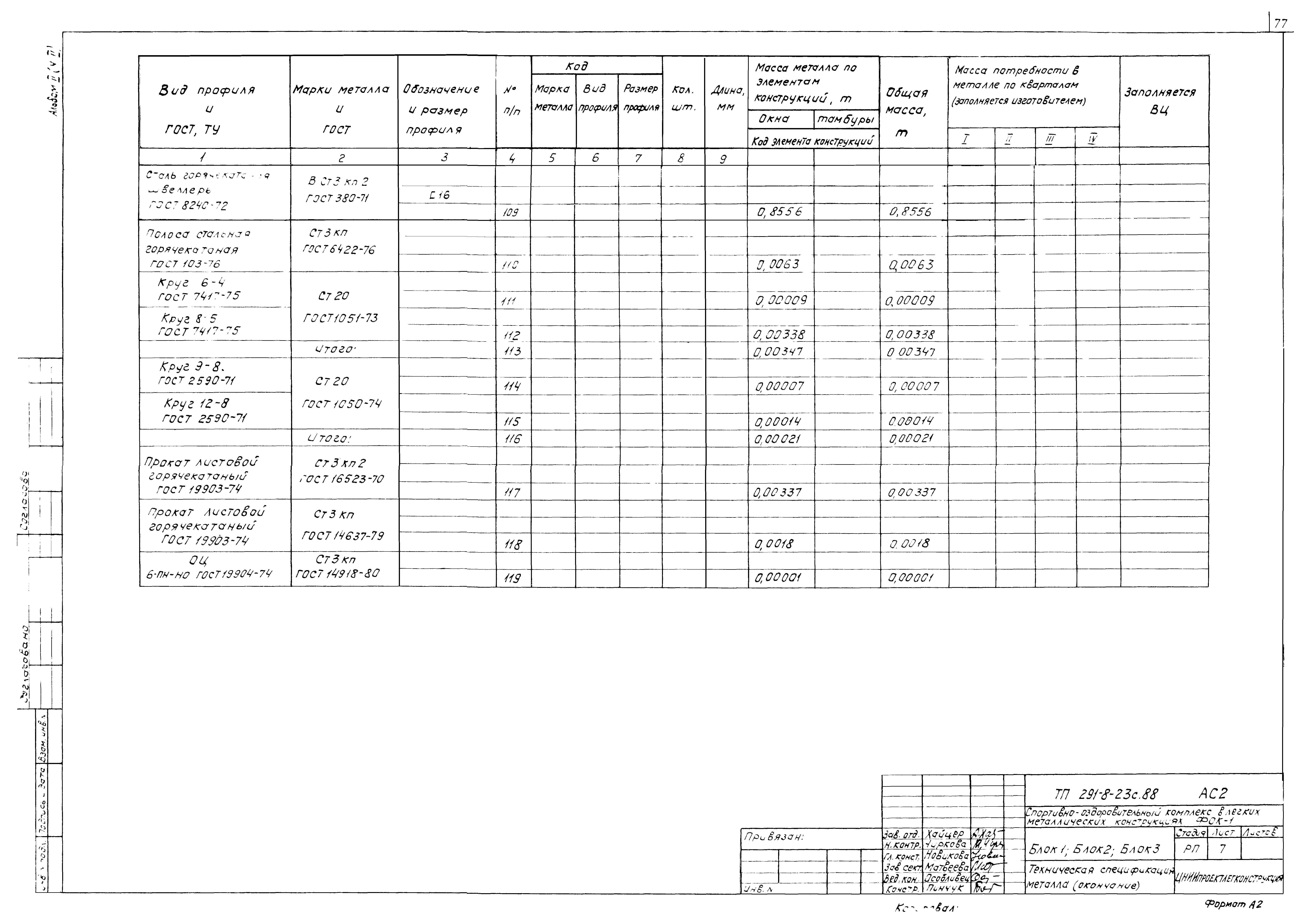
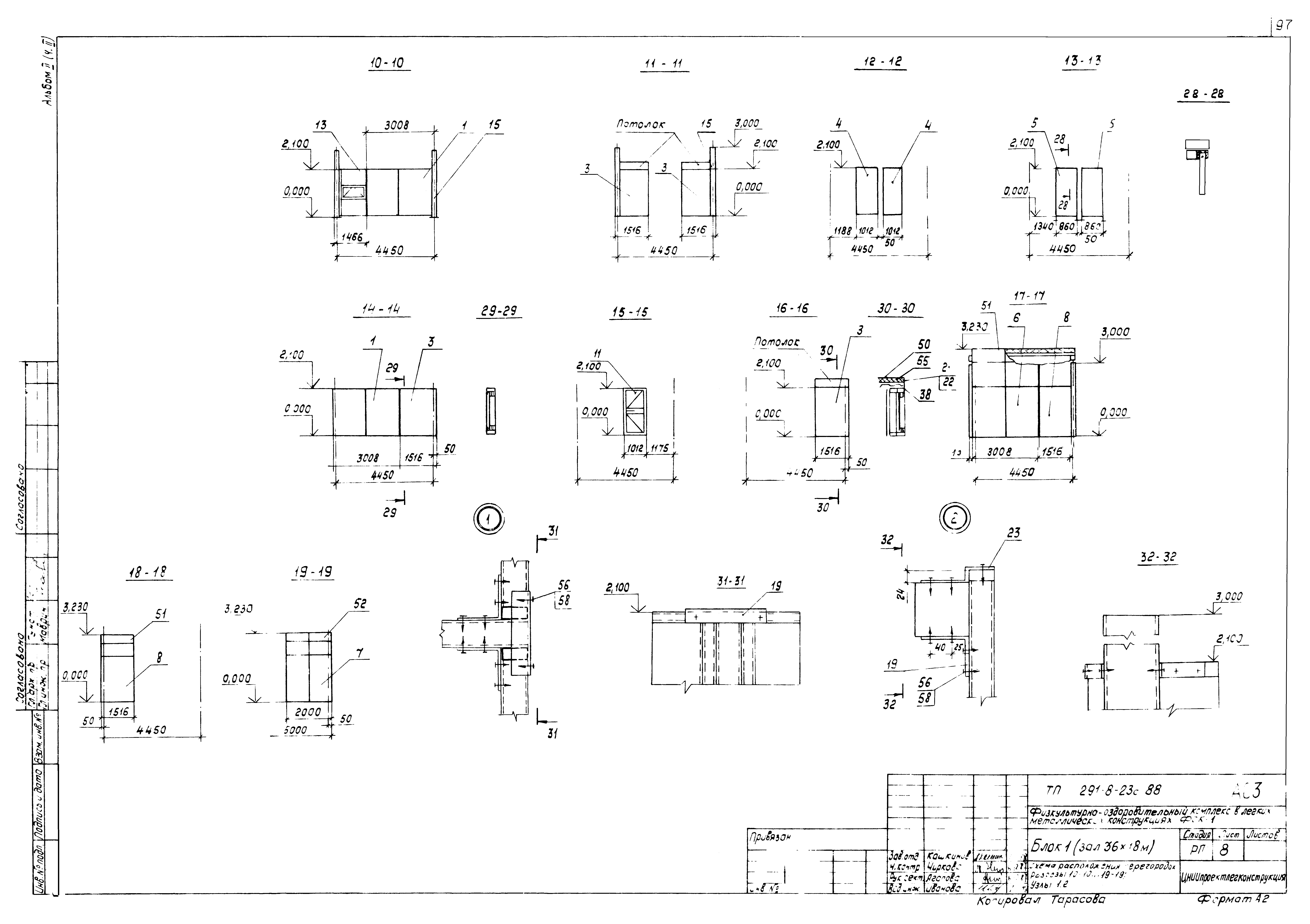
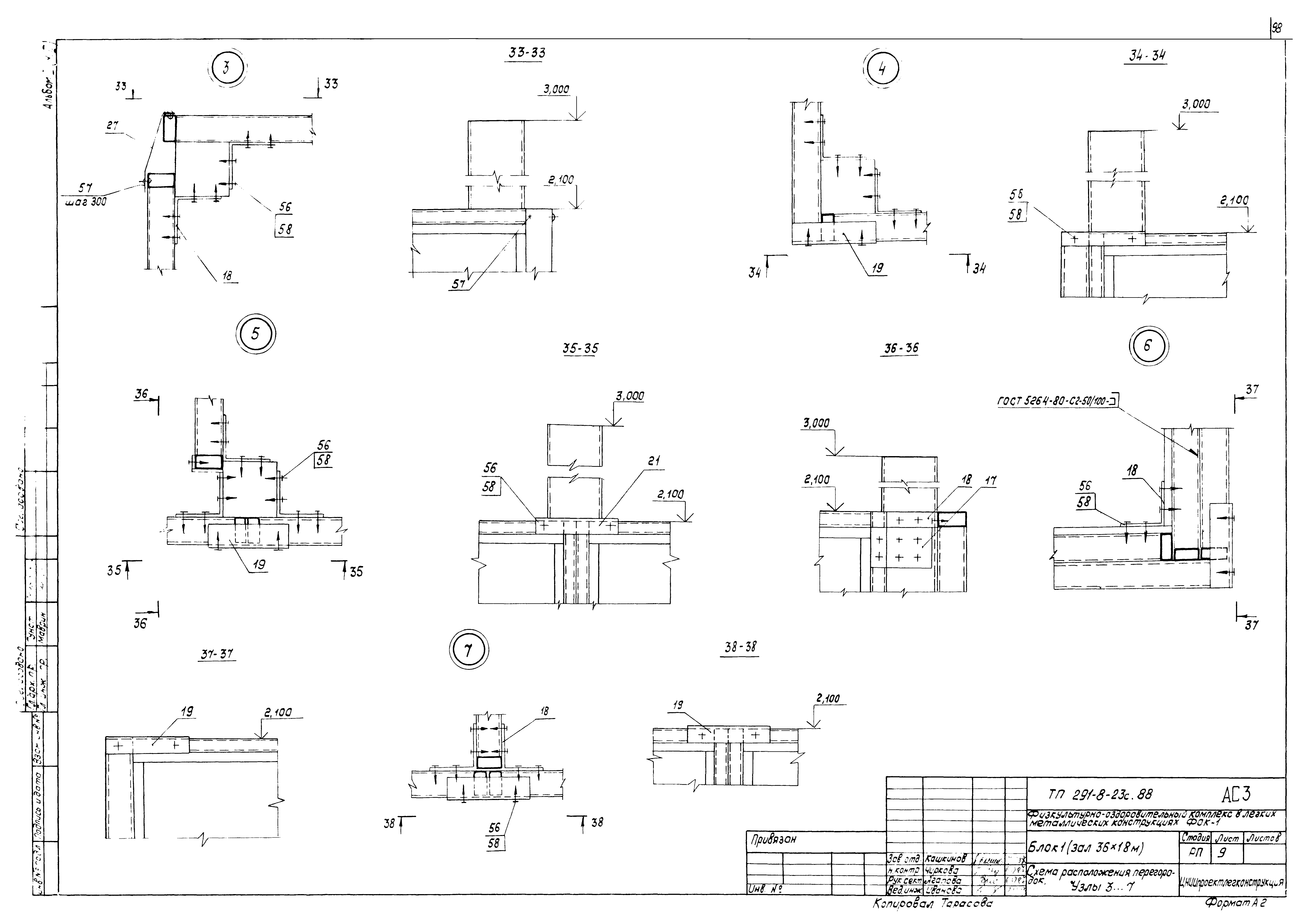
Альбом II. Часть II. Конструкции металлические. Конструкции алюминиевые. Конструкции перегородок и подвесных потолков. Конструкции алюминиевых перегородокОбозначение: | Типовой проект 291-8-23с.88 | Обозначение англ: | 291-8-23с.88 | Статус: | не определен законодательством | Название рус.: | Альбом II. Часть II. Конструкции металлические. Конструкции алюминиевые. Конструкции перегородок и подвесных потолков. Конструкции алюминиевых перегородок | Дата добавления в базу: | 01.09.2013 | Дата актуализации: | 05.05.2017 | Дата введения: | 14.06.1988 | Оглавление: | Чертежи основного комплекта марки АС2 Блок 1, блок 2, блок 3 Общие данные Техническая спецификация металла Схема расположения окон между осями 8_6 - 1_6; 8_3 - 1_3 Спецификация к схеме расположения окон между осями 8_6 - 1_6; 8_3 - 1_3 Схема расположения окон между осями 1_6 - 8_6; 1_3 - 8_3 Спецификация к схеме расположения окон между осями 1_6 - 8_6; 1_3 - 8_3 Схема расположения окон между осями А_6 - Д_6; Д_6 - А_6; Д_3 - А_3 Схема расположения окон между осями А_3 - Д_3 Спецификации к схеме расположения окон между осями А_6 - Д_6; Д_6 - А_6; Д_3 - А_3; А_3 - Д_3 Схема расположения окон между осями А_6 - А_3 Схема расположения тамбура Т1 Схема расположения тамбура Т3. Разрезы 1-1; 3-3; 4-4 Схема расположения тамбура Т3. Разрезы 2-2; 5-5; 6-6; 7-7 Спецификации к схеме расположения тамбура Т3 Чертежи основного комплекта марки АС3 Блок 1, блок 2, блок 3 Схема расположения перегородок на отм. 0.000. Общие данные Блок 1 (зал 36х18 м) Схема расположения перегородок. Спецификация Схема расположения перегородок Схема расположения перегородок. Разрезы 1-1…9-9 Схема расположения перегородок. Разрезы 10-10…19-19. Узлы 1, 2 Схема расположения перегородок. Узлы 3…7 Схема расположения перегородок. Узел 8. Схемы внутренней обшивки Схема расположения перегородок. Узлы 9; 14 - 20 Схема расположения перегородок. Узлы 10…13 Схема расположения фриза Блок 2 (бассейн 25х11 м) Схема расположения перегородок на отм. 0.000. Спецификация Схема расположения перегородок на отм. 0.000 Схема расположения перегородок на отм. 0.000. Разрезы 1-1…8-8 Схема расположения перегородок на отм. 0.000. Разрезы 9-9…24-24 Схема расположения перегородок на отм. 0.000. Разрезы 25-25…38-38. Узел 1 Схема расположения перегородок на отм. 0.000. Узлы 2 - 6 Схема расположения перегородок на отм. 0.000. Узлы 7, 8 Схема расположения перегородок на отм. 0.000. Узлы 9, 12, 13 Схема расположения перегородок на отм. 0.000. Узел 10 Схема расположения перегородок на отм. 0.000. Узлы 11, 14…17 Схема расположения фриза и подвесного потолка Схема расположения лестниц Схема расположения перегородок на отм. 3.000. Общие данные Схема расположения перегородок на отм. 3.000 Схема расположения перегородок на отм. 3.000. Разрезы 1-1…14-14 Схема расположения перегородок на отм. 3.000. Разрезы 15-15…23-23. Узлы 1, 2. Спецификация Блок 3 Схема расположения перегородок Схема расположения перегородок. Разрезы 1-1…4-4. Узлы 1…5 Чертежи основного комплекта марки АС4 Блок 2 (бассейн 25х11 м) Общие данные Техническая спецификация металла Схема расположения перегородок на отм. 3.000 Разрезы 1-1, 2-2, 3-3, 4-4, 5-5, 6-6, 7-7, 8-8, 9-9 Схема расположения элементов крепления перегородок на отм. 3.000 Узлы 1, 2, 3, 4, 5. Сечения 1-1, 2-2, 3-3, 4-4, 5-5 | Разработан: | Союзспортпроект Спорткомитета СССР
| Утверждён: | 03.11.1987 Госгражданстрой (Gosgrazhdanstroy 351)
| Издан: | ЦИТП Госстроя СССР (CITP, Gosstroy (USSR) 1988 г. )
| Расположен в: |
|
                                                        
|