Скачать Типовой проект 274-33-14 Альбом I. Архитектурно-строительные, технологические, санитарно-технические, электротехнические чертежи, чертежи устройства связи, чертежи автоматизации санитарно-технических установок, холодоснабжениеДата актуализации: 10.08.2017 Типовой проект 274-33-14
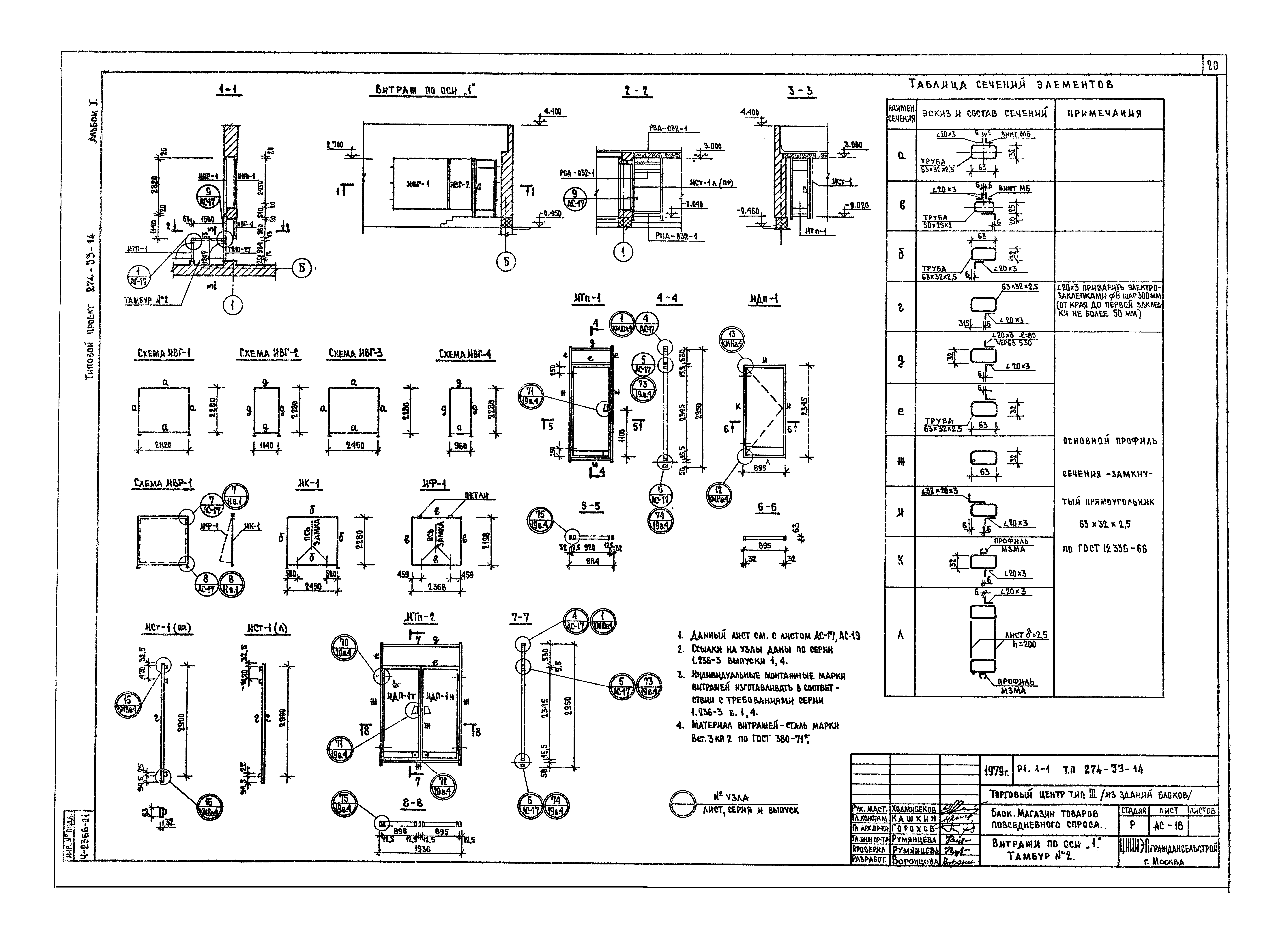
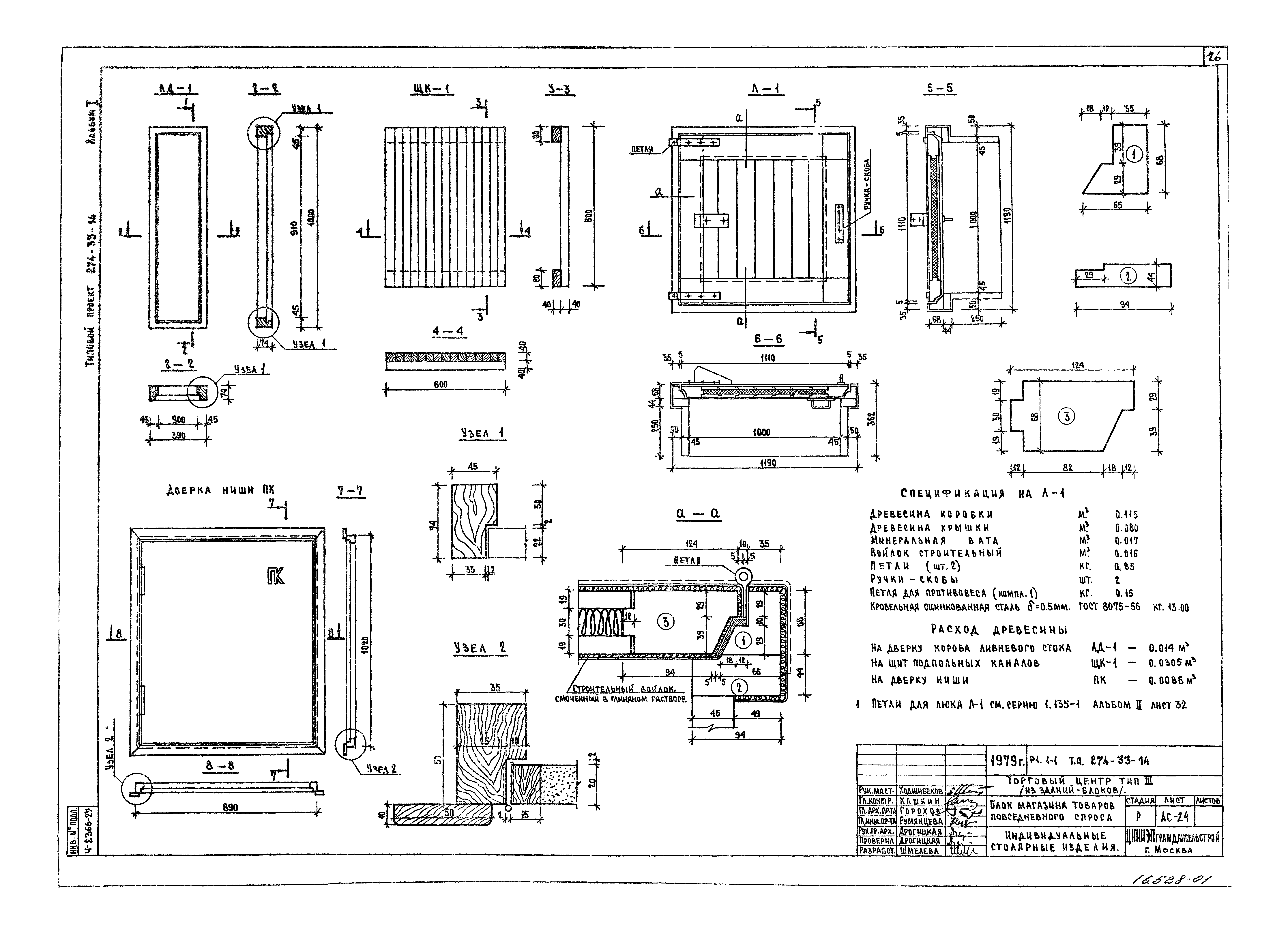
Альбом I. Архитектурно-строительные, технологические, санитарно-технические, электротехнические чертежи, чертежи устройства связи, чертежи автоматизации санитарно-технических установок, холодоснабжениеОбозначение: | Типовой проект 274-33-14 | Обозначение англ: | 274-33-14 | Статус: | действует | Название рус.: | Альбом I. Архитектурно-строительные, технологические, санитарно-технические, электротехнические чертежи, чертежи устройства связи, чертежи автоматизации санитарно-технических установок, холодоснабжение | Дата добавления в базу: | 01.09.2013 | Дата актуализации: | 05.05.2017 | Дата введения: | 08.02.1980 | Оглавление: | Титульный лист Ведомость чертежей альбома I Архитектурно-строительные чертежи. Часть Р1.0-1. Архитектурно-строительная часть ниже отм. 0.000. Часть Р1.1-1. Архитектурно-строительная часть выше отм. 0.000 Блокировка торгового центра из зданий блоков. Варианты блокировок Заглавный лист Ведомость внутренних отделочных работ Таблица нагрузок План фундаментов и подпольных каналов Сечения фундаментов и подпольных каналов Крыльца №№1, 2, 3. Тепловой ввод План 1 этажа Фасады в осях "1 - 5"; "А - Д"; "Г - Д"; "5 - 1" Разрезы 1-1, 2-2. Примечания к планам План перемычек. Сечения Узлы опирания прогонов План покрытия План кровли. Монолитные участки Витражи Спецификация материалов на витражи и тамбур Козырек №1 и №2 Козырек (армирование) Изоляционная дверь охлаждаемой камеры ДХК-1 Детали затвора изоляционной двери охлаждаемой камеры Индивидуальные столярные изделия Индивидуальные металлические изделия. Сводная спецификация столярных изделий Сводная спецификация железобетонных и металлических изделий Технологические чертежи. Часть Р4.1-1. Технология Заглавный лист марки "ТХ" План с расстановкой технологического оборудования в магазине Спецификация технологического оборудования Привязка сантехнических и электротехнических подводов к оборудованию Санитарно-технологические чертежи. Часть Р2.1-1. Отопление и вентиляция Заглавный лист Заглавный лист. Сводная спецификация План этажа План и разрез вентиляционной камеры с системой П-1 Теплоснабжение калориферов вентиляционных систем П-1 и У-1. Схемы вентиляционных систем П-1, У-1, В-1, В-2, ВЕ-1, ВЕ-2 Схема системы отопления. Узлы управления №1 и №2 Звено прямого участка шовного асбестоцементного воздуховода. Детали вентиляционных систем П-1 Часть Р3.1-1. Водопровод и канализация Заглавный лист План 1 этажа Схемы Спецификация Электротехнические чертежи. Часть Р5.1-1. Электрооборудование Заглавный лист Спецификация Расчетная схема магистральных сетей План осветительной сети План силовой сети. Магистральные сети Расчетная схема силовой групповой сети Опросный лист Чертежи устройства связи. Часть Р6.1-1. Устройства связи Пояснения к проекту. Перечень чертежей УС Спецификация. Условные обозначения Схемы расположения устройств связи План 1 этажа. План кровли Холодоснабжение Заглавный лист План камеры. Разрез 1-1. Схема холодоснабжения Часть Р5.3-1. Автоматизация санитарно-технических устройств Заглавный лист Функциональная схема П-1 Принципиальная электрическая схема управления П-1 Принципиальная электрическая схема регулирования П-1 Схема подключений П-1. Схема расположений Водопровод и канализация Вариант применения пластмассовых труб для водоснабжения (подводка к унитазу), канализации и водостоков | Разработан: | ЦНИИЭП граждансельстрой
| Утверждён: | 10.08.1978 Госгражданстрой (Gosgrazhdanstroy 169)
| Расположен в: |
|
                                                              
|