Скачать Типовой проект 144-16-137.90 Альбом I. Пояснительная записка. Архитектурно-строительные решения. Отопление и вентиляция. Водопровод и канализация. Электроосвещение. Связь и сигнализацияДата актуализации: 10.08.2017 Типовой проект 144-16-137.90
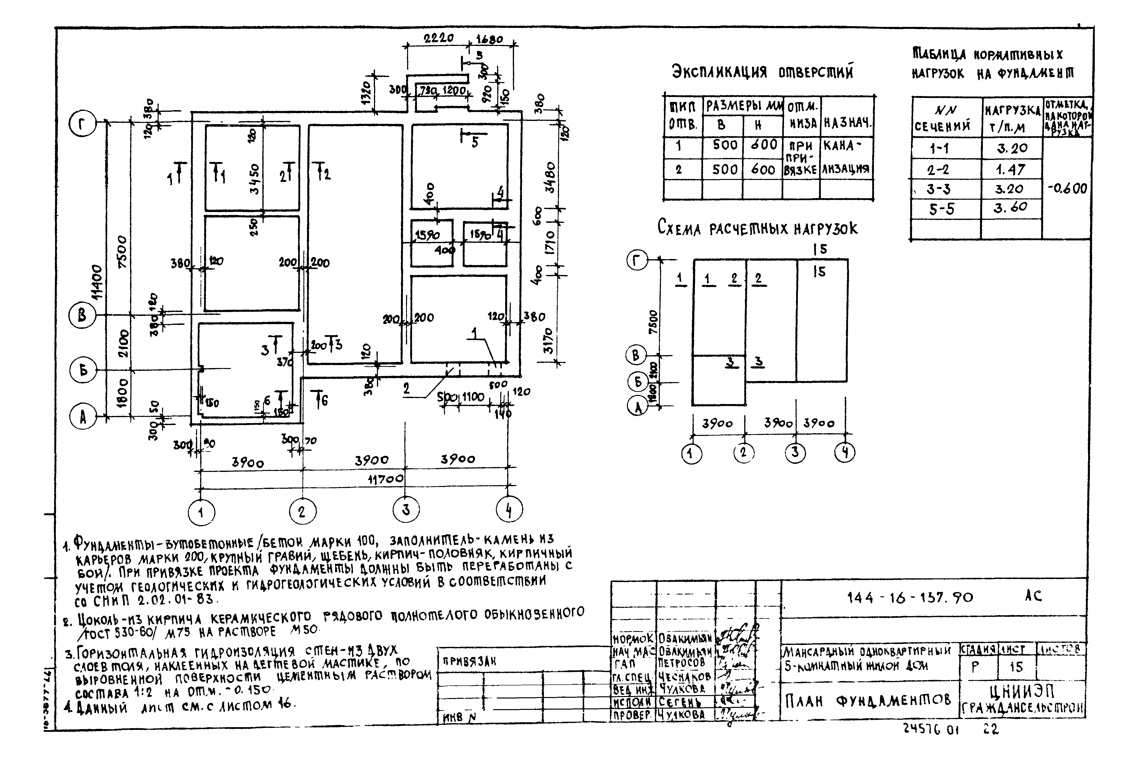
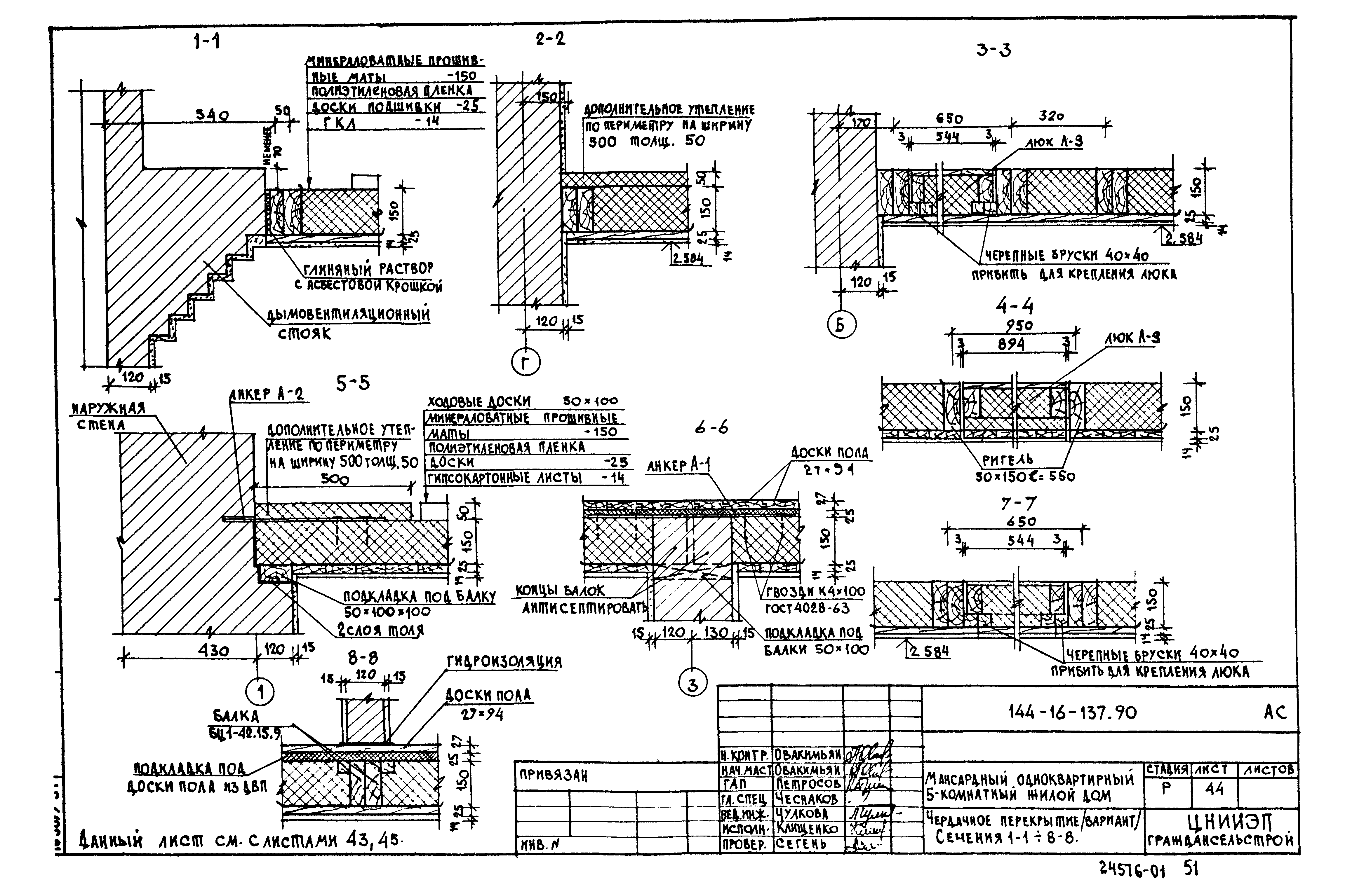
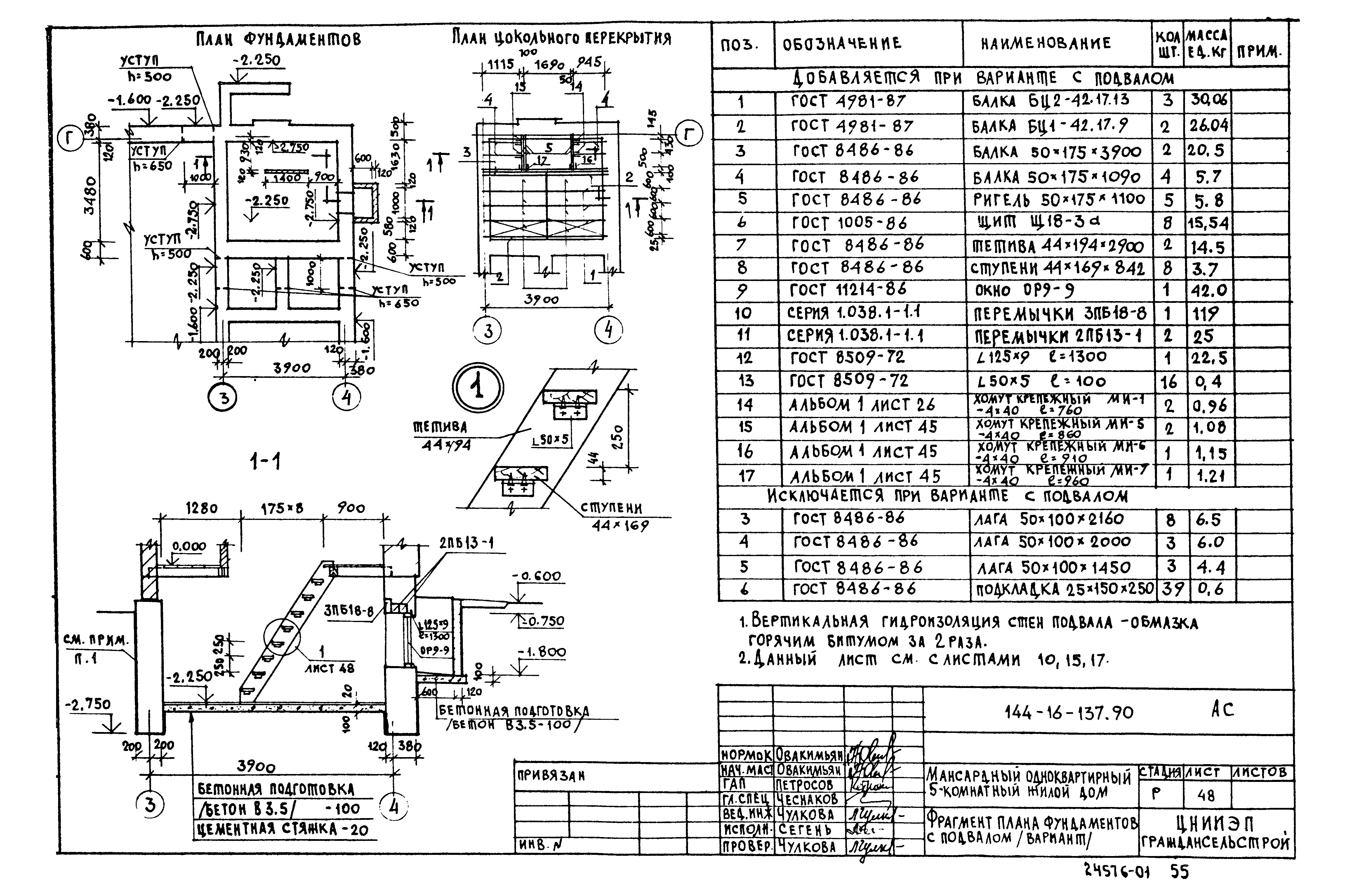
Альбом I. Пояснительная записка. Архитектурно-строительные решения. Отопление и вентиляция. Водопровод и канализация. Электроосвещение. Связь и сигнализацияОбозначение: | Типовой проект 144-16-137.90 | Обозначение англ: | 144-16-137.90 | Статус: | не определен законодательством | Название рус.: | Альбом I. Пояснительная записка. Архитектурно-строительные решения. Отопление и вентиляция. Водопровод и канализация. Электроосвещение. Связь и сигнализация | Дата добавления в базу: | 01.09.2013 | Дата актуализации: | 05.05.2017 | Дата введения: | 21.09.1990 | Оглавление: | Титульный лист Содержание альбома Пояснительная записка Архитектурно-строительные решения Общие данные Фасады 1 - 4; Г - А; 4 - 1; А- Г План 1 этажа, мансарды Спецификация столярных изделий План полов. Экспликация полов Ведомость отделки помещений и проемов Кладочные планы Варианты планировочного решения (фрагменты) Узлы плана 1 - 4 Узлы плана 5 - 8 Разрезы 1-1; 2-2 Узлы разрезов 1 - 6 План фундаментов Сечения фундаментов 1-1 - 6-6 План цокольного перекрытия Цокольное перекрытие. Сечения 1-1 - 7-7 Цокольное перекрытие. Сечение 8-8. Съемный щит План перемычек. Ведомость перемычек План перемычек мансарды. Ведомость перемычек Ведомость перемычек Спецификация перемычек План чердачного перекрытия Чердачное перекрытие. Сечения 1-1 - 4-4. Узлы 1, 2 Чердачное перекрытие. Сечения 5-5 - 9-9 Люк на чердак Л-1. Антресоль А-1 Люк на чердак Л-2. Спецификация Внутриквартирная лестница. Разрезы 1-1 - 3-3 Внутриквартирная лестница. Узлы 1 - 6 Внутриквартирная лестница. Спецификация Оконный блок ОК-3. Узлы. Спецификация Крыша (Рсн н = 100 кгс/кв. м). План стропил. Спецификация Крыша (Рсн н = 100 кгс/кв. м). План кровли. Спецификация Крыша (Рсн н = 100 кгс/кв. м). Разрезы 1-1 - 6-6 Крыша. Узлы 1, 2 Крыша. Узлы 3, 4, МИ-8, МИ-9 Крыша. Узлы 5, 6, ЗД-2 Крыша. Узлы 7, 9 Рама вальмы Р-1 - Р-6 Мансарда. План расстановки стоек каркаса перегородок Дымовентиляционный стояк План чердачного перекрытия без щитов наката (вариант) Чердачное перекрытие (вариант). Сечения 1-1 - 8-8 Люк на чердак Л-3. Хомуты (вариант) Крыша (вариант Рсн н = 150 кгс/кв. м). План стропил. Спецификация Крыша (вариант Рсн н = 150 кгс/кв. м). Спецификация Фрагмент плана фундаментов с подвалом (вариант) Люфт-клозет (вариант) Сводная спецификация Варианты наружных стен из пустотелого керамического кирпича Примеры устройства монолитной перемычки Спецификация каркасов КР-1 - КР-5 Отопление и вентиляция Общие данные План 1 этажа. Фрагменты планов при варианте с подвалом План мансарды. Фрагменты планов при варианте с люфт-клозетом Схема систем отопления ВЕ1 Водопровод и канализация Общие данные Планы этажей Схемы систем В1, Т3, К1 Электрооборудование Общие данные Планы расположения осветительных сетей этажа и мансарды Планы расположения осветительных сетей фрагментов 1 этажа, мансарды, подвала (вариант) Слабые токи и сигнализация Общие данные Схема расположения устройств связи. План кровли План расположения сетей связи на этаже и в мансарде Газоснабжение Общие данные План. Схема газооборудования | Разработан: | ЦНИИЭП граждансельстрой
| Утверждён: | 21.09.1990 Госкомархитектура (158)
| Издан: | ЦИТП Госстроя СССР (CITP, Gosstroy (USSR) 1991 г. )
| Расположен в: |
|
                                                                                     
|