| ||||||||||||||||||||||||||
Скачать Типовые материалы для проектирования 407-03-384.86 Альбом 1. Электротехническая часть. Архитектурно-строительные решения. Конструкции металлическиеДата актуализации: 10.08.2017
|
| Обозначение: | Типовые материалы для проектирования 407-03-384.86 |
| Обозначение англ: | 407-03-384.86 |
| Статус: | cправочные материалы, мп, тпр |
| Название рус.: | Альбом 1. Электротехническая часть. Архитектурно-строительные решения. Конструкции металлические |
| Дата добавления в базу: | 01.09.2013 |
| Дата актуализации: | 05.05.2017 |
| Дата введения: | 06.02.1986 |
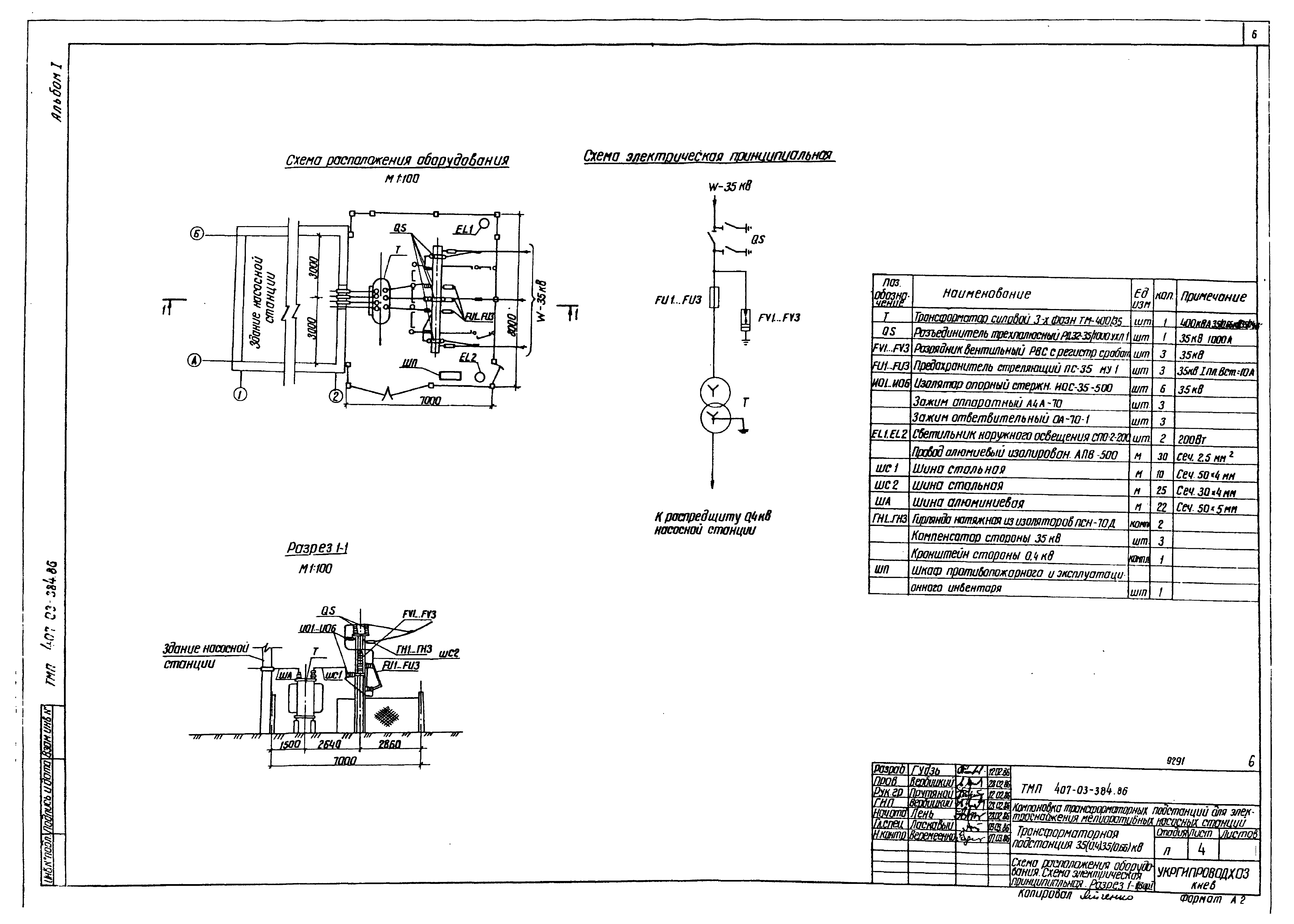
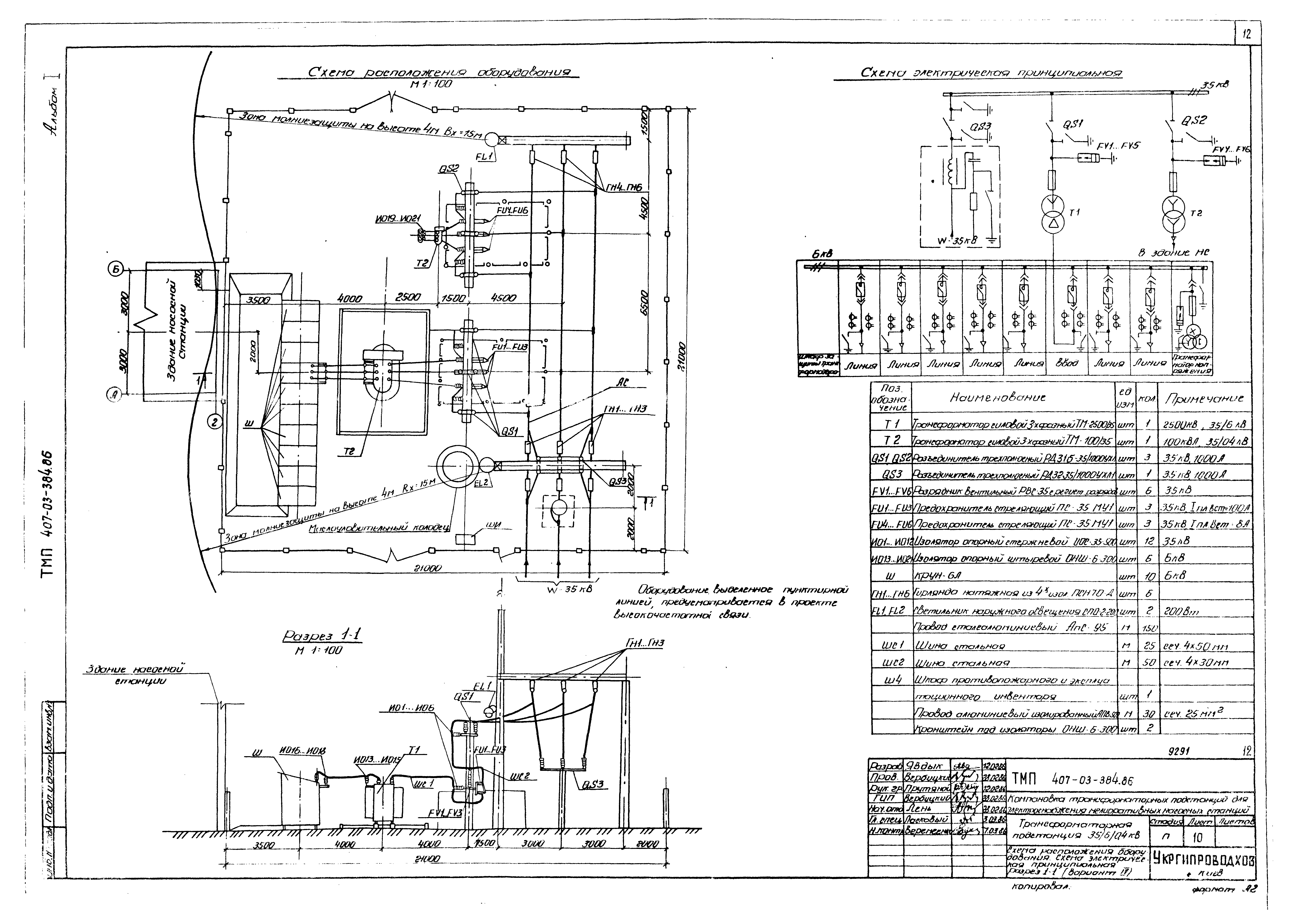
| Оглавление: | Содержание Пояснительная записка Схема расположения оборудования. Схема электрическая принципиальная. Разрез 1-1 (вариант I) План фундаментов (вариант I) Схема расположения оборудования. Схема электрическая принципиальная. Разрез 1-1 (вариант II) План фундаментов (вариант II) Схема расположения оборудования. Схема электрическая принципиальная. Разрез 1-1 (вариант III) План фундаментов (вариант III) Схема расположения оборудования. Схема электрическая принципиальная. Разрез 1-1 (вариант IV) План фундаментов (вариант IV) Схема расположения оборудования. Схема электрическая принципиальная. Разрез 1-1 (вариант V) План фундаментов (вариант V) Схема расположения оборудования. Схема электрическая принципиальная. Разрез 1-1 (вариант VI) План фундаментов (вариант VI) Схема расположения оборудования. Схема электрическая принципиальная. Разрез 1-1 (вариант VII) План фундаментов (вариант VII) Схема расположения оборудования. Схема электрическая принципиальная. Разрез 1-1 (вариант VIII) План фундаментов (вариант VIII) Схема расположения оборудования. Схема электрическая принципиальная. Разрез 1-1 (вариант IX) План фундаментов (вариант IX) Фундамент под трансформатор мощностью 100 кВА Рама МТ-1 для установки трансформатора мощностью 100 кВА Фундамент под трансформатор мощностью 160, 250 кВА Рама МТ-2 для установки трансформатора мощностью 160, 250 кВА Фундамент под трансформатор мощностью 400 кВА Рама МТ-3 для установки трансформатора мощностью 400, 630 (1000, 1600) кВА Фундамент под трансформатор мощностью 630 кВА Фундамент под трансформатор мощностью 1000 (1600)кВА Фундамент под трансформатор ОМ-33/35-71У1 Фундамент под трансформатор ТМ-1600/35; ТМ-2500/35; ТМ-4000/35; ТМ-6300/35 кВ Фундамент под шкафы КРУН-10 Рама Р-1 Маслоуловительный колодец емкостью 1,0; 2,0; 3,0 и 6,0 куб. м Столб ограды СО-31В. Сборочный чертеж Столб ограды СО-31, СО-31У. Сборочный чертеж Портал для оборудования 35 кВ. Монтажный чертеж Траверса разъединителя Траверса разъединителя. Сборочный чертеж Накладка Петля Траверса предохранителя Траверса предохранителя. Сборочный чертеж Основание Кронштейн Шина Планка Портал для установки предохранителей РС-35МУ1. Монтажный чертеж Рама Рама. Сборочный чертеж Косынка Секция Стойка Поперечина Секция. Сборочный чертеж Секция Стойка Секция. Сборочный чертеж Створка ворот Поперечина Стойка Створка ворот. Сборочный чертеж Поперечина Ушко Палец Втулка Створка ворот Планка Упор Створка ворот. Сборочный чертеж Калитка Засов Стойка Калитка. Сборочный чертеж Стойка Поперечина Ручка Ось Ручка Пружина Хомут Хомут. Сборочный чертеж |
| Разработан: | Укргипроводхоз Минводхоза Украинской ССР |
| Утверждён: | 06.02.1986 Минводхоз СССР (USSR Minvodkhoz 472) |
| Расположен в: |























































