Скачать Типовой проект 407-3-409см.86 Альбом II. Установка трансформаторов и общеподстанционные устройства (электроснабжение, архитектурно-строительные решения, строительные изделия, связь и сигнализация, пожарная сигнализация)Дата актуализации: 10.08.2017 Типовой проект 407-3-409см.86
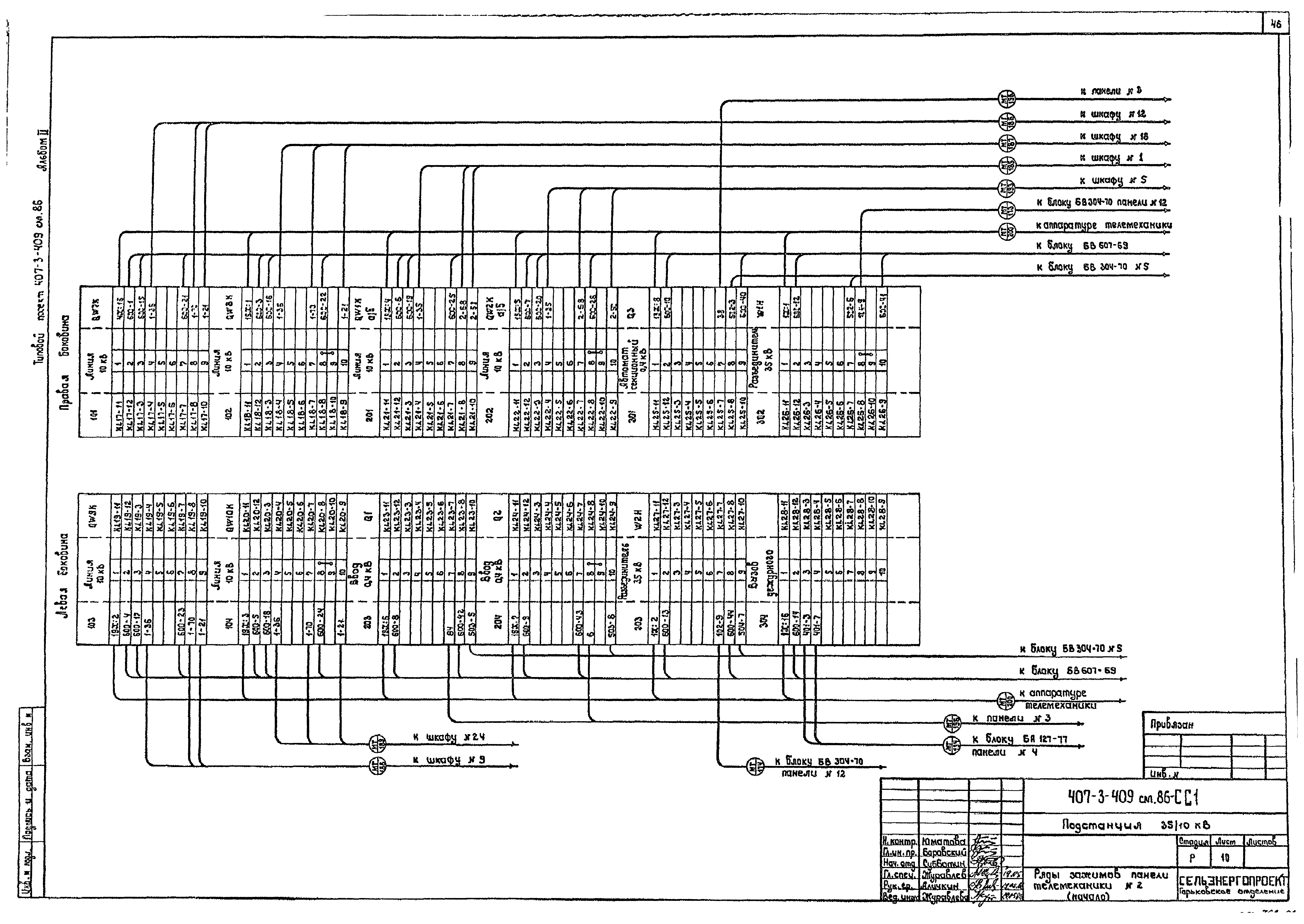
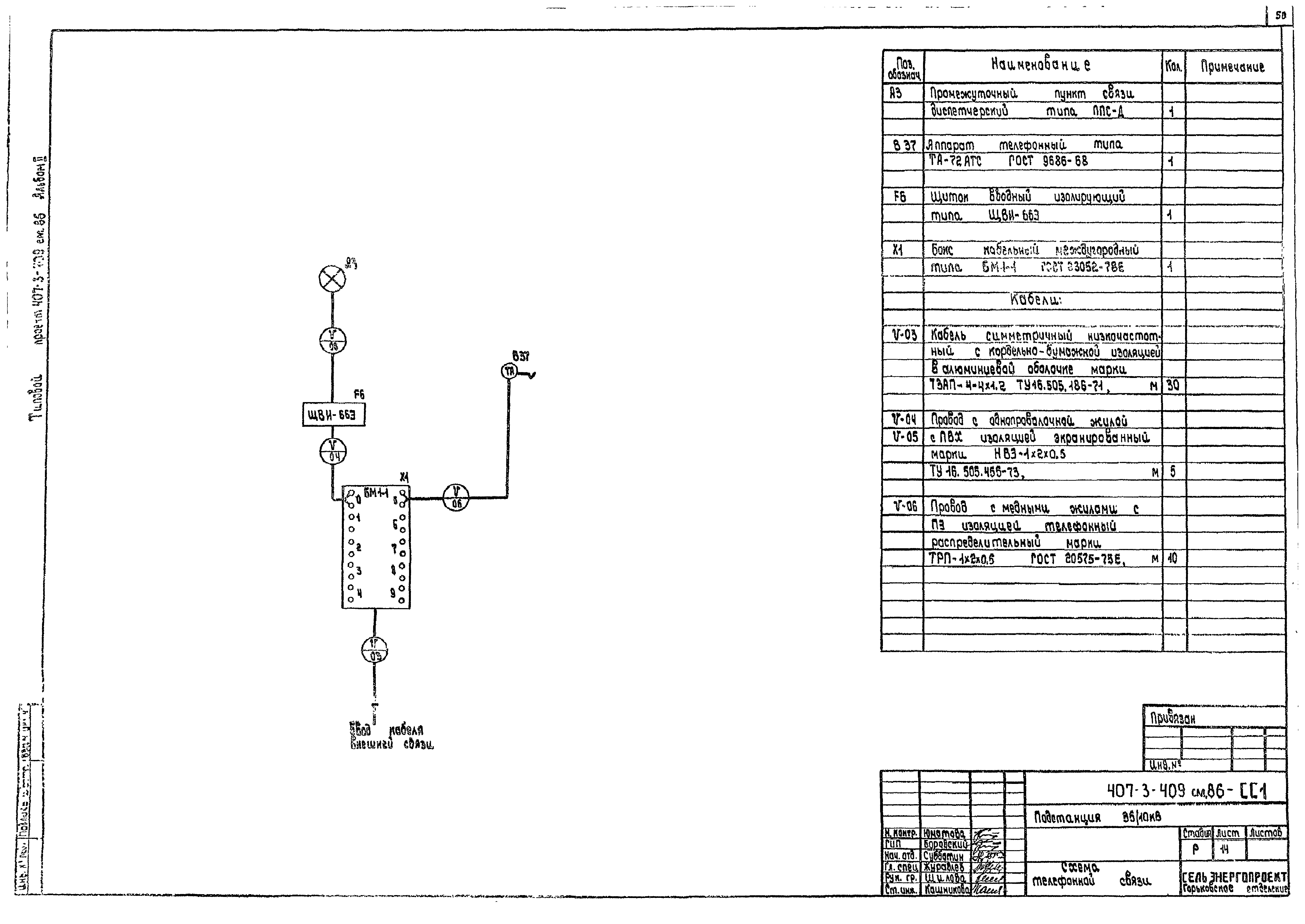
Альбом II. Установка трансформаторов и общеподстанционные устройства (электроснабжение, архитектурно-строительные решения, строительные изделия, связь и сигнализация, пожарная сигнализация)Обозначение: | Типовой проект 407-3-409см.86 | Обозначение англ: | 407-3-409см.86 | Статус: | не определен законодательством | Название рус.: | Альбом II. Установка трансформаторов и общеподстанционные устройства (электроснабжение, архитектурно-строительные решения, строительные изделия, связь и сигнализация, пожарная сигнализация) | Дата добавления в базу: | 01.09.2013 | Дата актуализации: | 05.05.2017 | Дата введения: | 09.10.1986 | Оглавление: | Титульный лист Чертежи основного комплекта марки ЭС Общие данные Схема электрическая РУ35 кВ Схема электрическая РУ10 кВ План подстанции и разрезы по ОРУ 35 - 10 кВ План подстанции, разрез, вид. Пример с кабельными вводами 10 кВ Пример. ОРУ 35 - 10 кВ с установкой РВС-35 на ОРУ Схема щита 0,4 кВ собственных нужд Молниезащита и освещение ОРУ 35 - 10 кВ Заземление ОРУ 35 - 10 кВ Устройства для создания уклона трансформаторов и упоры Упоры. Исполнение I, II. Держатель Установка изоляторов ИОС-35-500I УХЛ и ИОС-10-600 УХЛ, т на трансформаторе Гирлянда изоляторов натяжная Чертежи основного комплекта марки АС Общие данные Схема генплана Схема расположения сооружений открытой части подстанции Схема расположения элементов ограждения ОРУ Фундамент под трансформатор Схема расположения элементов ограждения трансформатора Монтажные узлы ограждения трансформатора Установочный чертеж портала трансформатора Установочный чертеж сварочного поста Установочный чертеж опор под изоляторы Установочный чертеж прожекторной мачты Рама под трансформатор МТ1 Петля ПТ1 Панель ПМ1 Калитка К1 Стойка КД1 Элементы крепления КД2, КД3 Элемент крепления КД4 Ручка Р1 Рама МО1 Лестница Л1 Хомут Х1 Оголовок для портала 01 Траверса ТМ1 Металлическое обрамление МО2 для сварочного поста Стальной элемент МО3 для сварочного поста Оголовок О2 Молниезащита ПА1 Кронштейн КР1 для крепления опорных изоляторов на крышке трансформатора Кронштейн КР2 для установки изоляторов на трансформаторе Чертежи основного комплекта марки СС1 Общие данные Схема объема телемеханизации Таблица объектов ТС Таблица объектов ТУ Схема электрическая принципиальная ТУ-КП Привязка промежуточных реле к цепям управления Ряд зажимов панели телемеханики №1 Ряд зажимов панели телемеханики №2 Входной клеммник стойки КП1 Схема телефонной связи План раскладки кабелей на отметках 0.000 и 7.130 Кабельный журнал Расположение оборудования связи на сварном металлическом каркасе Чертежи основного комплекта марки СС2 Общие данные Схема соединений и сетей План расположения сетей пожарной сигнализации Схема подключения сетей электропитания План раскладки кабелей на отм. 0.000 и 7.130 Кабельный журнал | Разработан: | Сельэнергопроект
| Утверждён: | 17.09.1986 Министерство путей сообщения СССР (USSR Ministry of Railroads А-3686У)
| Расположен в: |
|
                                                         
|