| ||||||||||||||||||||||||||||||||||||
Скачать ГОСТ Р МЭК 60901-2011 Лампы люминесцентные одноцокольные. Эксплуатационные требованияДата актуализации: 10.08.2017
|
| Обозначение: | ГОСТ Р МЭК 60901-2011 |
| Обозначение англ: | GOST R IEC 60901-2011 |
| Статус: | действует |
| Название рус.: | Лампы люминесцентные одноцокольные. Эксплуатационные требования |
| Название англ.: | Single-capped fluorescent lamps. Performance requirements |
| Дата добавления в базу: | 01.09.2013 |
| Дата актуализации: | 05.05.2017 |
| Дата введения: | 01.07.2012 |
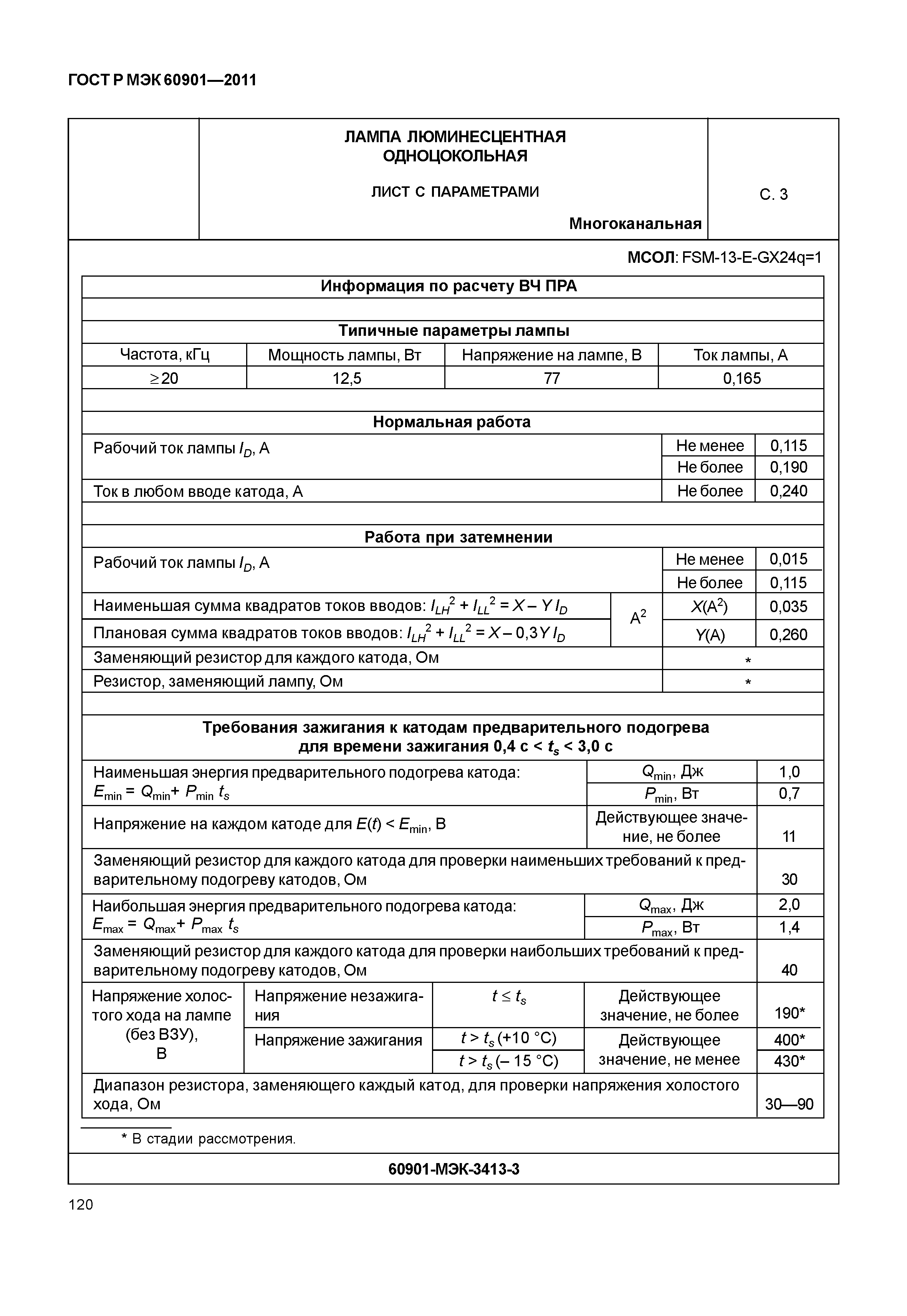
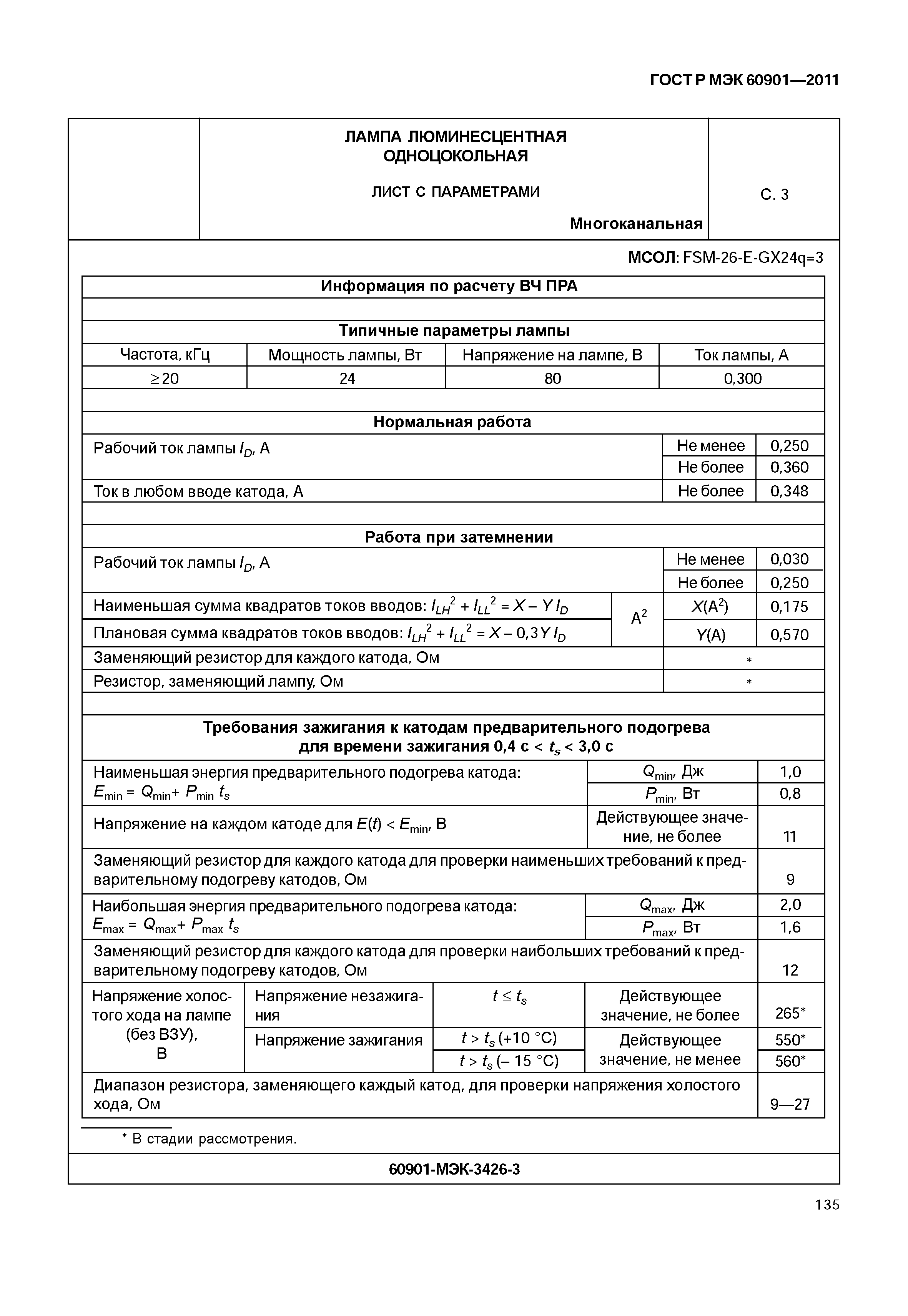
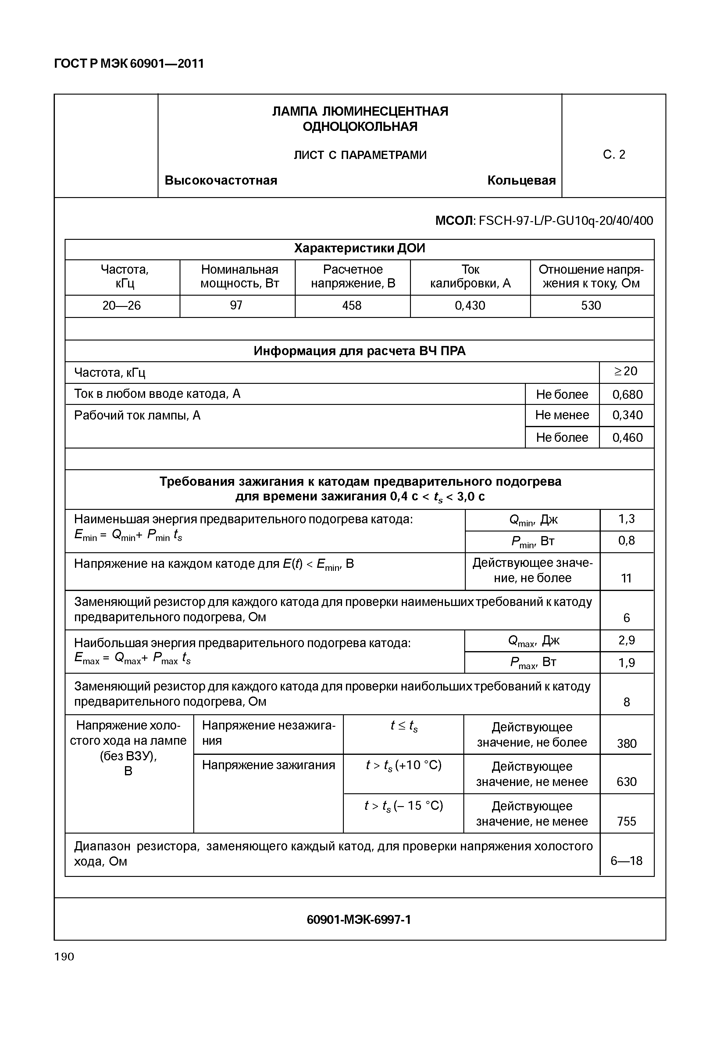
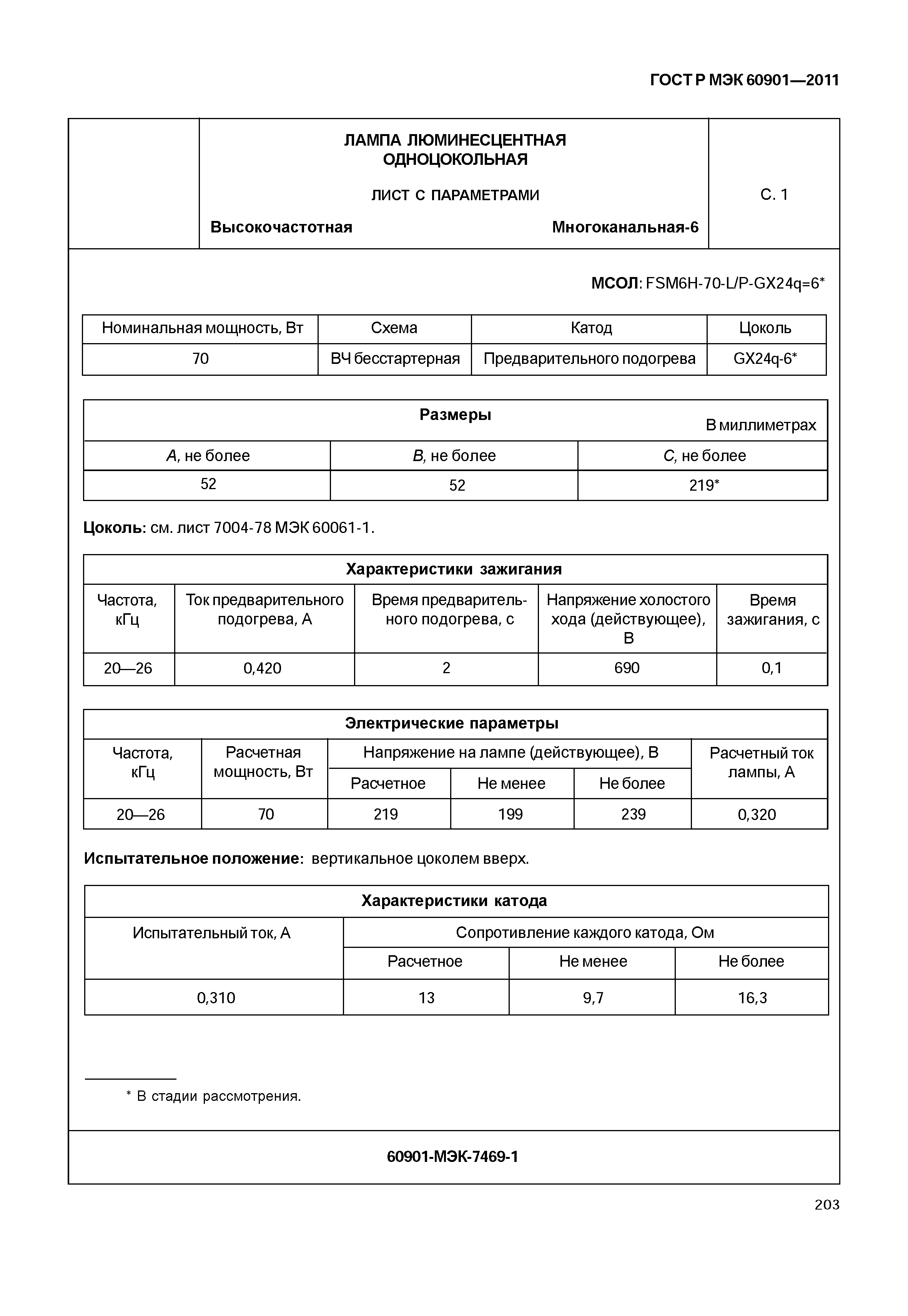
| Область применения: | Стандарт распространяется на одноцокольные люминесцентные лампы для общего освещения и устанавливает эксплуатационные требования. Требования стандарта относятся только к испытанию типа. Правила приемки, включая методы статистической оценки, в стадии рассмотрения. Стандарт распространяется на лампы следующих типов и способов работы с внешними пускорегулирующими аппаратами (ПРА): a) лампы с внутренними средствами зажигания и предварительным подогревом катодов для работы на сетевых частотах переменного тока; b) лампы с внешними средствами зажигания и предварительным подогревом катодов для работы на сетевых частотах переменного тока со стартером и на высокой частоте (ВЧ); c) лампы с внешними средствами зажигания и предварительным подогревом катодов для работы на сетевых частотах переменного тока без стартера (бесстартерные) и на ВЧ; d) лампы с внешними средствами зажигания и предварительным подогревом катодов для работы на ВЧ; e) лампы с внешними средствами зажигания без предварительного подогрева катодов для работы на ВЧ. Для некоторых требований в стандарте дана ссылка на «соответствующий лист с параметрами». Для некоторых ламп эти листы с параметрами содержатся в стандарте. Для других ламп, входящих в область применения стандарта, лист с параметрами предоставляется изготовителем лампы или ответственным поставщиком. |
| Оглавление: | 1 Общие положения 1.1 Область применения 1 .2 Общие сведения 1.3 Нормативные ссылки 1.4 Термины и определения 1.5 Требования к лампе 1.6 Информация для расчета ПРА и стартера 1.7 Информация для расчета светильника 2 Листы с параметрами 2.1 Общие принципы нумерации листов с параметрами 2.2 Листы с параметрами для нанесения размеров ламп 2.3 Листы с параметрами ламп 2.4 Листы с наибольшими контурами ламп Приложение А (обязательное) Метод испытания характеристик зажигания Приложение В (обязательное) Метод испытания электрических, световых параметров и характеристик катодов Приложение С (обязательное) Метод испытания стабильности светового потока и продолжительности горения Приложение D (справочное) Информация для расчета ПРА и стартера Приложение Е (справочное) Информация для расчета светильника Приложение ДА (справочное) Сведения о соответствии ссылочных международных стандартов ссылочным национальным стандартам Российской Федерации (и действующим в этом качестве межгосударственным стандартам) |
| Разработан: | ГУП Республики Мордовия НИИИС им. А.Н. Лодыгина |
| Утверждён: | 21.09.2011 Федеральное агентство по техническому регулированию и метрологии (328-ст) |
| Издан: | Стандартинформ (2012 г. ) |
| Расположен в: | |
| Заменяет собой: | |
| Нормативные ссылки: |
|





























































































































































































































































