Информационная система
«Ёшкин Кот»

Скачать базу одним архивом
Скачать обновления
История создания базы
Карта сайта

Скачать Типовой проект 902-2-471.89 Альбом 3. Отстойники. Конструкции железобетонные. Конструкции металлические

Дата актуализации: 10.08.2017

Типовой проект 902-2-471.89

Альбом 3. Отстойники. Конструкции железобетонные. Конструкции металлические

Обозначение: Типовой проект 902-2-471.89
Обозначение англ: 902-2-471.89
Статус:не определен законодательством
Название рус.:Альбом 3. Отстойники. Конструкции железобетонные. Конструкции металлические
Дата добавления в базу:01.09.2013
Дата актуализации:05.05.2017
Дата введения:12.05.1989
Оглавление:Титульный лист
Содержание альбома
Конструкции железобетонные
   Общие данные
   Схема группы отстойников
   Отстойник. План. Сечения
   Отстойник. Сечения 5-5 - 10-10
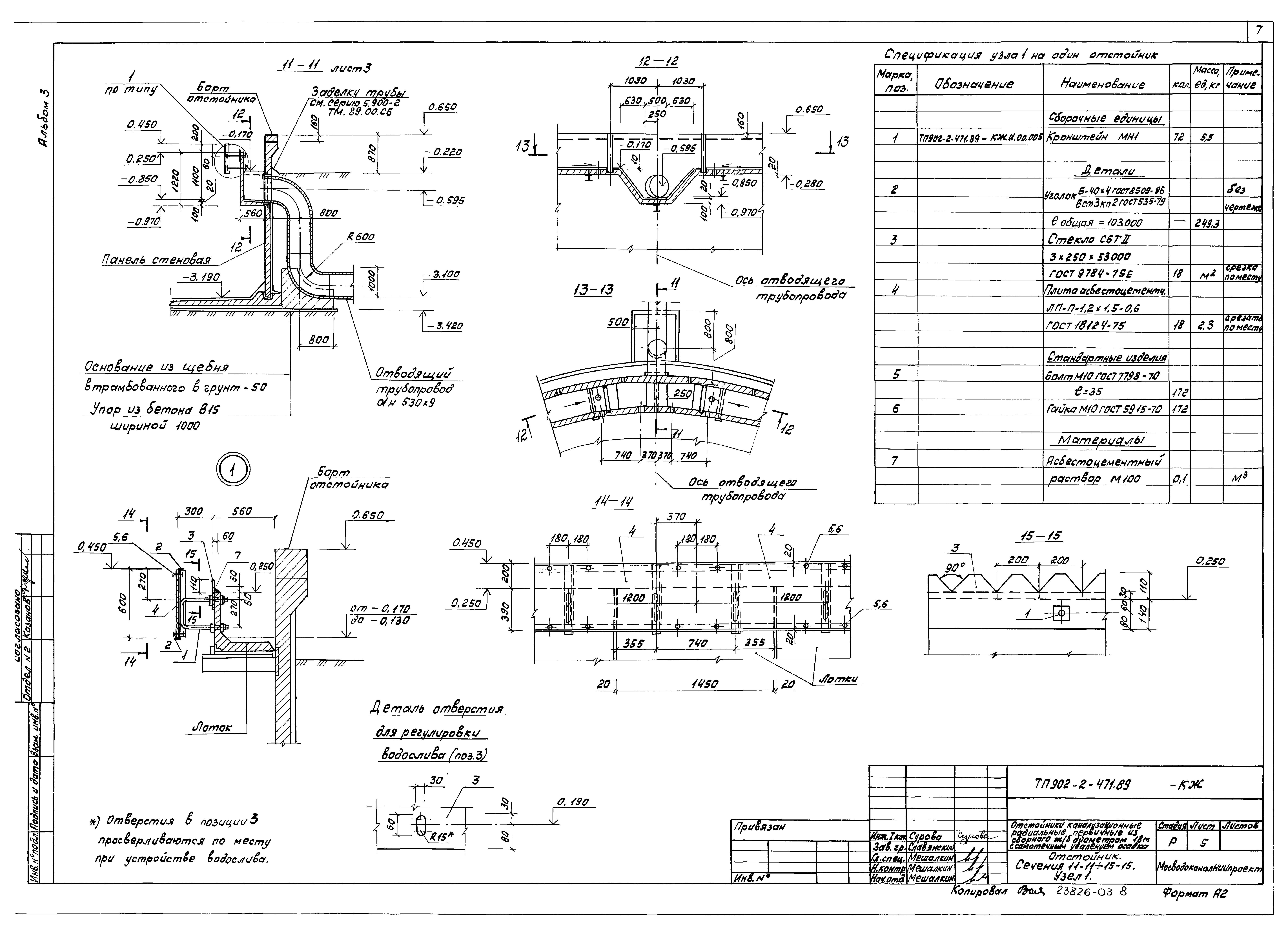
   Отстойник. Сечения 11-11 - 15-15. Узел 1
   Отстойник. Днище. Армирование
   Отстойник. Центральная часть. Армирование. Сечения 8-8 - 11-11
   Отстойник. Схема расположения стеновых панелей
   Отстойник. Узлы 3 - 5. Деталь навивки кольцевой арматуры
   Отстойник. Схема расположения лотков. Узлы 6, 7. Сечения 1-1 - 5-5
   Отстойник. Лоток Лом2, борт Бм1. Армирование
   Отстойник. Вариант с термонатяжением арматуры. Схема расположения панелей и лотков
   Отстойник. Вариант с термонатяжением арматуры. Узлы 3, 4, 5. Армирование
   Отстойник. Вариант с термонатяжением арматуры. Узел 6
   Отстойник. Вариант с термонатяжением арматуры. Узел 7
   Отстойник. Вариант с термонатяжением арматуры. План размещения оборудования
   Распределительная чаша. План 1-1. Сечения 2-2 - 5-5
   Распределительная чаша. Армирование. Сечения 1-1 - 4-4
   Распределительная чаша. Армирование. Монолитный участок Ум1
   Жиросборники №1, №2
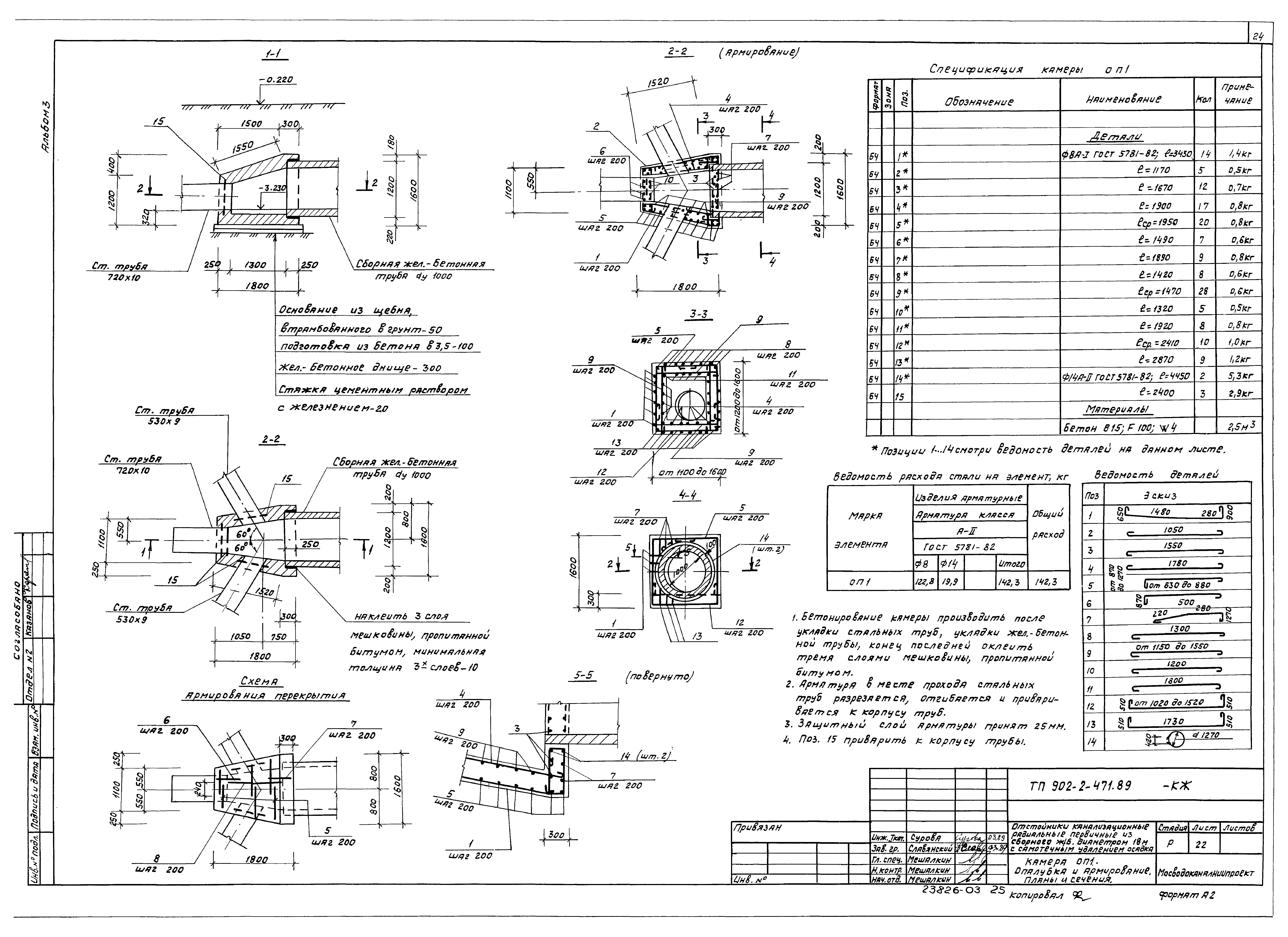
   Камера ОП1. Опалубка и армирование. Планы и сечения
Конструкции металлические
   Общие данные
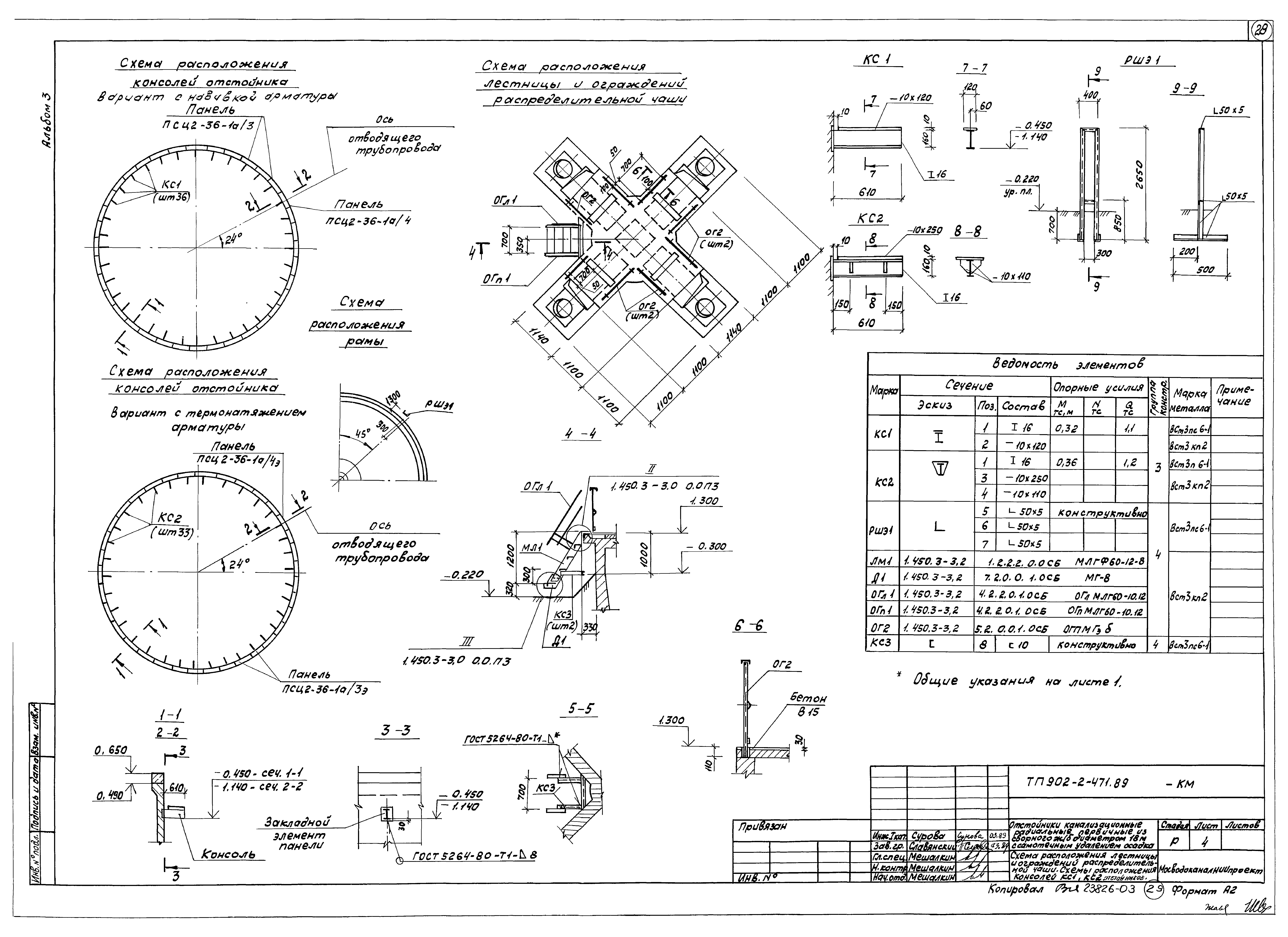
   Схема расположения лестницы и ограждений распределительной чаши. Схемы расположения консолей КС1, КС2 отстойников
Разработан: МосводоканалНИИпроект
Утверждён:28.04.1989 Мосгорисполком (Mosgorispolkom 890р)
Расположен в:Техническая документация Строительство Справочные документы Типовые строительные конструкции, изделия и узлы Общероссийский строительный каталог Промышленные предприятия, здания и сооружения Здания и сооружения санитарно-технические Канализация Сооружения механической очистки Отстойники Отстойники радиальные первичные
Типовой проект 902-2-471.89Типовой проект 902-2-471.89Типовой проект 902-2-471.89Типовой проект 902-2-471.89Типовой проект 902-2-471.89Типовой проект 902-2-471.89Типовой проект 902-2-471.89Типовой проект 902-2-471.89Типовой проект 902-2-471.89Типовой проект 902-2-471.89Типовой проект 902-2-471.89Типовой проект 902-2-471.89Типовой проект 902-2-471.89Типовой проект 902-2-471.89Типовой проект 902-2-471.89Типовой проект 902-2-471.89Типовой проект 902-2-471.89Типовой проект 902-2-471.89Типовой проект 902-2-471.89Типовой проект 902-2-471.89Типовой проект 902-2-471.89Типовой проект 902-2-471.89Типовой проект 902-2-471.89Типовой проект 902-2-471.89Типовой проект 902-2-471.89Типовой проект 902-2-471.89Типовой проект 902-2-471.89Типовой проект 902-2-471.89Типовой проект 902-2-471.89

© 2013 Ёшкин Кот :-) Карта сайта