Информационная система
«Ёшкин Кот»

Скачать базу одним архивом
Скачать обновления
История создания базы
Карта сайта

Скачать Типовой проект 902-2-471.89 Альбом 2. Технологические решения. Отопление и вентиляция. Внутренний водопровод и канализация

Дата актуализации: 10.08.2017

Типовой проект 902-2-471.89

Альбом 2. Технологические решения. Отопление и вентиляция. Внутренний водопровод и канализация

Обозначение: Типовой проект 902-2-471.89
Обозначение англ: 902-2-471.89
Статус:не определен законодательством
Название рус.:Альбом 2. Технологические решения. Отопление и вентиляция. Внутренний водопровод и канализация
Дата добавления в базу:01.09.2013
Дата актуализации:05.05.2017
Дата введения:12.05.1989
Оглавление:Содержание альбома
Технологические решения
   Общие данные
   План группы отстойников
   Отстойник №1. План. Разрезы
   Камера выпуска осадка. Планы
   Камера выпуска осадка. Разрезы А-А, Б-Б
   Камера выпуска осадка. Разрезы В-В, Г-Г
   Камера выпуска осадка. Аксонометрическая схема трубопроводов
   Распределительная чаша. Планы. Разрезы
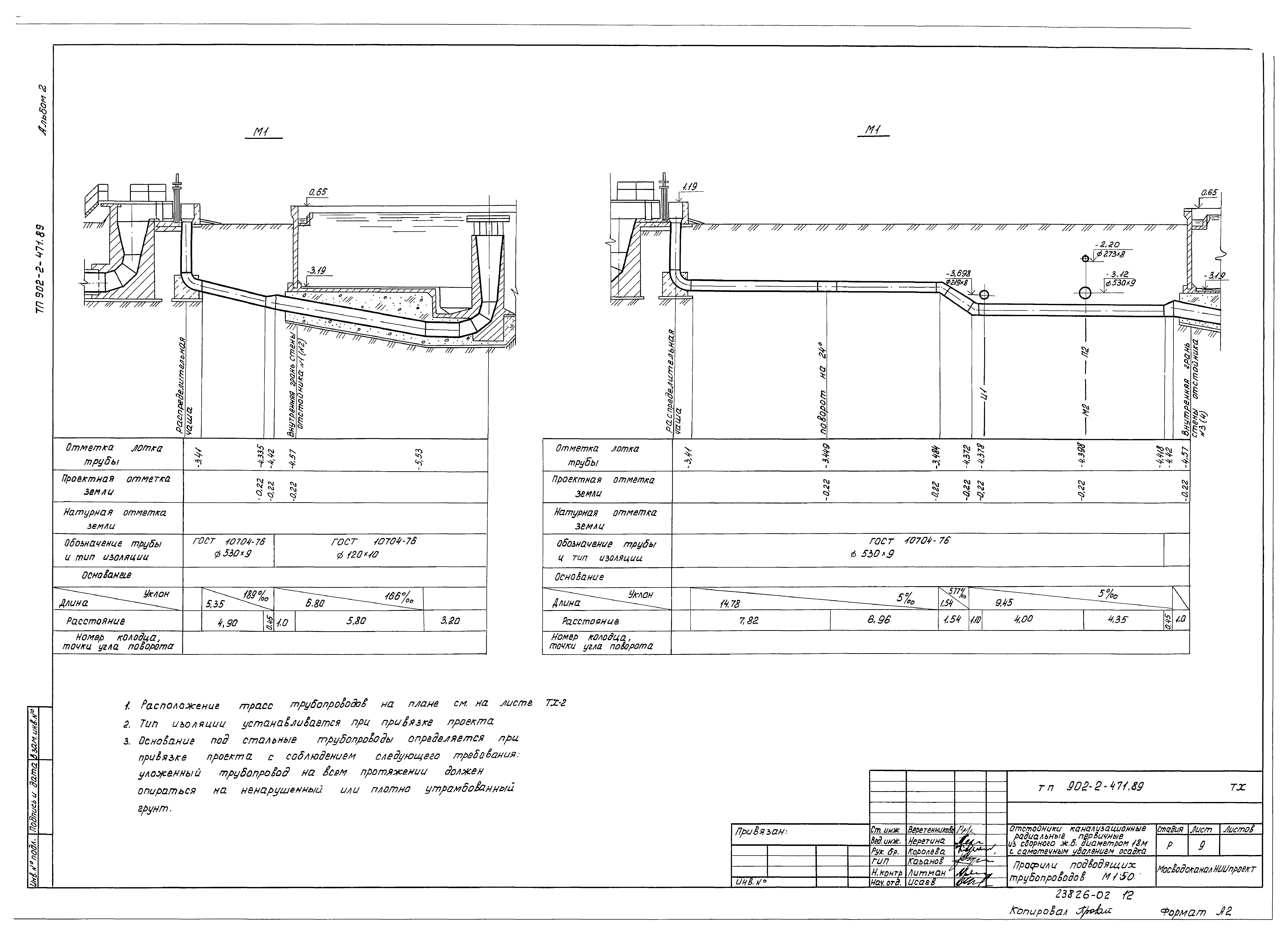
   Профили подводящих трубопроводов
   Профили отводящих трубопроводов
   Профили трубопроводов сырого осадка
   Профили трубопроводов опорожнения и промывной воды
   Профили жиропроводов
Отопление и вентиляция
   Камера выпуска осадка. Общие данные
   Камера выпуска осадка. Отопление и вентиляция. Планы на отм. - 3.900 и 0.000. Разрезы 1-1, 2-2. Спецификация отопительно-вентиляционных установок
   Камера выпуска осадка. Схемы системы отопления, системы теплоснабжения установки П1, схемы систем П1, В1. Узел управления
   Переходы
   Сетка в рамке
Внутренние водопровод и канализация
   Общие данные
   Камера выпуска осадка. План и схемы систем
Разработан: МосводоканалНИИпроект
Утверждён:28.04.1989 Мосгорисполком (Mosgorispolkom 890р)
Расположен в:Техническая документация Строительство Справочные документы Типовые строительные конструкции, изделия и узлы Общероссийский строительный каталог Промышленные предприятия, здания и сооружения Здания и сооружения санитарно-технические Канализация Сооружения механической очистки Отстойники Отстойники радиальные первичные
Типовой проект 902-2-471.89Типовой проект 902-2-471.89Типовой проект 902-2-471.89Типовой проект 902-2-471.89Типовой проект 902-2-471.89Типовой проект 902-2-471.89Типовой проект 902-2-471.89Типовой проект 902-2-471.89Типовой проект 902-2-471.89Типовой проект 902-2-471.89Типовой проект 902-2-471.89Типовой проект 902-2-471.89Типовой проект 902-2-471.89Типовой проект 902-2-471.89Типовой проект 902-2-471.89Типовой проект 902-2-471.89Типовой проект 902-2-471.89Типовой проект 902-2-471.89Типовой проект 902-2-471.89Типовой проект 902-2-471.89Типовой проект 902-2-471.89Типовой проект 902-2-471.89

© 2013 Ёшкин Кот :-) Карта сайта