| ||||||||||||||||||||||||
Скачать Серия 1-82-Р4 Альбом IV. Детали сопряжений сборных железобетонных конструкций. Рабочие чертежиДата актуализации: 10.08.2017
|
| Обозначение: | Серия 1-82-Р4 |
| Обозначение англ: | Series 1-82-Р4 |
| Статус: | не действует |
| Название рус.: | Альбом IV. Детали сопряжений сборных железобетонных конструкций. Рабочие чертежи |
| Дата добавления в базу: | 01.09.2013 |
| Дата актуализации: | 05.05.2017 |
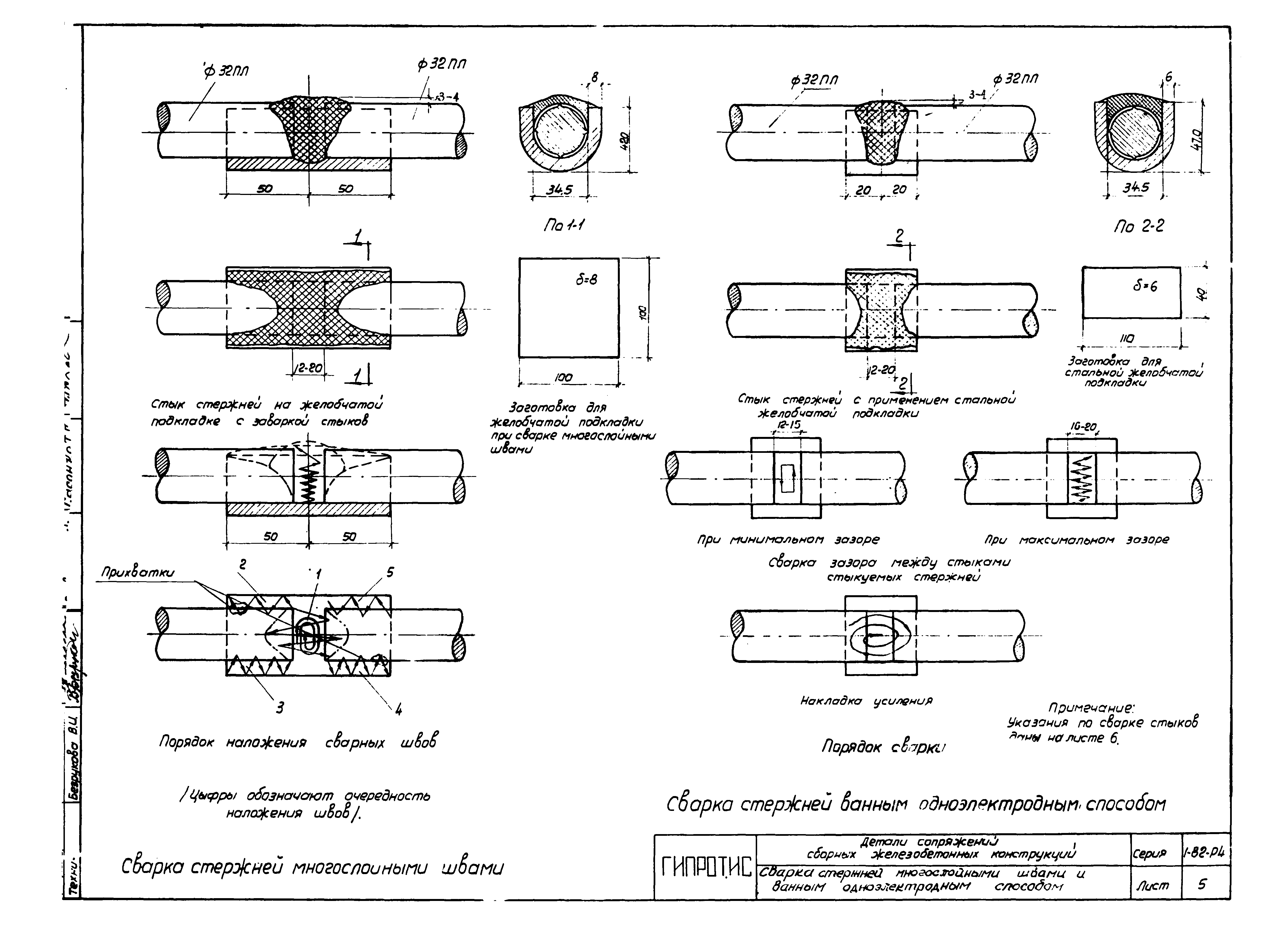
| Оглавление: | Пояснительная записка 1. Соединение ригелей и колонн У1 - У6 2. Стык стержней с помощью дуговой электросварки на желобчатой подкладке 3. Стыки колонн У7 - У10 4. Крепление плит покрытия к несущим конструкциям У11 - У17 5. Крепление балок покрытия к колоннам У18 - У22 6. Крепление карнизных плит У23, У24, У24А 7. Крепление подкрановых балок У25, У26 8. Крепление фахверковой стойки У27, У28, У28А 9. Установка колонны в стакан фундамента У29 |
| Разработан: | Гипротис |
| Утверждён: | 01.01.1958 Гипротис |
| Расположен в: |























