| ||||||||||||||||||||||||||
Скачать ТК 6.05.01.28 Устройство полов из керамических плиток по прослойке цементно-песчаного раствораДата актуализации: 10.08.2017
|
| Обозначение: | ТК 6.05.01.28 |
| Обозначение англ: | 6.05.01.28 |
| Статус: | не установлен срок действия |
| Название рус.: | Устройство полов из керамических плиток по прослойке цементно-песчаного раствора |
| Дата добавления в базу: | 01.09.2013 |
| Дата актуализации: | 05.05.2017 |
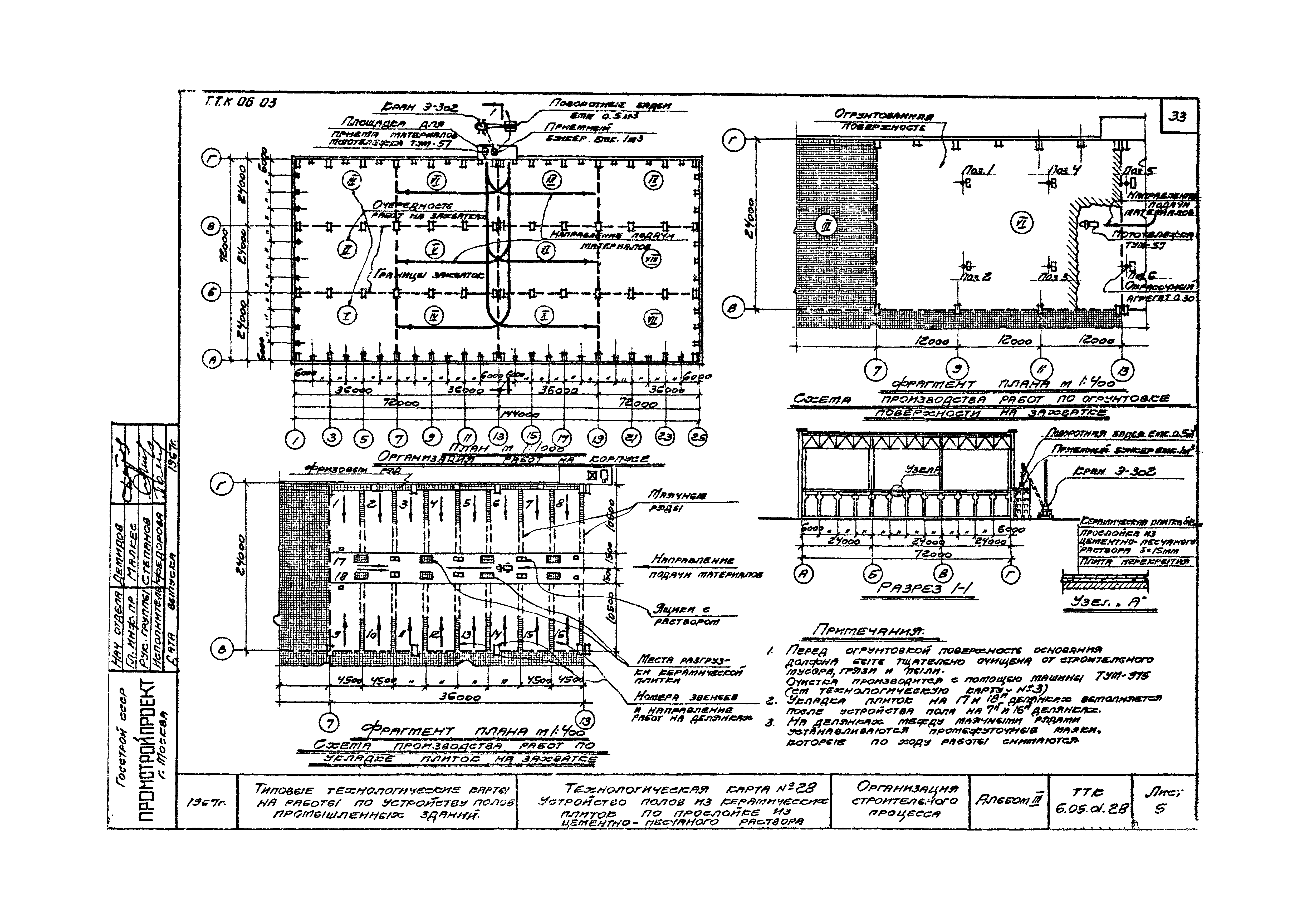
| Область применения: | Технологическая карта разработана на устройство полов из керамических плиток размером 150 Х 150 Х 13 мм по прослойке из цементно-песчаного раствора марки 100-200. |
| Оглавление: | 1. Область применения 2. Технико-экономические показатели строительного процесса 3. Организация и технология строительного процесса 4. Организация и методы труда рабочих 5. Расчет транспорта материалов 6. Калькуляция трудовых затрат 7. Организация строительного процесса 8. График выполнения работ 9. Материально-технические ресурсы |
| Разработан: | Промстройпроект Госстроя СССР |
| Утверждён: | 02.07.1964 Госстрой СССР (Государственный комитет Совета Министров СССР по делам строительства) (USSR Gosstroy ) |
| Расположен в: |










