| ||||||||||||||||||||||||||
Скачать Типовые проектные решения 704-2-028.86 Альбом I. Общая пояснительная записка. Генеральный план, технологическая, электротехническая и строительная части, наружные сети водопровода и канализации, тепловые сети. ЧертежиДата актуализации: 10.08.2017
|
| Обозначение: | Типовые проектные решения 704-2-028.86 |
| Обозначение англ: | 704-2-028.86 |
| Статус: | cправочные материалы, мп, тпр |
| Название рус.: | Альбом I. Общая пояснительная записка. Генеральный план, технологическая, электротехническая и строительная части, наружные сети водопровода и канализации, тепловые сети. Чертежи |
| Дата добавления в базу: | 01.09.2013 |
| Дата актуализации: | 05.05.2017 |
| Дата введения: | 26.03.1986 |
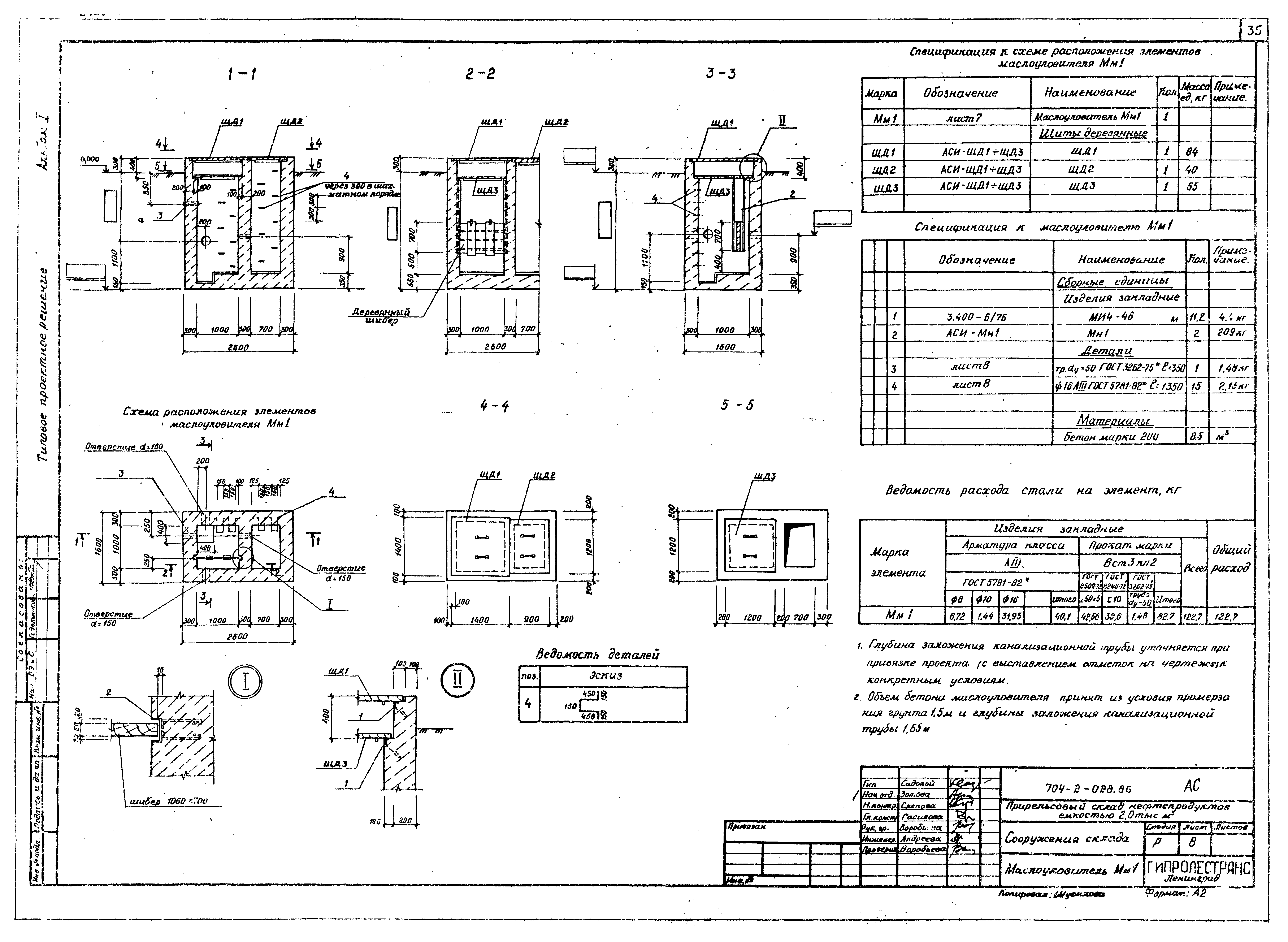
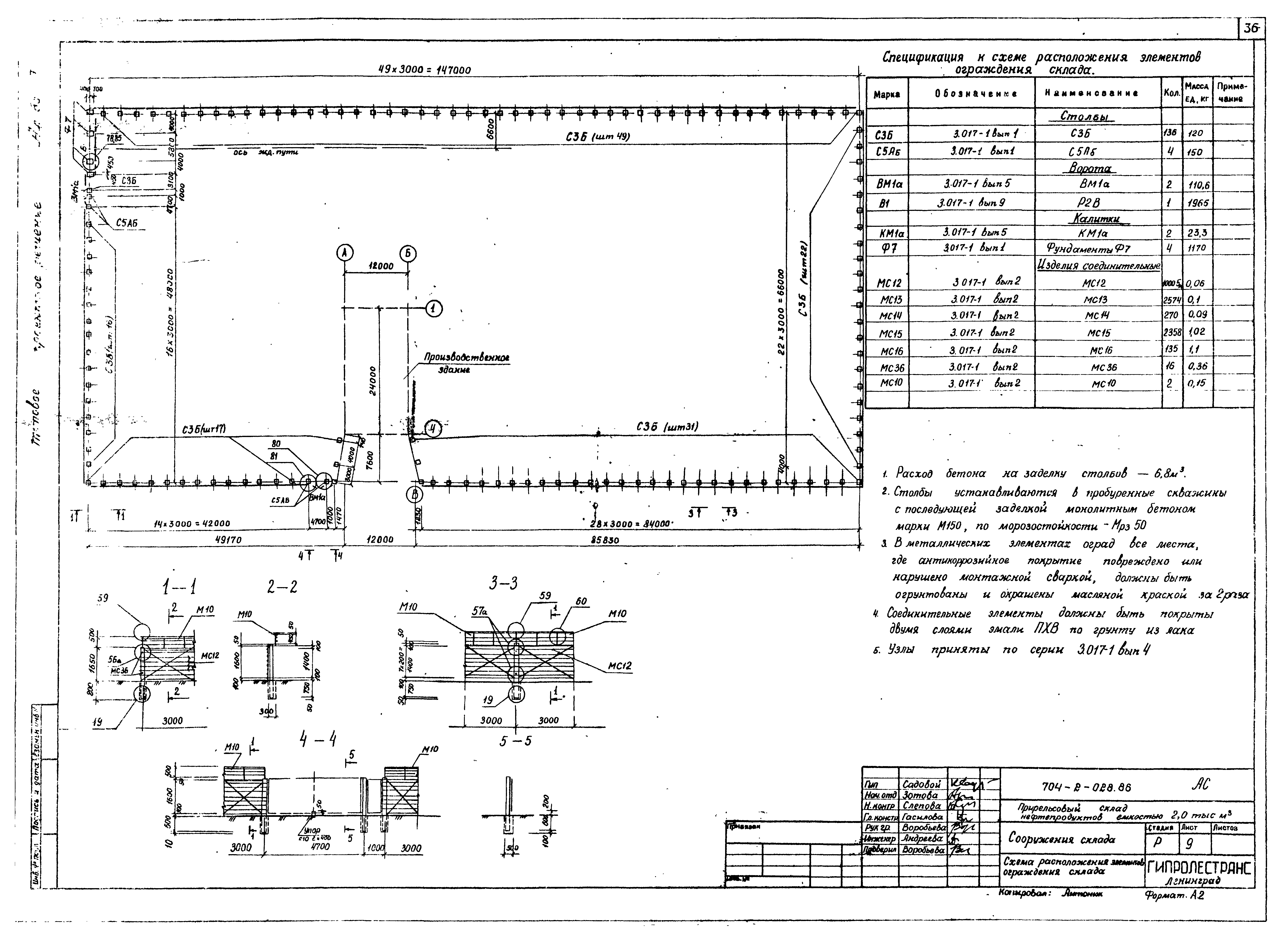
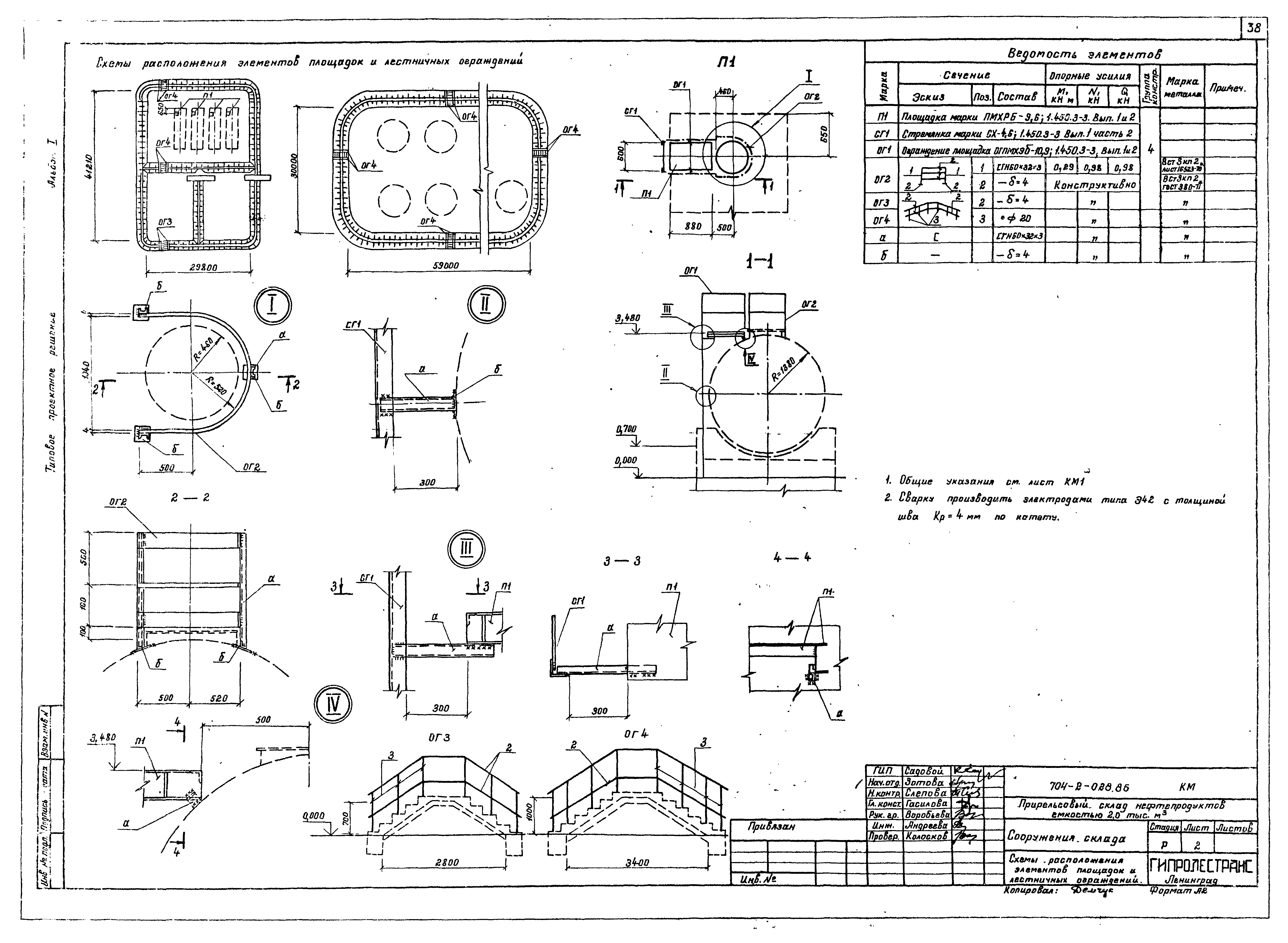
| Оглавление: | Пояснительная записка Чертежи основного комплекта марки ГП Общие данные. Конструкции дорожных одежд Нормативный генеральный план Чертежи основного комплекта марки ТХ Общие данные. Принципиальная схема разводки трубопроводов Монтажная схема трубопроводов и арматуры в колодцах Технологический план Наружные трубопроводы. Разрезы I-I, II-II, VIII-VIII, IX-IX Наружные трубопроводы. Разрезы III-III…VII-VII Наружные трубопроводы. Разрезы X-X…XV-XV Чертежи основного комплекта марки АТХ Общие данные Схема функциональная теплотехнического контроля Схема внешних соединений. План. Фрагменты Ящик протяжной. Общий вид. Монтажная схема Чертежи основного комплекта марки ЭС Общие данные План освещения территории Молниезащита и защитное заземление. План Узлы заземления автоцистерн, трубопроводов и железнодорожных путей Наружные электрические сети 0,4 кВ. План Чертежи основного комплекта марки ТС Общие данные План сетей. Спецификация строительных конструкций Схема сетей. Поперечные разрезы 1-1 - 6-6 Компенсаторы К1 - К4 Узлы УТ1 - УТ8 Чертежи основного комплекта марки АС Общие данные Схема расположения фундаментов под сливные стояки и приборы для нижнего слива ФОм1 - ФОм5 Схема расположения фундаментов под колонки и АСН-5н "Сигма". ФОм6 - ФОм8 Схема расположения элементов площадки под резервуары для топлива и лестниц через обвалование Схема расположения фундаментов под резервуары для масел и лестниц через обвалование ЛМ1, ЛМ2 Схемы расположения разгрузочной эстакады, плит лицевых и фундаментных Колодец Км1 Маслоуловитель Мм1 Схема расположения элементов ограждения склада Чертежи основного комплекта марки КМ Общие данные. Ведомость металлоконструкций, техническая спецификация металла Схемы расположения элементов площадок и лестничных ограждений Чертежи основного комплекта марки АСИ Содержание выпуска Технические требования Сетка арматурная (С1, С2) Сетка арматурная С3 Решетка металлическая РМ1 Изделие закладное МН1 Щит деревянный ЩД1 - ЩД3 Щит деревянный ЩД1 - ЩД3. Сборочный чертеж Плита лицевая ПЛ1-1а Чертежи основного комплекта марки НВК Общие данные План сетей водопровода и канализации Дождеприемный колодец с устройством для выпуска воды |
| Разработан: | Гипролестранс |
| Утверждён: | 26.03.1986 Минлесбумпром СССР (USSR Minlesbumprom 37) |
| Расположен в: |













































