Информационная система
«Ёшкин Кот»

Скачать базу одним архивом
Скачать обновления
История создания базы
Карта сайта

Скачать Типовой проект 409-15-114.89 Альбом 3. Отопление и вентиляция. Внутренний водопровод и канализация. Пароснабжение. Воздухоснабжение

Дата актуализации: 10.08.2017

Типовой проект 409-15-114.89

Альбом 3. Отопление и вентиляция. Внутренний водопровод и канализация. Пароснабжение. Воздухоснабжение

Обозначение: Типовой проект 409-15-114.89
Обозначение англ: 409-15-114.89
Статус:действует
Название рус.:Альбом 3. Отопление и вентиляция. Внутренний водопровод и канализация. Пароснабжение. Воздухоснабжение
Дата добавления в базу:01.09.2013
Дата актуализации:05.05.2017
Дата введения:19.10.1988
Оглавление:Обложка
Титульный лист
Содержание альбома
Отопление и вентиляция
   Общие данные
   План на отм. 0.000; 3.300
   План на отм. 0.000; 3.600; 9.600; 3.300
   Системы отопления 2, 3, 4. Схемы систем ВТ1, ВЕ2, ВЕ3, Р
   Схемы систем П1 - П3; В1 - В11; ВТ3; ВТ2; ВЕ1
   Система теплоснабжения установок А1 - А5
   Система теплоснабжения установок П1 - П3
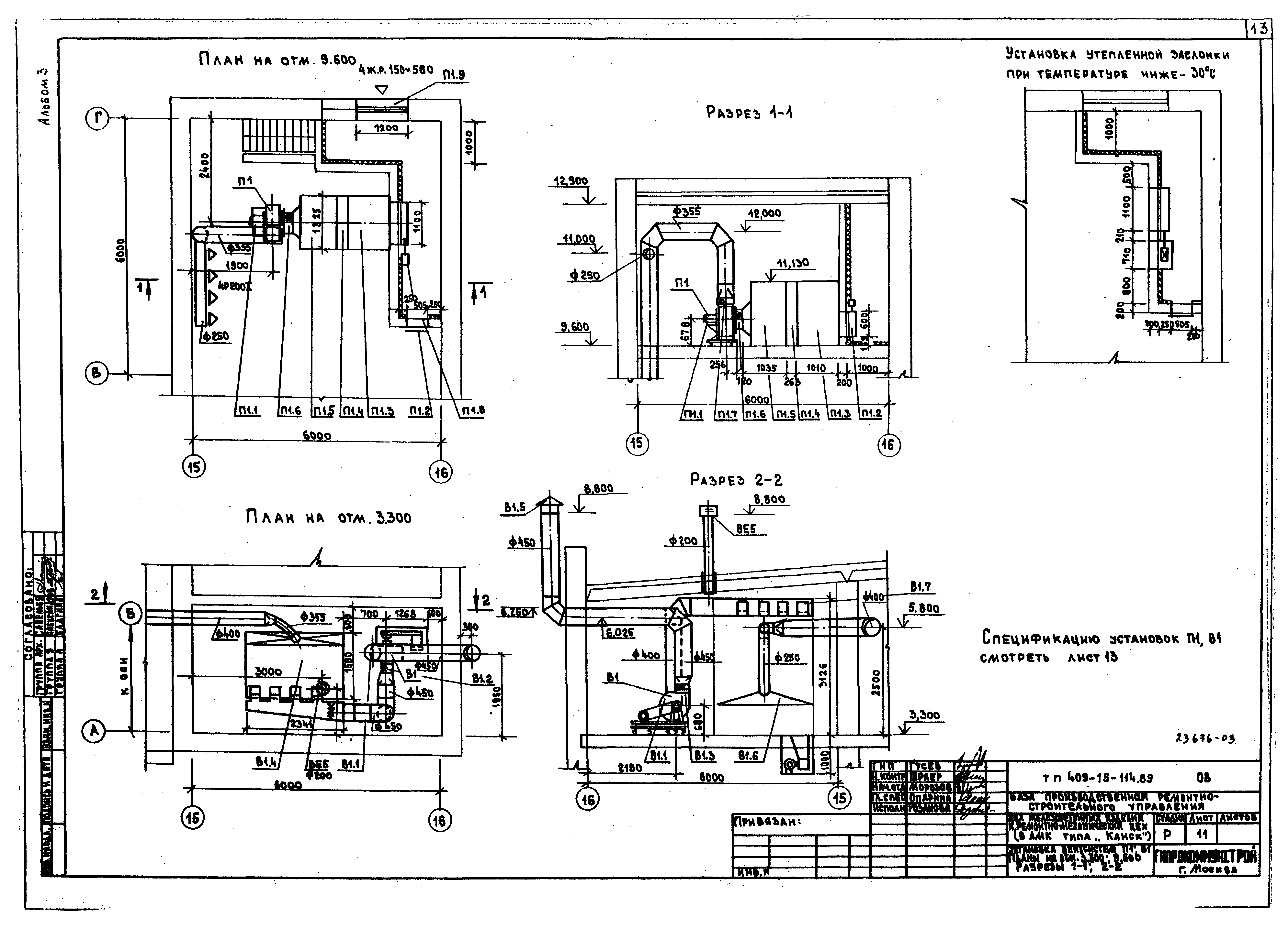
   Установка вентсистем П1, В1. Планы на отм. 3.300; 9.600. Разрезы 1-1; 2-2
   Установка систем П2, П3, В7, В16, ВТ1. Планы на отм. 3.300. Разрез 1-1
   Спецификация отопительно-вентиляционных установок П1 - П3, В1
   Спецификация отопительно-вентиляционных установок В9, В10, ВТ1
   План на отм. 0.000; 3.000. Схемы систем П4, В12 - В14
   Спецификация вентсистем В12 - В14. Система отопления №1. Система теплоснабжения установки П4
   Установки систем П4, В12 - В14. Спецификация вентсистем П4
   Узел управления №1. Принципиальные схемы. План на отм. 3.300. Разрезы 1-1; 2-2. Экспликация оборудования
   Принципиальные схемы узлов управления №1, 2, 3. Экспликация оборудования
   Узел управления №2. План на отм. 0.000. Разрез 1-1; 3-3
   Узел управления №3. Принципиальная схема. План на отм. 0.000. Разрез 1-1. Экспликация оборудования
   Присоединительные коллекторы к фильтру марки Г4-16ФМ-60
   Зонт к позиции 16, 27
   Звено прямого участка асбестоцементного воздуховода
   Отсосы скипового подъемника
   Отсос от станка для резки и правки арматурной стали
Водопровод и канализация
   Общие данные
   План на отм. 0.000 и 3.000 с системами В1; Т3; К1; К3
   Схемы систем В1; Т3; К1; К2
   План на отм. 0.000; 3.600; 9.600 с системами К3; В4; В5; В1; Т3; Т5
   Схемы систем В1, Т3, Т5
   Схемы систем К1, К2, К3, В4, В5
Пароснабжение
   Общие данные
   Планы на отм. 0.000; 3.300; 3.600; 9.600. Схемы технологического пароснабжения Т7, Т11. Схема конденсатопровода
Воздухоснабжение
   Общие данные
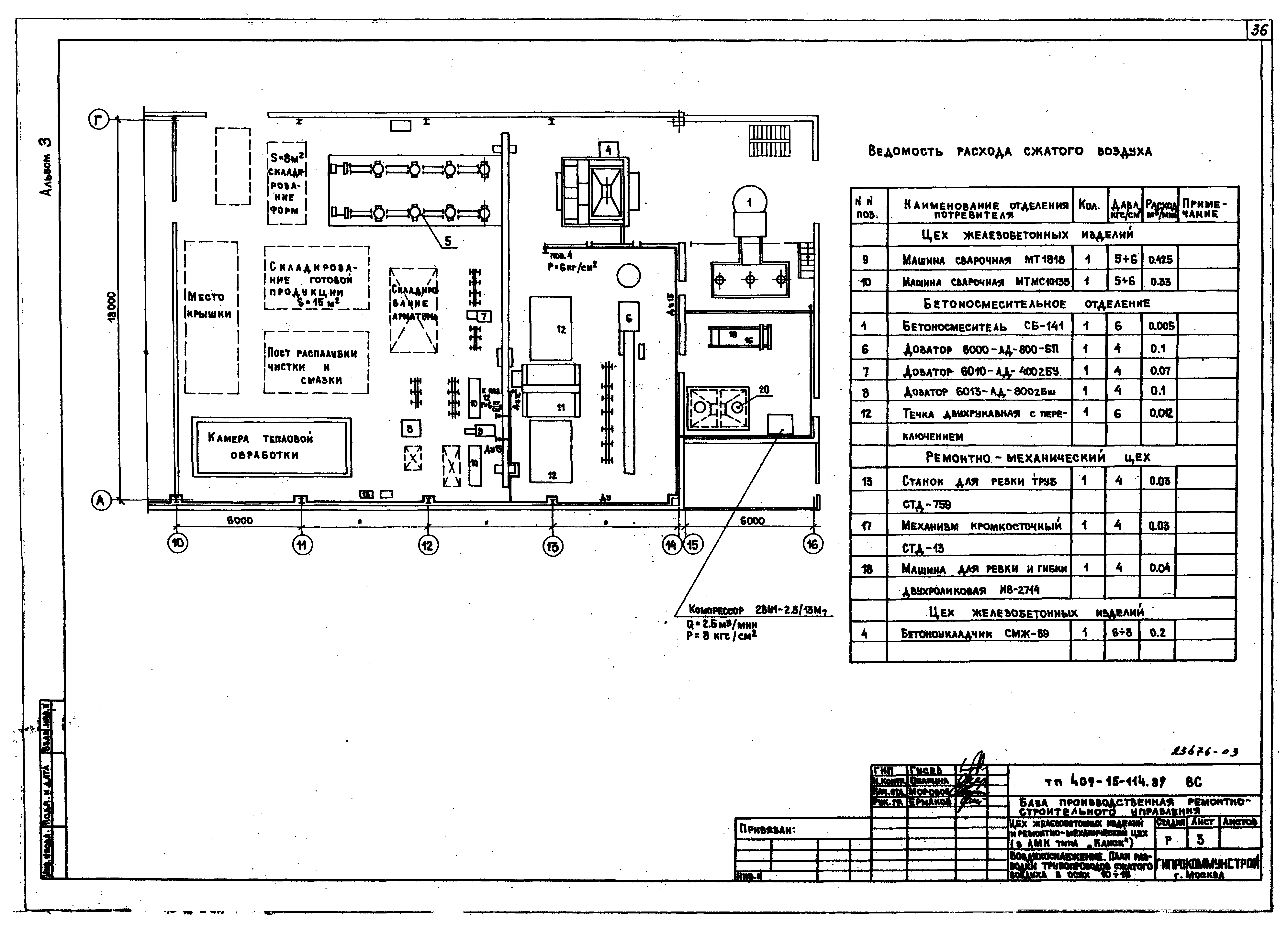
   План разводки трубопроводов сжатого воздуха в осях 4 - 10
   План разводки трубопроводов сжатого воздуха в осях 10 - 16
   Разводка сжатого воздуха на отм. 3.600; 9.600
   Схема разводки трубопроводов сжатого воздуха
Разработан: Гипрокоммунстрой
Утверждён:19.10.1988 Минжилкомхоз РСФСР (Russian Federation Minzhilkomkhoz 271)
Издан: ЦИТП Госстроя СССР (CITP, Gosstroy (USSR) 1990 г. )
Расположен в:Техническая документация Строительство Справочные документы Типовые строительные конструкции, изделия и узлы Общероссийский строительный каталог Промышленные предприятия, здания и сооружения Предприятия, здания и сооружения промышленности и электроэнергетики Строительная индустрия и промышленность строительных материалов Производство строительных конструкций и изделий Производственные базы и предприятия строительных организаций
Типовой проект 409-15-114.89Типовой проект 409-15-114.89Типовой проект 409-15-114.89Типовой проект 409-15-114.89Типовой проект 409-15-114.89Типовой проект 409-15-114.89Типовой проект 409-15-114.89Типовой проект 409-15-114.89Типовой проект 409-15-114.89Типовой проект 409-15-114.89Типовой проект 409-15-114.89Типовой проект 409-15-114.89Типовой проект 409-15-114.89Типовой проект 409-15-114.89Типовой проект 409-15-114.89Типовой проект 409-15-114.89Типовой проект 409-15-114.89Типовой проект 409-15-114.89Типовой проект 409-15-114.89Типовой проект 409-15-114.89Типовой проект 409-15-114.89Типовой проект 409-15-114.89Типовой проект 409-15-114.89Типовой проект 409-15-114.89Типовой проект 409-15-114.89Типовой проект 409-15-114.89Типовой проект 409-15-114.89Типовой проект 409-15-114.89Типовой проект 409-15-114.89Типовой проект 409-15-114.89Типовой проект 409-15-114.89Типовой проект 409-15-114.89Типовой проект 409-15-114.89Типовой проект 409-15-114.89Типовой проект 409-15-114.89Типовой проект 409-15-114.89Типовой проект 409-15-114.89Типовой проект 409-15-114.89Типовой проект 409-15-114.89Типовой проект 409-15-114.89

© 2013 Ёшкин Кот :-) Карта сайта