Информационная система
«Ёшкин Кот»

Скачать базу одним архивом
Скачать обновления
История создания базы
Карта сайта

Скачать Типовой проект 407-3-644.94 Альбом 2. Электротехнические чертежи

Дата актуализации: 10.08.2017

Типовой проект 407-3-644.94

Альбом 2. Электротехнические чертежи

Обозначение: Типовой проект 407-3-644.94
Обозначение англ: 407-3-644.94
Статус:не определен законодательством
Название рус.:Альбом 2. Электротехнические чертежи
Дата добавления в базу:01.09.2013
Дата актуализации:05.05.2017
Дата введения:22.08.1994
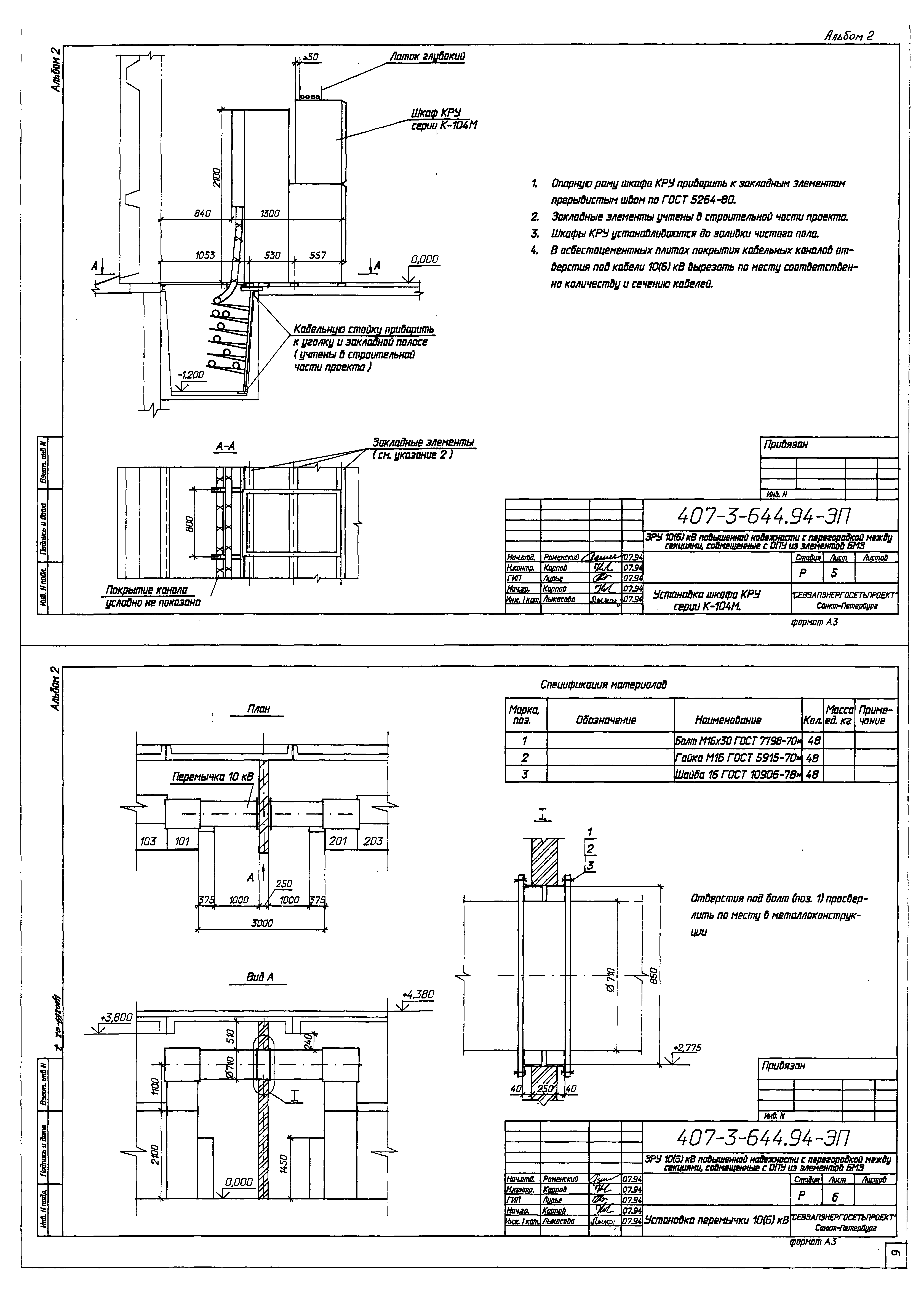
Оглавление:ЗРУ 10(6) кВ повышенной надежности с перегородкой между секциями, совмещенные с ОПУ из элементов БМЗ
   Общие данные
   Общие планы
   ЗРУ10-6х21-БМЗ-32-1-КК. Расстановка шкафов КРУ. План, разрезы А-А, Б-Б
   ЗРУ10-6х27-БМЗ-48-2-КК. Расстановка шкафов КРУ. План, разрезы А-А, Б-Б
   Установка шкафа КРУ серии К-104М
   Установка перемычки 10(6) кВ
   Установка шинного ввода
   Разводка кабелей 10кВ
   Схемы заполнения шкафов КРУ
   ОПУ-6х21-БМЗ-21. План
   ОПУ-6х27-БМЗ-39. План
   Узел вывода кабелей из ОПУ
   ЗРУ10-6х21-БМЗ-32-1-КК. Освещение
   ЗРУ10-6х27-БМЗ-48-2-КК. Освещение
   ОПУ-6х21-БМЗ-21. Освещение ОПУ
   ОПУ-6х27-БМЗ-39. Освещение ОПУ
   ЗРУ10-6х21-БМЗ-32-1-КК. Электрическое отопление и вентиляция
   ЗРУ10-6х27-БМЗ-48-2-КК. Электрическое отопление и вентиляция
   ОПУ-6х21-БМЗ-21. Электрическое отопление
   ОПУ-6х27-БМЗ-39. Электрическое отопление
   ЗРУ10-6х21-БМЗ-32-1-КК. Расстановка кабельных конструкций. План, разрез А-А
   ЗРУ10-6х27-БМЗ-48-2-КК. Расстановка кабельных конструкций. План, разрез А-А
   ОПУ-6х21-БМЗ-21. Расстановка кабельных конструкций
   ОПУ-6х27-БМЗ-39. Расстановка кабельных конструкций
   Журнал силовых кабелей
Разработан: Севзапэнергосетьпроект
Утверждён:22.08.1994 Департамент электроэнергетики Минтопэнерго России (5)
Издан: ГУП ЦПП (CPP GUP 1998 г. )
Расположен в:Техническая документация Строительство Справочные документы Типовые строительные конструкции, изделия и узлы Общероссийский строительный каталог Промышленные предприятия, здания и сооружения Предприятия, здания и сооружения промышленности и электроэнергетики Электроэнергетика Устройства и подстанции распределительные
Типовой проект 407-3-644.94Типовой проект 407-3-644.94Типовой проект 407-3-644.94Типовой проект 407-3-644.94Типовой проект 407-3-644.94Типовой проект 407-3-644.94Типовой проект 407-3-644.94Типовой проект 407-3-644.94Типовой проект 407-3-644.94Типовой проект 407-3-644.94Типовой проект 407-3-644.94Типовой проект 407-3-644.94Типовой проект 407-3-644.94Типовой проект 407-3-644.94Типовой проект 407-3-644.94Типовой проект 407-3-644.94Типовой проект 407-3-644.94Типовой проект 407-3-644.94Типовой проект 407-3-644.94Типовой проект 407-3-644.94Типовой проект 407-3-644.94Типовой проект 407-3-644.94Типовой проект 407-3-644.94

© 2013 Ёшкин Кот :-) Карта сайта