Информационная система
«Ёшкин Кот»

Скачать базу одним архивом
Скачать обновления
История создания базы
Карта сайта

Скачать Серия ИИ-04-14 Выпуск 1. Железобетонные Т и Г-образные колонны. Рабочие чертежи

Дата актуализации: 10.08.2017

Серия ИИ-04-14

Выпуск 1. Железобетонные Т и Г-образные колонны. Рабочие чертежи

Обозначение: Серия ИИ-04-14
Обозначение англ: Series ИИ-04-14
Статус:не действует
Название рус.:Выпуск 1. Железобетонные Т и Г-образные колонны. Рабочие чертежи
Дата добавления в базу:01.09.2013
Дата актуализации:05.05.2017
Дата введения:26.05.1970
Дата окончания срока действия:01.04.1982
Оглавление:Перечень серий и выпусков
Содержание
Пояснительная записка
Номенклатура
Колонна ГВ-50-40-42. Опалубочный чертеж. Показатели расхода материалов
Колонна ТВ-40-60-42. Опалубочный чертеж. Показатели расхода материалов
Колонна ТВК-50-40-42. Опалубочный чертеж. Показатели расхода материалов
Колонны Г-40-60-42, Г-40-80-42, Г-60-80-42. Опалубочный чертеж. Показатели расхода материалов
Колонны Т-40-60-42, Т-50-60-42, Т-50-80-42, Т-60-80-42. Опалубочный чертеж. Показатели расхода материалов
Колонны ТК-40-60-42, ТК-50-60-42, ТК-50-80-42, ТК-60-80-42. Опалубочный чертеж. Показатели расхода материалов
Колонна ГВ-50-40-33. Опалубочный чертеж. Показатели расхода материалов
Колонна ТВ-40-60-33. Опалубочный чертеж. Показатели расхода материалов
Колонна ТВК-50-40-33. Опалубочный чертеж. Показатели расхода материалов
Колонны Г-40-60-33, Г-40-80-33, Г-60-80-33. Опалубочный чертеж. Показатели расхода материалов
Колонны Т-40-60-33, Т-50-60-33, Т-50-80-33, Т-60-80-33. Опалубочный чертеж. Показатели расхода материалов
Колонны ТК-40-63-33, ТК-50-60-33, ТК-50-80-33, ТК-60-80-33. Опалубочный чертеж. Показатели расхода материалов
Опалубка. Узлы 1, 2
Опалубка. Узел 3
Опалубка. Узлы 4, 5
Колонна. ГВ-50-40-42. Армирование
Колонна. ГВ-50-40-42. Объемный каркас ОК-1
Колонна. ГВ-40-60-42. Армирование
Колонна. ГВ-40-60-42. Объемный каркас ОК-2
Колонна. ТВК-50-40-42. Армирование
Колонна. ТВК-50-40-42. Объемный каркас ОК-3
Колонны. Г-40-60-42 и Г-40-80-42. Армирование
Колонны. Г-40-60-42 и Г-40-80-42. Объемные каркасы ОК-4 и ОК-5
Колонна. Г-60-80-42. Армирование
Колонна. Г-60-80-42. Объемный каркас ОК-6
Колонна. Г-40-60-42. Армирование
Колонна. Г-40-60-42. Объемный каркас ОК-7
Колонны. Т-50-60-42 и Т-50-80-42. Армирование
Колонны. Т-50-60-42 и Т-50-80-42. Объемные каркасы ОК-8 и ОК-9
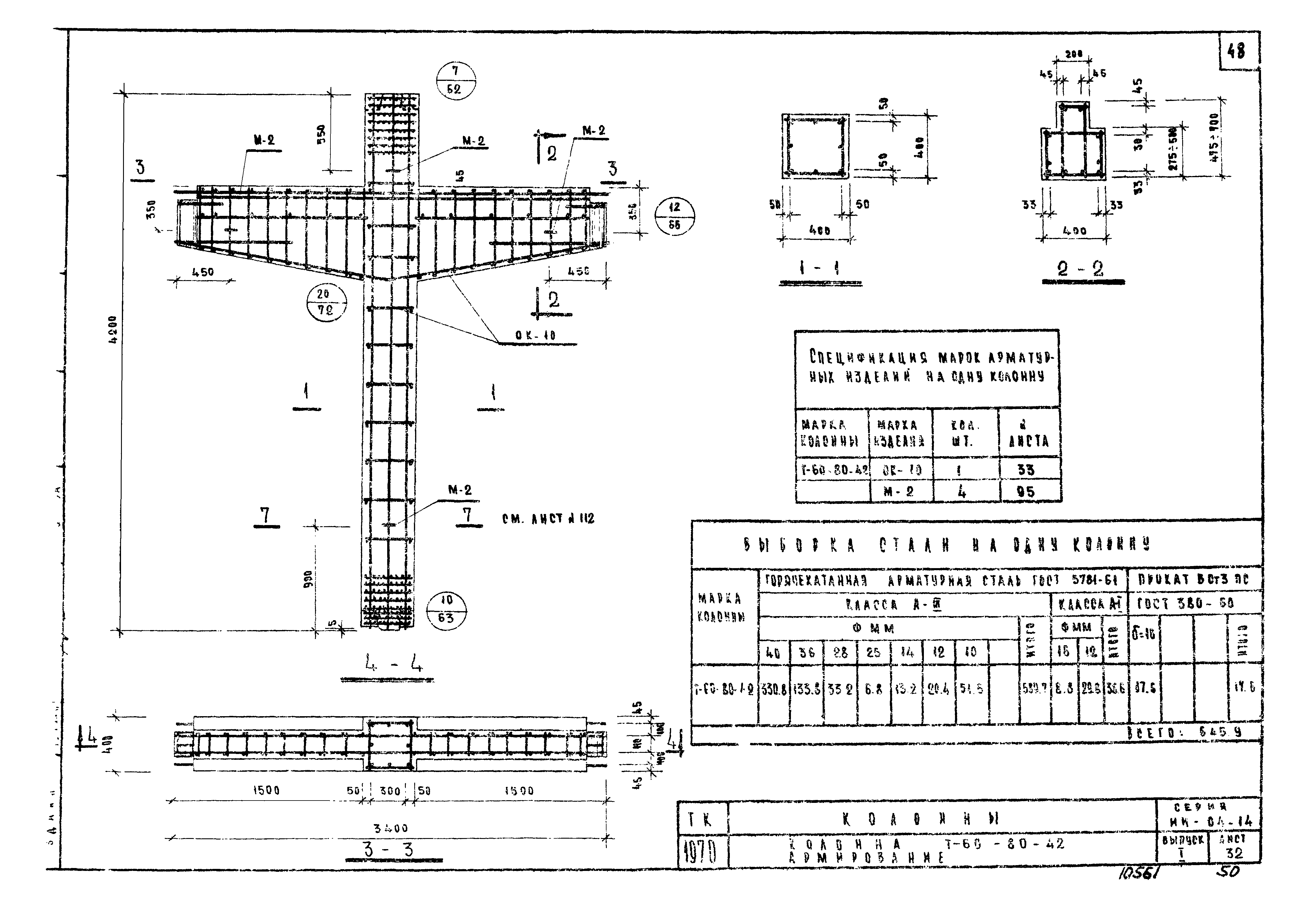
Колонна. Т-60-80-42. Армирование
Колонна. Т-60-80-42. Объемный каркас ОК-10
Колонна. ТК-40-60-42. Армирование
Колонна. ТК-40-60-42. Объемный каркас ОК-11
Колонны. ТК-50-60-42 и ТК-50-80-42. Армирование
Колонны. ТК-50-60-42 и ТК-50-80-42. Объемные каркасы ОК-12 и ОК-13
Колонна. ТК-60-80-42. Армирование
Колонна. ТК-60-80-42. Объемный каркас ОК-14
Колонна. ГВ-50-40-33. Армирование
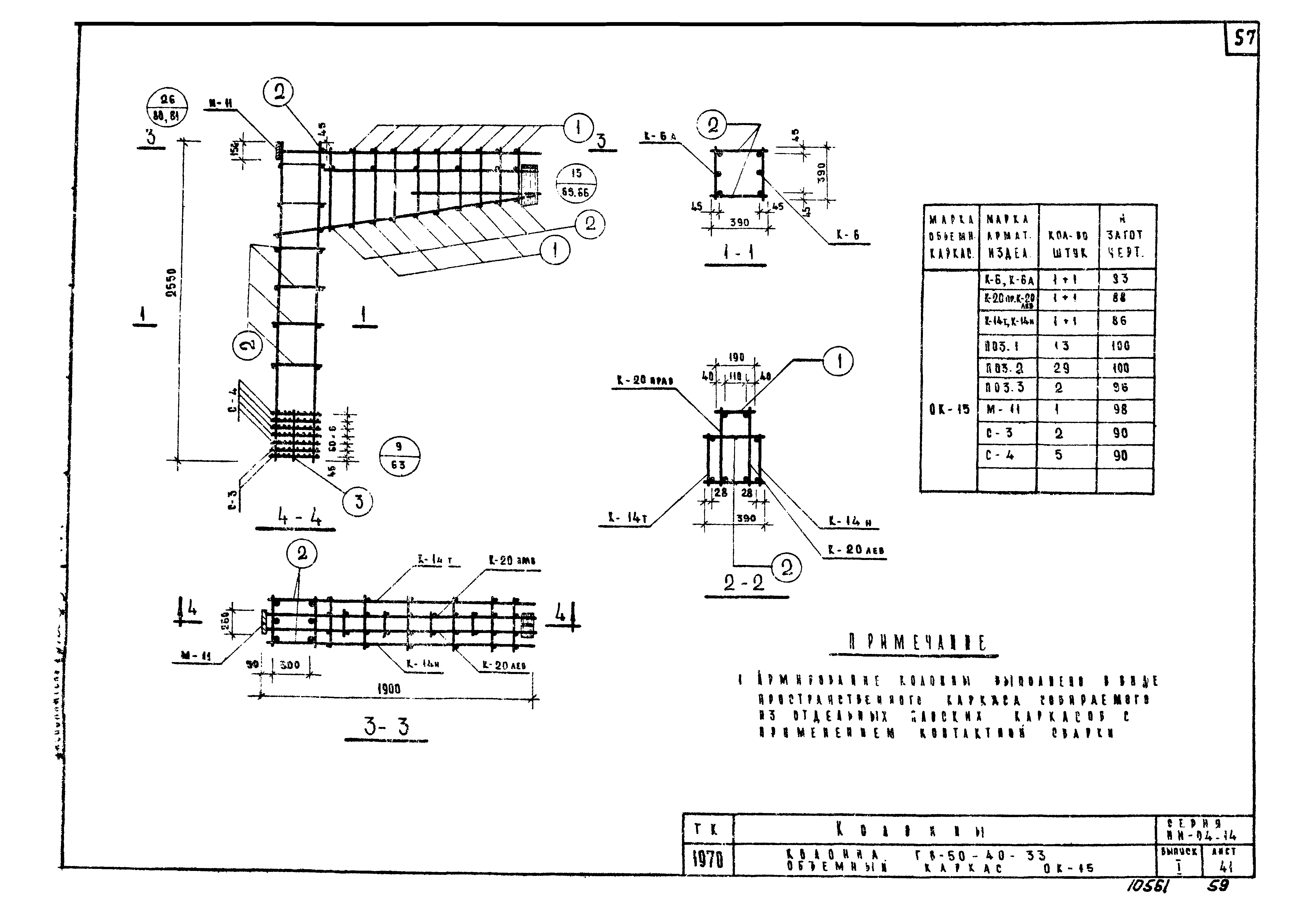
Колонна. ГВ-50-40-33. Объемный каркас ОК-15
Колонна. ТВ-40-60-33. Армирование
Колонна. ТВ-40-60-33. Объемный каркас ОК-16
Колонна. ТВК-50-40-33. Армирование
Колонна. ТВК-50-40-33. Объемный каркас ОК-17
Колонны. Г-40-60-33 и Г-40-80-33. Армирование
Колонны. Г-40-60-33 и Г-40-80-33. Объемные каркасы ОК-18 и ОК-19
Колонна. Г-60-80-33. Армирование
Колонна. Г-60-80-33. Объемный каркас ОК-20
Колонна. Т-40-60-33. Армирование
Колонна. Т-40-60-33. Объемный каркас ОК-21
Колонны. Т-50-60-33 и Т-50-80-33. Армирование
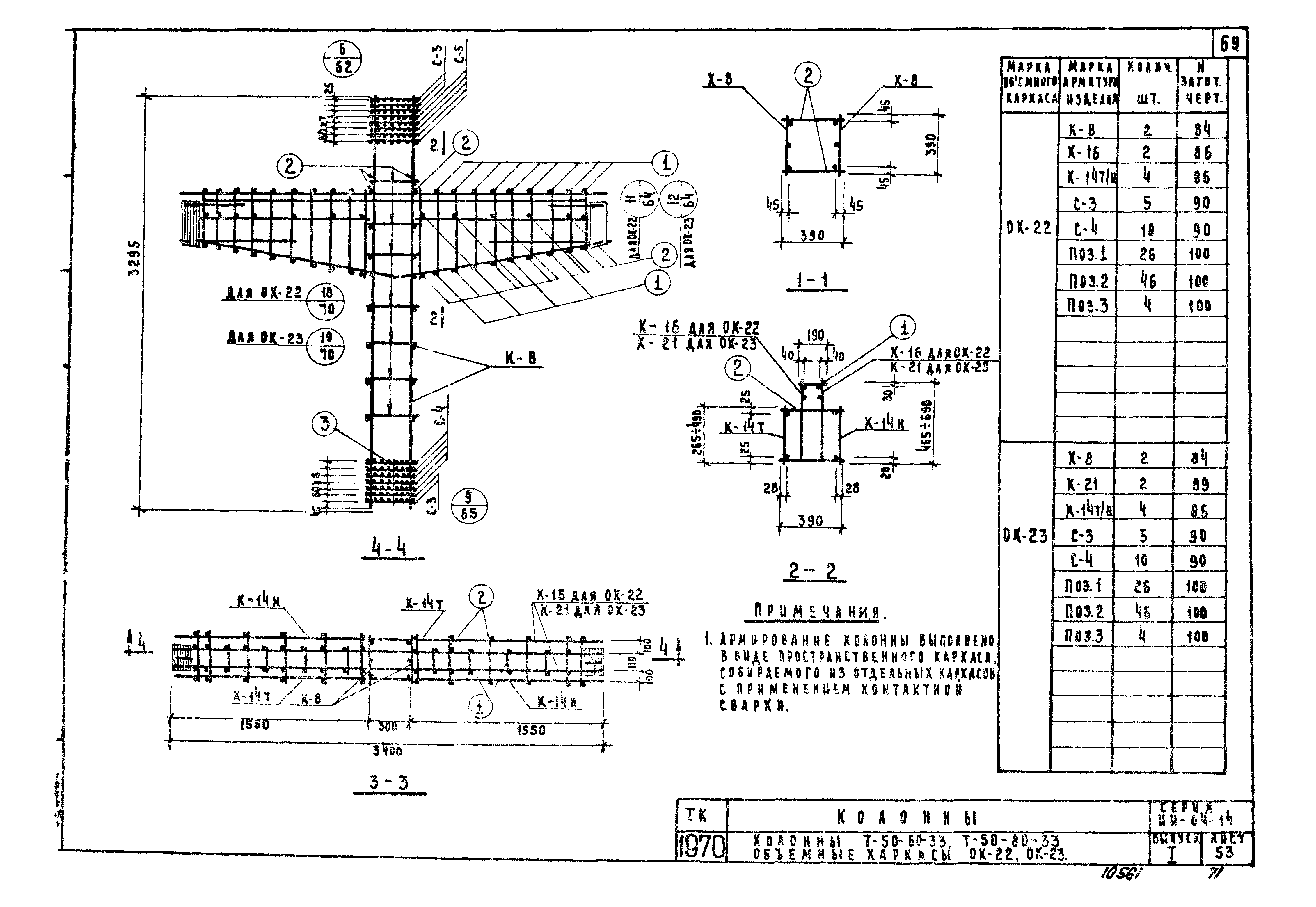
Колонны. Т-50-60-33 и Т-50-80-33. Объемные каркасы ОК-22 и ОК-23
Колонна. Т-60-80-33. Армирование
Колонна. Т-60-80-33. Объемный каркас ОК-24
Колонна. ТК-40-60-33. Армирование
Колонна. ТК-40-60-33. Объемный каркас ОК-25
Колонны. ТК-50-60-33 и ТК-50-80-33. Армирование
Колонны. ТК-50-60-33 и ТК-50-80-33. Объемные каркасы ОК-26 и ОК-27
Колонна. ТК-60-80-33. Армирование
Колонна. ТК-60-80-33. Объемный каркас ОК-28
Армирование. Узлы 5, 6, 8, 9
Армирование. Узлы 7, 10
Армирование. Узлы 11, 12
Армирование. Узел 13
Узлы 11, 12, 13. Сечения 3-3, 4-4
Армирование. Узел 14
Армирование. Узлы 15, 16
Армирование. Узел 17
Армирование. Узлы 18, 19
Армирование. Узлы 17, 18, 19. Сечения 1-1, 4-4
Армирование. Узел 20
Армирование. Узел 20. Сечение 1-1
Армирование. Узлы 21, 22
Армирование. Узлы 21, 22. Сечения 3-3, 4-4
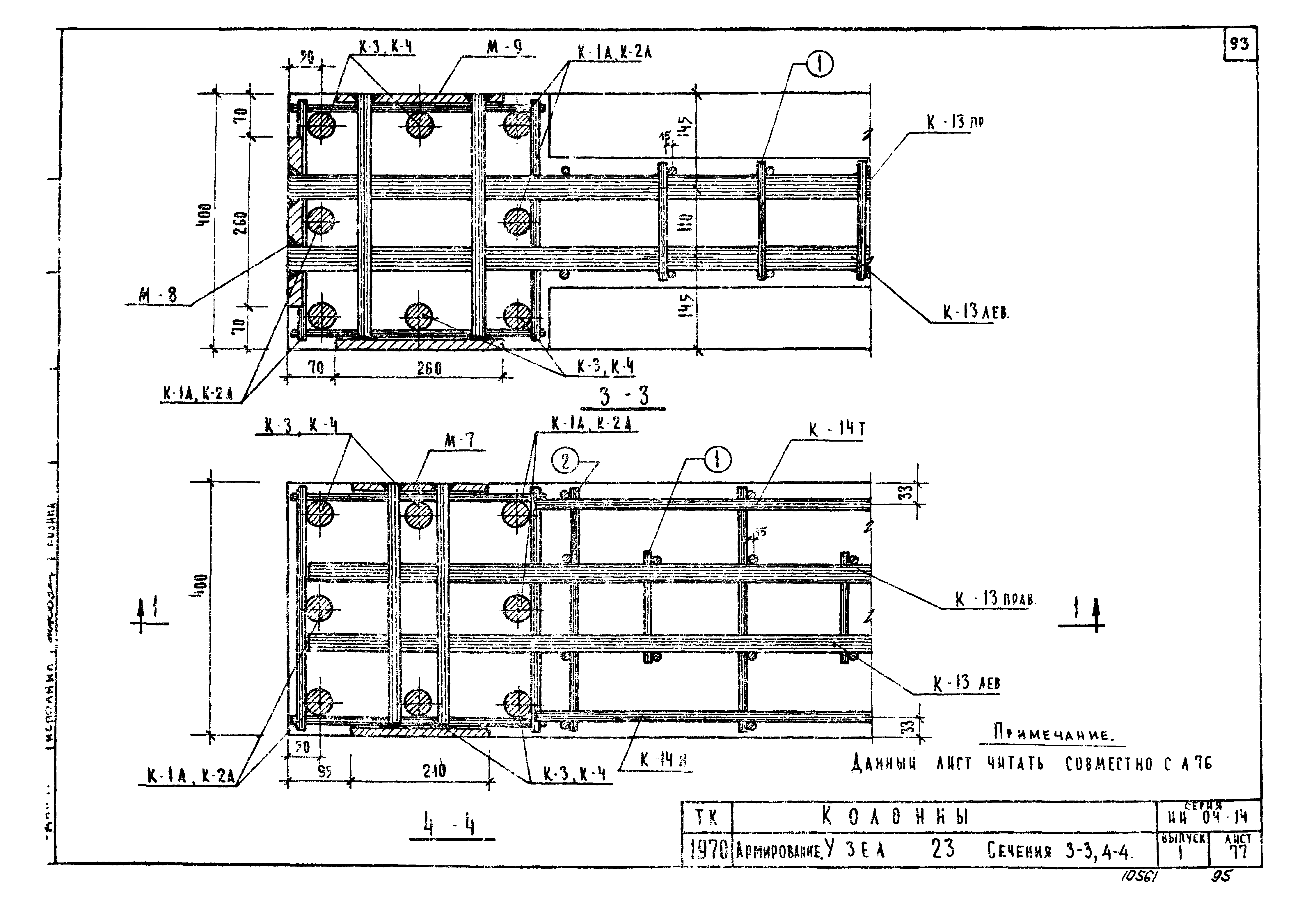
Армирование. Узел 23
Армирование. Узел 23. Сечения 3-3, 4-4
Армирование. Узел 24
Армирование. Узел 25
Армирование. Узел 26
Армирование. Узел 26. Сечения 1-1, 2-2
Каркасы К-1, К-1А, К-2, К-2А, К-3
Каркасы К-4, К-5, К-5А, К-6, К-6А, К-7
Каркасы К-8, К-9, К-9А, К-10, К-10А
Каркасы К-11, К-12, К-13прав, К-13лев
Каркасы К-14т, К-14н, К-15т, К-15н, К-16
Каркасы К-17пр, К-17лев, К-18прав, К-18лев
Каркасы К-19пр, К-19лев, К-20прав, К-20лев
Каркасы К-21, К-22лев, К-22пр
Деталь "А". Сетки С-1, С-2, С-3, С-4, С-5, С-6
Деталь "Б"
Спецификация на одно арматурное изделие К-1, К-1А, К-2, К-2А, К-3, К-4, К-5, К-5А, К-6, К-6А, К-7, К-8, К-9, К-10, К-10А, К-11, К-12, К-13пр
Спецификация на одно арматурное изделие. Каркасы К-13лев, К-14т, К-14н, К-15т, К-15н, К-16, К-17пр, К-17лев, К-18пр, К-18лев
Спецификация на одно арматурное изделие. Каркасы К-19пр, К-19лев, К-20пр, К-20лев, К-21, К-22лев, К-22пр, С-1, С-2, С-3, С-4, С-5, С-6
Закладные детали М-1лев, М-1пр, М-2, М-3лев, М-3пр, П-1
Закладные детали М-4, М-5, М-6
Закладные детали М-7, М-8, М-9
Закладные детали М-10, М-11, М-12
Закладные детали М-13, М-14, М-15
Спецификация стали на закладные детали М-1 - М-15, П-1. Спецификация отдельных стержней
Пример расположения дополнительных закладных деталей для крепления лестниц в колоннах типа ТЛ
Пример расположения дополнительных закладных деталей для крепления лестниц в колоннах типа ГЛ
Пример расположения дополнительных закладных деталей в колоннах типа ТП для крепления стеновых панелей
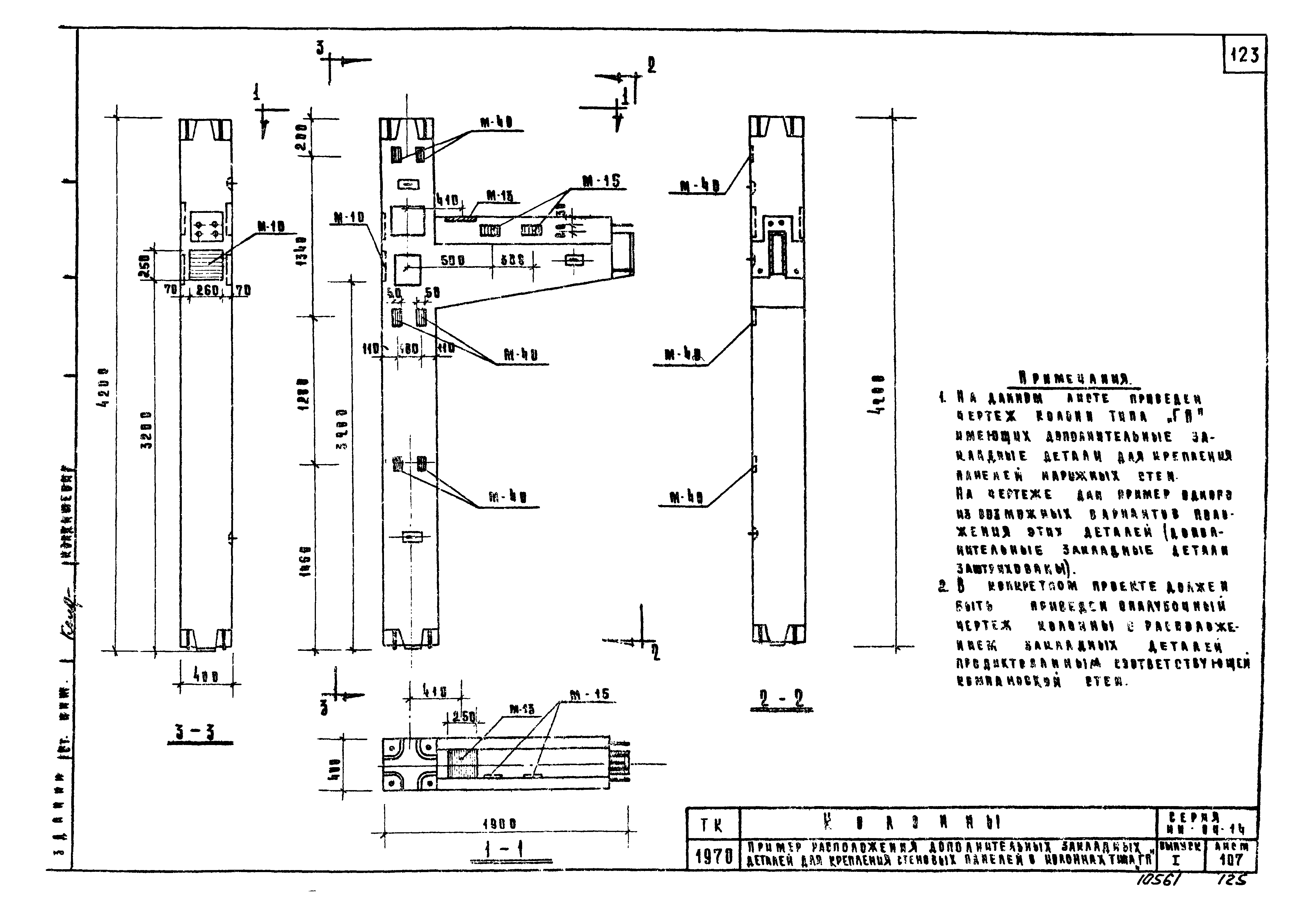
Пример расположения дополнительных закладных деталей в колоннах типа ГП для крепления стеновых панелей
Примеры крепления закладной детали М-13 в объемных каркасах колонн типа Т и Г
Примеры крепления закладных деталей М-15 и М-9 в объемных каркасах колонн
Примеры крепления закладных деталей М-37 и М-40 в объемных каркасах колонн
Крепление петли М-2 к объемному каркасу
Разработан: НИИЖБ Госстроя СССР
ЦНИИЭП торгово-бытовых зданий и туристских комплексов
Утверждён:26.05.1970 Государственный комитет по гражданскому строительству и архитектуре при Госстрое СССР (86)
Расположен в:Техническая документация Строительство Справочные документы Типовые строительные конструкции, изделия и узлы Общероссийский строительный каталог Строительные конструкции, изделия и узлы зданий и сооружений для всех видов строительства Конструкции, изделия и узлы зданий Несущие конструкции двухэтажных и многоэтажных зданий Каркасные здания
Чем заменён:
Серия ИИ-04-14Серия ИИ-04-14Серия ИИ-04-14Серия ИИ-04-14Серия ИИ-04-14Серия ИИ-04-14Серия ИИ-04-14Серия ИИ-04-14Серия ИИ-04-14Серия ИИ-04-14Серия ИИ-04-14Серия ИИ-04-14Серия ИИ-04-14Серия ИИ-04-14Серия ИИ-04-14Серия ИИ-04-14Серия ИИ-04-14Серия ИИ-04-14Серия ИИ-04-14Серия ИИ-04-14Серия ИИ-04-14Серия ИИ-04-14Серия ИИ-04-14Серия ИИ-04-14Серия ИИ-04-14Серия ИИ-04-14Серия ИИ-04-14Серия ИИ-04-14Серия ИИ-04-14Серия ИИ-04-14Серия ИИ-04-14Серия ИИ-04-14Серия ИИ-04-14Серия ИИ-04-14Серия ИИ-04-14Серия ИИ-04-14Серия ИИ-04-14Серия ИИ-04-14Серия ИИ-04-14Серия ИИ-04-14Серия ИИ-04-14Серия ИИ-04-14Серия ИИ-04-14Серия ИИ-04-14Серия ИИ-04-14Серия ИИ-04-14Серия ИИ-04-14Серия ИИ-04-14Серия ИИ-04-14Серия ИИ-04-14Серия ИИ-04-14Серия ИИ-04-14Серия ИИ-04-14Серия ИИ-04-14Серия ИИ-04-14Серия ИИ-04-14Серия ИИ-04-14Серия ИИ-04-14Серия ИИ-04-14Серия ИИ-04-14Серия ИИ-04-14Серия ИИ-04-14Серия ИИ-04-14Серия ИИ-04-14Серия ИИ-04-14Серия ИИ-04-14Серия ИИ-04-14Серия ИИ-04-14Серия ИИ-04-14Серия ИИ-04-14Серия ИИ-04-14Серия ИИ-04-14Серия ИИ-04-14Серия ИИ-04-14Серия ИИ-04-14Серия ИИ-04-14Серия ИИ-04-14Серия ИИ-04-14Серия ИИ-04-14Серия ИИ-04-14Серия ИИ-04-14Серия ИИ-04-14Серия ИИ-04-14Серия ИИ-04-14Серия ИИ-04-14Серия ИИ-04-14Серия ИИ-04-14Серия ИИ-04-14Серия ИИ-04-14Серия ИИ-04-14Серия ИИ-04-14Серия ИИ-04-14Серия ИИ-04-14Серия ИИ-04-14Серия ИИ-04-14Серия ИИ-04-14Серия ИИ-04-14Серия ИИ-04-14Серия ИИ-04-14Серия ИИ-04-14Серия ИИ-04-14Серия ИИ-04-14Серия ИИ-04-14Серия ИИ-04-14Серия ИИ-04-14Серия ИИ-04-14Серия ИИ-04-14Серия ИИ-04-14Серия ИИ-04-14Серия ИИ-04-14Серия ИИ-04-14Серия ИИ-04-14Серия ИИ-04-14Серия ИИ-04-14Серия ИИ-04-14Серия ИИ-04-14Серия ИИ-04-14Серия ИИ-04-14Серия ИИ-04-14Серия ИИ-04-14Серия ИИ-04-14Серия ИИ-04-14Серия ИИ-04-14Серия ИИ-04-14Серия ИИ-04-14Серия ИИ-04-14Серия ИИ-04-14Серия ИИ-04-14Серия ИИ-04-14Серия ИИ-04-14

© 2013 Ёшкин Кот :-) Карта сайта