Информационная система
«Ёшкин Кот»

Скачать базу одним архивом
Скачать обновления
История создания базы
Карта сайта

Скачать Серия 3.407-101 Альбом II. Металлические и железобетонные элементы

Дата актуализации: 10.08.2017

Серия 3.407-101

Альбом II. Металлические и железобетонные элементы

Обозначение: Серия 3.407-101
Обозначение англ: Series 3.407-101
Статус:не действует
Название рус.:Альбом II. Металлические и железобетонные элементы
Дата добавления в базу:01.09.2013
Дата актуализации:05.05.2017
Дата введения:30.01.1975
Дата окончания срока действия:01.02.1989
Оглавление:Траверсы для промежуточных опор ВЛ10 кВ М1, М2, М3, М4. Стяжки М3, М6
Траверсы для сложных опор М8, М9
Кронштейн М10. Плиточный ригель М11
Кронштейн для ответвлений М12 - М15. Траверсы для промежуточных опор ВЛ20 кВ М16 - М17
Детали крепления кабельной муфты М18 - М21. Стяжка М22. Хомут М23. Кронштейн М24
Детали крепления разрядников М25 - М28. Траверса сложных опор ВЛ20 кВ
Детали крепления разрядников М30 - М31
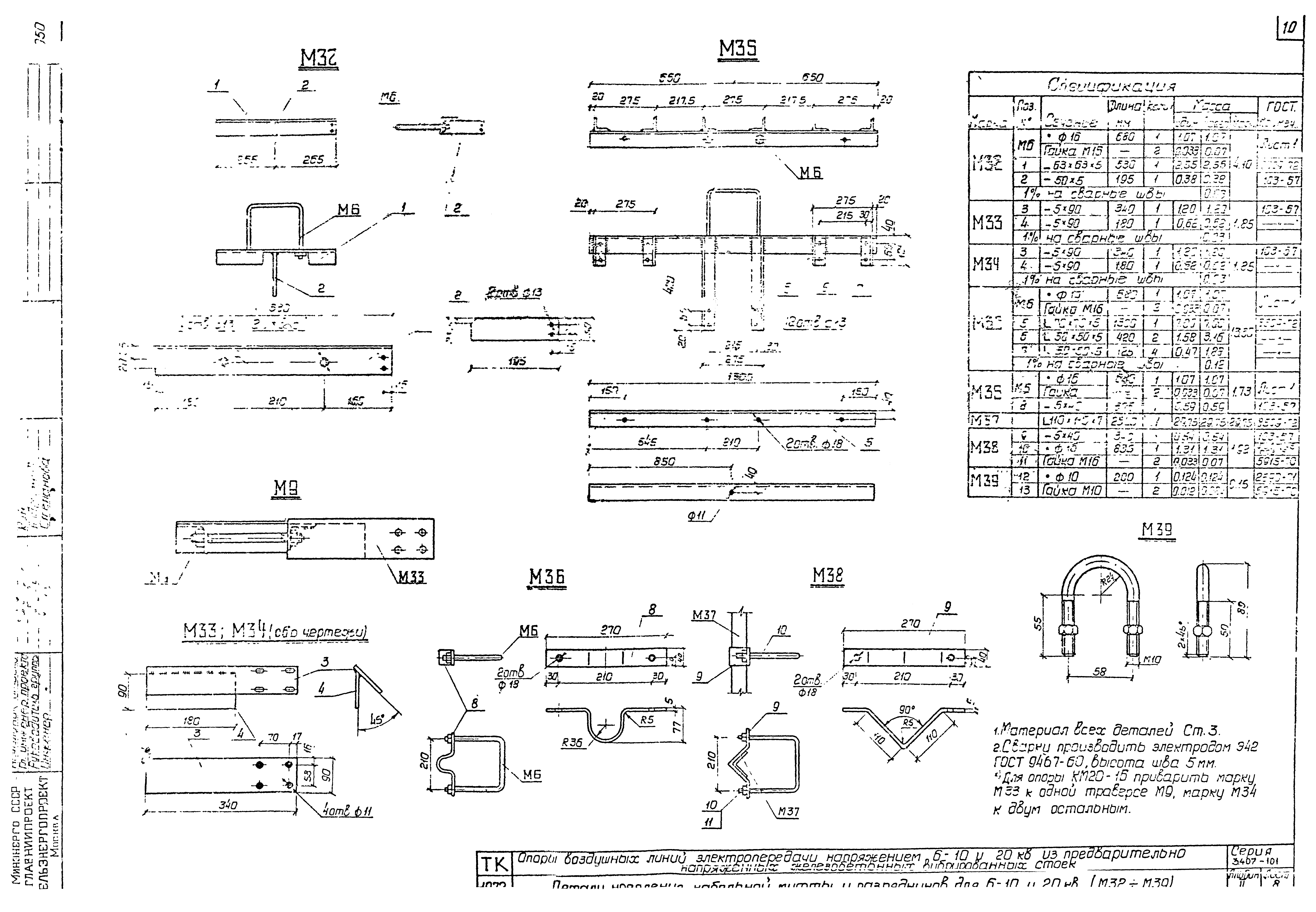
Детали крепления кабельной муфты и разрядников для ВЛ20 кВ М32 - М39
Траверсы для промежуточных опор ВЛ20 кВ М40, М41
Стойка СНВс-2,7-11
Стойка СНВп-2,7-11
Стойка СНВс-3,2-11(I)
Стойка СНВс-3,2-11(II)
Стойка СНВп-3,2-11
Плита П-4
Плита П-3
Разработан: Сельэнергопроект
Утверждён:22.01.1975 Минэнерго СССР (USSR Minenergo 17)
Расположен в:Техническая документация Строительство Справочные документы Типовые строительные конструкции, изделия и узлы Общероссийский строительный каталог Строительные конструкции, изделия и узлы зданий и сооружений для всех видов строительства Конструкции и изделия сооружений и оборудования зданий Надземные сооружения Опоры и порталы линий электропередачи, освещения, связи и др. Железобетонные
Чем заменён:
Серия 3.407-101Серия 3.407-101Серия 3.407-101Серия 3.407-101Серия 3.407-101Серия 3.407-101Серия 3.407-101Серия 3.407-101Серия 3.407-101Серия 3.407-101Серия 3.407-101Серия 3.407-101Серия 3.407-101Серия 3.407-101Серия 3.407-101Серия 3.407-101Серия 3.407-101Серия 3.407-101

© 2013 Ёшкин Кот :-) Карта сайта