| ||||||||||||||||||||||||||||||||
Скачать Шифр КС 10.03/2008 Наружные стены с каркасом из термопрофилей СТАЛДОМ с наружной обшивкой из цементно-минеральных плит АКВАПАНЕЛЬ Наружная для малоэтажных зданий различного назначенияДата актуализации: 10.08.2017
|
| Обозначение: | Шифр КС 10.03/2008 |
| Обозначение англ: | КС 10.03/2008 |
| Статус: | не определен законодательством |
| Название рус.: | Наружные стены с каркасом из термопрофилей СТАЛДОМ с наружной обшивкой из цементно-минеральных плит АКВАПАНЕЛЬ Наружная для малоэтажных зданий различного назначения |
| Дата добавления в базу: | 01.09.2013 |
| Дата актуализации: | 05.05.2017 |
| Дата введения: | 01.01.2008 |
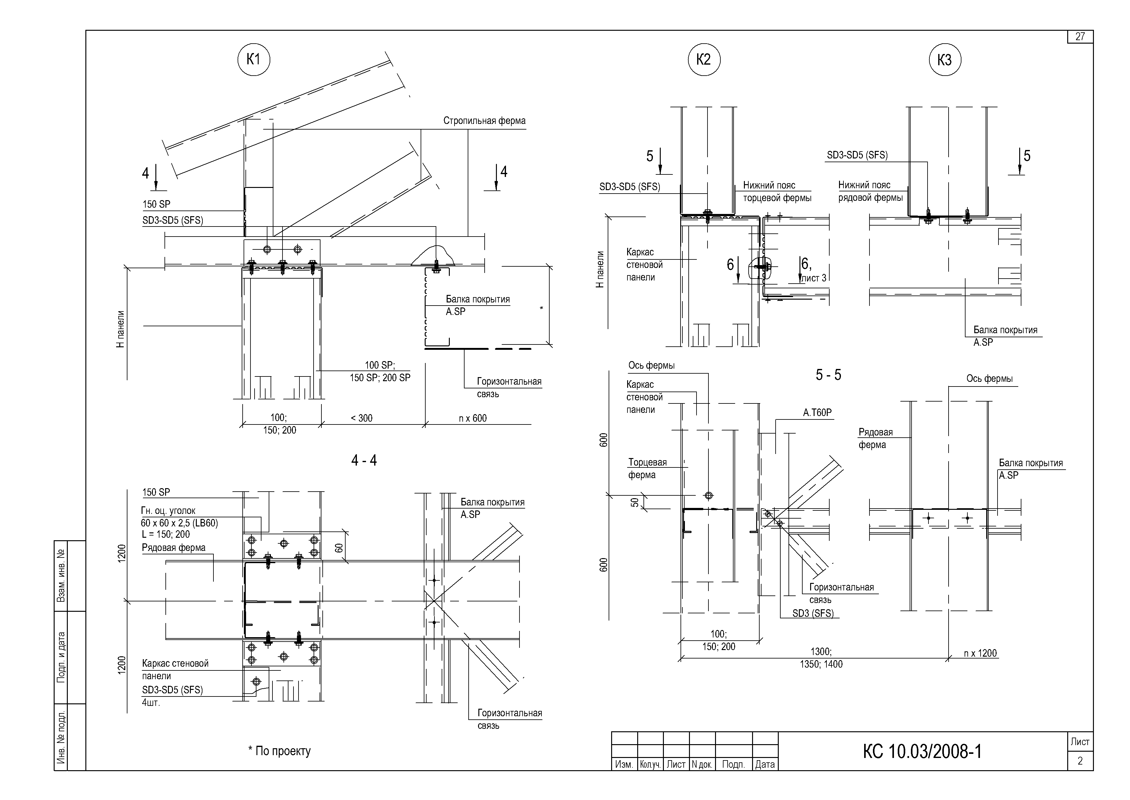
| Область применения: | Альбом содержит материалы для проектирования и рабочие чертежи узлов конструкций наружных несущих и ненесущих каркасно-обшивных стен поэлементной сборки на стальном каркасе СТАЛДОМ® с наружной обшивкой из плит АКВАПАНЕЛЬ® Наружная. |
| Оглавление: | КС 10.03/2008 Содержание КС 10.03/2008-П3 1. Область применения документа 2. Нормативные ссылки 3. Общие положения 4. Материалы и комплектующие изделия 5. Технические решения стен СТАЛДОМ 6. Технология монтажа стен 7. Приемка смонтированных конструкций 8. Основные правила технической эксплуатации конструкций КС 10.03/2008-1 Схемы сопряжения стен и покрытия. Узлы КС 10.03/2008-2 Стальной каркас стен. Узлы КС 10.03/2008-3 Стены с воздушным зазором. Фасад здания. Схемы обрешетки. Узлы КС 10.03/2008-4 Стены без воздушного зазора. Фасад здания. Узлы КС 10.03/2008-П-1 Приложение 1. Перечень материалов и изделий КС 10.03/2008-П-2 Приложение 2. Комплект необходимого инструмента КС 10.03/2008-П-3 Приложение 3. Минимальные значения приведенного сопротивления теплопередаче наружной стены |
| Разработан: | ООО КНАУФ-Сервис ООО Талдом Профиль |
| Утверждён: | 01.01.2008 ООО КНАУФ Сервис (KNAUF Servis OOO ) |
| Принят: | НИИСФ Госстроя СССР (NIISF, USSR Gossstroy ) ФГУ ВНИИПО МЧС России |
| Расположен в: | |
| Нормативные ссылки: |
|






















































