| ||||||||||||||||||||||||||||||
Скачать Серия 1.031.9-3.10 Комплектные системы КНАУФ. Перегородки поэлементной сборки из гипсоволокнистых листов на металлическом и деревянном каркасах для жилых, общественных и производственных зданий. Выпуск 3. Материалы для проектированияДата актуализации: 10.08.2017
|
| Обозначение: | Серия 1.031.9-3.10 |
| Обозначение англ: | Series 1.031.9-3.10 |
| Статус: | не определен законодательством |
| Название рус.: | Комплектные системы КНАУФ. Перегородки поэлементной сборки из гипсоволокнистых листов на металлическом и деревянном каркасах для жилых, общественных и производственных зданий. Выпуск 3. Материалы для проектирования |
| Дата добавления в базу: | 01.09.2013 |
| Дата актуализации: | 05.05.2017 |
| Дата введения: | 01.01.2010 |
| Область применения: | Системы перегородок поэлементной сборки КНАУФ из гипсоволокнистых листов применяются как внутренние ограждающие конструкции в качестве противопожарных преград, улучшения тепло- и звукоизоляции, возможностью скрытия электропроводок и других инженерных коммуникаций для помещений с сухим, нормальным и влажным режимом, с неагрессивной средой. |
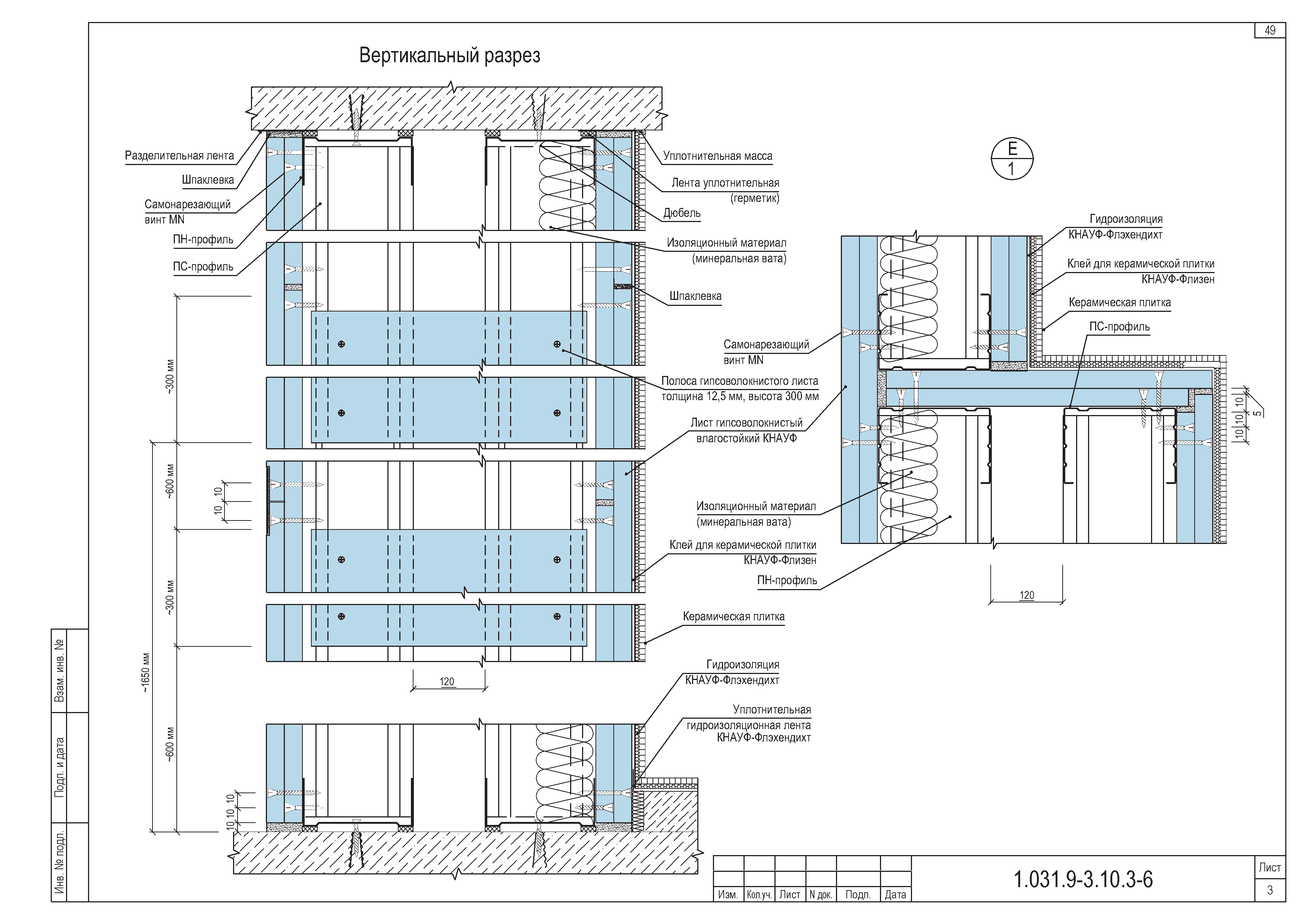
| Оглавление: | 1.031.9-3.10-П3 Пояснительная записка 1.031.9-3.10.3-1 Перегородка С361 1.031.9-3.10.3-2 Устройство проёма в металлическом каркасе, удлинение стоечных профилей 1.031.9-3.10.3-3 Перегородка С362 1.031.9-3.10.3-4 Перегородка С363 1.031.9-3.10.3-5 Перегородка С365 1.031.9-3.10.3-6 Перегородка С366 1.031.9-3.10.3-7 Перегородка С367 1.031.9-3.10.3-8 Перегородка С368 1.031.9-3.10.3-9 Перегородка С369 1.031.9-3.10.3-10 Сопряжение перегородок с коммуникационными трассами 1.031.9-3.10.3-11 Установка коробок под электрооборудование 1.031.9-3.10.3-12 Встроенный пожарный шкаф 1.031.9-3.10.3-13 Система для крепления навесного оборудования 1.031.9-3.10.3-П1 Приложение 1 1.031.9-3.10.3-П2 Приложение 2 |
| Разработан: | ЗАО институт Челябинский Промстройпроект ООО КНАУФ Маркетинг Челябинск |
| Утверждён: | 01.01.2010 ООО КНАУФ Сервис (KNAUF Servis OOO ) |
| Расположен в: | |
| Нормативные ссылки: |
|














































































