| ||||||||||||||||||||||||||||||||
Скачать Шифр КС 31.07/2009 Комплектные системы КНАУФ. Каркасно-обшивные конструкции поэлементной сборки с применением гипсовых негорючих плит КНАУФ-Файерборд для зданий различного назначения. Выпуск 1. Материалы для проектирования и чертежи узловДата актуализации: 10.08.2017
|
| Обозначение: | Шифр КС 31.07/2009 |
| Обозначение англ: | КС 31.07/2009 |
| Статус: | не определен законодательством |
| Название рус.: | Комплектные системы КНАУФ. Каркасно-обшивные конструкции поэлементной сборки с применением гипсовых негорючих плит КНАУФ-Файерборд для зданий различного назначения. Выпуск 1. Материалы для проектирования и чертежи узлов |
| Дата добавления в базу: | 01.09.2013 |
| Дата актуализации: | 05.05.2017 |
| Дата введения: | 01.01.2009 |
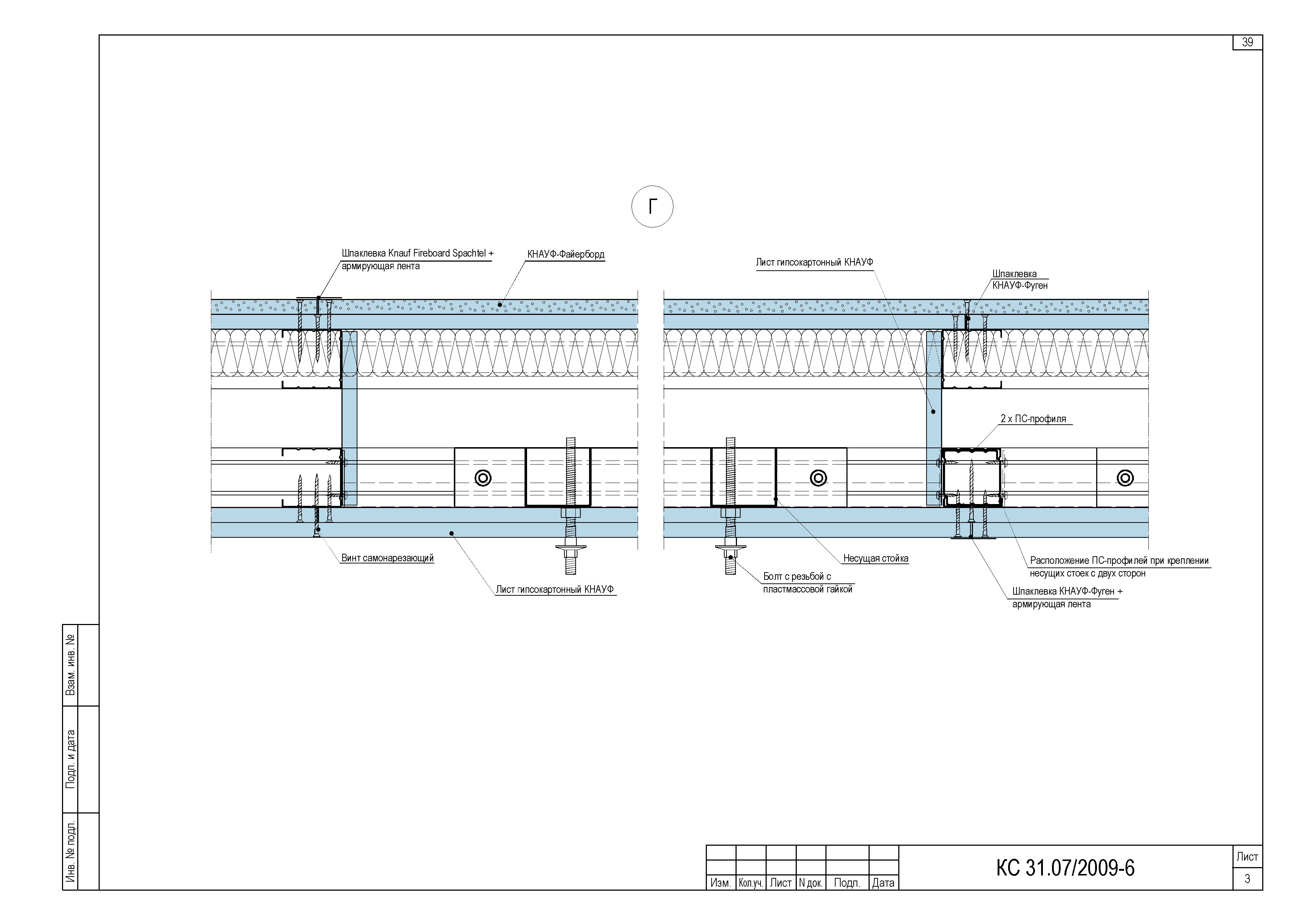
| Область применения: | Альбом содержит материалы для проектирования и рабочие чертежи узлов каркасно-обшивных конструкций поэлементной сборки (перегородок, подвесных потолков, облицовок стен и коммуникационных шахт) с использованием гипсовых негорючих плит КНАУФ-Файерборд. |
| Оглавление: | Содержание Пояснительная записка 1. Область применения 2. Нормативные ссылки 3. Общие положения 4. Материалы и комплектующие изделия 5. Технические решения конструкций 6. Технология монтажа конструкций 7. Основные правила технической безопасности при производстве работ 8. Транспортировка и хранение материалов 9. Основные правила технической эксплуатации конструкций 10. Приемка смонтированных конструкций Устройство проемов в стальном каркасе, удлинение стоечных профилей Перегородка С 131.1 Перегородка С 131.2 Перегородка С 132 Перегородка С 135 Перегородка С 136 Сопряжение перегородок с коммуникационными трассами Облицовка С 633 Облицовка С 635 Облицовка С 636 Формирование короба для обрамления коммуникаций Установка коробок под электрооборудование Потолок П 232 Потолок П 233 Приложение 1 Приложение 2 |
| Разработан: | ООО КНАУФ-Сервис |
| Утверждён: | 01.01.2009 ООО КНАУФ Сервис (KNAUF Servis OOO ) |
| Принят: | НИИСФ Госстроя СССР (NIISF, USSR Gossstroy ) ФГУ ВНИИПО МЧС России |
| Расположен в: | |
| Нормативные ссылки: |
|









































































