Скачать Типовой проект 903-4-169.90 Альбом 2. Технология производства. Автоматизация технологии производства. Силовое электрооборудование. Электрическое освещение. Связь и сигнализация. Отопление и вентиляция. Водоснабжение и канализацияДата актуализации: 10.08.2017 Типовой проект 903-4-169.90
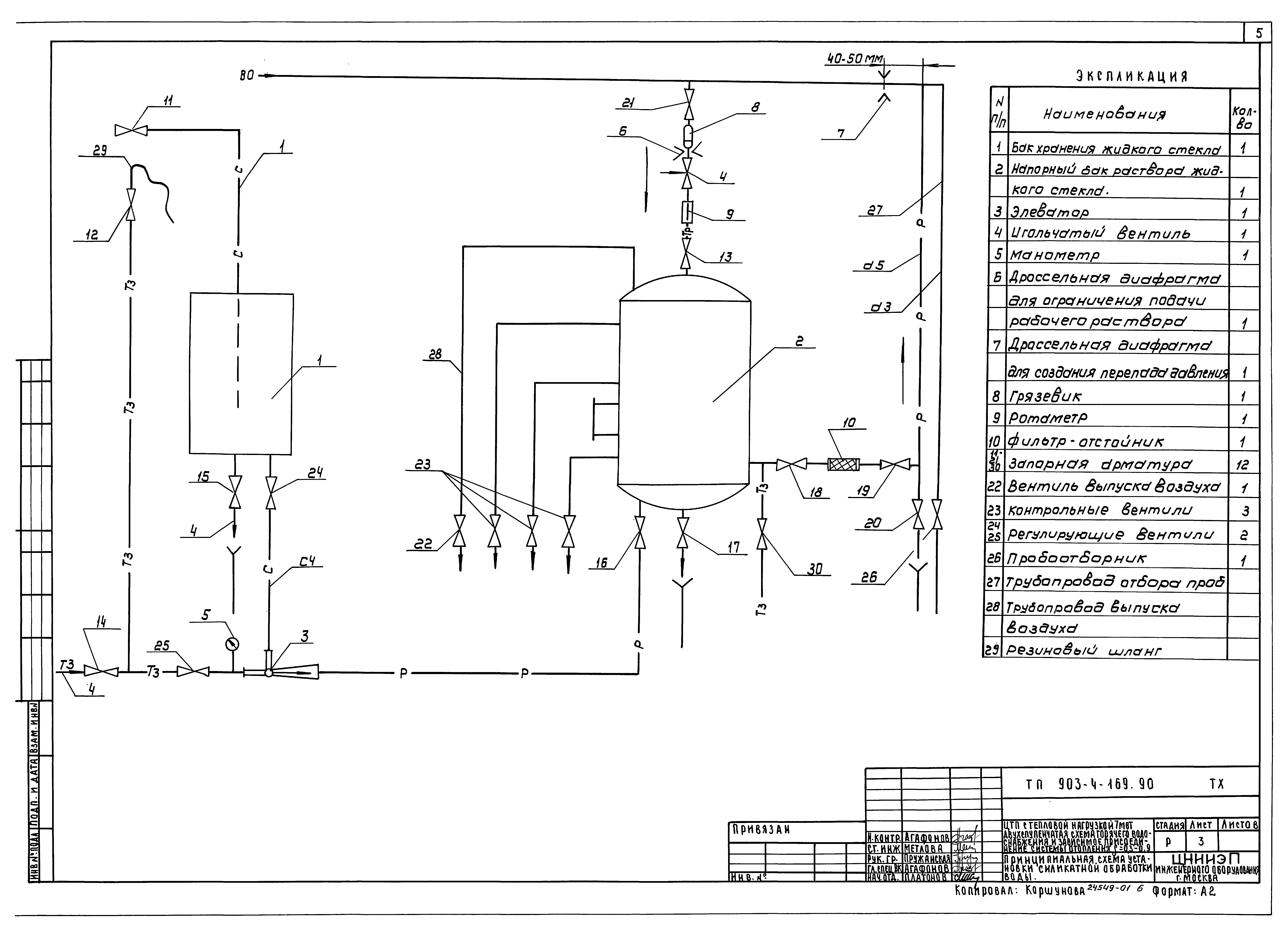
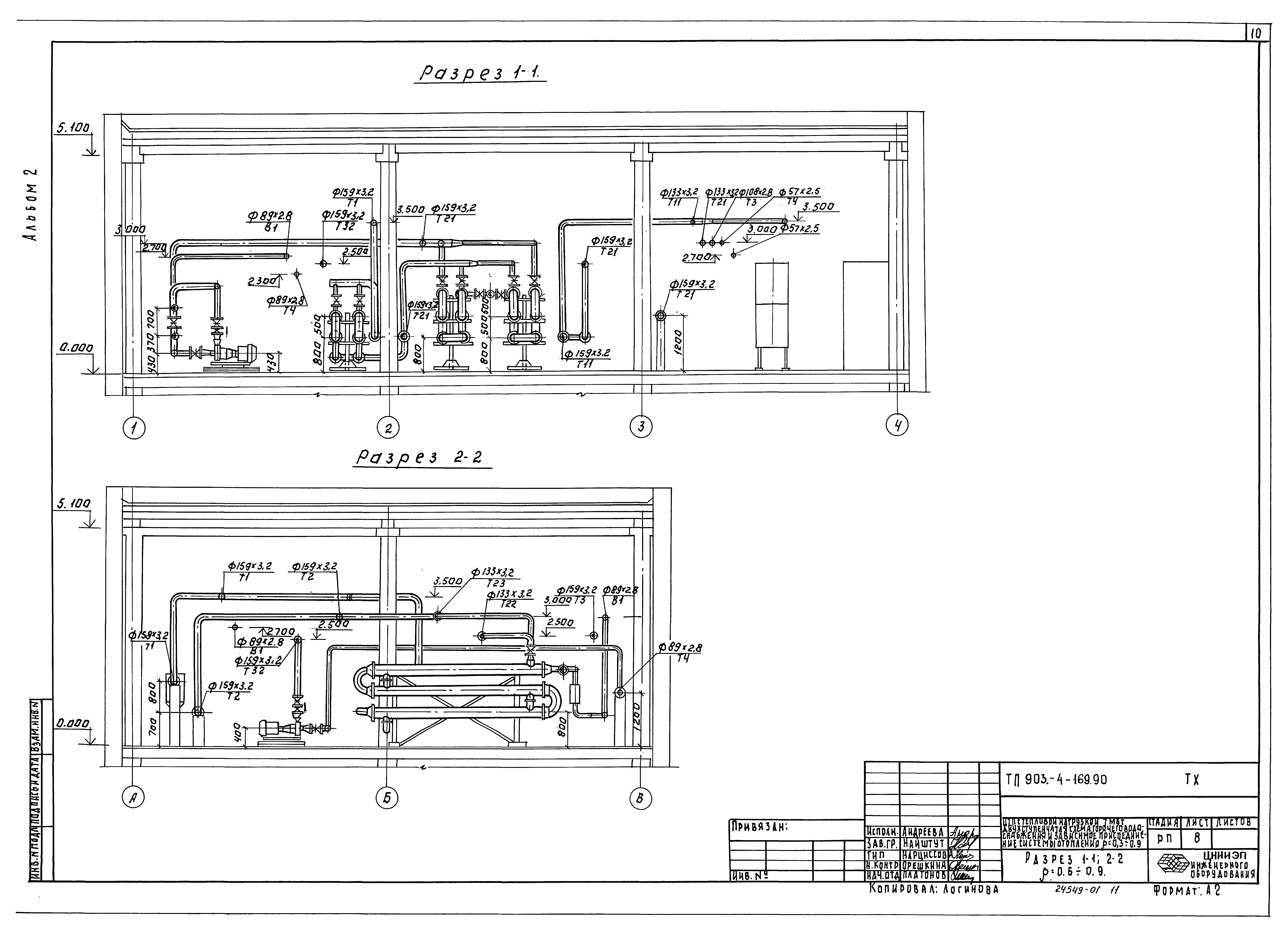
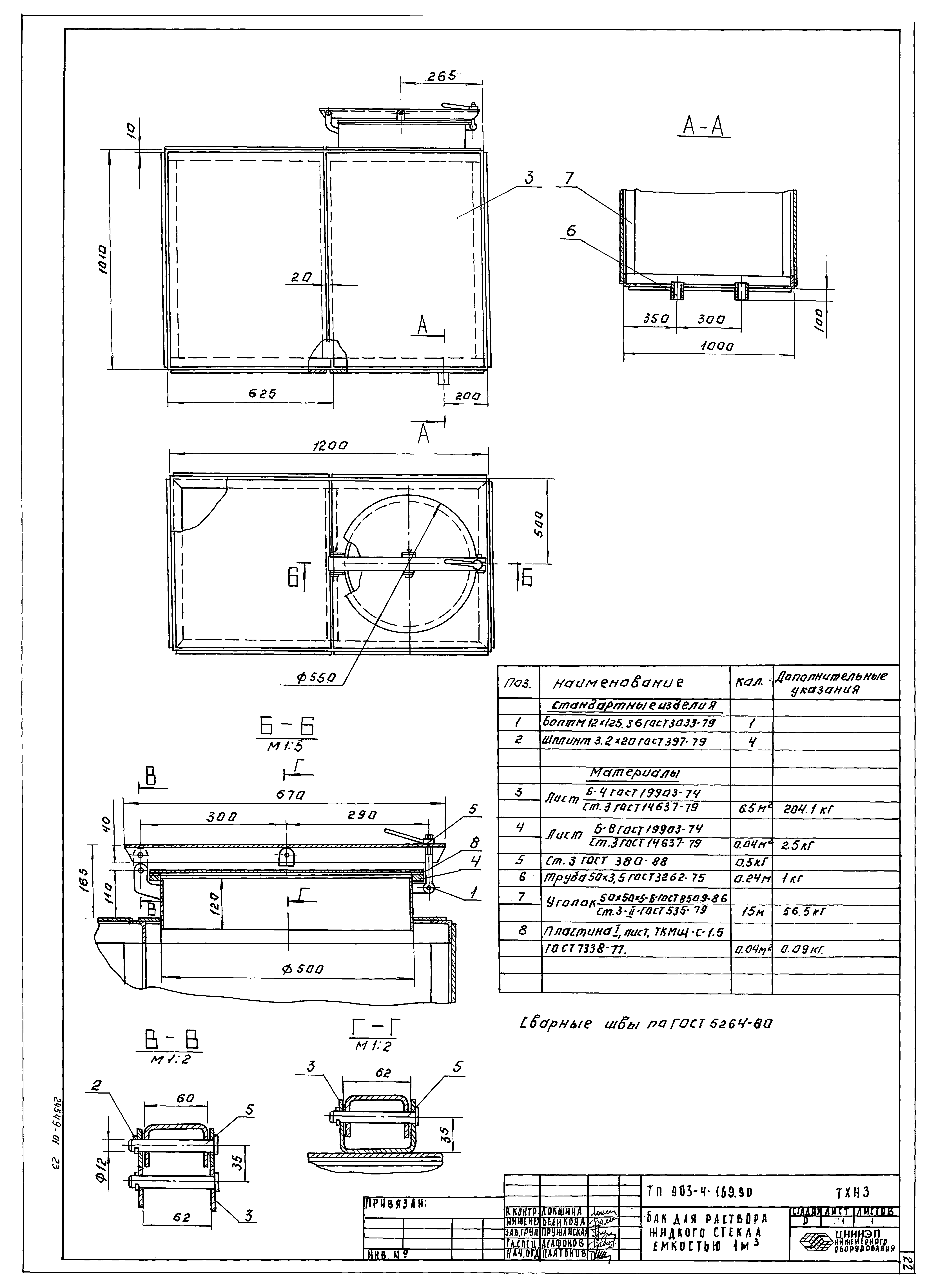
Альбом 2. Технология производства. Автоматизация технологии производства. Силовое электрооборудование. Электрическое освещение. Связь и сигнализация. Отопление и вентиляция. Водоснабжение и канализацияОбозначение: | Типовой проект 903-4-169.90 | Обозначение англ: | 903-4-169.90 | Статус: | не определен законодательством | Название рус.: | Альбом 2. Технология производства. Автоматизация технологии производства. Силовое электрооборудование. Электрическое освещение. Связь и сигнализация. Отопление и вентиляция. Водоснабжение и канализация | Дата добавления в базу: | 01.09.2013 | Дата актуализации: | 05.05.2017 | Дата введения: | 12.11.1990 | Оглавление: | Технология производства Общие данные Технологическая схема теплоснабжения и водоснабжения Принципиальная схема силикатной обработки воды План на отм. 0.000, р = 0,3 - 0,5 Разрез 1-1, 2-2, р = 0,3 - 0,5 Схема трубопроводов р = 0,3 - 0,5 План на отм. 0.000, р = 0,6 - 0,9 Разрез 1-1, 2-2, р = 0,6 - 0,9 Схемы трубопроводов р = 0,6 - 0,9 Установка водоподогревателей горячего водоснабжения I ступени р = 0,3 - 0,5 Установка водоподогревателей горячего водоснабжения I ступени р = 0,6 - 0,9 Установка водоподогревателей горячего водоснабжения II ступени р = 0,3 - 0,5 Установка водоподогревателей горячего водоснабжения II ступени р = 0,6 - 0,9 Установка циркуляционно-повысительных насосов горячего водоснабжения Установка корректирующих насосов системы отопления Установка хозяйственных насосов Водопроводный узел. Тепловой узел Опорная рама под насосы ОР-1 Опорные рамы под насосы ОР-2, ОР-3 Бак для раствора жидкого стекла емкостью 1 куб. м Бак напорный емкостью 1,57 куб. м Фильтр отстойник Автоматизации технологии производства Общие данные Схема автоматизации Схема электрическая принципиальная регулирования Схема электрическая принципиальная управления хозяйственными насосами Схема электрическая принципиальная управления циркуляционно-повысительными насосами ГВС Схема электрическая принципиальная управления корректирующими насосами отопления Схема электрическая принципиальная распределительной сети Схема электрическая принципиальная аварийно-предупредительной сигнализации Схема внешних проводок План расположения Щит автоматизации. Схема подключения Силовое электрооборудование Общие данные Схема электрическая принципиальная распределительной сети Размещение электрооборудования и прокладка кабелей. План Электрическое освещение Общие данные. Электрическое освещение. План на отм. 0.000. Спецификация Связь и сигнализация Общие данные. План на отм. 0.000 с сетями связи. Спецификация Отопление и вентиляция Общие данные. План на отм. 0.000. Схемы систем П1, ВЕ1 Водопровод и канализация Общие данные. Фрагмент плана на отм. 0.000. Выкопировка из плана кровли по оси "Б". Схемы В1, Т3, К1, К2 | Разработан: | ЦНИИЭП инженерного оборудования
| Утверждён: | 12.11.1990 Госкомархитектура (200)
| Издан: | ГП ЦПП (1995 г. )
| Расположен в: |
| Заменяет собой: | - Типовой проект 903-4-103.87 «Центральный тепловой пункт для городских микрорайонов с тепловой нагрузкой 7 МВт. Двухступенчатая схема горячего водоснабжения и зависимое присоединение систем отопления р = 0,3 - 0,5 (каркасно-панельный вариант)»
- Типовой проект 903-4-104.87 «Центральный тепловой пункт для городских микрорайонов с тепловой нагрузкой 7 МВт. Двухступенчатая схема горячего водоснабжения и зависимое присоединение систем отопления р = 0,3 - 0,5 (кирпичный вариант)»
|
                                            
|