Информационная система
«Ёшкин Кот»

Скачать базу одним архивом
Скачать обновления
История создания базы
Карта сайта

Скачать Типовой проект 409-28-61.92 Альбом 4. Отопление, вентиляция (и кондиционирование воздуха). Внутренние водопровод и канализация. Технологические коммуникации

Дата актуализации: 10.08.2017

Типовой проект 409-28-61.92

Альбом 4. Отопление, вентиляция (и кондиционирование воздуха). Внутренние водопровод и канализация. Технологические коммуникации

Обозначение: Типовой проект 409-28-61.92
Обозначение англ: 409-28-61.92
Статус:не определен законодательством
Название рус.:Альбом 4. Отопление, вентиляция (и кондиционирование воздуха). Внутренние водопровод и канализация. Технологические коммуникации
Дата добавления в базу:01.09.2013
Дата актуализации:05.05.2017
Дата введения:11.06.1992
Оглавление:Отопление, вентиляция (и кондиционирование воздуха), ОВ
   Общие данные
   План вентиляции на отм. 0.000. Фрагмент 1, 2, 3
   План отопления и теплоснабжения на отм. 0.000. Фрагмент 4, 5, 6
   Схемы систем П1…П3, ВТ1, В4, В8, У1а, У1б, У2а, У2б…У4а, У4б
   Схемы систем В1…В3, В9
   Схемы систем отопления 1, 2
   Схемы систем теплоснабжения установок У1а, У1б…У4а, У4б, П1…П3
   Узлы схем систем теплоснабжения 1, 2, 4. Узел управления
   Узлы схем систем теплоснабжения 3, 5, 6
   Установка систем П1, П2
   Установка систем В1
Внутренние водопровод и канализация, ВК
   Общие данные
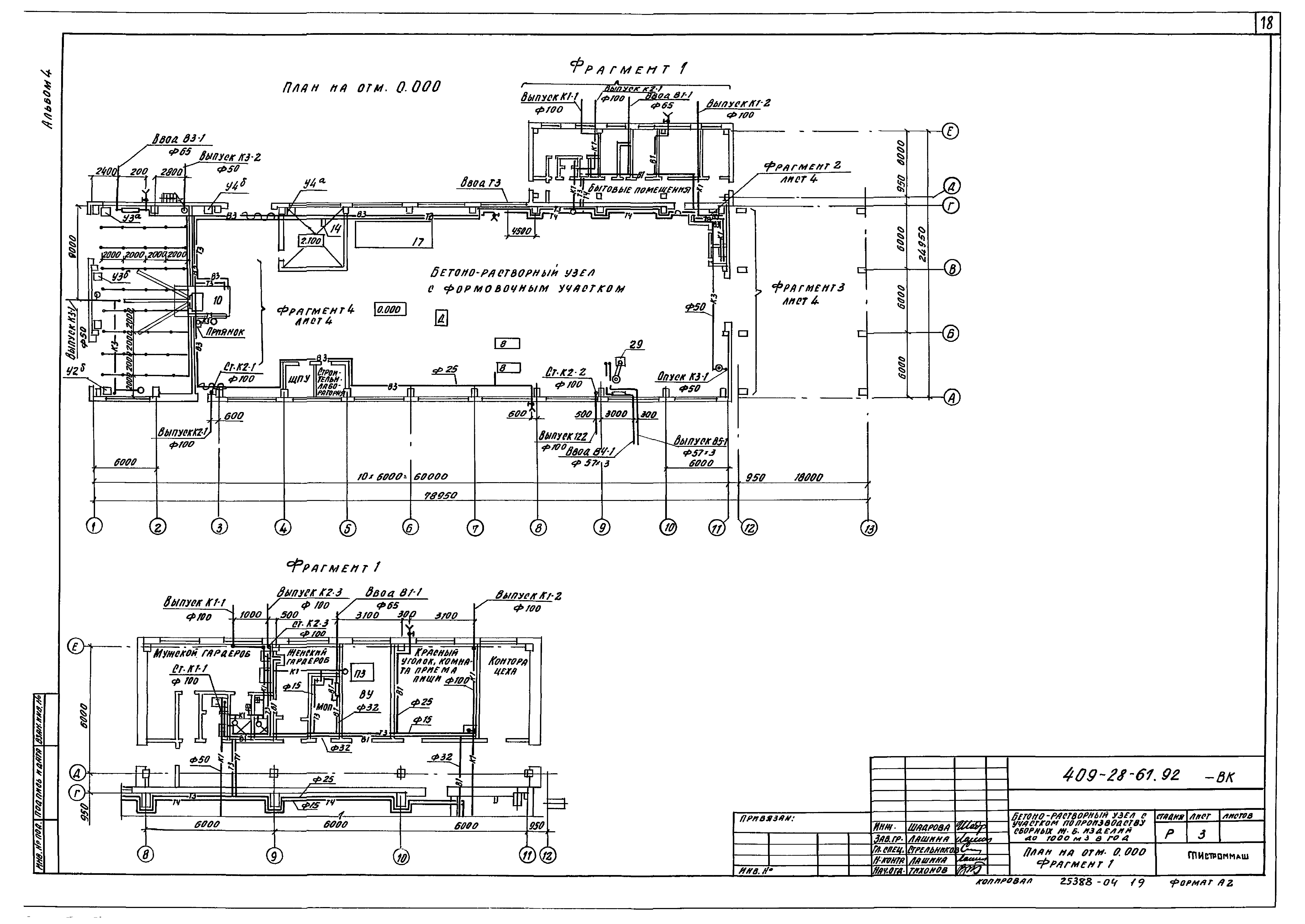
   План на отм. 0.000. Фрагмент 1
   План кровли. Фрагменты 2, 3, 4
   Схемы систем В1, Т3, Т4, В10, К13. Водомерные узлы 1, 2, 3
   Схемы систем В3, В4, В5, К2
   Схемы систем К1, К3
Прилагаемые документы
   Форсунка
Технологические коммуникации, ТК
   Общие данные
   План на отм. 0.000. Разрез 1-1. Сечения 2-2, 3-3
   Аксонометрическая схема трубопроводов сжатого воздуха. Аксонометрическая схема трубопроводов пара. Узел I
Разработан: ГПИ Строммаш
Утверждён:13.05.1992 МО Строммаш (17)
Расположен в:Техническая документация Строительство Справочные документы Типовые строительные конструкции, изделия и узлы Общероссийский строительный каталог Промышленные предприятия, здания и сооружения Предприятия, здания и сооружения промышленности и электроэнергетики Строительная индустрия и промышленность строительных материалов Производство строительных материалов и изделий Производство бетона, раствора и асфальта
Типовой проект 409-28-61.92Типовой проект 409-28-61.92Типовой проект 409-28-61.92Типовой проект 409-28-61.92Типовой проект 409-28-61.92Типовой проект 409-28-61.92Типовой проект 409-28-61.92Типовой проект 409-28-61.92Типовой проект 409-28-61.92Типовой проект 409-28-61.92Типовой проект 409-28-61.92Типовой проект 409-28-61.92Типовой проект 409-28-61.92Типовой проект 409-28-61.92Типовой проект 409-28-61.92Типовой проект 409-28-61.92Типовой проект 409-28-61.92Типовой проект 409-28-61.92Типовой проект 409-28-61.92Типовой проект 409-28-61.92Типовой проект 409-28-61.92Типовой проект 409-28-61.92Типовой проект 409-28-61.92Типовой проект 409-28-61.92Типовой проект 409-28-61.92Типовой проект 409-28-61.92Типовой проект 409-28-61.92

© 2013 Ёшкин Кот :-) Карта сайта