Скачать Типовой проект 121-043/1.2 Часть 2. Раздел 2-1. Отопление и вентиляция. С радиаторами М-140-АО на расчетные температуры минус 20, минус 25, минус 30, минус 35, минус 40 градусов ЦельсияДата актуализации: 10.08.2017 Типовой проект 121-043/1.2
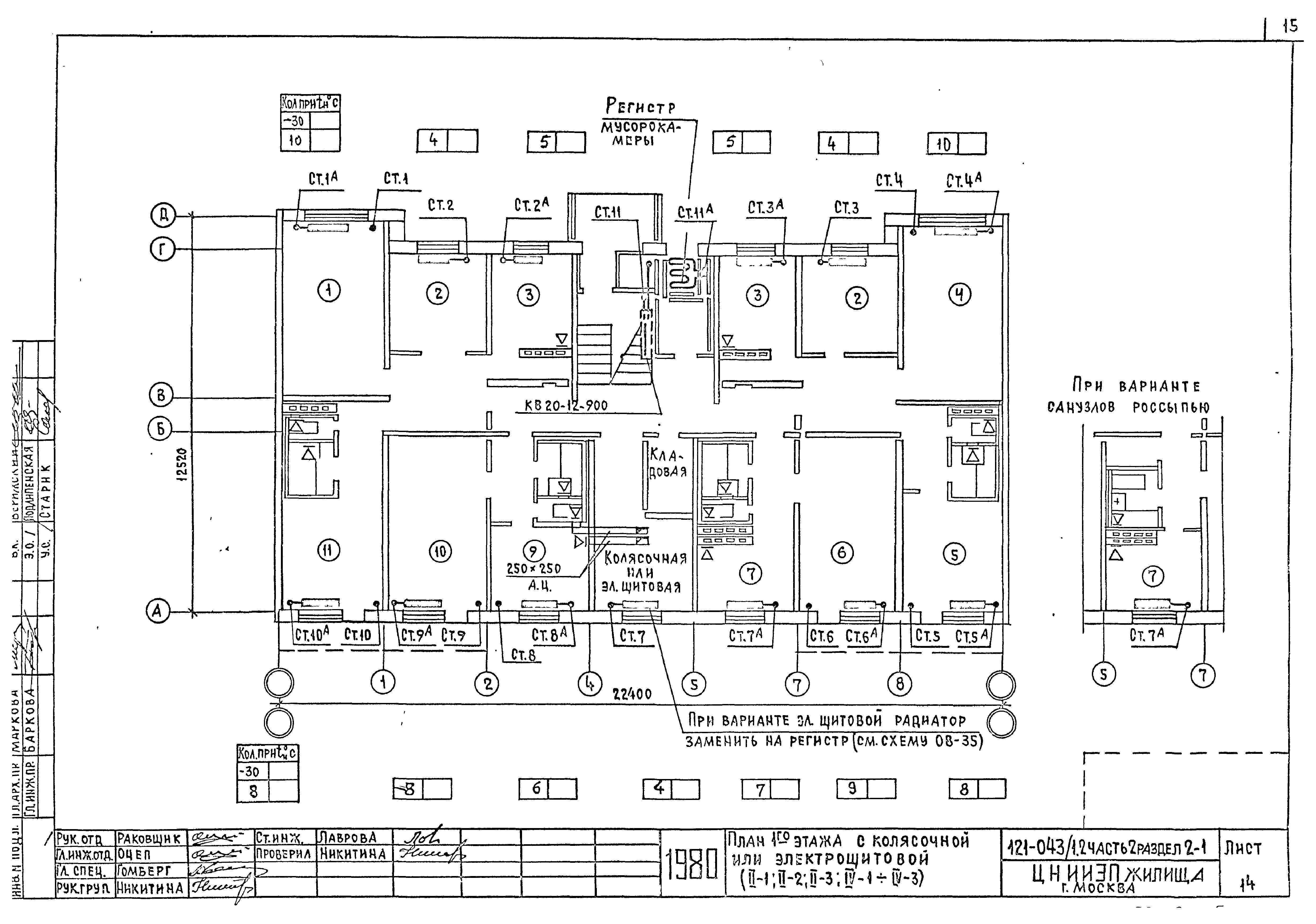
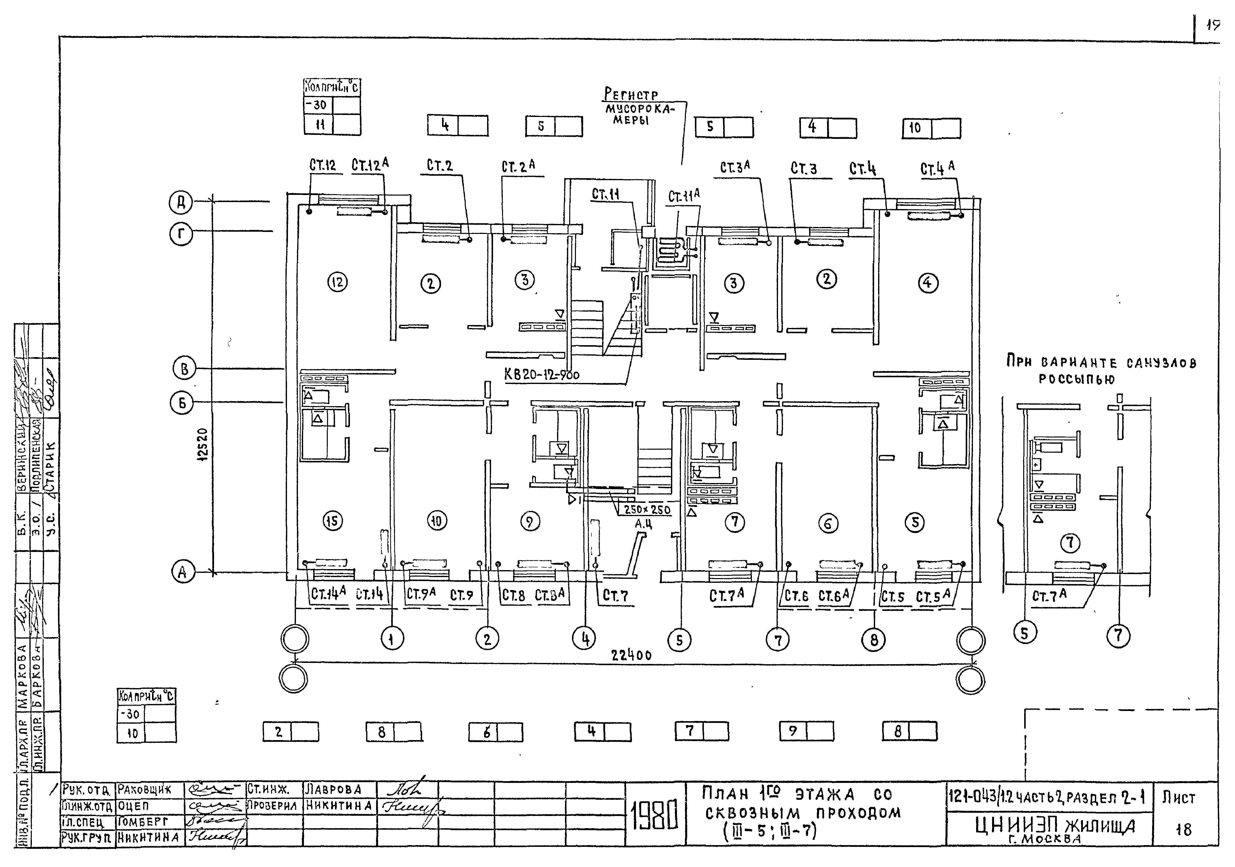
Часть 2. Раздел 2-1. Отопление и вентиляция. С радиаторами М-140-АО на расчетные температуры минус 20, минус 25, минус 30, минус 35, минус 40 градусов ЦельсияОбозначение: | Типовой проект 121-043/1.2 | Обозначение англ: | 121-043/1.2 | Статус: | не определен законодательством | Название рус.: | Часть 2. Раздел 2-1. Отопление и вентиляция. С радиаторами М-140-АО на расчетные температуры минус 20, минус 25, минус 30, минус 35, минус 40 градусов Цельсия | Дата добавления в базу: | 01.09.2013 | Дата актуализации: | 05.05.2017 | Дата введения: | 01.04.1982 | Оглавление: | Заглавный лист Общие указания Спецификация План подполья (свайные фундаменты). План и схема магистралей План подполья (ленточные фундаменты). План и схема магистралей План 1-го этажа (I-1; I-2; I-3) План 1-го этажа с колясочной электрощитовой (II-1; II-2; II-3; IV-3) План 1-го этажа со сквозным проходом (III-1; III-2; III-3) План 1-го этажа (I-5; I-7) План 1-го этажа с колясочной или электрощитовой (II-5; II-7; IV-5; IV-7) План 1-го этажа со сквозным проходом (III-5; III-7) План 1-го этажа (I-4; I-6) План 1-го этажа с колясочной или электрощитовой (II-4; II-6; IV-4; IV-6) План 1-го этажа со сквозным проходом (III-4; III-6) План 1-го этажа (I-8) План 1-го этажа с колясочной или электрощитовой (II-8; IV-8) План 1-го этажа со сквозным проходом (III-8) План 2 - 9 этажей План чердака Схемы стояков | Разработан: | ЦНИИЭП жилища
| Утверждён: | 10.07.1974 ЦНИИЭП жилища (TsNIIEPzhilishcha 466)
| Расположен в: |
|
                                 
|