| ||||||||||||||||||||||||||
Скачать Типовые материалы для проектирования 409-015-124.91 Альбом II. ЧертежиДата актуализации: 10.08.2017
|
| Обозначение: | Типовые материалы для проектирования 409-015-124.91 |
| Обозначение англ: | 409-015-124.91 |
| Статус: | cправочные материалы, мп, тпр |
| Название рус.: | Альбом II. Чертежи |
| Дата добавления в базу: | 01.09.2013 |
| Дата актуализации: | 05.05.2017 |
| Дата введения: | 24.01.1991 |
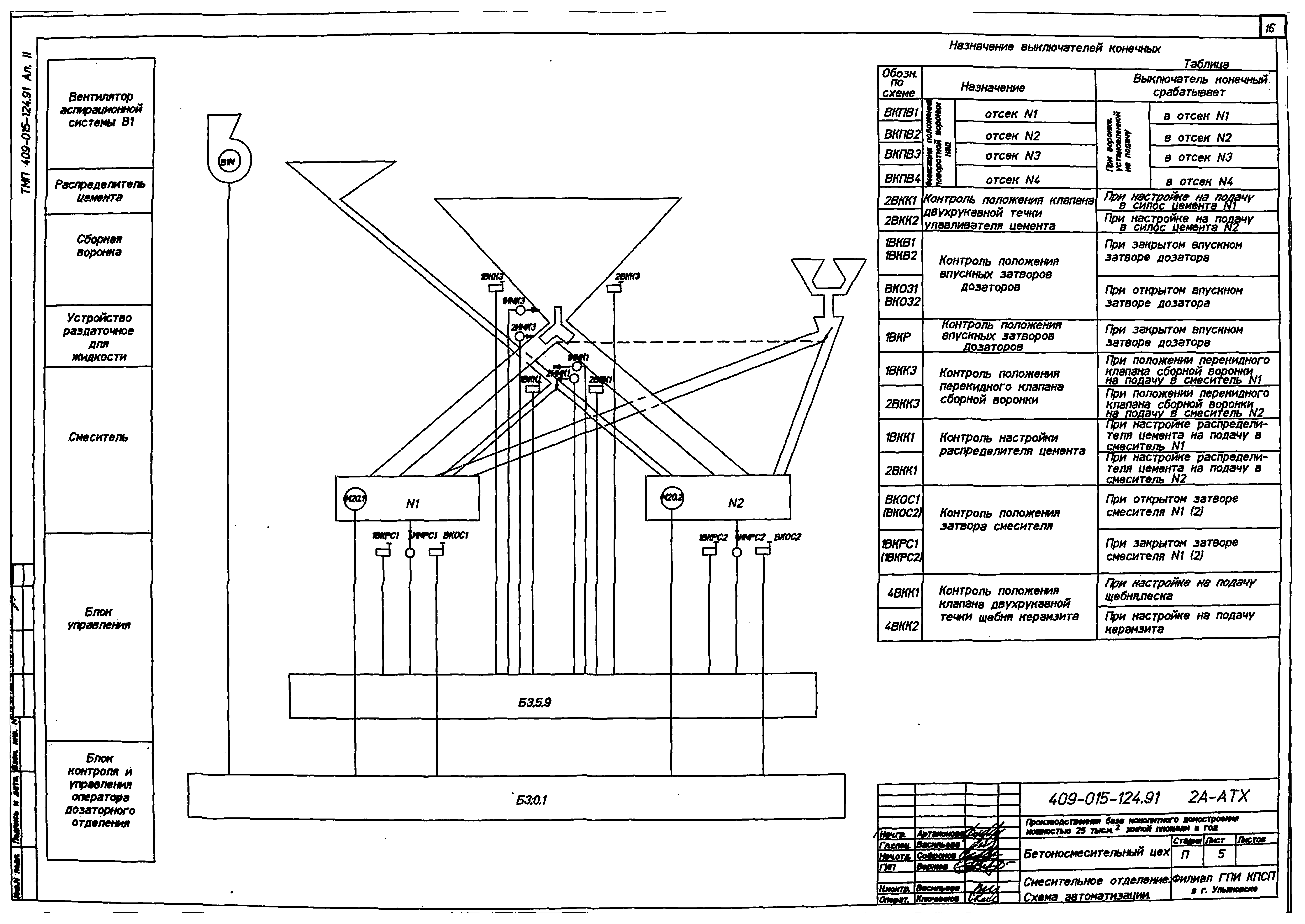
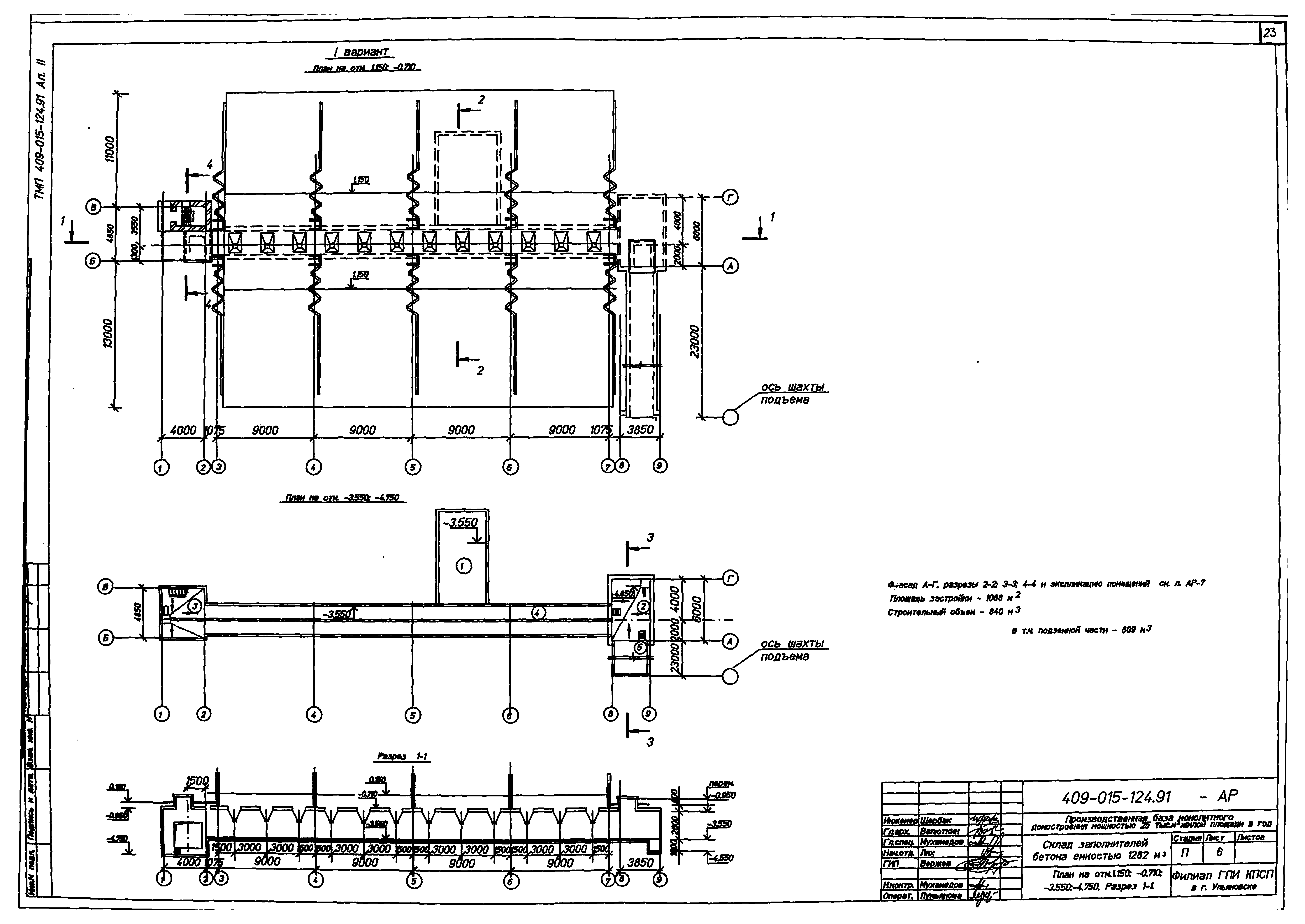
| Оглавление: | Содержание Схема генплана. Вариант 1 Схема генплана. Вариант 2 Схема генплана. Вариант 3 Стройгенплан План расположения технологического оборудования Схема технологического процесса Скелетная схема связи, сигнализации и радиофикации Схема электроснабжения Схема автоматизации систем ОВ Схема расположения источников вредных выбросов Бетоносмесительный цех. Надбункерное отделение. Схема технологическая с расстановкой электрооборудования Дозаторное и смесительное отделения. Схема технологическая с расстановкой электрооборудования Надбункерное отделение. Схема автоматизации Дозаторное отделение. Схема автоматизации Смесительное отделение. Схема автоматизации Формовочный цех. Пропарочные камеры. Схема автоматизации Главный производственный корпус. План на отм. 0.000 План на отм. 4.200 и 3.600 Разрез 1-1 Фасады 1 - 16; А - М Фасады 16 - 1; М - А Склад заполнителей бетона. Вариант 1 Склад заполнителей бетона. Варианты 2, 3 Административно-бытовой корпус. Фасады. Планы. Разрезы Гараж на 5 автомобилей |
| Разработан: | ГПИ Куйбышевский Промстройпроект в г. Ульяновске |
| Утверждён: | 24.01.1991 Концерн Росюгстрой (3) |
| Расположен в: |


























