Информационная система
«Ёшкин Кот»

Скачать базу одним архивом
Скачать обновления
История создания базы
Карта сайта

Скачать Типовой проект 222-1-474.86 Альбом III. Электротехнические чертежи

Дата актуализации: 10.08.2017

Типовой проект 222-1-474.86

Альбом III. Электротехнические чертежи

Обозначение: Типовой проект 222-1-474.86
Обозначение англ: 222-1-474.86
Статус:не определен законодательством
Название рус.:Альбом III. Электротехнические чертежи
Дата добавления в базу:01.09.2013
Дата актуализации:05.05.2017
Дата введения:10.04.1986
Оглавление:Чертежи основного комплекта марки ЭО
   Общие данные
   Расчетная схема питающих сетей
   Блок 1. План расположения сетей подвала и техподполья
   Блок 2. План расположения сетей техподполья
   Блок 1, 2. План расположения сетей подвала (вариант)
   Блок 1. План расположения сетей 1 этажа
   Блок 1. План расположения сетей 2 этажа
   Блок 1. План расположения сетей 3 этажа
   Блок 2. План расположения сетей 1 этажа
   Блок 2. План расположения сетей 2 этажа
   Блок 2. План расположения сетей 3 этажа
Чертежи основного комплекта марки ЭМ
   Общие данные
   План расположения сетей техподполья
   План расположения сетей подвала (вариант)
   Блок 1. План расположения сетей 1 этажа
   Блок 2. План расположения сетей 1, 2 и 3 этажей
   Блок 2. План расположения сетей столовой
   План расположения сетей кровли
   Отключение вентиляции при пожаре. Кабельный журнал
   Принципиальная таблица-схема распределительной сети
   Вводно-распределительное устройство. Опросный лист
Чертежи основного комплекта марки А
   Общие данные
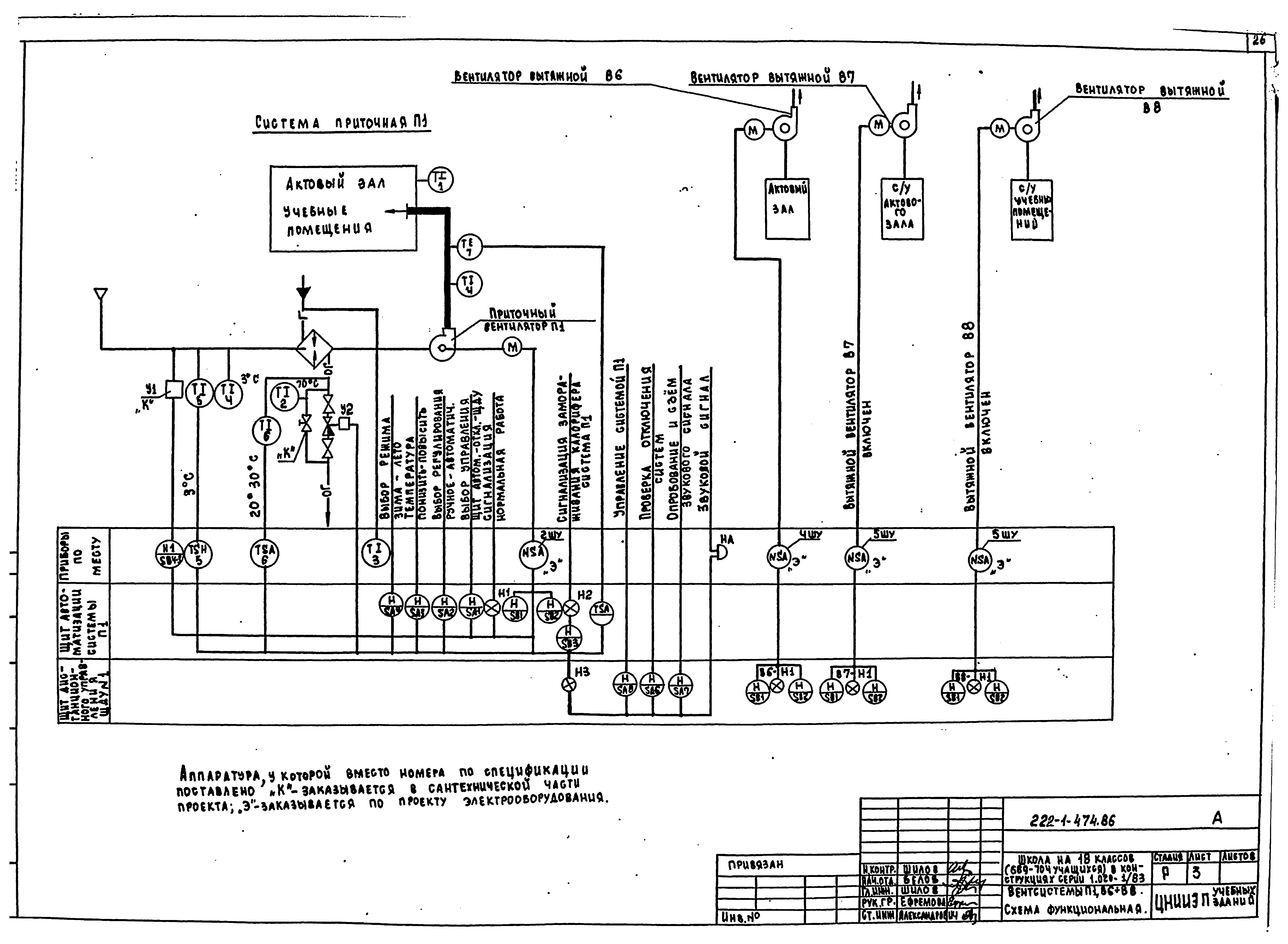
   Вентсистемы П1, В6 - В8. Схема функциональная
   Вентсистемы П3, В2, В3. Схема функциональная
   Вентсистемы П2, В1. Схема функциональная
   Система приточная П1 (П3). Схема электрическая принципиальная управления
   Система приточная П1 (П3). Схема электрическая принципиальная регулирования температуры
   Системы приточные П1, П3. Схема электрическая принципиальная сигнализации
   Вентсистемы П1 (П3), В2 (В3, В6 - В8). Схемы электрические принципиальные управления
   Вентсистемы П2, В1. Схема электрическая принципиальная управления
   Вентсистемы П2, В1. Схема внешних проводок
   Вентсистемы П1 (П3), В2, В3, В6 - В8. Схема внешних проводок
   Системы приточные П1 - П3. Венткамера. План прокладки контрольных сетей
   Схема управления электрофицированной задвижкой
Чертежи основного комплекта марки СС
   Общие данные
   Схемы систем связи и сигнализации
   План расположения сетей в техподполье и подвале
   План расположения сетей связи в подвале (вариант с хозяйственно-бытовыми помещениями)
   Блок 1. План расположения сетей связи 1 этажа
   Блок 2. План расположения сетей связи 1 этажа
   Блок 1. План расположения сетей связи 2 этажа
   Блок 2. План расположения сетей связи 2 этажа
   Блок 1. План расположения сетей связи 3 этажа
   Блок 2. План расположения сетей связи 3 этажа
   План расположения сетей сигнализации подвала (вариант с хозяйственно-бытовыми помещениями)
   Блок 1. План расположения сетей сигнализации 1 этажа
   Блок 2. План расположения сетей сигнализации 1 этажа
   Блок 1. План расположения сетей сигнализации 2 этажа
   Блок 2. План расположения сетей сигнализации 2 этажа
   Блок 1. План расположения сетей сигнализации 3 этажа
   Блок 2. План расположения сетей сигнализации 3 этажа
   План расположения сетей связи на кровле
   Коробка для подключения телевизора
   Коробка для подключения микрофона
Разработан: ЦНИИЭП учебных зданий
Утверждён:20.05.1983 Госгражданстрой (Gosgrazhdanstroy 159)
Расположен в:Техническая документация Строительство Справочные документы Типовые строительные конструкции, изделия и узлы Общероссийский строительный каталог Защитные сооружения гражданской обороны Типовые проекты защитных сооружений гражданской обороны для жилищно-гражданского строительства Для строительства в сельской местности Встроенные помещения, приспосабливаемые под противорадиационные укрытия в общественных зданиях Противорадиационные укрытия в школах и внешкольных учреждениях Общественные здания для строительства в сельской местности Школы и внешкольные учреждения Общеобразовательные школы
Типовой проект 222-1-474.86Типовой проект 222-1-474.86Типовой проект 222-1-474.86Типовой проект 222-1-474.86Типовой проект 222-1-474.86Типовой проект 222-1-474.86Типовой проект 222-1-474.86Типовой проект 222-1-474.86Типовой проект 222-1-474.86Типовой проект 222-1-474.86Типовой проект 222-1-474.86Типовой проект 222-1-474.86Типовой проект 222-1-474.86Типовой проект 222-1-474.86Типовой проект 222-1-474.86Типовой проект 222-1-474.86Типовой проект 222-1-474.86Типовой проект 222-1-474.86Типовой проект 222-1-474.86Типовой проект 222-1-474.86Типовой проект 222-1-474.86Типовой проект 222-1-474.86Типовой проект 222-1-474.86Типовой проект 222-1-474.86Типовой проект 222-1-474.86Типовой проект 222-1-474.86Типовой проект 222-1-474.86Типовой проект 222-1-474.86Типовой проект 222-1-474.86Типовой проект 222-1-474.86Типовой проект 222-1-474.86Типовой проект 222-1-474.86Типовой проект 222-1-474.86Типовой проект 222-1-474.86Типовой проект 222-1-474.86Типовой проект 222-1-474.86Типовой проект 222-1-474.86Типовой проект 222-1-474.86Типовой проект 222-1-474.86Типовой проект 222-1-474.86Типовой проект 222-1-474.86Типовой проект 222-1-474.86Типовой проект 222-1-474.86Типовой проект 222-1-474.86Типовой проект 222-1-474.86Типовой проект 222-1-474.86Типовой проект 222-1-474.86Типовой проект 222-1-474.86Типовой проект 222-1-474.86Типовой проект 222-1-474.86Типовой проект 222-1-474.86Типовой проект 222-1-474.86Типовой проект 222-1-474.86Типовой проект 222-1-474.86Типовой проект 222-1-474.86Типовой проект 222-1-474.86Типовой проект 222-1-474.86Типовой проект 222-1-474.86Типовой проект 222-1-474.86Типовой проект 222-1-474.86Типовой проект 222-1-474.86

© 2013 Ёшкин Кот :-) Карта сайта