Информационная система
«Ёшкин Кот»

Скачать базу одним архивом
Скачать обновления
История создания базы
Карта сайта

Скачать Типовой проект 222-1-474.86 Альбом II. Санитарно-технические чертежи

Дата актуализации: 10.08.2017

Типовой проект 222-1-474.86

Альбом II. Санитарно-технические чертежи

Обозначение: Типовой проект 222-1-474.86
Обозначение англ: 222-1-474.86
Статус:не определен законодательством
Название рус.:Альбом II. Санитарно-технические чертежи
Дата добавления в базу:01.09.2013
Дата актуализации:05.05.2017
Дата введения:10.04.1986
Оглавление:Чертежи основного комплекта марки ОВ
   Общие данные
   Блок 1. План подвала
   Блок 2. План подвала
   Блок 1; 2. План подвала (вариант с хозяйственно-бытовыми помещениями в подвале)
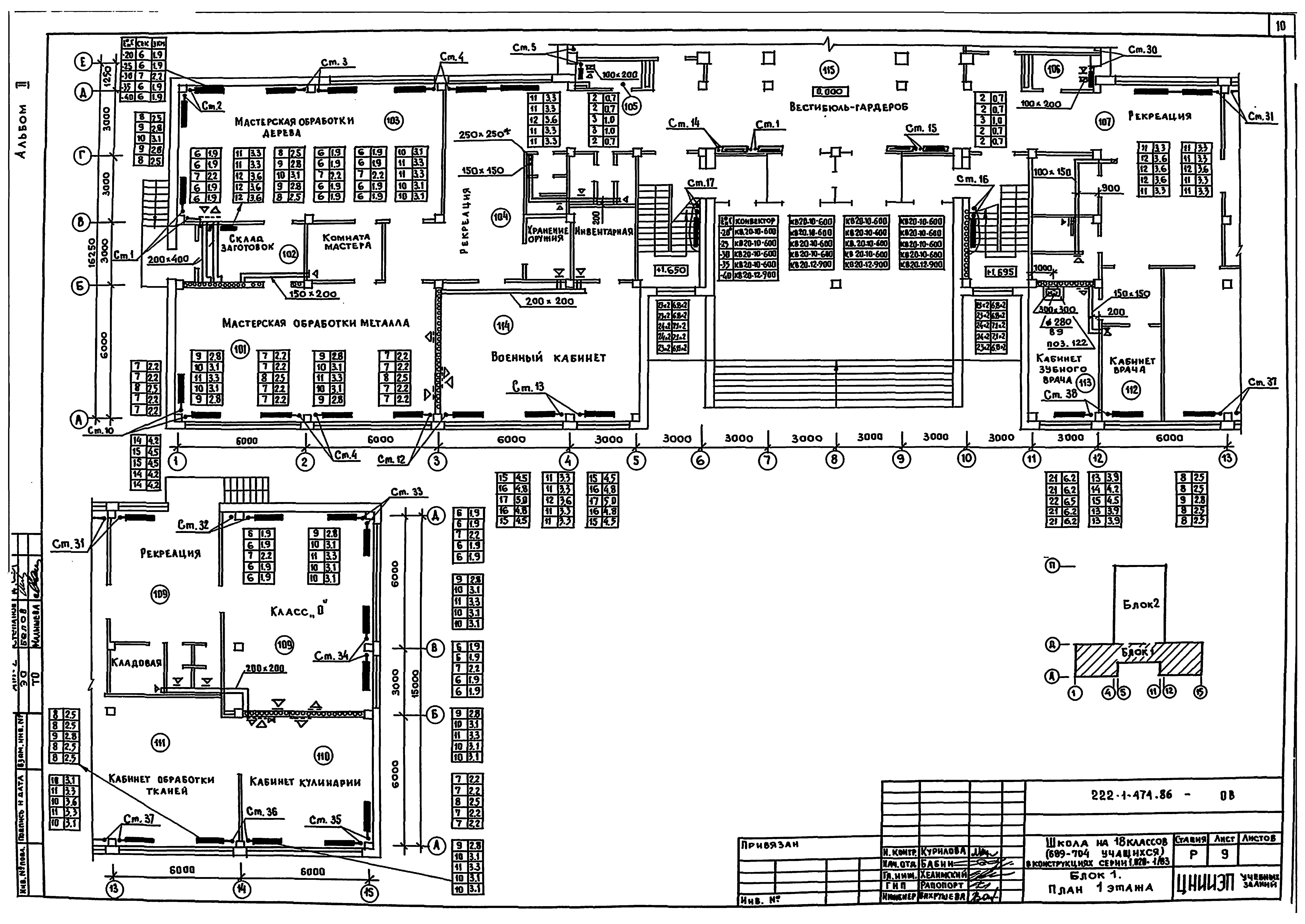
   Блок 1. План 1 этажа
   Блок 2. План 1 этажа
   Блок 1. План 2 этажа
   Блок 2. План 2 этажа
   Блок 1. План 3 этажа
   Блок 2. План 3 этажа
   Схема системы отопления стояки 1 - 18
   Схема системы отопления стояки 19 - 38
   Схема системы теплоснабжения установок П1, П2, П3. Таблица местных отводов от технологического оборудования
   Схемы систем П1, П2
   Схемы систем П3, В1, В2
   Схемы систем В3 - В10*, ВЕ4 - ВЕ6
   Схема систем ВЕ1 - ВЕ3; ВЕ7 - ВЕ14
   Установки систем П1 - П3
   Спецификация установок систем П1 - П3
   Установка систем В1, В10*
Чертежи основного комплекта марки ОВН
   Секция приемная установки системы П1
   Секция соединительная установки системы П1
   Секция приемная установок систем П2, П3
   Секция соединительная установки системы П2
   Секция соединительная установки системы П3
   Капелеотделитель
   Коробка переходная глушителя шума системы П1
   Коробка переходная глушителя шума системы П2
   Конструкция тепловой изоляции
Чертежи основного комплекта марки ВК
   Общие данные
   Блок 1. План техподполья в осях 1 - 10
   Блок 1. План техподполья в осях 10 - 15
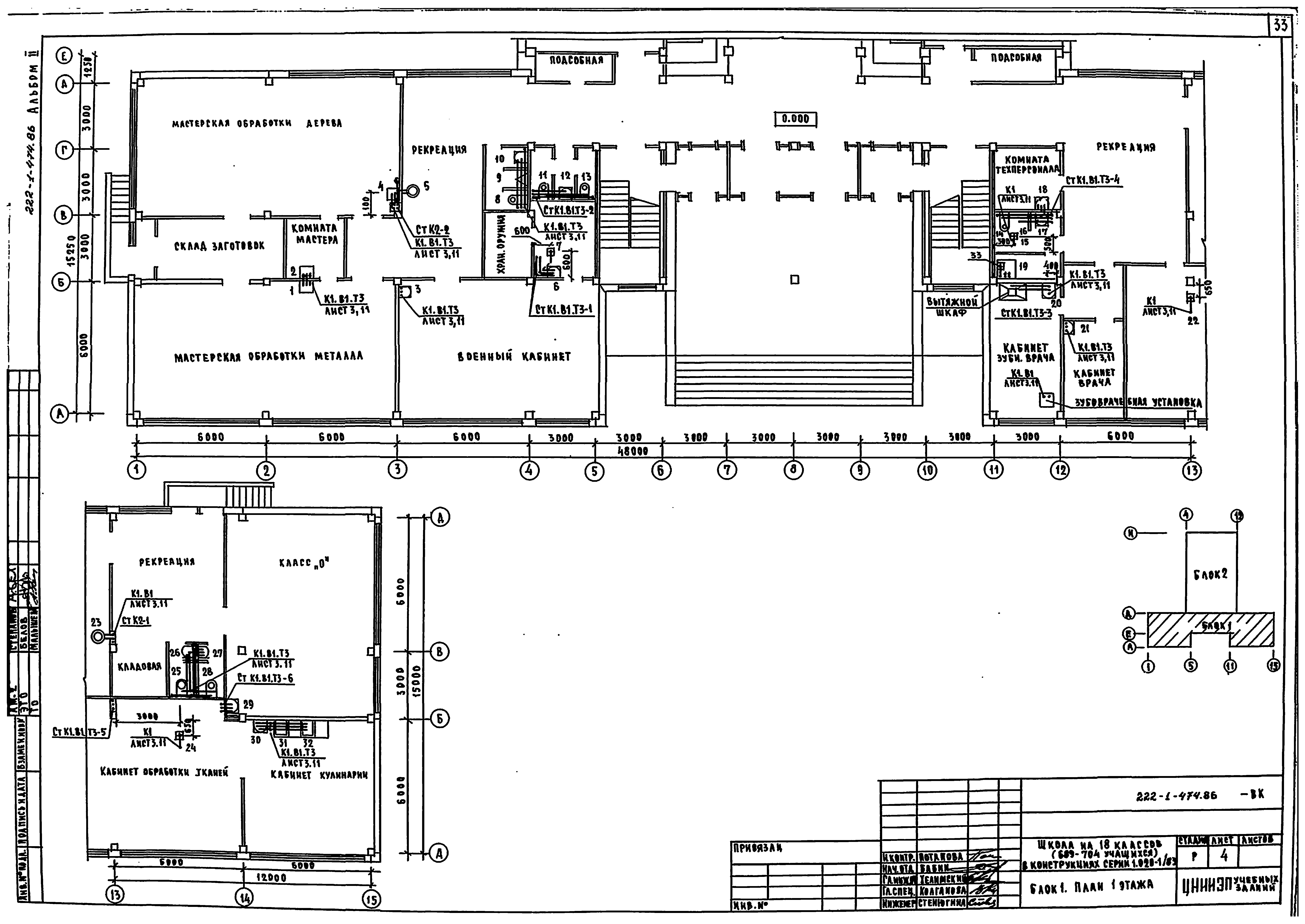
   Блок 1. План 1 этажа
   Блок 1. План 2 этажа
   Блок 1. План 3 этажа
   Блок 2. План техподполья
   Блок 2. План 1 этажа
   Блок 2. План 2 этажа
   Блок 2. План 3 этажа
   Блок 1. План подвала (вариант)
   Блок 2. План подвала (вариант)
   Схемы В1, Т3, Т4
   Схемы К1, К3
   Схемы К1, К2. Вариант
Чертежи основного комплекта марки ВКН
   Изоляция трубопроводов
Разработан: ЦНИИЭП учебных зданий
Утверждён:20.05.1983 Госгражданстрой (Gosgrazhdanstroy 159)
Расположен в:Техническая документация Строительство Справочные документы Типовые строительные конструкции, изделия и узлы Общероссийский строительный каталог Защитные сооружения гражданской обороны Типовые проекты защитных сооружений гражданской обороны для жилищно-гражданского строительства Для строительства в сельской местности Встроенные помещения, приспосабливаемые под противорадиационные укрытия в общественных зданиях Противорадиационные укрытия в школах и внешкольных учреждениях Общественные здания для строительства в сельской местности Школы и внешкольные учреждения Общеобразовательные школы
Типовой проект 222-1-474.86Типовой проект 222-1-474.86Типовой проект 222-1-474.86Типовой проект 222-1-474.86Типовой проект 222-1-474.86Типовой проект 222-1-474.86Типовой проект 222-1-474.86Типовой проект 222-1-474.86Типовой проект 222-1-474.86Типовой проект 222-1-474.86Типовой проект 222-1-474.86Типовой проект 222-1-474.86Типовой проект 222-1-474.86Типовой проект 222-1-474.86Типовой проект 222-1-474.86Типовой проект 222-1-474.86Типовой проект 222-1-474.86Типовой проект 222-1-474.86Типовой проект 222-1-474.86Типовой проект 222-1-474.86Типовой проект 222-1-474.86Типовой проект 222-1-474.86Типовой проект 222-1-474.86Типовой проект 222-1-474.86Типовой проект 222-1-474.86Типовой проект 222-1-474.86Типовой проект 222-1-474.86Типовой проект 222-1-474.86Типовой проект 222-1-474.86Типовой проект 222-1-474.86Типовой проект 222-1-474.86Типовой проект 222-1-474.86Типовой проект 222-1-474.86Типовой проект 222-1-474.86Типовой проект 222-1-474.86Типовой проект 222-1-474.86Типовой проект 222-1-474.86Типовой проект 222-1-474.86Типовой проект 222-1-474.86Типовой проект 222-1-474.86Типовой проект 222-1-474.86Типовой проект 222-1-474.86Типовой проект 222-1-474.86Типовой проект 222-1-474.86Типовой проект 222-1-474.86Типовой проект 222-1-474.86Типовой проект 222-1-474.86Типовой проект 222-1-474.86

© 2013 Ёшкин Кот :-) Карта сайта