Информационная система
«Ёшкин Кот»

Скачать базу одним архивом
Скачать обновления
История создания базы
Карта сайта

Скачать Типовой проект 221-1-313 Альбом VII. Дополнительный (корректировка по теплу)

Дата актуализации: 10.08.2017

Типовой проект 221-1-313

Альбом VII. Дополнительный (корректировка по теплу)

Обозначение: Типовой проект 221-1-313
Обозначение англ: 221-1-313
Статус:не определен законодательством
Название рус.:Альбом VII. Дополнительный (корректировка по теплу)
Дата добавления в базу:01.09.2013
Дата актуализации:05.05.2017
Дата введения:06.06.1983
Оглавление:Общие данные
Фасады
Типы и раскладка оконных блоков
Спецификация изделий наружных стен
Спецификация столярных изделий
Отопление и вентиляция
   Общие данные
   Планы 1 и 2 этажей
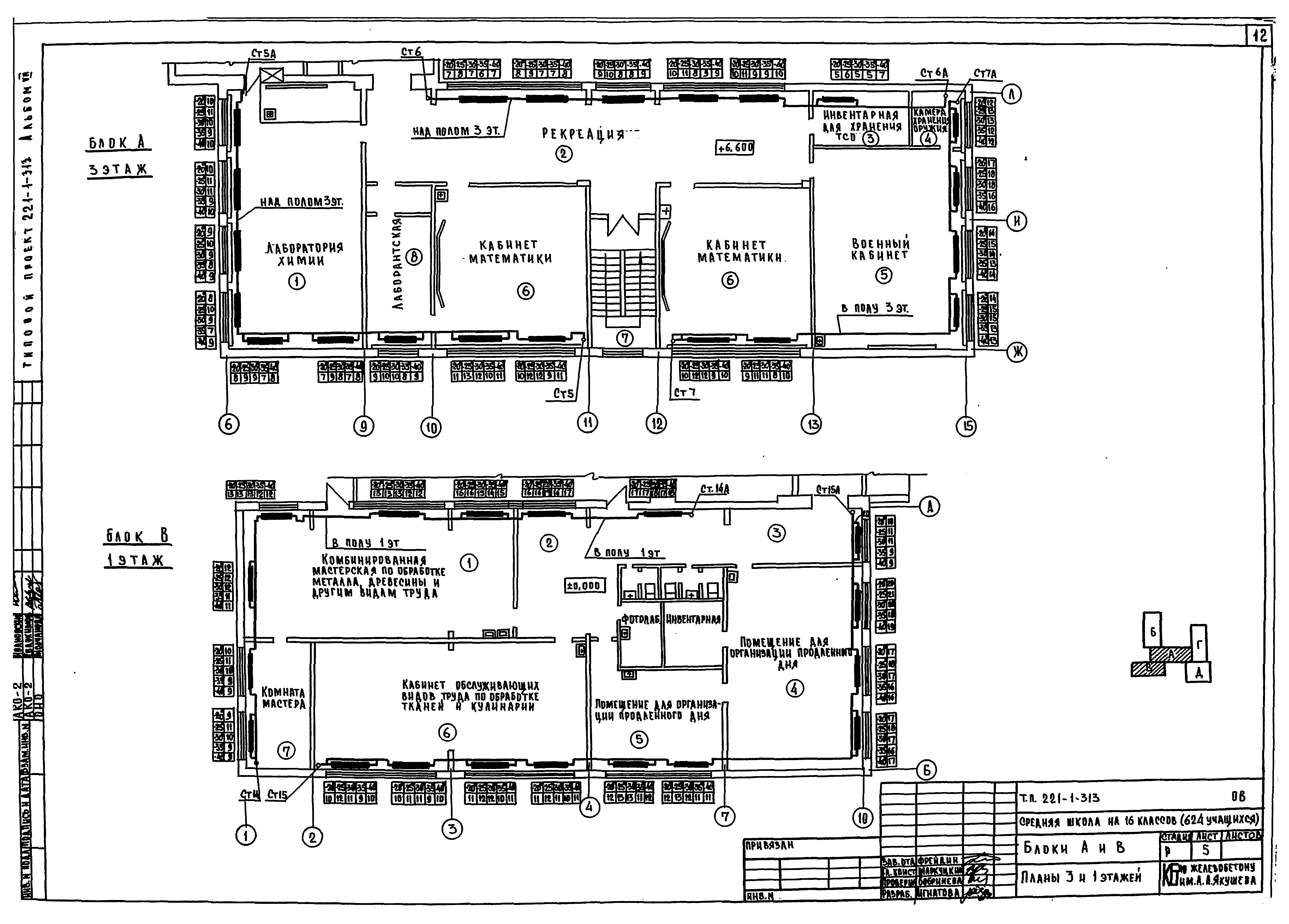
   Планы 3 и 1 этажей
   Планы 1 и 2 этажей
   Планы 3 и 1 этажей
   План 1 этажа
   План и схема магистральных трубопроводов
   Схемы систем отопления. Распределительные гребенки (подающая и обратная)
   Схемы систем отопления
   План и схема магистральных трубопроводов
   План. Схема магистральных трубопроводов и схемы систем отопления
   План и схема магистральных трубопроводов
Конструктивный вариант
   Монтажные планы 1 этажа. Блоки "А" и "Б"
   Монтажные планы 1 этажа. Блоки "В" и "Г"
   Монтажные планы 2 этажа. Фрагменты планов перекрытия. Блоки "А" и "Б"
   Монтажные планы 3 этажа. Блоки "А" и "Б"
   Развертки внутренних стен. Блок "А"
   Развертки внутренних стен. Блок "Б"
   Развертки внутренних стен. Блоки "В" и "Г"
   Узлы 1 - 6
   Узлы 7 - 22
   Спецификация изделий
Разработан: КБ по железобетону им. А.А. Якушева
Утверждён:18.04.1975 Госстрой РСФСР (Russian Federation Gosstroy 19)
Расположен в:Техническая документация Строительство Справочные документы Типовые строительные конструкции, изделия и узлы Общероссийский строительный каталог Общественные здания для строительства в сельской местности Школы и внешкольные учреждения Общеобразовательные школы
Типовой проект 221-1-313Типовой проект 221-1-313Типовой проект 221-1-313Типовой проект 221-1-313Типовой проект 221-1-313Типовой проект 221-1-313Типовой проект 221-1-313Типовой проект 221-1-313Типовой проект 221-1-313Типовой проект 221-1-313Типовой проект 221-1-313Типовой проект 221-1-313Типовой проект 221-1-313Типовой проект 221-1-313Типовой проект 221-1-313Типовой проект 221-1-313Типовой проект 221-1-313Типовой проект 221-1-313Типовой проект 221-1-313Типовой проект 221-1-313Типовой проект 221-1-313Типовой проект 221-1-313Типовой проект 221-1-313Типовой проект 221-1-313Типовой проект 221-1-313Типовой проект 221-1-313Типовой проект 221-1-313Типовой проект 221-1-313Типовой проект 221-1-313Типовой проект 221-1-313Типовой проект 221-1-313Типовой проект 221-1-313Типовой проект 221-1-313

© 2013 Ёшкин Кот :-) Карта сайта