Информационная система
«Ёшкин Кот»

Скачать базу одним архивом
Скачать обновления
История создания базы
Карта сайта

Скачать Типовой проект 221-1-313 Альбом I. Архитектурно-строительные и технологические чертежи

Дата актуализации: 10.08.2017

Типовой проект 221-1-313

Альбом I. Архитектурно-строительные и технологические чертежи

Обозначение: Типовой проект 221-1-313
Обозначение англ: 221-1-313
Статус:не определен законодательством
Название рус.:Альбом I. Архитектурно-строительные и технологические чертежи
Дата добавления в базу:01.09.2013
Дата актуализации:05.05.2017
Дата введения:25.07.1978
Оглавление:Титульный лист
Содержание альбома
Пояснительная записка
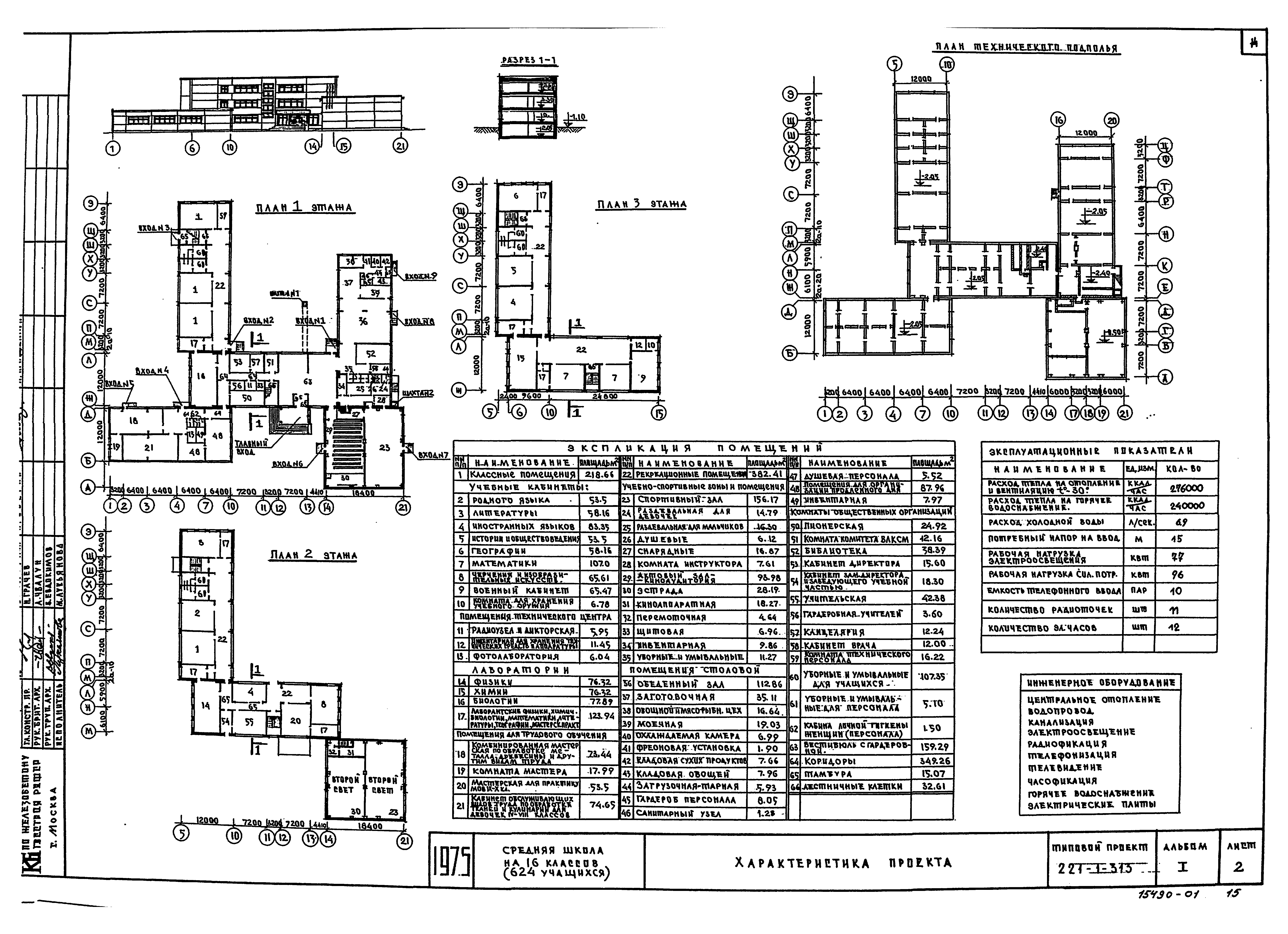
Генеральный план участка (пример решения). Технико-экономические показатели
Характеристика проекта
План разбивочных осей
Узлы к плану разбивочных осей
Архитектурно-строительные чертежи ниже 0
   Блоки "А", "Б". Планы фундаментов. Развертки по осям "М"; "Л"; "15"; "Ж"
   Блоки "В", "Г". Планы фундаментов. Развертки по осям "16"; "Е"; "Д"; в осях "К-Н"; "10"-"11"
   Блок "Д". План фундаментов. Развертка по оси "18", сечения 1-1 - 9-9
   Блоки "А", "Б", "В", "Г", "Д". План технического подполья
   Разрез I-I. Развертки, узлы
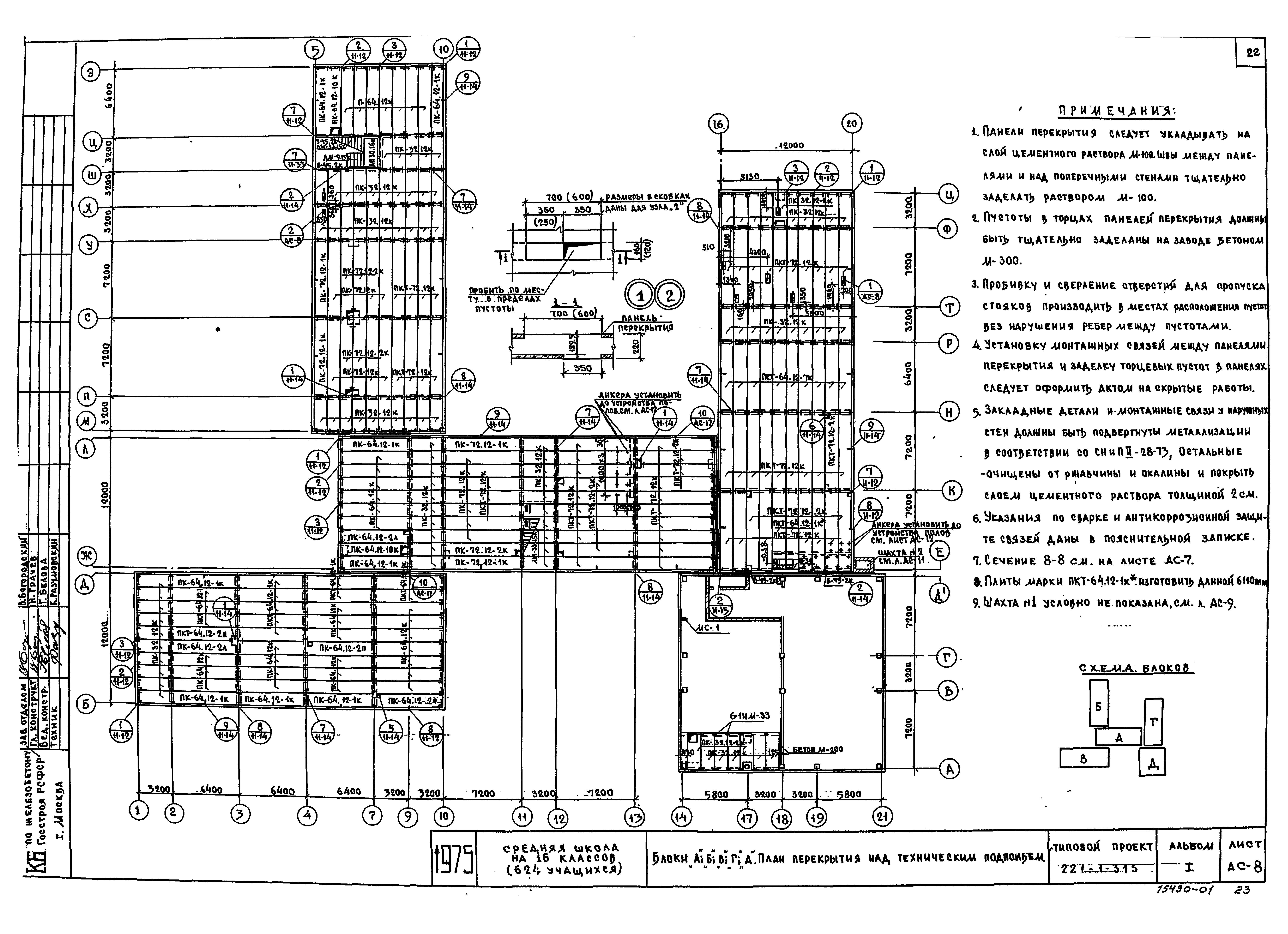
   Блоки "А", "Б", "В", "Г", "Д". План перекрытия над техническим подпольем
   Вентиляционная камера и воздухозаборная шахта №1
   Внутренний дворик с воздухозаборной шахтой №1
   Вентиляционная камера и шахта №2. Вход в техническое подполье
   Шахта №2. Вход в техническое подполье
   Конструкция главного входа. Сечения. Узлы
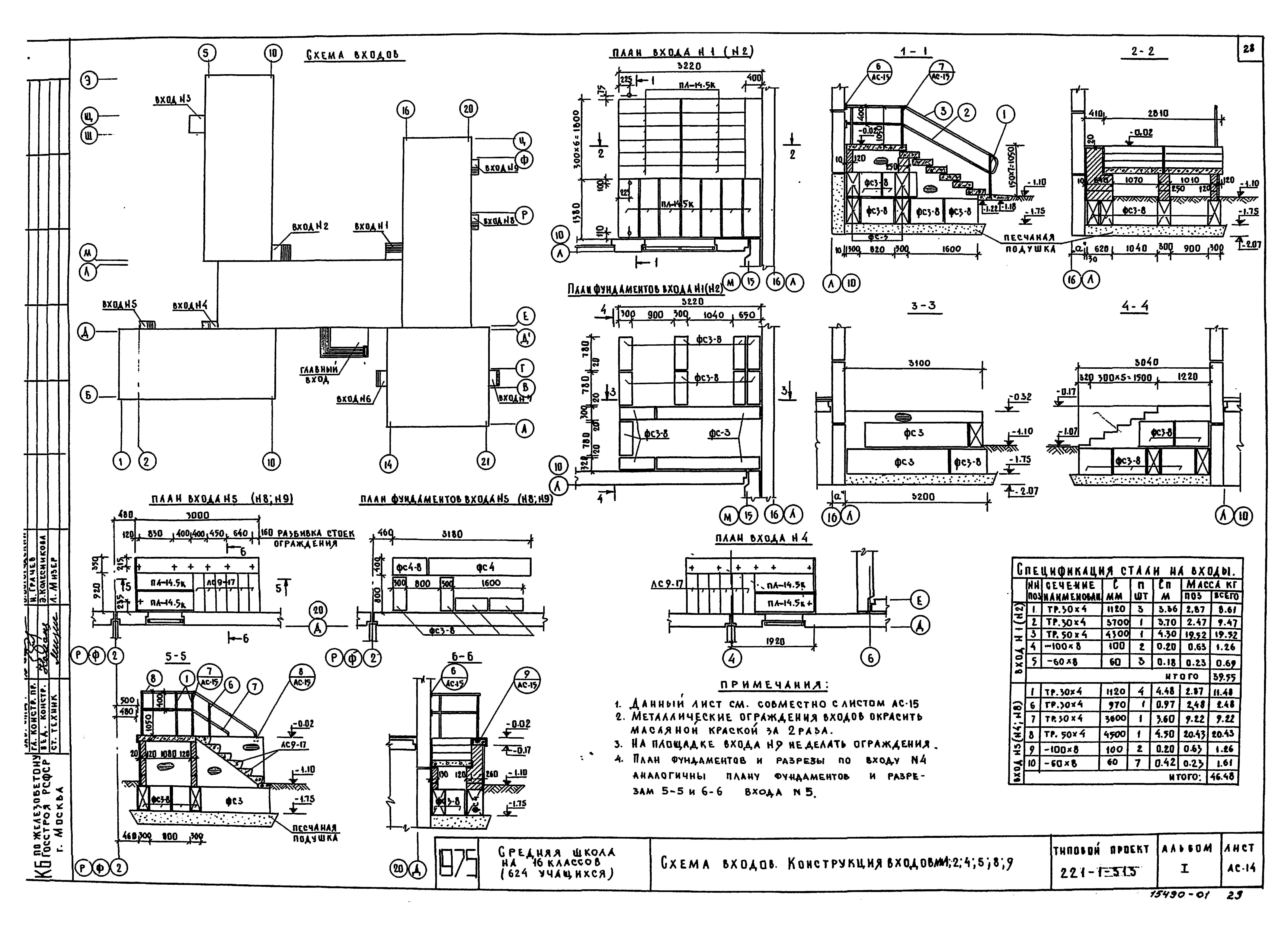
   Схема входов. Конструкция входов №№1, 2, 4, 5, 8, 9
   Конструкция входов №№3, 6, 7. Узлы
   Спецификация сборных бетонных и железобетонных изделий
   Монтажные узлы 1 - 13. Спецификация металлических изделий ниже 0
Архитектурно-строительные чертежи выше 0
   Фасады
   Разрезы I-I; IV-IV
   Блоки "А", "Б". Планы 1 этажа
   Блоки "В", "Г", "Д". Планы 1 этажа
   Блоки "А", "Б", "Д". Планы 2 этажа
   Блоки "А", "Б". Планы 3 этажа. Блок "Б" - фрагменты планов 1, 2, 3 этажей (санузлы)
   Блоки "А", "Б", "В", "Г", "Д". Монтажные фасады
   Блоки "А", "Б". Монтажные планы 1 этажа
   Блоки "В", "Г". Монтажные планы 1 этажа
   Блок "Д". Монтажный план 1 этажа. Фрагмент монтажного плана 2 этажа. Разрезы 1-1 - 4-4
   Блоки "А", "Б". Монтажные планы 2 этажа
   Блоки "А", "Б". Монтажные планы 3 этажа
   Блоки "А", "Б", "В". Развертки внутренних стен
   Блоки "А", "Б", "В", "Г". Развертки внутренних стен
   Блоки "Г", "Д". Развертки внутренних стен. Флагшток
   Блоки "А", "Б", "В", "Г", "Д". План перекрытия над 1 этажом. Блоки "В", "Г". Планы раскладки карнизных плит
   Блоки "А", "Б", "Д". Планы перекрытия над 2 этажом. Блоки "А", "Б". Планы перекрытия над 3 этажом. Блок "Д". План раскладки карнизных плит
   Блоки "А", "Б", "В", "Г", "Д". План кровли
   Развертки вентиляционных каналов
   Типы оконных блоков. Спецификация подоконных досок и оконных блоков
   Перегородки из профильного стекла №1, №2. Подиумы П-1, П-2
   Перегородки с фрамугами №№1 - 5. Остекленная перегородка №6
   Развертки стен вестибюля. Детали установки подоконных досок
   Развертки стен обеденного зала
   Развертки стен актового и спортивного залов
   Конструкция эстрады
   Блок "А". Главный вход
   Блок "А". Главный вход. Детали главного входа
   Блок "Д". Входы №№6, 7. Установка столярных блоков в актовом и спортивном залах
   Ограждения радиаторов ОР-11 - ОР-18
   Ограждения радиаторов ОР-19 - ОР-22
   Ограждения окон в спортивном зале
   Крепление баскетбольных щитов. Крепление штор в актовом зале
   Блок "Д". Защитные сетки светильников. Схема установки киноэкрана
   Жалюзийные решетки ЖР-1, ЖР-2, ЖР-3. Ограждения фреонового агрегата ИМ-01 и окна лестничной клетки ИМ-02. Монтажные связи 10М-03 - 10М-06
   Блок "Д". Подвесной потолок в актовом зале (вариант)
   Спецификация деревянных изделий. Спецификация стекла на оконные блоки
   Внутренняя отделка помещений
   Спецификация сборных ж/б изделий выше отм. 0
   Спецификация
   Спецификация металлических изделий
   Блок "Д". Монтажные узлы
   Блок "Д". План раскладки съемных щитов. Конструкция пола в актовом и спортивном залах
   Крепление стенки гимнастической. Крепление щита для метания мяча. Анкер для крепления мяча на амортизаторе
Технологические чертежи
   Блок "А". Планы 1, 3 этажей. Блок "Б". План 1 этажа. Расстановка технологического оборудования
   Блок "А". План 2 этажа. Блок "Б". План 2, 3 этажей. Расстановка технологического оборудования
   Блоки "В", "Г", "Д". Расстановка технологического оборудования
   Спецификация технологического оборудования
   Пищеблок. Расстановка технологического оборудования
   Пищеблок. Спецификация технологического оборудования
   Кинотехнологическое оборудование актового зала. Пояснительная записка. Заказная спецификация на оборудование, кабельные изделия и материалы
   Кинотехнологическое оборудование актового зала. Основные технические данные. Закладные устройства скрытой проводки
   Кинотехнологическое оборудование актового зала. Схема электрических соединений
   План расположения оборудования в киноаппаратной
   План расположения закладных устройств скрытой проводки в киноаппаратной
Разработан: КБ по железобетону Госстроя РСФСР
Утверждён:18.04.1975 Госстрой РСФСР (Russian Federation Gosstroy 19)
Расположен в:Техническая документация Строительство Справочные документы Типовые строительные конструкции, изделия и узлы Общероссийский строительный каталог Общественные здания для строительства в сельской местности Школы и внешкольные учреждения Общеобразовательные школы
Типовой проект 221-1-313Типовой проект 221-1-313Типовой проект 221-1-313Типовой проект 221-1-313Типовой проект 221-1-313Типовой проект 221-1-313Типовой проект 221-1-313Типовой проект 221-1-313Типовой проект 221-1-313Типовой проект 221-1-313Типовой проект 221-1-313Типовой проект 221-1-313Типовой проект 221-1-313Типовой проект 221-1-313Типовой проект 221-1-313Типовой проект 221-1-313Типовой проект 221-1-313Типовой проект 221-1-313Типовой проект 221-1-313Типовой проект 221-1-313Типовой проект 221-1-313Типовой проект 221-1-313Типовой проект 221-1-313Типовой проект 221-1-313Типовой проект 221-1-313Типовой проект 221-1-313Типовой проект 221-1-313Типовой проект 221-1-313Типовой проект 221-1-313Типовой проект 221-1-313Типовой проект 221-1-313Типовой проект 221-1-313Типовой проект 221-1-313Типовой проект 221-1-313Типовой проект 221-1-313Типовой проект 221-1-313Типовой проект 221-1-313Типовой проект 221-1-313Типовой проект 221-1-313Типовой проект 221-1-313Типовой проект 221-1-313Типовой проект 221-1-313Типовой проект 221-1-313Типовой проект 221-1-313Типовой проект 221-1-313Типовой проект 221-1-313Типовой проект 221-1-313Типовой проект 221-1-313Типовой проект 221-1-313Типовой проект 221-1-313Типовой проект 221-1-313Типовой проект 221-1-313Типовой проект 221-1-313Типовой проект 221-1-313Типовой проект 221-1-313Типовой проект 221-1-313Типовой проект 221-1-313Типовой проект 221-1-313Типовой проект 221-1-313Типовой проект 221-1-313Типовой проект 221-1-313Типовой проект 221-1-313Типовой проект 221-1-313Типовой проект 221-1-313Типовой проект 221-1-313Типовой проект 221-1-313Типовой проект 221-1-313Типовой проект 221-1-313Типовой проект 221-1-313Типовой проект 221-1-313Типовой проект 221-1-313Типовой проект 221-1-313Типовой проект 221-1-313Типовой проект 221-1-313Типовой проект 221-1-313Типовой проект 221-1-313Типовой проект 221-1-313Типовой проект 221-1-313Типовой проект 221-1-313Типовой проект 221-1-313Типовой проект 221-1-313Типовой проект 221-1-313Типовой проект 221-1-313Типовой проект 221-1-313Типовой проект 221-1-313Типовой проект 221-1-313Типовой проект 221-1-313Типовой проект 221-1-313Типовой проект 221-1-313

© 2013 Ёшкин Кот :-) Карта сайта