| ||||||||||||||||||||||||||
Скачать Серия ПК-01-120 Крупнопанельные железобетонные предварительно напряженные плиты размером 1,5х12 и 3х12 м для покрытий промышленных зданий с унифицированными отверстиями для пропуска вентшахт с дефлекторами и зонтамиДата актуализации: 10.08.2017
|
| Обозначение: | Серия ПК-01-120 |
| Обозначение англ: | Series ПК-01-120 |
| Статус: | не действует |
| Название рус.: | Крупнопанельные железобетонные предварительно напряженные плиты размером 1,5х12 и 3х12 м для покрытий промышленных зданий с унифицированными отверстиями для пропуска вентшахт с дефлекторами и зонтами |
| Дата добавления в базу: | 01.09.2013 |
| Дата актуализации: | 05.05.2017 |
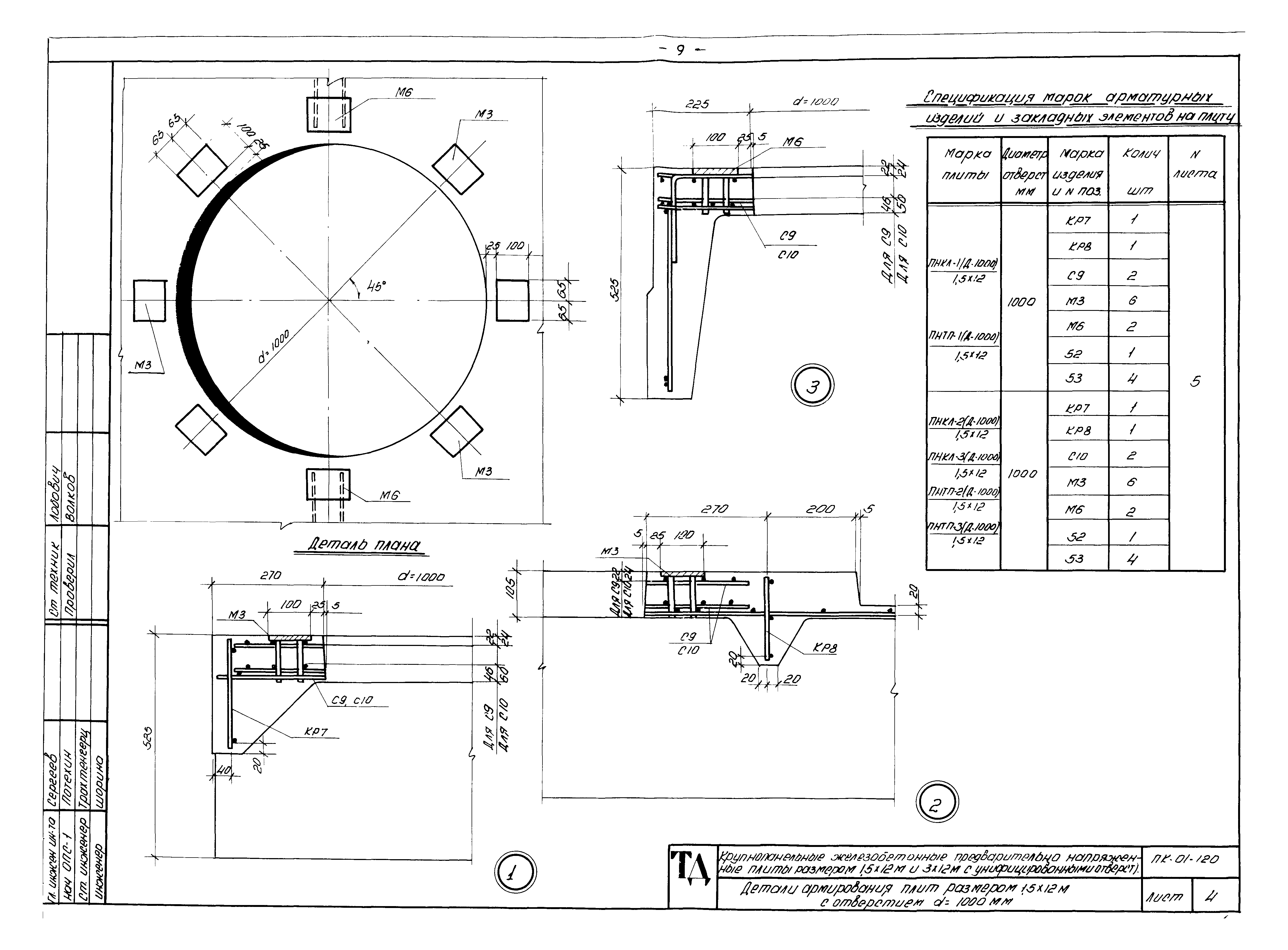
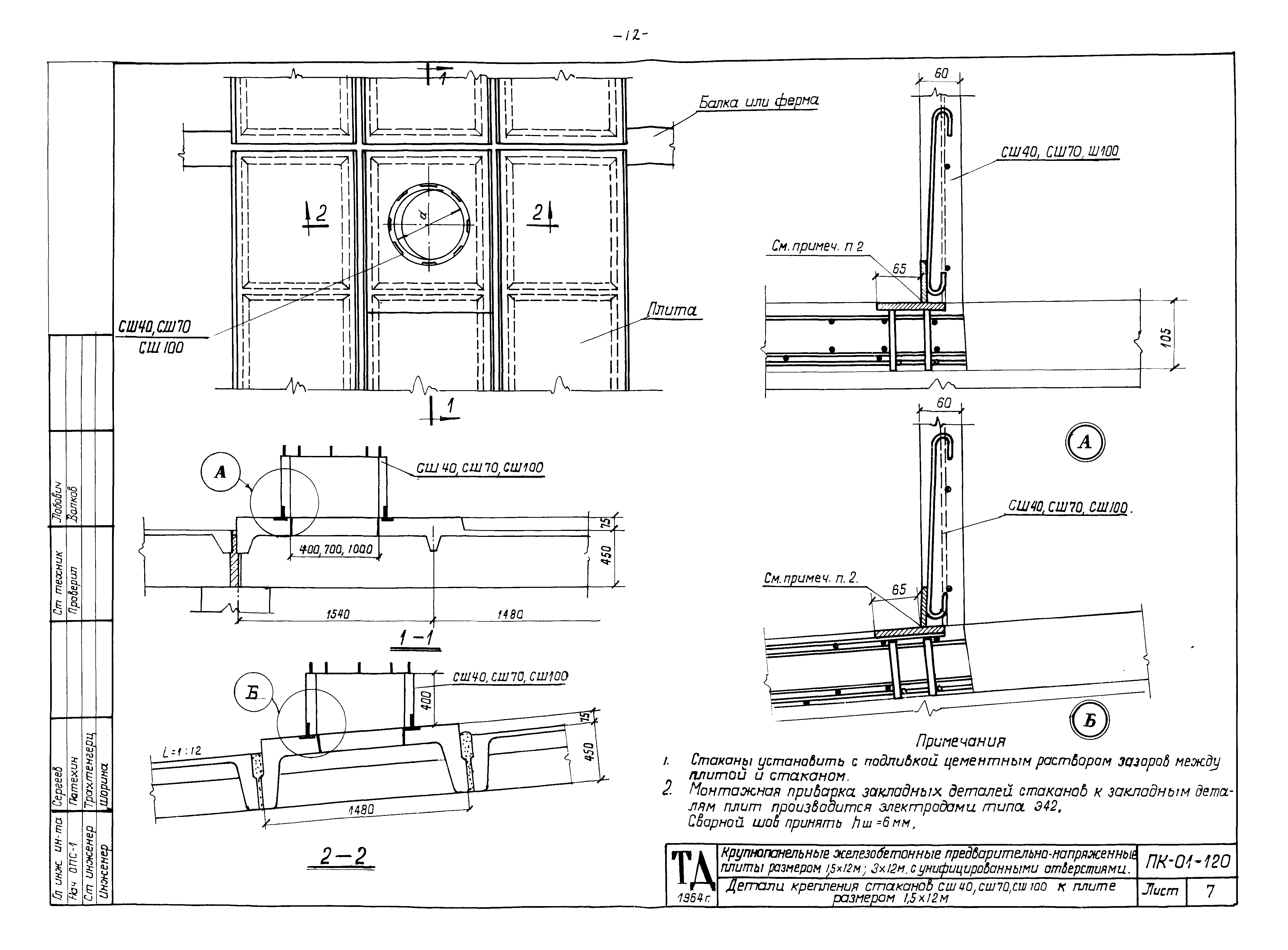
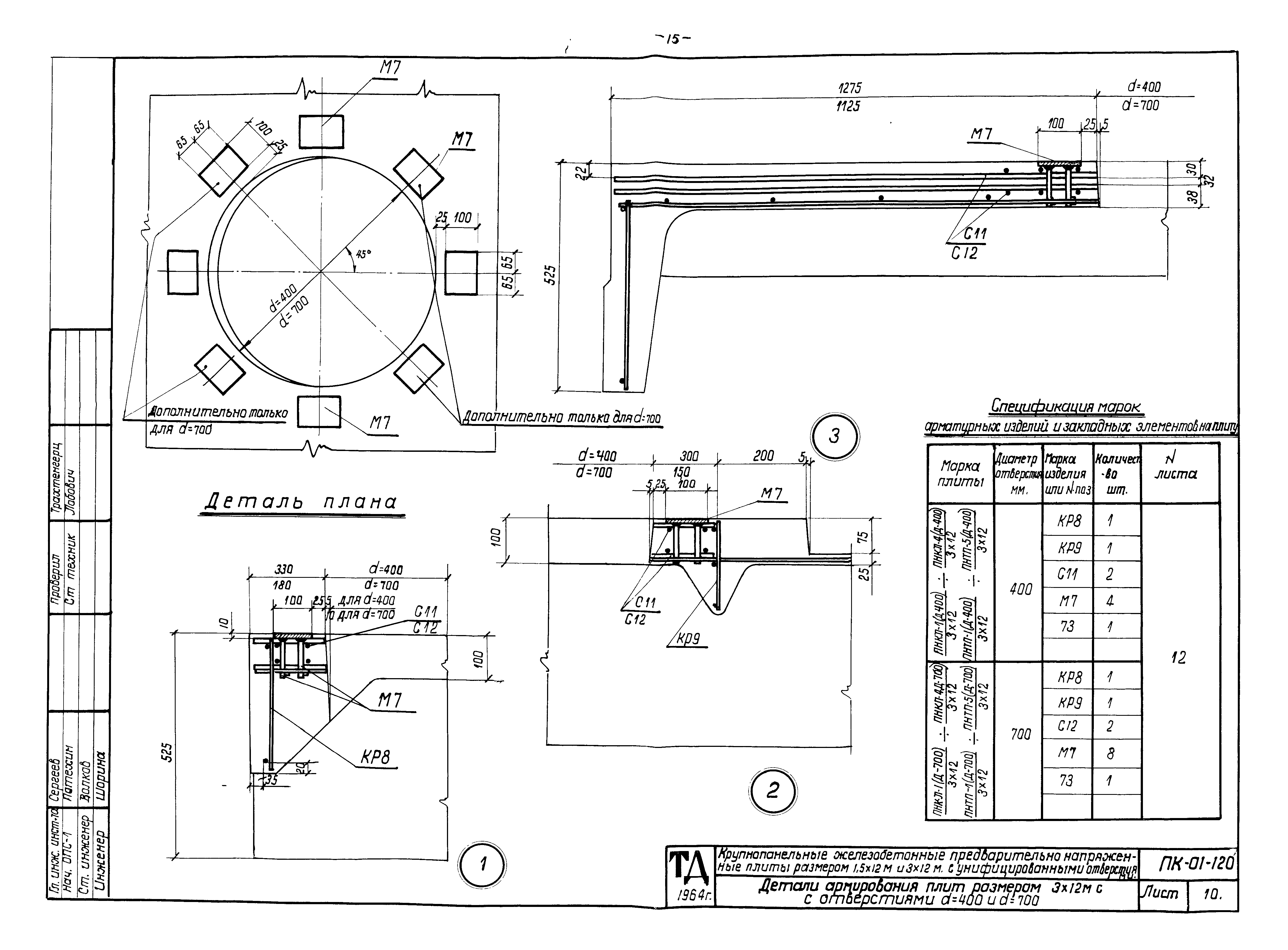
| Оглавление: | Пояснительная записка Опалубочный чертеж плит размером 1,5х12 м с отверстиями Д = 400 и Д = 700 мм Опалубочный чертеж плит размером 1,5х12 м с отверстием Д = 1000 мм Детали армирования плит размером 1,5х12 м с отверстиями Д = 400 и Д = 700 мм Детали армирования плит размером 1,5х12 м с отверстием Д = 1000 мм Арматурные каркасы, сетки, закладные элементы для плит размером 1,5х12 м Спецификация и выборка стали для плит размером 1,5х12 м Детали крепления стаканов СШ40, СШ70, СШ100 к плите размером 1,5х12 м Опалубочный чертеж плит размером 3х12 м с отверстиями Д = 400 и Д = 700 мм Опалубочный чертеж плит размером 3х12 м с отверстиями Д = 1000 и Д = 1450 мм Детали армирования плит размером 3х12 м с отверстиями Д = 400 и Д = 700 мм Детали армирования плит размером 3х12 м с отверстиями Д = 1000 и Д = 1450 мм Арматурные каркасы, сетки, закладные элементы для плит размером 3х12 м Спецификация и выборка стали для плит размером 3х12 м Детали крепления стаканов СШ40, СШ70, СШ100, СШ145 к плите размером 3х12 м Стаканы СШ40, СШ40а, СШ70, СШ70а. Опалубочные размеры и конструкция Стаканы СШ100, СШ100а, СШ145, СШ145а. Опалубочные размеры и конструкция Сварные сетки и закладные элементы для стаканов. Спецификация арматуры |
| Разработан: | Гипротис НИИЖБ АСиА СССР |
| Утверждён: | 14.12.1962 Госстрой СССР (Государственный комитет Совета Министров СССР по делам строительства) (USSR Gosstroy 466) |
| Издан: | ЦИТП Госстроя СССР (CITP, Gosstroy (USSR) 1963 г. ) |
| Расположен в: |






















