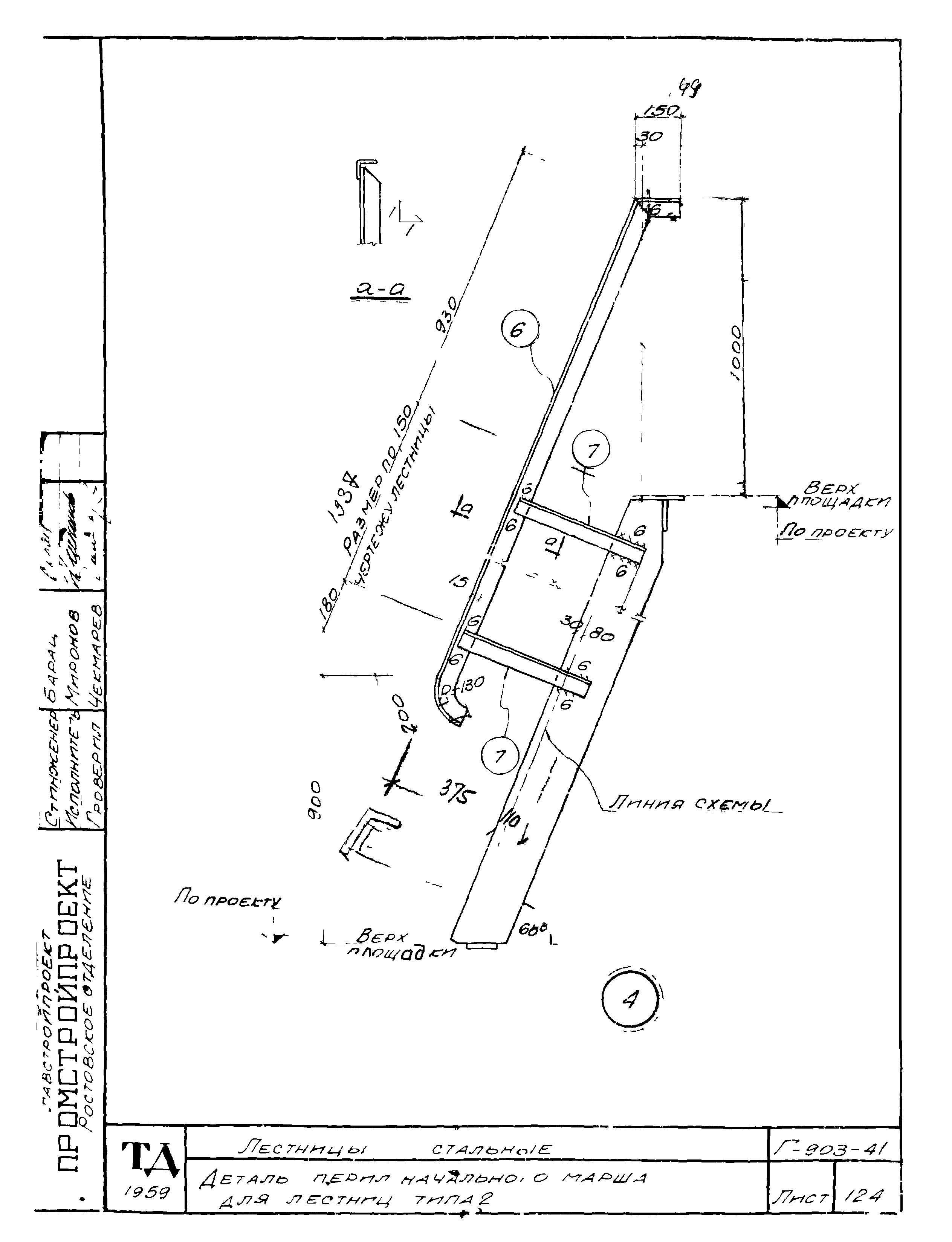
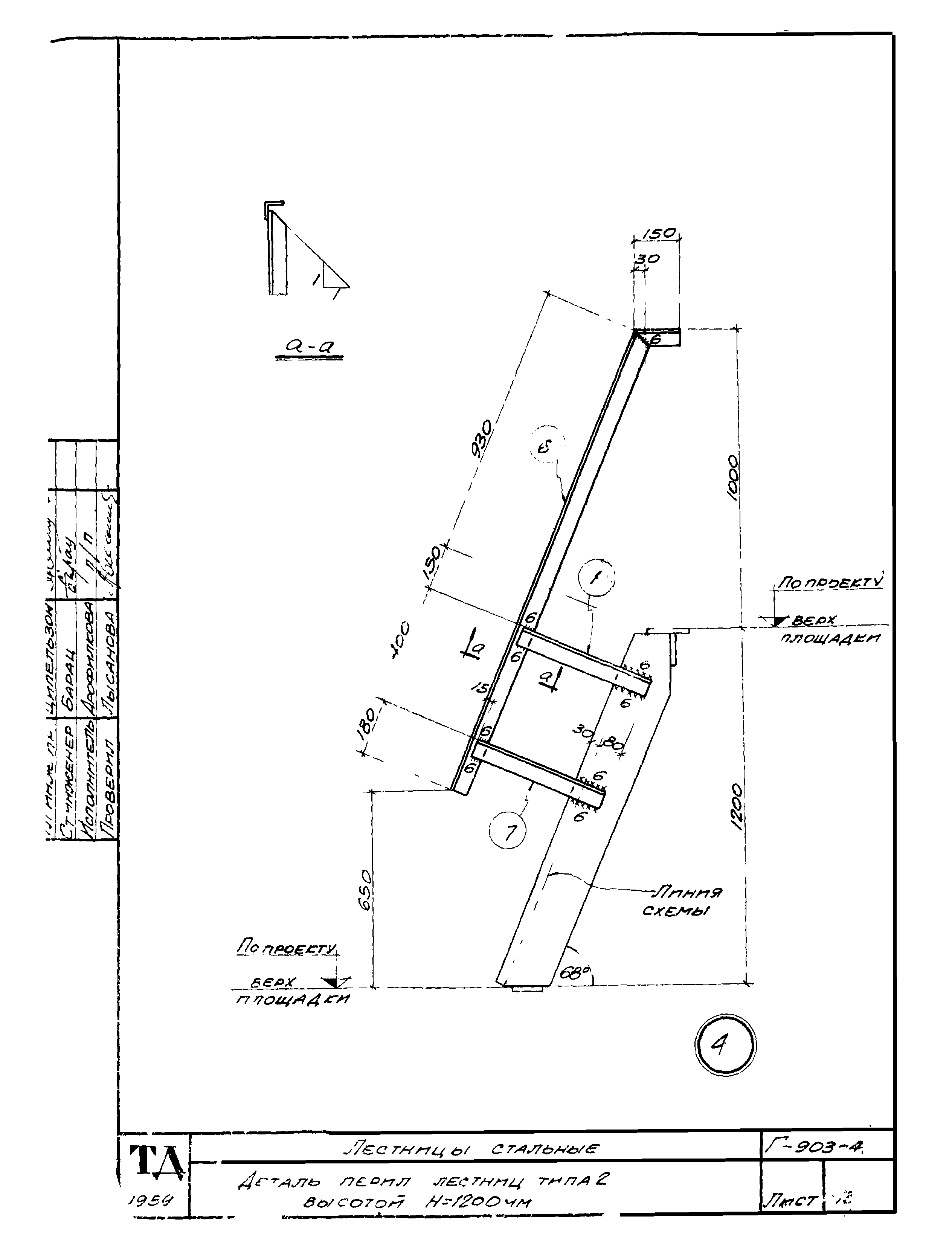
Скачать Серия Г-903 Раздел IV. Выпуск 41. Лестницы стальные. Типы производственных зданийДата актуализации: 10.08.2017 Серия Г-903
Раздел IV. Выпуск 41. Лестницы стальные. Типы производственных зданий| Обозначение: | Серия Г-903 | | Обозначение англ: | Series Г-903 | | Статус: | не действует | | Название рус.: | Раздел IV. Выпуск 41. Лестницы стальные. Типы производственных зданий | | Дата добавления в базу: | 01.09.2013 | | Дата актуализации: | 05.05.2017 | | Разработан: | ПромстройНИИпроект
| | Утверждён: | 01.01.1959 Главстройпроект Госстроя СССР
| | Расположен в: |
|
                                                                                                                                       
|