Информационная система
«Ёшкин Кот»

Скачать базу одним архивом
Скачать обновления
История создания базы
Карта сайта

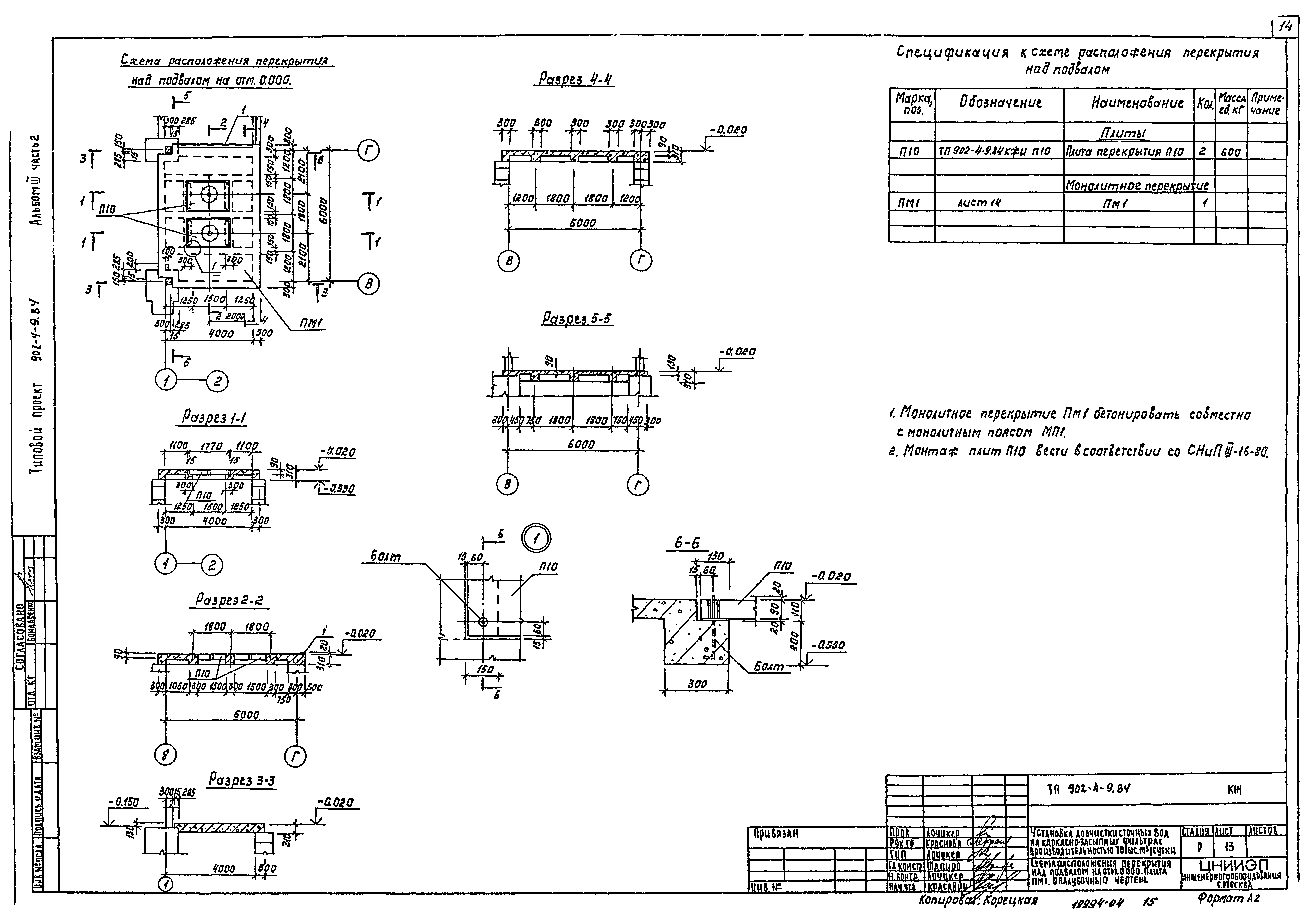
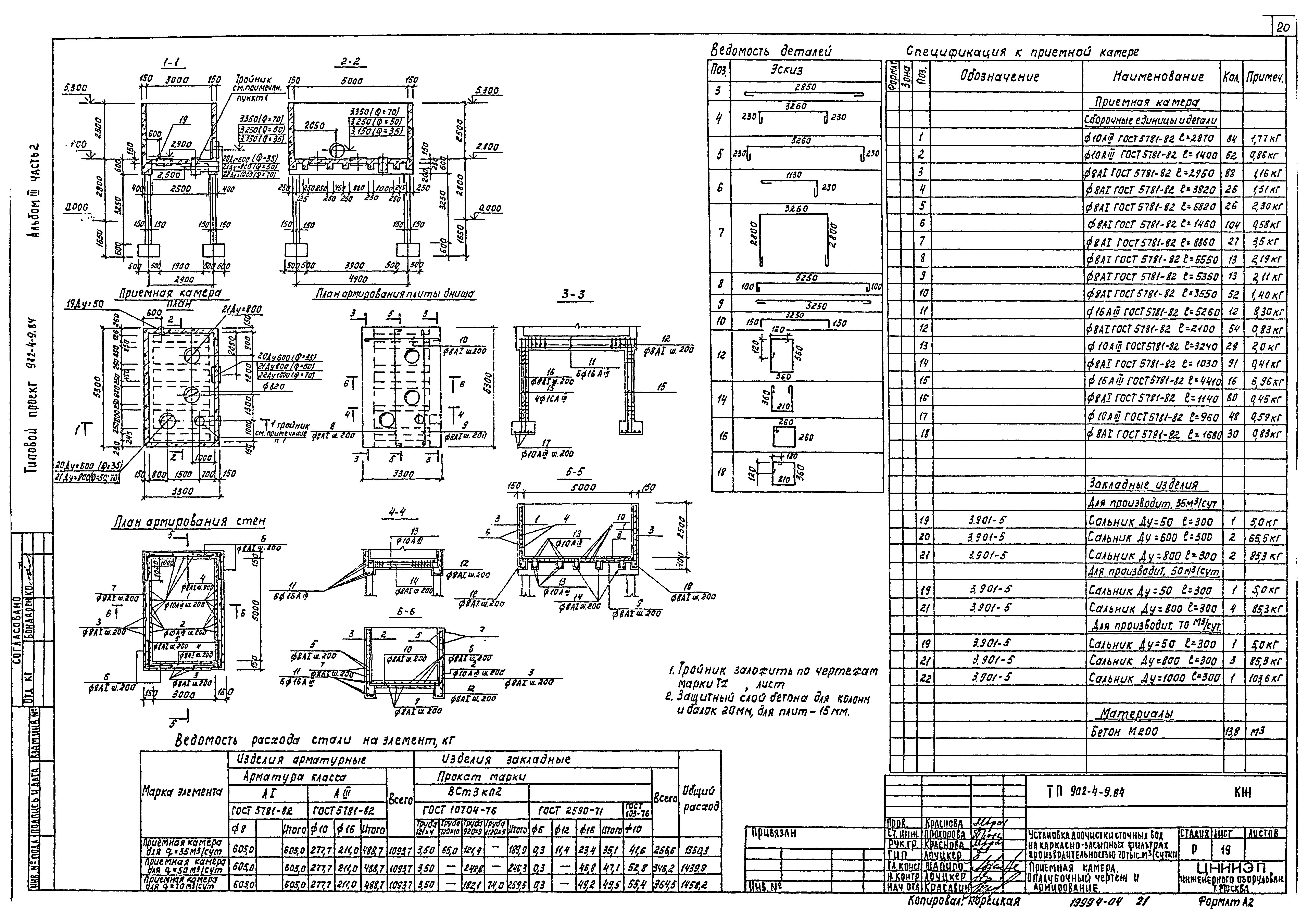
Скачать Типовой проект 902-4-9.84 Альбом III. Часть 2. Строительные решения. Конструкции железобетонные в осях 1 - 4. Узлы

Дата актуализации: 10.08.2017

Типовой проект 902-4-9.84

Альбом III. Часть 2. Строительные решения. Конструкции железобетонные в осях "1" - "4". Узлы

Обозначение: Типовой проект 902-4-9.84
Обозначение англ: 902-4-9.84
Статус:не определен законодательством
Название рус.:Альбом III. Часть 2. Строительные решения. Конструкции железобетонные в осях "1" - "4". Узлы
Дата добавления в базу:21.05.2015
Дата актуализации:05.05.2017
Дата введения:28.06.1984
Разработан: ЦНИИЭП иженерного оборудования
Утверждён:05.05.1984 Госгражданстрой (Gosgrazhdanstroy 133)
Расположен в:Техническая документация Строительство Справочные документы Типовые строительные конструкции, изделия и узлы Общероссийский строительный каталог Промышленные предприятия, здания и сооружения Здания и сооружения санитарно-технические Канализация Сооружения доочистки Установки очистные и контактные резервуары
Типовой проект 902-4-9.84Типовой проект 902-4-9.84Типовой проект 902-4-9.84Типовой проект 902-4-9.84Типовой проект 902-4-9.84Типовой проект 902-4-9.84Типовой проект 902-4-9.84Типовой проект 902-4-9.84Типовой проект 902-4-9.84Типовой проект 902-4-9.84Типовой проект 902-4-9.84Типовой проект 902-4-9.84Типовой проект 902-4-9.84Типовой проект 902-4-9.84Типовой проект 902-4-9.84Типовой проект 902-4-9.84Типовой проект 902-4-9.84Типовой проект 902-4-9.84Типовой проект 902-4-9.84Типовой проект 902-4-9.84Типовой проект 902-4-9.84Типовой проект 902-4-9.84Типовой проект 902-4-9.84Типовой проект 902-4-9.84Типовой проект 902-4-9.84Типовой проект 902-4-9.84Типовой проект 902-4-9.84Типовой проект 902-4-9.84Типовой проект 902-4-9.84Типовой проект 902-4-9.84Типовой проект 902-4-9.84Типовой проект 902-4-9.84Типовой проект 902-4-9.84Типовой проект 902-4-9.84Типовой проект 902-4-9.84Типовой проект 902-4-9.84Типовой проект 902-4-9.84Типовой проект 902-4-9.84Типовой проект 902-4-9.84Типовой проект 902-4-9.84Типовой проект 902-4-9.84Типовой проект 902-4-9.84Типовой проект 902-4-9.84Типовой проект 902-4-9.84Типовой проект 902-4-9.84Типовой проект 902-4-9.84Типовой проект 902-4-9.84

© 2013 Ёшкин Кот :-) Карта сайта